NEW中古売戸建住宅青森県十和田市東六番町の中古売戸建住宅の詳細情報
掲載期限まであと13日
物件概要
| 物件名 | 青森県十和田市東六番町の中古売戸建住宅 | ||||
|---|---|---|---|---|---|
| 所在地 | 青森県十和田市東六番町 | ||||
| 交通 |
【バス】十和田中学校入口 バス停下車 徒歩5分 | ||||
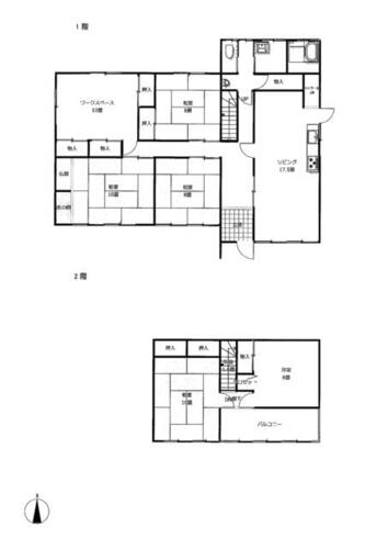
| 建物構造 | 木造/2階建 | 最多価格帯 | - | ||
| 販売戸数/総戸数 | -/- | 主要採光面 | - | ||
| 引渡し | 相談 | 現況 | 居住中 | ||
| 管理 | - | 駐車場 | - | ||
| 地目 | 宅地 | 地勢 | 平坦 | ||
| 都市計画 | 非線引区域 | 用途地域 | 準工業 | ||
| 建ぺい率 | 60.00% | 容積率 | 200.00% | ||
| 土地権利 | 所有権 | 国土法届出 | - | ||
| 私道負担・道路 | - | 接道状況 | 南 6.5m 公道 接面27.0m東 4.0m 公道 接面20.0m | ||
| セットバック | セットバック済 | リフォーム | - | ||
| リノベーション | - | 取引態様 | 専属専任媒介 | ||
| 施工会社名 | - | 建築確認番号 | - | ||
| その他費用 | - | ||||
| その他制限事項 | - | ||||
| 備考 | 広々土地面積154坪 南東の角地 駐車スペース5台分以上! カーポート有り 2025年建物状況調査済み(報告書添付)買い物施設等徒歩圏内の好立地内覧ご希望等お気軽にお問い合わせください!です!お引き渡しは2016年5月となります。・セットバック:済・広々土地面積154坪 南東の角地 駐車スペース5台分以上! カーポート有り 2025年建物状況調査済み(報告書添付)買い物施設等徒歩圏内の好立地です! 内覧ご希望等お気軽にお問い合わせください! | ||||
情報公開日:2025/12/03 次回更新予定日:情報更新日より14日以内
この物件の地図・周辺環境
このアイコンは物件のおおよその位置を表しており、実際の場所と異なる場合がございます。詳しくは不動産会社に直接ご確認ください。
取り扱い不動産会社
- 住所
- 青森県十和田市東四番町1-38
- 電話番号
- 0176-27-5013
- 定休日
- 年中無休・年末年始、GW、夏季休暇
- 免許番号
- 青森県知事免許(1)第3687号
- 所属団体
- (公社)全日本不動産協会、東北地区不動産公正取引協議会
掲載期限まであと13日
住宅ローンシミュレーション
住宅ローン設定
物件価格
返済期間
頭金
ボーナス払(年1回)
※
※物件価格の80%以下でお借入れの場合
※50歳以下で一般団信をご選択の場合
※住宅ローン金利優遇割適用後の変動金利(全期間引き下げプラン)
※実際のお借入日の金利により変動します。
※審査の結果によっては保証付金利プランとなる場合があり、この場合は上記とは異なる金利となります。
※別途借入金額の2.20%(税込)の事務手数料が発生します。
ボーナス払 | 35年間返済 | 30年間返済 | 25年間返済 | 20年間返済 | 15年間返済 | 10年間返済 |
|---|---|---|---|---|---|---|
0万円 | -円/月 | -円/月 | -円/月 | -円/月 | -円/月 | -円/月 |
5万円 | -円/月 | -円/月 | -円/月 | -円/月 | -円/月 | -円/月 |
10万円 | -円/月 | -円/月 | -円/月 | -円/月 | -円/月 | -円/月 |
15万円 | -円/月 | -円/月 | -円/月 | -円/月 | -円/月 | -円/月 |
20万円 | -円/月 | -円/月 | -円/月 | -円/月 | -円/月 | -円/月 |
25万円 | -円/月 | -円/月 | -円/月 | -円/月 | -円/月 | -円/月 |
30万円 | -円/月 | -円/月 | -円/月 | -円/月 | -円/月 | -円/月 |
ボーナス払 | 35年間返済 | 30年間返済 | 25年間返済 | 20年間返済 | 15年間返済 | 10年間返済 |
|---|---|---|---|---|---|---|
0万円 | -円/月 | -円/月 | -円/月 | -円/月 | -円/月 | -円/月 |
5万円 | -円/月 | -円/月 | -円/月 | -円/月 | -円/月 | -円/月 |
10万円 | -円/月 | -円/月 | -円/月 | -円/月 | -円/月 | -円/月 |
15万円 | -円/月 | -円/月 | -円/月 | -円/月 | -円/月 | -円/月 |
20万円 | -円/月 | -円/月 | -円/月 | -円/月 | -円/月 | -円/月 |
25万円 | -円/月 | -円/月 | -円/月 | -円/月 | -円/月 | -円/月 |
30万円 | -円/月 | -円/月 | -円/月 | -円/月 | -円/月 | -円/月 |
- ・金利は、今後35年間変動しない仮定のもと元利均等返済方式で計算しております。
- ・実際の金利は、各金融機関のホームページをご参照ください。
- ・ローン契約の際には、手数料や印紙税などの諸費用が別途かかります。
- ・ボーナス支払総額が総支払額の50%を超えている場合、上記の表では「ローン不可」となります。
- ・シミュレーションを利用し、それが原因で利用者が受けたいかなる損害についても当社は一切責任を負いません。あらかじめご了承ください。









