NEW中古売戸建住宅福井県坂井市丸岡町坪江の中古売戸建住宅の詳細情報
掲載期限まであと13日
外観・室内・設備(14枚)
物件概要
| 物件名 | 福井県坂井市丸岡町坪江の中古売戸建住宅 | ||||
|---|---|---|---|---|---|
| 所在地 | 福井県坂井市丸岡町坪江 | ||||
| 交通 |
ハピラインふくい丸岡駅徒歩6000m | ||||
| 建物構造 | 木造/2階建 | 最多価格帯 | - | ||
| 販売戸数/総戸数 | -/- | 主要採光面 | 南 | ||
| 引渡し | 即時 | 現況 | 空 | ||
| 管理 | - | 駐車場 | 有 (無料) | ||
| 地目 | 宅地 | 地勢 | 平坦 | ||
| 都市計画 | 非線引区域 | 用途地域 | 無指定 | ||
| 建ぺい率 | 60.00% | 容積率 | 200.00% | ||
| 土地権利 | 所有権 | 国土法届出 | - | ||
| 私道負担・道路 | - | 接道状況 | 北 4.4m 公道 接面43.7m | ||
| セットバック | - | リフォーム | - | ||
| リノベーション | - | 取引態様 | 専任媒介 | ||
| 施工会社名 | - | 建築確認番号 | - | ||
| その他費用 | - | ||||
| その他制限事項 | - | ||||
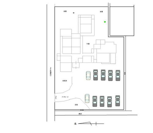
| 備考 | ●坪江は南は竹田川の豊かな水資源と肥沃な土壌、北はあわら市東山(海抜約200mの低山)の裾野の緑地といったいとなった潤いのある景観の地です。 ●当古民家は先々大が本宅を新築、昭和、平成に離れ及びLDK水回りを増改築したものです。●アプローチ進入路より広い空地があり、車10台は駐車可能です。●IT系企業の住まい兼オフィスに、社員保養施設に●趣味悠々、田舎暮らしを希望の方に・私道負担:なし・広々とした延床面積332.68㎡の居室空間、更にウッドチェアやデッキが置けちゃう10坪以上の庭有の住居だから、ちょっとした運動や遊びものびのび楽しめます。・仲介手数料:売買代金の3%+60,000円 | ||||
情報公開日:2025/11/15 次回更新予定日:情報更新日より14日以内
この物件の地図・周辺環境
このアイコンは物件のおおよその位置を表しており、実際の場所と異なる場合がございます。詳しくは不動産会社に直接ご確認ください。
取り扱い不動産会社
- 住所
- 福井県吉田郡永平寺町松岡春日2丁目130
- 電話番号
- 0776-61-3254
- 営業時間
- 09:00~18:00
- 定休日
- なし
- 免許番号
- 福井県知事免許(3)第1542号
- 所属団体
- (公社)全日本不動産協会、北陸不動産公正取引協議会
掲載期限まであと13日
住宅ローンシミュレーション
住宅ローン設定
物件価格
返済期間
頭金
ボーナス払(年1回)
※
※物件価格の80%以下でお借入れの場合
※50歳以下で一般団信をご選択の場合
※住宅ローン金利優遇割適用後の変動金利(全期間引き下げプラン)
※実際のお借入日の金利により変動します。
※審査の結果によっては保証付金利プランとなる場合があり、この場合は上記とは異なる金利となります。
※別途借入金額の2.20%(税込)の事務手数料が発生します。
ボーナス払 | 35年間返済 | 30年間返済 | 25年間返済 | 20年間返済 | 15年間返済 | 10年間返済 |
|---|---|---|---|---|---|---|
0万円 | -円/月 | -円/月 | -円/月 | -円/月 | -円/月 | -円/月 |
5万円 | -円/月 | -円/月 | -円/月 | -円/月 | -円/月 | -円/月 |
10万円 | -円/月 | -円/月 | -円/月 | -円/月 | -円/月 | -円/月 |
15万円 | -円/月 | -円/月 | -円/月 | -円/月 | -円/月 | -円/月 |
20万円 | -円/月 | -円/月 | -円/月 | -円/月 | -円/月 | -円/月 |
25万円 | -円/月 | -円/月 | -円/月 | -円/月 | -円/月 | -円/月 |
30万円 | -円/月 | -円/月 | -円/月 | -円/月 | -円/月 | -円/月 |
ボーナス払 | 35年間返済 | 30年間返済 | 25年間返済 | 20年間返済 | 15年間返済 | 10年間返済 |
|---|---|---|---|---|---|---|
0万円 | -円/月 | -円/月 | -円/月 | -円/月 | -円/月 | -円/月 |
5万円 | -円/月 | -円/月 | -円/月 | -円/月 | -円/月 | -円/月 |
10万円 | -円/月 | -円/月 | -円/月 | -円/月 | -円/月 | -円/月 |
15万円 | -円/月 | -円/月 | -円/月 | -円/月 | -円/月 | -円/月 |
20万円 | -円/月 | -円/月 | -円/月 | -円/月 | -円/月 | -円/月 |
25万円 | -円/月 | -円/月 | -円/月 | -円/月 | -円/月 | -円/月 |
30万円 | -円/月 | -円/月 | -円/月 | -円/月 | -円/月 | -円/月 |
- ・金利は、今後35年間変動しない仮定のもと元利均等返済方式で計算しております。
- ・実際の金利は、各金融機関のホームページをご参照ください。
- ・ローン契約の際には、手数料や印紙税などの諸費用が別途かかります。
- ・ボーナス支払総額が総支払額の50%を超えている場合、上記の表では「ローン不可」となります。
- ・シミュレーションを利用し、それが原因で利用者が受けたいかなる損害についても当社は一切責任を負いません。あらかじめご了承ください。
















