一戸建て舟渡2(浮間舟渡駅) 5990万円の詳細情報
5990万円
月々のローン返済額を試算\月々約16万円/旧パナホーム施工の注文住宅♪軽量鉄骨造オール電化!
その他(20枚)
物件概要
| 物件名 | 舟渡2(浮間舟渡駅) 5990万円 | ||||
|---|---|---|---|---|---|
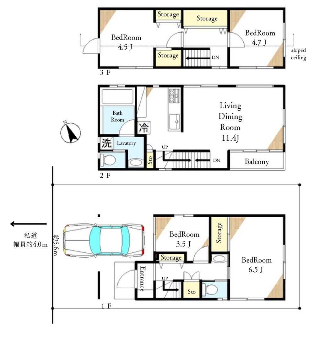
| 所在地 | 東京都板橋区舟渡2 | ||||
| 交通 |
JR埼京線「浮間舟渡」歩7分 都営三田線「蓮根」バス5分舟渡一丁目歩5分 JR埼京線「北赤羽」歩26分 | ||||
| 建物構造 | 軽量鉄骨3階建 | 最多価格帯 | - | ||
| 販売戸数/総戸数 | 1戸/1戸 | 入居時期 | 相談 | ||
| 駐車場 | カースペース | 地目 | - | ||
| 用途地域 | - | 建ぺい率・容積率 | 60%・200% | ||
| 土地権利 | 所有権 | 私道負担・道路 | 無、西4m幅(接道幅5.6m) | ||
| セットバック | - | リフォーム |
2025年9月完了 水回り設備交換:浴室 内装リフォーム:壁・床 ※年月は一番古いリフォーム箇所を表します | ||
| 取引態様 | 仲介 | 施工会社名 | - | ||
| 建築確認番号 | - | ||||
| その他費用 | - | ||||
| 販売スケジュール | - | ||||
| イベント情報 |
現地案内会(事前に必ずお問い合わせください) 日程/公開中 時間/10:00~19:00 見学の際は・・・ ◎お車でいらっしゃる場合 現地に直接ご来場される場合 現地はご来場のお客様が複数いらっしゃる場合があり 現地に車が止められない場合があります まずはお電話下さい お店にいらっしゃる場合 カーナビに「埼玉県和光市丸山台1-4-2」とご入力下さい ◎電車でいらっしゃる場合 現地最寄り駅又は弊社最寄り駅の和光市駅まで送迎致します ◆お子様連れのお客様も大歓迎! 店内ではキッズスペース設置しております ご案内車にはチャイルドシートをご用意しております ◆見学の際はお客様のご希望に合わせて3コース設けております 当日はデジカメやスマホでの写真撮影ももちろん可能です ご自宅でのご検討の際にお役立てください (1)さくっと現地見学コース(所要時間:30分程度) お忙しいお客様向けです 見学されたい物件の現地待ち合わせ現地解散になります (2)じっくり見学コース(所要時間:1~2時間程度) ご来店して頂きお客様のご希望に合わせた物件を全てご紹介させて頂きます(未公開 物件を含む) その中から見たい物件を選んで頂きご案内させて頂きます (3)トータルサポートコース(所要時間:2~4時間程度) ご来店して頂きローン相談と予算組の提案をさせて頂きます 物件の事だけでなく、住まいを購入した後の住宅ローンの支払いやお子様の進学の出 費など 生涯の資金のプラン表をご提示させて頂きます また、税金の事や住宅ローンを組んだ時のお得な保険も提案させて頂きます 上記全て無料対応で何度でもご利用頂けます 見学予約は 【0120-25-3300】(通話料無料)または固定電話からは【048-451-3329】 までお気軽にどうぞ♪ | ||||
| その他制限事項 | 高度地区、準防火地域 | ||||
| 備考 | 担当者:宮崎 伸一、設備:公営水道、本下水、オール電化、駐車場:カースペース | ||||
| 取引条件有効期限 | - | ||||
情報公開日:2026/01/22 次回更新予定日:2026/1/30
取り扱い不動産会社
- 住所
- 埼玉県和光市丸山台1-4-2
- 電話番号
- 0120-253300
- 営業時間
- 営業時間:10:00~19:00 / 定休日:毎週火曜・水曜日
- 免許番号
- 埼玉県知事(5)第020328号
- 会社概要
- <仲介>
埼玉県知事(5)第020328号
(公社)全日本不動産協会埼玉県本部会員 (公社)首都圏不動産公正取引協議会加盟
センチュリー21(株)東日本建設
〒351-0112 埼玉県和光市丸山台1-4-2
センチュリー21東日本建設
浮間舟渡駅の口コミ
お買い物・飲食
3.0
マンションや街自体はファミリー向けの閑静な感じですが、浮間舟渡駅前の飲食店はマック・モス・松屋・吉野家・ほっともっと・焼き鳥屋・居酒屋少し・・・と単身が喜びそうな店だらけでギャップがあります。ただ、そもそも数が非常に少ないのと、飲み歩いたりできるわけではなく中途半端。レストラン系もほとんどなく、生きていく分には足りますが、飲食店に関してはファミリー・単身どちらも大満足とはいかないと思います。
子育て・病院
4.0
内科 歯医者が近くにあるが 総合的な病院となると電車に 野って赤羽まで行かなければ ならないので少し不便を感じる
住宅ローンシミュレーション
住宅ローン設定
物件価格
返済期間
頭金
ボーナス払(年1回)
※
※物件価格の80%以下でお借入れの場合
※50歳以下で一般団信をご選択の場合
※住宅ローン金利優遇割適用後の変動金利(全期間引き下げプラン)
※実際のお借入日の金利により変動します。
※審査の結果によっては保証付金利プランとなる場合があり、この場合は上記とは異なる金利となります。
※別途借入金額の2.20%(税込)の事務手数料が発生します。
ボーナス払 | 35年間返済 | 30年間返済 | 25年間返済 | 20年間返済 | 15年間返済 | 10年間返済 |
|---|---|---|---|---|---|---|
0万円 | -円/月 | -円/月 | -円/月 | -円/月 | -円/月 | -円/月 |
5万円 | -円/月 | -円/月 | -円/月 | -円/月 | -円/月 | -円/月 |
10万円 | -円/月 | -円/月 | -円/月 | -円/月 | -円/月 | -円/月 |
15万円 | -円/月 | -円/月 | -円/月 | -円/月 | -円/月 | -円/月 |
20万円 | -円/月 | -円/月 | -円/月 | -円/月 | -円/月 | -円/月 |
25万円 | -円/月 | -円/月 | -円/月 | -円/月 | -円/月 | -円/月 |
30万円 | -円/月 | -円/月 | -円/月 | -円/月 | -円/月 | -円/月 |
ボーナス払 | 35年間返済 | 30年間返済 | 25年間返済 | 20年間返済 | 15年間返済 | 10年間返済 |
|---|---|---|---|---|---|---|
0万円 | -円/月 | -円/月 | -円/月 | -円/月 | -円/月 | -円/月 |
5万円 | -円/月 | -円/月 | -円/月 | -円/月 | -円/月 | -円/月 |
10万円 | -円/月 | -円/月 | -円/月 | -円/月 | -円/月 | -円/月 |
15万円 | -円/月 | -円/月 | -円/月 | -円/月 | -円/月 | -円/月 |
20万円 | -円/月 | -円/月 | -円/月 | -円/月 | -円/月 | -円/月 |
25万円 | -円/月 | -円/月 | -円/月 | -円/月 | -円/月 | -円/月 |
30万円 | -円/月 | -円/月 | -円/月 | -円/月 | -円/月 | -円/月 |
- ・金利は、今後35年間変動しない仮定のもと元利均等返済方式で計算しております。
- ・実際の金利は、各金融機関のホームページをご参照ください。
- ・ローン契約の際には、手数料や印紙税などの諸費用が別途かかります。
- ・ボーナス支払総額が総支払額の50%を超えている場合、上記の表では「ローン不可」となります。
- ・シミュレーションを利用し、それが原因で利用者が受けたいかなる損害についても当社は一切責任を負いません。あらかじめご了承ください。





















