マンションBrillia City西早稲田の詳細情報
1億1980万円
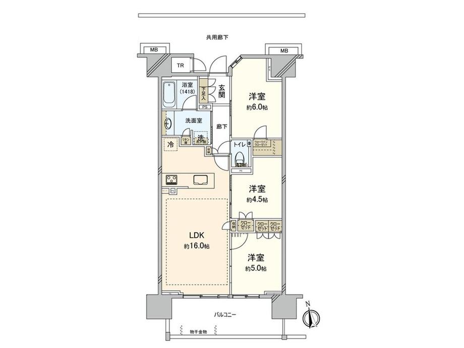
月々のローン返済額を試算■三井のリハウス■9階部分・南向きで眺望良好WIC等、全居室に収納有
物件概要
| 物件名 | Brillia City西早稲田 | ||||
|---|---|---|---|---|---|
| 所在地 | 東京都豊島区高田1 | ||||
| 交通 |
東京メトロ副都心線「雑司が谷」歩8分 東京メトロ東西線「高田馬場」歩13分 都電荒川線「面影橋」歩1分 | ||||
| 建物構造 | RC15階建 | 最多価格帯 | - | ||
| 販売戸数/総戸数 | 1戸/454戸 | 主要採光面 | 南 | ||
| 修繕積立金 | 5740円/月 | 修繕積立基金 | - | ||
| その他面積 | バルコニー面積:11.6㎡ | 土地権利 | 一般定期借地権(賃借権)、借地期間残存66年6ヶ月、借地権設定登記可、賃料改定は3年毎に改定、改定後賃料は事前協議により決定、借地権の譲渡・転貸可(転貸主承諾、承諾要、承諾料不要) | ||
| 借地期間 | 借地期間残存66年6ヶ月 | 借地料 | 8230円/月 | ||
| 敷金 | - | 保証金 | - | ||
| 入居時期 | 即引渡可 | 管理 | 2万1510円/月(委託(通勤)) | ||
| 駐車場 | 敷地内(2万9000円~3万4000円/月) | 用途地域 | 準工業 | ||
| リフォーム | - | 取引態様 | 仲介 | ||
| 施工会社名 | (株)長谷工コーポレーション | ||||
| その他費用 | 町会費:200円/月、インターネット定額料金:1353円/月、解体準備積立金:7590円/月、口座振替手数料:88円/月、地代:8230円/月 | ||||
| 販売スケジュール | - | ||||
| イベント情報 |
現地見学会(事前に必ずお問い合わせください) 日程/毎週土日祝 時間/11:00~17:00 ゆっくりと室内をご覧頂くために、現地見学会を開催いたします。 なお、現地にスタッフはおりませんので、前もってご希望の日時をご連絡ください。 また、表記日程以外でもご都合のよろしい日時をお知らせいただければ、ご内覧の手配をさせていただきます。 お気軽にお申し付け下さいませ。 ご連絡は、フリーコール:0120-313-720 三井のリハウス池袋センターまでご連絡下さい。 | ||||
| その他制限事項 | 専有面積には、トランクルーム面積1.05平米を含みます | ||||
| 備考 | 担当者:腰本 寛 | ||||
| 取引条件有効期限 | - | ||||
情報公開日:2025/12/16 次回更新予定日:情報提供より8日以内
取り扱い不動産会社
- 電話番号
- 00786-01793735
- 営業時間
- 営業時間:10時~18時 / 定休日:毎週水曜日
- 免許番号
- 国土交通大臣(15)第000777号
- 会社概要
- <仲介>
国土交通大臣(15)第000777号
(一社)不動産流通経営協会会員 (公社)首都圏不動産公正取引協議会加盟
三井のリハウス池袋センター三井不動産リアルティ(株)
〒171-0022 東京都豊島区南池袋1-19-6 オリックス池袋ビル3階
三井のリハウス池袋センター 三井不動産リアルティ(株)
雑司が谷駅の口コミ
お買い物・飲食
3.0
飲食店は安いお店はあまりなく、高いお店が多かった。もっと気軽に入れるお店があるとよかった。平日のランチは大学生が多く混んでいた。
子育て・病院
4.0
子育てには、近くに目白台公園などをはじめとした大きな公園があるため、良いほうだと思います。また病院もたくさんあります。
〓〓〓 追記 〓〓〓
近くには鬼子母神診療所があり、病気になったとき便利です。また、大きな公園が近くにあり、子育てには良いかと
東京都近隣の都道府県から中古マンションを探す
住宅ローンシミュレーション
住宅ローン設定
物件価格
返済期間
頭金
ボーナス払(年1回)
※
※物件価格の80%以下でお借入れの場合
※50歳以下で一般団信をご選択の場合
※住宅ローン金利優遇割適用後の変動金利(全期間引き下げプラン)
※実際のお借入日の金利により変動します。
※審査の結果によっては保証付金利プランとなる場合があり、この場合は上記とは異なる金利となります。
※別途借入金額の2.20%(税込)の事務手数料が発生します。
ボーナス払 | 35年間返済 | 30年間返済 | 25年間返済 | 20年間返済 | 15年間返済 | 10年間返済 |
|---|---|---|---|---|---|---|
0万円 | -円/月 | -円/月 | -円/月 | -円/月 | -円/月 | -円/月 |
5万円 | -円/月 | -円/月 | -円/月 | -円/月 | -円/月 | -円/月 |
10万円 | -円/月 | -円/月 | -円/月 | -円/月 | -円/月 | -円/月 |
15万円 | -円/月 | -円/月 | -円/月 | -円/月 | -円/月 | -円/月 |
20万円 | -円/月 | -円/月 | -円/月 | -円/月 | -円/月 | -円/月 |
25万円 | -円/月 | -円/月 | -円/月 | -円/月 | -円/月 | -円/月 |
30万円 | -円/月 | -円/月 | -円/月 | -円/月 | -円/月 | -円/月 |
ボーナス払 | 35年間返済 | 30年間返済 | 25年間返済 | 20年間返済 | 15年間返済 | 10年間返済 |
|---|---|---|---|---|---|---|
0万円 | -円/月 | -円/月 | -円/月 | -円/月 | -円/月 | -円/月 |
5万円 | -円/月 | -円/月 | -円/月 | -円/月 | -円/月 | -円/月 |
10万円 | -円/月 | -円/月 | -円/月 | -円/月 | -円/月 | -円/月 |
15万円 | -円/月 | -円/月 | -円/月 | -円/月 | -円/月 | -円/月 |
20万円 | -円/月 | -円/月 | -円/月 | -円/月 | -円/月 | -円/月 |
25万円 | -円/月 | -円/月 | -円/月 | -円/月 | -円/月 | -円/月 |
30万円 | -円/月 | -円/月 | -円/月 | -円/月 | -円/月 | -円/月 |
- ・金利は、今後35年間変動しない仮定のもと元利均等返済方式で計算しております。
- ・実際の金利は、各金融機関のホームページをご参照ください。
- ・ローン契約の際には、手数料や印紙税などの諸費用が別途かかります。
- ・ボーナス支払総額が総支払額の50%を超えている場合、上記の表では「ローン不可」となります。
- ・シミュレーションを利用し、それが原因で利用者が受けたいかなる損害についても当社は一切責任を負いません。あらかじめご了承ください。





















