NEW新築売戸建住宅石川県河北郡内灘町字大根布1丁目の新築売戸建住宅の詳細情報
この物件は未完成のため、掲載写真(外観、内観、設備等)には、施工例が含まれている場合があります。物件詳細については、掲載の不動産会社宛にお問合せください。
掲載期限まであと12日
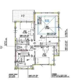
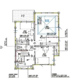
間取り・区画図(4枚)
物件概要
| 物件名 | 石川県河北郡内灘町字大根布1丁目の新築売戸建住宅 | ||||
|---|---|---|---|---|---|
| 所在地 | 石川県河北郡内灘町字大根布1丁目 | ||||
| 交通 |
北陸鉄道浅野川線 「内灘」駅 徒歩25分 | ||||
| 構造および階数 | 木造・2階建 | 建ぺい率・容積率 | 60.00%・200.00% | ||
| 完成予定日 | 2026年03月 | 入居可能予定日 | 2026年03月下旬(21日~末日)(予定) | ||
| 土地権利 | 所有権 | ||||
| 駐車場 | 有 (無料) | 国土法届出 | - | ||
| 私道負担・道路 | - | 道路付け | 南西 4.0m | ||
| 地目 | 宅地 | 都市計画 | 市街化区域 | ||
| 取引態様 | 専属専任媒介 | 用途地域 | 準工業 | ||
| 施工会社 | - | ||||
| 建築確認番号 | IKJC25-0589 | ||||
| 設備 | 給湯・収納スペース・追焚機能・フローリング・浴室乾燥機・Wクロゼット・照明器具・シャンプードレッサー・ウォシュレット・システムキッチン・カウンターキッチン・モニタ付インターホン・クロゼット・トイレ2ヶ所・IHクッキングヒータ・浄水器・食器洗浄乾燥機・複層ガラス・ディンプルキー・電気・上水道・下水道・側溝・省エネ給湯器 | ||||
| 備考 | 工法:内断熱(ウレタンフォーム吹付)・私道負担:なし・スーパー、小中学校、金融機関近し。駐車場軽四2台普通車2台の計4台駐車可能。隣家低地のため日当た良好。1階ランドリールーム、風呂場物干OK、2階納戸、クロゼット内物干竿設置等生活機能向上に配慮した住宅・仲介手数料:売買代金の3%+60,000円 | ||||
情報更新日:2026/02/14 次回更新予定日:情報更新日より14日以内
販売概要
| 販売価格 | 2,630万円 お問い合わせはこちら | ||||
|---|---|---|---|---|---|
| 販売戸数/総戸数 | -/- | ||||
| 最多価格帯 | - | ||||
| 間取り | 3SLDK | ||||
| 建物面積 | 102.58㎡ | 土地面積 | 132.23㎡ | ||
| その他施設費用、償却費 | - / - | ||||
| その他費用 | - | ||||
会社情報
| お問い合わせ先 |
(株)金沢わくわく不動産 076-255-0889 上記の電話番号にお問合せください。(携帯・PHS 可) 【物件番号】6989497384 | ||||
|---|---|---|---|---|---|
| 会社概要 |
(株)金沢わくわく不動産[石川県知事免許(2)第4241号] 石川県金沢市北安江1丁目14-5 【所属団体】 (公社)石川県宅地建物取引業協会、北陸不動産公正取引協議会 | ||||
この物件の地図・周辺環境
このアイコンは物件のおおよその位置を表しており、実際の場所と異なる場合がございます。詳しくは不動産会社に直接ご確認ください。
取り扱い不動産会社
- 電話番号
- 076-255-0889
- 営業時間
- 09:30~18:00
- 定休日
- 日曜日及び第二土曜日・年末年始・夏季休暇
- 物件番号
- 6989497384
掲載期限まであと12日
河北郡内灘町の駅から新築一戸建てを探す
河北郡内灘町近隣の町域から新築一戸建てを探す
住宅ローンシミュレーション
住宅ローン設定
物件価格
返済期間
頭金
ボーナス払(年1回)
※
※物件価格の80%以下でお借入れの場合
※50歳以下で一般団信をご選択の場合
※住宅ローン金利優遇割適用後の変動金利(全期間引き下げプラン)
※実際のお借入日の金利により変動します。
※審査の結果によっては保証付金利プランとなる場合があり、この場合は上記とは異なる金利となります。
※別途借入金額の2.20%(税込)の事務手数料が発生します。
ボーナス払 | 35年間返済 | 30年間返済 | 25年間返済 | 20年間返済 | 15年間返済 | 10年間返済 |
|---|---|---|---|---|---|---|
0万円 | -円/月 | -円/月 | -円/月 | -円/月 | -円/月 | -円/月 |
5万円 | -円/月 | -円/月 | -円/月 | -円/月 | -円/月 | -円/月 |
10万円 | -円/月 | -円/月 | -円/月 | -円/月 | -円/月 | -円/月 |
15万円 | -円/月 | -円/月 | -円/月 | -円/月 | -円/月 | -円/月 |
20万円 | -円/月 | -円/月 | -円/月 | -円/月 | -円/月 | -円/月 |
25万円 | -円/月 | -円/月 | -円/月 | -円/月 | -円/月 | -円/月 |
30万円 | -円/月 | -円/月 | -円/月 | -円/月 | -円/月 | -円/月 |
ボーナス払 | 35年間返済 | 30年間返済 | 25年間返済 | 20年間返済 | 15年間返済 | 10年間返済 |
|---|---|---|---|---|---|---|
0万円 | -円/月 | -円/月 | -円/月 | -円/月 | -円/月 | -円/月 |
5万円 | -円/月 | -円/月 | -円/月 | -円/月 | -円/月 | -円/月 |
10万円 | -円/月 | -円/月 | -円/月 | -円/月 | -円/月 | -円/月 |
15万円 | -円/月 | -円/月 | -円/月 | -円/月 | -円/月 | -円/月 |
20万円 | -円/月 | -円/月 | -円/月 | -円/月 | -円/月 | -円/月 |
25万円 | -円/月 | -円/月 | -円/月 | -円/月 | -円/月 | -円/月 |
30万円 | -円/月 | -円/月 | -円/月 | -円/月 | -円/月 | -円/月 |
- ・金利は、今後35年間変動しない仮定のもと元利均等返済方式で計算しております。
- ・実際の金利は、各金融機関のホームページをご参照ください。
- ・ローン契約の際には、手数料や印紙税などの諸費用が別途かかります。
- ・ボーナス支払総額が総支払額の50%を超えている場合、上記の表では「ローン不可」となります。
- ・シミュレーションを利用し、それが原因で利用者が受けたいかなる損害についても当社は一切責任を負いません。あらかじめご了承ください。













