NEW新築売戸建住宅宮城県仙台市若林区文化町の新築売戸建住宅の詳細情報
この物件は未完成のため、掲載写真(外観、内観、設備等)には、施工例が含まれている場合があります。物件詳細については、掲載の不動産会社宛にお問合せください。
掲載期限まであと13日
外観・室内・設備(1枚)
物件概要
| 物件名 | 宮城県仙台市若林区文化町の新築売戸建住宅 | ||||
|---|---|---|---|---|---|
| 所在地 | 宮城県仙台市若林区文化町 | ||||
| 交通 |
仙台市営地下鉄南北線 「河原町」駅 徒歩14分 | ||||
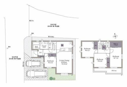
| 構造および階数 | 木造・2階建 | 建ぺい率・容積率 | 60.00%・200.00% | ||
| 完成予定日 | 2026年02月 | 入居可能予定日 | - | ||
| 土地権利 | 所有権 | ||||
| 駐車場 | 有 (無料) | 国土法届出 | - | ||
| 私道負担・道路 | - | 道路付け | 南西 4.0m 公道 接面9.1m北東 6.7m 公道 接面10.8m | ||
| 地目 | 宅地 | 都市計画 | 市街化区域 | ||
| 取引態様 | 専任媒介 | 用途地域 | 2種住居 | ||
| 施工会社 | - | ||||
| 建築確認番号 | HPA-25-11274-1 | ||||
| 設備 | 収納スペース・都市ガス・Wクロゼット・ウォシュレット・システムキッチン・カウンターキッチン・上水道・下水道 | ||||
| 備考 | 川沿いの桜並木がきれいな文化町の貴重な角地です。2月中旬完成予定!河原町駅徒歩圏内、車2台駐車可!・私道負担:なし・こだわりポイント満載の仙台市若林区文化町新築戸建。河原町商店街は毎月のようにイベントがあり賑やかで楽しい地域です。地下鉄河原町駅徒歩圏内です。広々とした15帖以上のLDKのおかげで、日々の生活にゆとりが出 | ||||
情報更新日:2025/12/01 次回更新予定日:情報更新日より14日以内
販売概要
| 販売価格 | 4,890万円 お問い合わせはこちら | ||||
|---|---|---|---|---|---|
| 販売戸数/総戸数 | -/- | ||||
| 最多価格帯 | - | ||||
| 間取り | 4LDK | ||||
| 建物面積 | 97.71㎡ | 土地面積 | 109.80㎡ | ||
| その他施設費用、償却費 | - / - | ||||
| その他費用 | - | ||||
会社情報
| お問い合わせ先 |
(株)TERASS TERASS HOKKAIDO 011-839-9594 上記の電話番号にお問合せください。(携帯・PHS 可) 【物件番号】1150877114 | ||||
|---|---|---|---|---|---|
| 会社概要 |
(株)TERASS TERASS HOKKAIDO[国土交通大臣免許(1)第10125号] 北海道札幌市中央区南三条西1丁目8番10号CONNECT SAPPORO4階 【所属団体】 (公社)北海道宅地建物取引業協会、(一社)北海道不動産公正取引協議会 | ||||
この物件の地図・周辺環境
このアイコンは物件のおおよその位置を表しており、実際の場所と異なる場合がございます。詳しくは不動産会社に直接ご確認ください。
取り扱い不動産会社
- 電話番号
- 011-839-9594
- 定休日
- 年中無休・年末年始、夏季休暇
- 物件番号
- 1150877114
掲載期限まであと13日
河原町駅の口コミ
お買い物・飲食
5.0
気になる点は特にありません。昔ながらの商店街です。でもだんだん店が少なくなってきてはいると思います。
お買い物・飲食
4.0
近所にスーパーやコンビニが充実している。ただし基本は住宅街のため飲食店は少なめ。仙台駅で買い物して帰るのが吉。
住宅ローンシミュレーション
住宅ローン設定
物件価格
返済期間
頭金
ボーナス払(年1回)
※
※物件価格の80%以下でお借入れの場合
※50歳以下で一般団信をご選択の場合
※住宅ローン金利優遇割適用後の変動金利(全期間引き下げプラン)
※実際のお借入日の金利により変動します。
※審査の結果によっては保証付金利プランとなる場合があり、この場合は上記とは異なる金利となります。
※別途借入金額の2.20%(税込)の事務手数料が発生します。
ボーナス払 | 35年間返済 | 30年間返済 | 25年間返済 | 20年間返済 | 15年間返済 | 10年間返済 |
|---|---|---|---|---|---|---|
0万円 | -円/月 | -円/月 | -円/月 | -円/月 | -円/月 | -円/月 |
5万円 | -円/月 | -円/月 | -円/月 | -円/月 | -円/月 | -円/月 |
10万円 | -円/月 | -円/月 | -円/月 | -円/月 | -円/月 | -円/月 |
15万円 | -円/月 | -円/月 | -円/月 | -円/月 | -円/月 | -円/月 |
20万円 | -円/月 | -円/月 | -円/月 | -円/月 | -円/月 | -円/月 |
25万円 | -円/月 | -円/月 | -円/月 | -円/月 | -円/月 | -円/月 |
30万円 | -円/月 | -円/月 | -円/月 | -円/月 | -円/月 | -円/月 |
ボーナス払 | 35年間返済 | 30年間返済 | 25年間返済 | 20年間返済 | 15年間返済 | 10年間返済 |
|---|---|---|---|---|---|---|
0万円 | -円/月 | -円/月 | -円/月 | -円/月 | -円/月 | -円/月 |
5万円 | -円/月 | -円/月 | -円/月 | -円/月 | -円/月 | -円/月 |
10万円 | -円/月 | -円/月 | -円/月 | -円/月 | -円/月 | -円/月 |
15万円 | -円/月 | -円/月 | -円/月 | -円/月 | -円/月 | -円/月 |
20万円 | -円/月 | -円/月 | -円/月 | -円/月 | -円/月 | -円/月 |
25万円 | -円/月 | -円/月 | -円/月 | -円/月 | -円/月 | -円/月 |
30万円 | -円/月 | -円/月 | -円/月 | -円/月 | -円/月 | -円/月 |
- ・金利は、今後35年間変動しない仮定のもと元利均等返済方式で計算しております。
- ・実際の金利は、各金融機関のホームページをご参照ください。
- ・ローン契約の際には、手数料や印紙税などの諸費用が別途かかります。
- ・ボーナス支払総額が総支払額の50%を超えている場合、上記の表では「ローン不可」となります。
- ・シミュレーションを利用し、それが原因で利用者が受けたいかなる損害についても当社は一切責任を負いません。あらかじめご了承ください。





