一戸建てCradle garden 足立区六木第16の詳細情報
4390万円
月々のローン返済額を試算【本日ご見学できます♪】太陽光発電搭載物件♪コンビニ・スーパー徒歩5分内!
外観・室内・設備(29枚)

【省エネ性能ラベル】
こちらの物件はZEH水準を満たした、省エネ性能に優れた物件です。 光熱費を抑えて暮らすことができるだけでなく、「熱の入りにくさ・逃げにくさ」という観点でも影響を受けにくい建物のため、長く快適にお過ごしいただけます♪

【太陽光発電】
電気料金の節約に繋がるだけでなく、夏場は屋根の直射日光による温度上昇を抑制することで室内が涼しくなります♪※別途東京ガス(株)との間でサービス利用契約を締結いただきます。(契約期間:10年 月額料助成金交付時0円 )

耐震+制震の家、「QUIE(クワイエ)」
地震の揺れに耐える「耐震性能」と、揺れを抑えて住宅へのダメージを軽減する「制震性能」を兼ね備えた建売住宅ブランド「QUIE」 。ふたつの備えで、お客様の家を守ります。
その他(4枚)
物件概要
| 物件名 | Cradle garden 足立区六木第16 | ||||
|---|---|---|---|---|---|
| 所在地 | 東京都足立区六木4 | ||||
| 交通 |
つくばエクスプレス「八潮」歩22分 つくばエクスプレス「六町」歩30分 東京メトロ千代田線「北綾瀬」車2.7km | ||||
| 構造および階数 | 木造2階建 | 建ぺい率・容積率 | 建ぺい率 50(60)% 容積率 150% | ||
| 完成予定日 | 2025年9月 | 入居可能予定日 | 即引渡可 | ||
| 土地権利 | 所有権 | ||||
| 駐車場 | - | 国土法届出 | - | ||
| 地目 | 宅地 | 道路付け | 道路幅:4.5m、アスファルト舗装、南側約4.5m私道 | ||
| 機構融資 | フラット35Sベーシック | 取引態様 | 仲介 | ||
| 用途地域 | 1種低層 | ||||
| 施工会社 | - | ||||
| 建築確認番号 | - | ||||
| 設備 | 設計住宅性能評価書 / 建設住宅性能評価書(新築時) / フラット35・S適合証明書 / 省エネルギー対策 / フラット35Sに対応 / 太陽光発電システム / 地盤調査済 / 即引渡可 / 省エネ給湯器 / スーパー 徒歩10分以内 / 市街地が近い / 南向き / システムキッチン / 浴室乾燥機 / 陽当り良好 / 全居室収納 / 駅まで平坦 / 南側道路面す / 閑静な住宅地 / LDK15畳以上 / 整形地 / シャワー付洗面化粧台 / 対面式キッチン / 3面採光 / バリアフリー / トイレ2ヶ所 / 浴室1坪以上 / 2階建 / 複層ガラス / オートバス / 温水洗浄便座 / 床下収納 / 浴室に窓 / TVモニタ付インターホン / 節水型トイレ / 都市近郊 / 通風良好 / 全居室フローリング / 全居室複層ガラスか複層サッシ / 都市ガス / 全室2面採光 / 小学校 徒歩10分以内 / 納戸 / 浄水器 | ||||
| その他制限事項 | 景観法による規制有、高度地区、準防火地域、高さ最低限度有、日影制限有、道路斜線制限 北側斜線制限 足立区東部土地区画整理事業(土地区画整理事業を施工すべき区域) 足立東部地域神明地区地区計画 | ||||
| 備考 | 景観法による規制有、高度地区、準防火地域、高さ最低限度有、日影制限有、道路斜線制限 北側斜線制限 足立区東部土地区画整理事業(土地区画整理事業を施工すべき区域) 足立東部地域神明地区地区計画 / 担当者:東 昴希、設備:東京電力、公営水道、公共下水、都市ガス | ||||
情報更新日:2025/11/16 次回更新予定日:情報提供より8日以内
販売概要
| 販売価格 | 4390万円 お問い合わせはこちら | ||||
|---|---|---|---|---|---|
| 販売スケジュール | ◆◇◆◇◆◇◆◇◆◇◆◇◆◇◆◇◆◇◆◇◆◇◆ ●○本日、ご見学できます!○● ※今すぐ見たい!もちろん大歓迎です♪ 0120-957-883までお電話ください! ●○キッズコーナーございます○● ●○女性スタッフ在籍店舗です○● ●○チャイルドシートご用意有○● ●○無料提携駐車場ございます○● ●○ご自宅まで送迎いたします○● ●○毎週土日お菓子つかみ取り○●好評分譲中につき、先着順受付中!ご見学の際は、必ず事前に弊社スタッフまでお問い合わせください。飯田グループホールディングス唯一の販売専門会社の社員が当物件をご案内させて頂きます!◆◇◆◇◆◇◆◇◆◇◆◇◆◇◆◇◆◇◆◇◆◇◆ | ||||
| 販売戸数/総戸数 | 1戸/1戸 | ||||
| 最多価格帯 | - | ||||
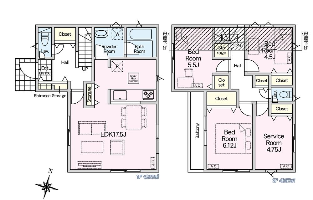
| 間取り | 3LDK+S(納戸) | ||||
| 建物面積 | 93.14㎡ | 土地面積 | 83.35㎡ | ||
| その他施設費用、償却費 | - | ||||
| その他費用 | - | ||||
| 登録受付 | - | 抽選日 | - | ||
| モデルルーム情報 | ~~~~~◇◆ 現地見学ツアー開催!◆◇~~~~~ (事前に必ずお問い合わせください)▽貴重なお時間の中でご希望の情報をご提供します▽ 【内容(所要時間)】(1) さくっと見学コース (30分~)(2) じっくり見学コース (60分~)(3) 納得見学コース (90分~)(4) まずは住宅ローン相談 (30分~)※ファイナンシャルプランナーによる無料相談も開催【資料請求(無料)】【電話で問い合わせ(無料)】から、お日にち・時間帯のご指定が可能です!平日やお仕事前・後のご見学もお待ちしております♪◇◆◇◆◇◆◇◆◇◆◇◆◇◆◇◆◇◆◇◆◇◆◇◆ | ||||
| 取引条件有効期限 | 2026年3月31日 | ||||
会社情報
| お問い合わせ先 |
飯田グループホールディングス ホームトレードセンター(株)亀有店 0120-957883(無料通話) 上記の電話番号にお問合せください。(携帯・PHS 可) 【物件番号】78680036 | ||||
|---|---|---|---|---|---|
| 会社概要 |
飯田グループホールディングス ホームトレードセンター(株)亀有店[国土交通大臣(3)第008044号] 東京都葛飾区亀有1-28-8-1階 【所属団体】 国土交通大臣(3)第008044号(公社)東京都宅地建物取引業協会会員 (公社)首都圏不動産公正取引協議会加盟 | ||||
取り扱い不動産会社
飯田グループホールディングス ホームトレードセンター(株)亀有店
- 電話番号
- 0120-957883
- 受付
- 営業時間:9時~20時 / 定休日:水曜日、年末年始休暇
- 物件番号
- 78680036
株式会社家どっと葛飾
株式会社東宝ハウス城東
三敬商事(株)
(株)ハウスプラザ本店
(株)家どっと足立
ENISIYA(株)城東エリア店
(株)アリクホーム
ENISIYA(株)
(株)はっぴぃほーむ
(株)ランドテクノ
株式会社スマートベース
株式会社タカラレーベンリアルネット 北千住センター
株式会社ハウスネットパートナー
株式会社ハウスネットパートナー 川口本店
株式会社ウィル 北千住営業所
(株)ハウスプラザ 本店
(株)ハウスメイトショップ 北千住店
センチュリー21アイリンクス
(株)ウィル ウィル不動産販売 北千住営業所
住宅ローンシミュレーション
住宅ローン設定
物件価格
返済期間
頭金
ボーナス払(年1回)
※
※物件価格の80%以下でお借入れの場合
※50歳以下で一般団信をご選択の場合
※住宅ローン金利優遇割適用後の変動金利(全期間引き下げプラン)
※実際のお借入日の金利により変動します。
※審査の結果によっては保証付金利プランとなる場合があり、この場合は上記とは異なる金利となります。
※別途借入金額の2.20%(税込)の事務手数料が発生します。
ボーナス払 | 35年間返済 | 30年間返済 | 25年間返済 | 20年間返済 | 15年間返済 | 10年間返済 |
|---|---|---|---|---|---|---|
0万円 | -円/月 | -円/月 | -円/月 | -円/月 | -円/月 | -円/月 |
5万円 | -円/月 | -円/月 | -円/月 | -円/月 | -円/月 | -円/月 |
10万円 | -円/月 | -円/月 | -円/月 | -円/月 | -円/月 | -円/月 |
15万円 | -円/月 | -円/月 | -円/月 | -円/月 | -円/月 | -円/月 |
20万円 | -円/月 | -円/月 | -円/月 | -円/月 | -円/月 | -円/月 |
25万円 | -円/月 | -円/月 | -円/月 | -円/月 | -円/月 | -円/月 |
30万円 | -円/月 | -円/月 | -円/月 | -円/月 | -円/月 | -円/月 |
ボーナス払 | 35年間返済 | 30年間返済 | 25年間返済 | 20年間返済 | 15年間返済 | 10年間返済 |
|---|---|---|---|---|---|---|
0万円 | -円/月 | -円/月 | -円/月 | -円/月 | -円/月 | -円/月 |
5万円 | -円/月 | -円/月 | -円/月 | -円/月 | -円/月 | -円/月 |
10万円 | -円/月 | -円/月 | -円/月 | -円/月 | -円/月 | -円/月 |
15万円 | -円/月 | -円/月 | -円/月 | -円/月 | -円/月 | -円/月 |
20万円 | -円/月 | -円/月 | -円/月 | -円/月 | -円/月 | -円/月 |
25万円 | -円/月 | -円/月 | -円/月 | -円/月 | -円/月 | -円/月 |
30万円 | -円/月 | -円/月 | -円/月 | -円/月 | -円/月 | -円/月 |
- ・金利は、今後35年間変動しない仮定のもと元利均等返済方式で計算しております。
- ・実際の金利は、各金融機関のホームページをご参照ください。
- ・ローン契約の際には、手数料や印紙税などの諸費用が別途かかります。
- ・ボーナス支払総額が総支払額の50%を超えている場合、上記の表では「ローン不可」となります。
- ・シミュレーションを利用し、それが原因で利用者が受けたいかなる損害についても当社は一切責任を負いません。あらかじめご了承ください。
※価格は物件の代金総額を表示しており、消費税が課税される場合は税込み価格です。 (1000円未満は切り上げ。)
※写真に写っている、またはパース(絵)や間取り図に描かれている家具や車などは、特にコメントがない場合、販売価格に含まれません。
※敷地権利が定期借地権のものは価格に権利金を含みます。
※建築条件付き土地価格には、建物価格は含まれません。
※物件情報は、原則として情報提供日の2日前に最終確認した情報です。
※完成予想図はいずれも外構、植栽、外観等実際のものとは多少異なることがあります。
※モデルルーム・モデルハウス・展示場・ショールームの画像の場合、今回販売の物件と異なる場合があります。
※CG合成の画像の場合、実際とは多少異なる場合があります。
※物件特徴:販売戸数が複数の物件は、全ての住戸に該当しない項目もあります。
※0800で始まる電話番号は通話料無料です。また、サービス検証のため当該番号の利用履歴を個人が特定できない範囲で取得しています。予めご了承ください。
※完成後1年以上を経過した未入居物件が掲載される場合があります。ご了承ください。
※新着:物件情報が「SUUMO」に掲載された日から1週間表示されます。
※価格更新:物件価格が変更された日から1週間表示されます。
※販売予定物件はすべて、販売開始するまで契約または予約の申込みはできません。
※購入の前には物件内容や契約条件についてご自身で十分な確認をしていただくようにお願いいたします。
※建築条件土地の情報内に掲載されている、建物プラン例は、土地購入者の設計プランの参考の一例であって、プランの採用可否は任意です。
※土地(建築条件なし)で「建物プラン例」が表記してある時、そのプラン例は特定の建築請負会社によるもので、当該建築請負会社以外で建てた場合、同様のものが同価格で建てられるとは限りません。また建築請負会社を特定するものではありません。
※建築条件付き土地とは、その土地に建築する建物の建築請負契約が、一定期間内に成立することを条件として売買される土地のことをいいます。建築請負契約成立に向けて設計プランを協議するため、土地購入者が自己の希望する建物の設計協議をするために必要な相当の期間の交渉期間が設定され、その期間内で希望を満たすプランが実現できたかどうかにより結論を出します。なお、この期間は概ね3ヶ月程度とされています。納得のいくプランが出来ず、建築請負契約が成立しない場合、土地売買契約は白紙に戻り、土地契約にかかった代金(土地代金、手付金など)は名目のいかんに関わらず、全て返却されます。
































