一戸建て◆オープンハウスグループ物件◆町屋3丁目/複数路線利用可能な駅まで徒歩6分の好立地!の詳細情報
5080万円
月々のローン返済額を試算この物件は未完成のため、掲載写真(外観、内観、設備等)には、施工例が含まれている場合があります。物件詳細については、掲載の不動産会社宛にお問合せください。
■3面採光の明るいリビング20帖超×ルーフバルコニー付き■
外観・室内・設備(8枚)
周辺環境・アクセス(9枚)
物件概要
| 物件名 | ◆オープンハウスグループ物件◆町屋3丁目/複数路線利用可能な駅まで徒歩6分の好立地! | ||||
|---|---|---|---|---|---|
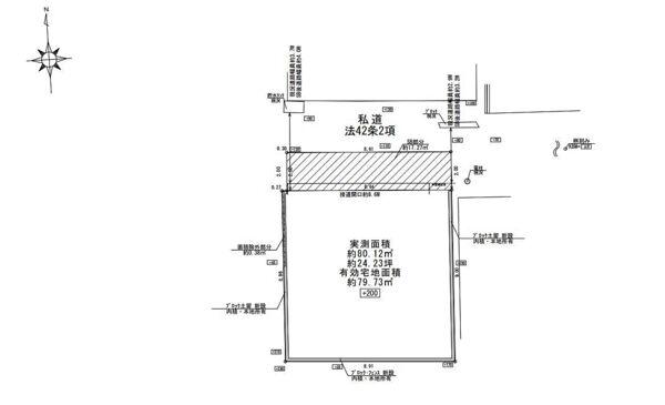
| 所在地 | 東京都荒川区町屋3 | ||||
| 交通 |
東京メトロ千代田線「町屋」歩6分 都電荒川線「町屋駅前」歩6分 京成本線「町屋」歩8分 | ||||
| 構造および階数 | 木造 地上2階 | 建ぺい率・容積率 | 80% 240% | ||
| 完成予定日 | 2026年1月予定 | 入居可能予定日 | 2026年2月予定 | ||
| 土地権利 | 賃借権(旧) | ||||
| 借地権の種類・期間 | 賃借権(旧)、借地期間20年 | 借地権の月賃料 | 借地権賃料(月):地代25000円/月 | ||
| 駐車場 | - | 国土法届出 | - | ||
| 地目 | 宅地 | 道路付け | 私道部分17.27m2 | ||
| 機構融資 | - | 取引態様 | 仲介 | ||
| 用途地域 | 準工業 | ||||
| 施工会社 | - | ||||
| 建築確認番号 | 第KBI-SGM25-10-2564号 | ||||
| 設備 | 2沿線以上利用可 / LDK18畳以上 / 年度内引渡可 / スーパー 徒歩10分以内 / システムキッチン / 浴室乾燥機 / LDK15畳以上 / 整形地 / シャワー付洗面化粧台 / 対面式キッチン / トイレ2ヶ所 / 浴室1坪以上 / 2階建 / 複層ガラス / 温水洗浄便座 / TVモニタ付インターホン / 都市ガス / ルーフバルコニー / 納戸 / 食器洗乾燥機 / 浄水器 | ||||
| その他制限事項 | 景観法による規制有、宅地造成工事規制区域、駐輪場等10.25m2含 新防火地域 町屋二・三・四丁目地区地区計画 | ||||
| 備考 | 景観法による規制有、宅地造成工事規制区域、駐輪場等10.25m2含 新防火地域 町屋二・三・四丁目地区地区計画 / 担当者:担当者制、設備:都市ガス/公共水道/公共下水、建築確認番号:第KBI-SGM25-10-2564号、鏡付シューズボックス 網戸 | ||||
情報更新日:2025/11/13 次回更新予定日:情報提供より8日以内
販売概要
| 販売価格 | 5080万円 お問い合わせはこちら | ||||
|---|---|---|---|---|---|
| 販売スケジュール | - | ||||
| 販売戸数/総戸数 | 1戸/1戸 | ||||
| 最多価格帯 | - | ||||
| 間取り | 3LDK+S(納戸) | ||||
| 建物面積 | 107.95㎡ | 土地面積 | 80.12㎡ | ||
| その他施設費用、償却費 | - | ||||
| その他費用 | 借地権賃料(月):地代25000円/月 | ||||
| 登録受付 | - | 抽選日 | - | ||
| モデルルーム情報 | ~現地案内会 開催中~【公開中】お客様のご都合に合わせてご案内いたします♪(事前に必ずお問い合わせください)◆「ピンポイントで知りたい」という方向けに、短時間でのご案内も大歓迎です。詳しい資料やパンフレットも多数ご用意しています。もしご覧になった物件がイメージと違ってもご安心ください。お客様の希望条件を教えていただければ、ぴったりな物件を全力でお探しします。お車での送迎も承っていますので、どうぞお気軽にご利用くださいね♪◆「物件購入って、いくらかかるの?」「いくらくらいの物件が買えるの?」など、住宅ローンに関するご相談だけでもOKです。専門スタッフが丁寧にご案内しますので、お気軽にお問い合わせください♪--------------------------------------------------------~ご自宅でお気軽に【オンライン相談】も実施中~◆「外出は不安…」「小さなお子さんがいて家を空けられない」など、様々な理由でご来店が難しい方もご安心ください。オンライン通話でのご案内も承っています◎◆物件の詳細説明はもちろん、資金計画や物件探しの注意点まで、現地でご説明するのと変わらない充実した内容でご対応します。忙しくて時間が取れない方や物件選びで迷っている方にも、オンライン相談は特におすすめです♪お問い合わせは、資料請求ボタン(メール)またはお電話にて、お気軽にどうぞ! | ||||
| 取引条件有効期限 | 2025年11月20日 | ||||
会社情報
| お問い合わせ先 |
(株)メルディアリアルティ足立支店 0120-519133(無料通話) 上記の電話番号にお問合せください。(携帯・PHS 可) 【物件番号】77923305 | ||||
|---|---|---|---|---|---|
| 会社概要 |
(株)メルディアリアルティ足立支店[国土交通大臣(2)第009319号] 東京都足立区西新井栄町1-18ー33 レコシティ・グランデ1階A 【所属団体】 国土交通大臣(2)第009319号(公社)全日本不動産協会東京都本部会員 (公社)首都圏不動産公正取引協議会加盟 | ||||
取り扱い不動産会社
- 電話番号
- 0120-519133
- 受付
- 営業時間:9:00~21:00 / 定休日:水曜日
- 物件番号
- 77923305
株式会社オープンハウス
オープンハウス 北千住営業センター
町屋駅の口コミ
子育て・病院
4.0
町屋駅前はゴチャゴチャした下町ならでわの雰囲気あります。お年寄りも多く子供に声をかけてくれたりします。自転車が多いのでよちよち歩きの頃は危なかったですね。
子育て・病院
3.0
駅の周りに病院が多く、急病の際にも困ることはないのではないだろうか。評判の良い医者も多くいざという時は頼りになる。
住宅ローンシミュレーション
住宅ローン設定
物件価格
返済期間
頭金
ボーナス払(年1回)
※
※物件価格の80%以下でお借入れの場合
※50歳以下で一般団信をご選択の場合
※住宅ローン金利優遇割適用後の変動金利(全期間引き下げプラン)
※実際のお借入日の金利により変動します。
※審査の結果によっては保証付金利プランとなる場合があり、この場合は上記とは異なる金利となります。
※別途借入金額の2.20%(税込)の事務手数料が発生します。
ボーナス払 | 35年間返済 | 30年間返済 | 25年間返済 | 20年間返済 | 15年間返済 | 10年間返済 |
|---|---|---|---|---|---|---|
0万円 | -円/月 | -円/月 | -円/月 | -円/月 | -円/月 | -円/月 |
5万円 | -円/月 | -円/月 | -円/月 | -円/月 | -円/月 | -円/月 |
10万円 | -円/月 | -円/月 | -円/月 | -円/月 | -円/月 | -円/月 |
15万円 | -円/月 | -円/月 | -円/月 | -円/月 | -円/月 | -円/月 |
20万円 | -円/月 | -円/月 | -円/月 | -円/月 | -円/月 | -円/月 |
25万円 | -円/月 | -円/月 | -円/月 | -円/月 | -円/月 | -円/月 |
30万円 | -円/月 | -円/月 | -円/月 | -円/月 | -円/月 | -円/月 |
ボーナス払 | 35年間返済 | 30年間返済 | 25年間返済 | 20年間返済 | 15年間返済 | 10年間返済 |
|---|---|---|---|---|---|---|
0万円 | -円/月 | -円/月 | -円/月 | -円/月 | -円/月 | -円/月 |
5万円 | -円/月 | -円/月 | -円/月 | -円/月 | -円/月 | -円/月 |
10万円 | -円/月 | -円/月 | -円/月 | -円/月 | -円/月 | -円/月 |
15万円 | -円/月 | -円/月 | -円/月 | -円/月 | -円/月 | -円/月 |
20万円 | -円/月 | -円/月 | -円/月 | -円/月 | -円/月 | -円/月 |
25万円 | -円/月 | -円/月 | -円/月 | -円/月 | -円/月 | -円/月 |
30万円 | -円/月 | -円/月 | -円/月 | -円/月 | -円/月 | -円/月 |
- ・金利は、今後35年間変動しない仮定のもと元利均等返済方式で計算しております。
- ・実際の金利は、各金融機関のホームページをご参照ください。
- ・ローン契約の際には、手数料や印紙税などの諸費用が別途かかります。
- ・ボーナス支払総額が総支払額の50%を超えている場合、上記の表では「ローン不可」となります。
- ・シミュレーションを利用し、それが原因で利用者が受けたいかなる損害についても当社は一切責任を負いません。あらかじめご了承ください。
※価格は物件の代金総額を表示しており、消費税が課税される場合は税込み価格です。 (1000円未満は切り上げ。)
※写真に写っている、またはパース(絵)や間取り図に描かれている家具や車などは、特にコメントがない場合、販売価格に含まれません。
※敷地権利が定期借地権のものは価格に権利金を含みます。
※建築条件付き土地価格には、建物価格は含まれません。
※物件情報は、原則として情報提供日の2日前に最終確認した情報です。
※完成予想図はいずれも外構、植栽、外観等実際のものとは多少異なることがあります。
※モデルルーム・モデルハウス・展示場・ショールームの画像の場合、今回販売の物件と異なる場合があります。
※CG合成の画像の場合、実際とは多少異なる場合があります。
※物件特徴:販売戸数が複数の物件は、全ての住戸に該当しない項目もあります。
※0800で始まる電話番号は通話料無料です。また、サービス検証のため当該番号の利用履歴を個人が特定できない範囲で取得しています。予めご了承ください。
※完成後1年以上を経過した未入居物件が掲載される場合があります。ご了承ください。
※新着:物件情報が「SUUMO」に掲載された日から1週間表示されます。
※価格更新:物件価格が変更された日から1週間表示されます。
※販売予定物件はすべて、販売開始するまで契約または予約の申込みはできません。
※購入の前には物件内容や契約条件についてご自身で十分な確認をしていただくようにお願いいたします。
※建築条件土地の情報内に掲載されている、建物プラン例は、土地購入者の設計プランの参考の一例であって、プランの採用可否は任意です。
※土地(建築条件なし)で「建物プラン例」が表記してある時、そのプラン例は特定の建築請負会社によるもので、当該建築請負会社以外で建てた場合、同様のものが同価格で建てられるとは限りません。また建築請負会社を特定するものではありません。
※建築条件付き土地とは、その土地に建築する建物の建築請負契約が、一定期間内に成立することを条件として売買される土地のことをいいます。建築請負契約成立に向けて設計プランを協議するため、土地購入者が自己の希望する建物の設計協議をするために必要な相当の期間の交渉期間が設定され、その期間内で希望を満たすプランが実現できたかどうかにより結論を出します。なお、この期間は概ね3ヶ月程度とされています。納得のいくプランが出来ず、建築請負契約が成立しない場合、土地売買契約は白紙に戻り、土地契約にかかった代金(土地代金、手付金など)は名目のいかんに関わらず、全て返却されます。





















