新築売戸建住宅東京都国分寺市内藤1丁目の新築売戸建住宅の詳細情報
この物件は未完成のため、掲載写真(外観、内観、設備等)には、施工例が含まれている場合があります。物件詳細については、掲載の不動産会社宛にお問合せください。
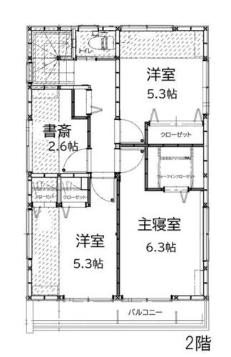
外観・室内・設備(5枚)
物件概要
| 物件名 | 東京都国分寺市内藤1丁目の新築売戸建住宅 | ||||
|---|---|---|---|---|---|
| 所在地 | 東京都国分寺市内藤1丁目 | ||||
| 交通 |
JR中央本線 「西国分寺」駅 徒歩13分 JR武蔵野線 「西国分寺」駅 徒歩13分 | ||||
| 構造および階数 | 木造・2階建 | 建ぺい率・容積率 | 40.00%・80.00% | ||
| 完成予定日 | 2026年04月 | 入居可能予定日 | 2026年03月下旬(21日~末日)(予定) | ||
| 土地権利 | 所有権 | ||||
| 駐車場 | 無 | 国土法届出 | - | ||
| 私道負担・道路 | 備考に記載 | 道路付け | 南西 4.0m 私道 接面7.3m | ||
| 地目 | 宅地 | 都市計画 | 市街化区域 | ||
| 取引態様 | 媒介 | 用途地域 | 1種低層 | ||
| 施工会社 | - | ||||
| 建築確認番号 | 第25UDI1S建03176号 | ||||
| 設備 | - | ||||
| 備考 | 告知事項あり・セットバック:済・私道負担:あり29.52平米・注文住宅ハウスメーカーのAQ Group(アキュラホーム)の分譲戸建て。・仲介手数料:売買代金の3%+60,000円 | ||||
情報更新日:2025/12/01 次回更新予定日:情報更新日より14日以内
販売概要
| 販売価格 | 6,980万円 お問い合わせはこちら | ||||
|---|---|---|---|---|---|
| 販売戸数/総戸数 | -/- | ||||
| 最多価格帯 | - | ||||
| 間取り | 4LDK | ||||
| 建物面積 | 91.08㎡ | 土地面積 | 114.52㎡ | ||
| その他施設費用、償却費 | - / - | ||||
| その他費用 | - | ||||
会社情報
| お問い合わせ先 |
(株)イナ・エステート 03-3997-3907 上記の電話番号にお問合せください。(携帯・PHS 可) 【物件番号】6988252544 | ||||
|---|---|---|---|---|---|
| 会社概要 |
(株)イナ・エステート[東京都知事免許(7)第72077号] 東京都練馬区下石神井4丁目9番1号 【所属団体】 (公社)全日本不動産協会、(公社)首都圏不動産公正取引協議会 | ||||
この物件の地図・周辺環境
このアイコンは物件のおおよその位置を表しており、実際の場所と異なる場合がございます。詳しくは不動産会社に直接ご確認ください。
取り扱い不動産会社
- 電話番号
- 03-3997-3907
- 営業時間
- 09:00~18:00
- 定休日
- なし・年末年始・夏季休暇
- 物件番号
- 6988252544
掲載期限まであと8日
西国分寺駅の口コミ
お買い物・飲食
3.0
西国分寺駅自体にお店は少ないが、個人経営のお店が多く店員さんの雰囲気がどこも良かった印象。また、電車2駅で立川駅へすぐ出れるので買い物に困ることはないと思う。
お買い物・飲食
2.0
スーパーの物価は都心ほど高くない。また生鮮品の扱いも十分なので、不満を感じる点はないだろう。なお、国分寺駅に隣接するクイーンズ伊勢丹は魚の取り扱いに優れていたので、こだわりがある人はそこで買えばよい(特に高いわけではない)。
住宅ローンシミュレーション
住宅ローン設定
物件価格
返済期間
頭金
ボーナス払(年1回)
※
※物件価格の80%以下でお借入れの場合
※50歳以下で一般団信をご選択の場合
※住宅ローン金利優遇割適用後の変動金利(全期間引き下げプラン)
※実際のお借入日の金利により変動します。
※審査の結果によっては保証付金利プランとなる場合があり、この場合は上記とは異なる金利となります。
※別途借入金額の2.20%(税込)の事務手数料が発生します。
ボーナス払 | 35年間返済 | 30年間返済 | 25年間返済 | 20年間返済 | 15年間返済 | 10年間返済 |
|---|---|---|---|---|---|---|
0万円 | -円/月 | -円/月 | -円/月 | -円/月 | -円/月 | -円/月 |
5万円 | -円/月 | -円/月 | -円/月 | -円/月 | -円/月 | -円/月 |
10万円 | -円/月 | -円/月 | -円/月 | -円/月 | -円/月 | -円/月 |
15万円 | -円/月 | -円/月 | -円/月 | -円/月 | -円/月 | -円/月 |
20万円 | -円/月 | -円/月 | -円/月 | -円/月 | -円/月 | -円/月 |
25万円 | -円/月 | -円/月 | -円/月 | -円/月 | -円/月 | -円/月 |
30万円 | -円/月 | -円/月 | -円/月 | -円/月 | -円/月 | -円/月 |
ボーナス払 | 35年間返済 | 30年間返済 | 25年間返済 | 20年間返済 | 15年間返済 | 10年間返済 |
|---|---|---|---|---|---|---|
0万円 | -円/月 | -円/月 | -円/月 | -円/月 | -円/月 | -円/月 |
5万円 | -円/月 | -円/月 | -円/月 | -円/月 | -円/月 | -円/月 |
10万円 | -円/月 | -円/月 | -円/月 | -円/月 | -円/月 | -円/月 |
15万円 | -円/月 | -円/月 | -円/月 | -円/月 | -円/月 | -円/月 |
20万円 | -円/月 | -円/月 | -円/月 | -円/月 | -円/月 | -円/月 |
25万円 | -円/月 | -円/月 | -円/月 | -円/月 | -円/月 | -円/月 |
30万円 | -円/月 | -円/月 | -円/月 | -円/月 | -円/月 | -円/月 |
- ・金利は、今後35年間変動しない仮定のもと元利均等返済方式で計算しております。
- ・実際の金利は、各金融機関のホームページをご参照ください。
- ・ローン契約の際には、手数料や印紙税などの諸費用が別途かかります。
- ・ボーナス支払総額が総支払額の50%を超えている場合、上記の表では「ローン不可」となります。
- ・シミュレーションを利用し、それが原因で利用者が受けたいかなる損害についても当社は一切責任を負いません。あらかじめご了承ください。
















