一戸建てアールギャラリー国立市中の家4期の詳細情報
8780万円~9380万円
月々のローン返済額を試算この物件は未完成のため、掲載写真(外観、内観、設備等)には、施工例が含まれている場合があります。物件詳細については、掲載の不動産会社宛にお問合せください。
【アールギャラリー】補助金80万円対象■IOT対応電動シャッター■長期優良住宅
外観・室内・設備(25枚)

リクシル システムバスルーム「AX」
【キレイサーモフロア】スポンジが奥まで入り、お掃除ラクラク。独自の断熱層で寒い冬場でもヒヤッとしません。【サーモバスS】浴槽保温材と保温組フタのダブル保温で、時間が経っても浴槽内の温度を最小限に抑えます。半身浴のできるベンチ付きの節水型の浴槽、排水口はシャワーなどの排水時に渦を起こして髪の毛やゴミをまとめてくれるためお掃除簡単で汚れもつきにくい構造になっています。

玄関電子キー
リモコンキーを持っていればドアハンドルのボタンを押すだけで施解錠でき、さらにタグキーを近づけるだけで鍵を開け閉めできます。また、ドアハンドルはボタンが低い位置にあるため、小さなお子様や車椅子の方にも操作がしやすく、握る際に手になじむ丸みのあるグリップ形状です。

エコワン
■ハイブリッド給湯器エコワン高い省エネ性を実現したエコワンは、従来型ガス給湯器と比べても給湯・暖房の年間ランニングコストを大幅に削減することができます。それは、ガスと電気を効率良くエネルギー消費するから。従来型ガス給湯器に比べて年間60%コストを削減、床暖房は38%削減しています。低燃費に優れたエコワンは家計にもやさしく、無駄のない豊かな暮らしを手伝います。

構造計算(許容応力度計算)
構造計算とは、建物が重さや地震、風などのあらゆるチカラに対してどれだけ耐えられるかを科学的に数値として表す為の計算です。①重さに耐えられるか②風に耐えられるか③地震に耐えられるか④建物が揺れやすくないか⑤建物がねじれないか⑥変形にどこまで耐えられるか(⑥は三階建てのみ実施)の6つのチェックポイントがあります。アールギャラリーの分譲住宅は全棟構造計算をしています。

ベタ基礎工法
地盤に施工された鉄筋コンクリート面全体で建物を支える構造になっているため、地震や台風などの捻じれや歪みを食い止め、衝撃を効果的に地盤へ逃すことができます。また、シロアリ発生の原因になる床下の湿気対策にもなります。

集成材軸組工法
強度の高い集成材を使用した安全かつ長持ちする工法です。無垢材に比べ強固な構造材を使用することで、間取りの自由度、将来的なリノベーションの可能性を最大限に引き出します。地震列島と呼ばれている日本に適した工法と言えます。

吹き付け断熱
住宅の隅から隅まで家全体をスッポリと覆ってしまう「現場吹付け断熱」を採用。無数の細かい連続気泡で構成されたウレタンフォームは、グラスウール10Kの1.5倍の断熱効果を発揮します。また透湿性も低く、断熱材内部への湿気の侵入を防ぐ効果もあり、躯体内の結露を抑制し、建物の耐久性を高めてくれます。
周辺環境・アクセス(10枚)
物件概要
| 物件名 | アールギャラリー国立市中の家4期 | ||||
|---|---|---|---|---|---|
| 所在地 | 東京都国立市中2-14-21 | ||||
| 交通 |
JR中央線「国立」歩17分 JR南武線「矢川」歩15分 国立市コミュニティバス「ぶどう園東」歩1分 | ||||
| 構造および階数 | - | 建ぺい率・容積率 | 建ぺい率/50%、容積率/100% | ||
| 完成予定日 | 2025年11月予定 | 入居可能予定日 | 2025年12月予定 | ||
| 土地権利 | 所有権 | ||||
| 駐車場 | - | 国土法届出 | - | ||
| 地目 | 宅地 | 道路付け | 道路幅:5.4m、アスファルト舗装、西側 幅員約5.4m公道に接面 | ||
| 機構融資 | - | 取引態様 | 仲介 | ||
| 用途地域 | 1種低層 | ||||
| 施工会社 | 株式会社アールプランナー | ||||
| 建築確認番号 | 第25UDI1T建01133号:A号棟 | ||||
| 設備 | 長期優良住宅認定通知書 / BELS/省エネ基準適合認定書あり / フラット35Sに対応 / 高気密高断熱住宅 / 地盤調査済 / 年内引渡可 / 駐車2台可 / 2沿線以上利用可 / LDK20畳以上 / 省エネ給湯器 / スーパー 徒歩10分以内 / 南向き / システムキッチン / 浴室乾燥機 / 陽当り良好 / 全居室収納 / 駅まで平坦 / 閑静な住宅地 / シャワー付洗面化粧台 / 対面式キッチン / EV車充電設備 / 3面採光 / トイレ2ヶ所 / 浴室1坪以上 / 2階建 / 南面バルコニー / 複層ガラス / オートバス / 温水洗浄便座 / 床下収納 / 浴室に窓 / 吹抜け / TVモニタ付インターホン / 節水型トイレ / 緑豊かな住宅地 / 都市近郊 / 通風良好 / 全居室フローリング / パントリー(食器・食品の収納庫) / IHクッキングヒーター / リビング階段 / 全居室複層ガラスか複層サッシ / 都市ガス / 小学校 徒歩10分以内 / 平坦地 / 床暖房 / 納戸 / 食器洗乾燥機 / 整備された歩道 / スマートキー | ||||
| その他制限事項 | 景観法による規制有、航空法による規制有、宅地造成工事規制区域、高度地区、準防火地域、高さ最高限度有、第一種高度地区、第一種文教地区、絶対高さ10m | ||||
| 備考 | 景観法による規制有、航空法による規制有、宅地造成工事規制区域、高度地区、準防火地域、高さ最高限度有、第一種高度地区、第一種文教地区、絶対高さ10m / 設備:電気、公営水道、公共下水、建築確認番号:第25UDI1T建01133号:A号棟、01134号:B号棟、01135号:C号棟、01136号:D号棟 | ||||
情報更新日:2025/11/24 次回更新予定日:情報提供より8日以内
販売概要
| 販売価格 | 8780万円~9380万円 お問い合わせはこちら | ||||
|---|---|---|---|---|---|
| 販売スケジュール | - | ||||
| 販売戸数/総戸数 | 4戸/4戸 | ||||
| 最多価格帯 | - | ||||
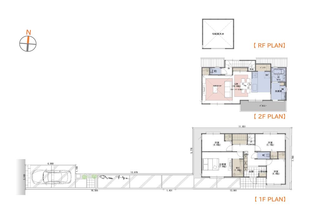
| 間取り | 3LDK~4LDK+S(納戸) | ||||
| 建物面積 | 101.01㎡~103.52㎡(30.55坪~31.31坪) | 土地面積 | 108.77㎡~138.64㎡(32.90坪~41.93坪) | ||
| その他施設費用、償却費 | - | ||||
| その他費用 | - | ||||
| 登録受付 | - | 抽選日 | - | ||
| モデルルーム情報 | 現地案内会(事前に必ずお問い合わせください)日程/公開中時間/10:00~17:00■■現地来場予約キャンペーン■■来場予約の上、来場前アンケート・来場後アンケートにご回答・弊社公式LINEを友だち追加いただくと5,000円分(QUOカードPay)プレゼント!!・お家探しを真剣に検討していること、事前の内容確認のご連絡に出ていただくことが条件になります。・本人確認書類(運転免許証・健康保険証・マイナンバーカード等)をご提示いただけることが対象となります。・ご夫婦(パートナー)またはご家族でご来場の方が対象となります。・ご希望日の前日17:00までにご予約いただいた方が対象となります。・当日の予約はプレゼント対象外となります。・火曜日は予約制の営業となります。2日前(日曜日)17:00までにWEB来店予約にてお申し込みください。17:00以降の受付は、ご対応出来かねる場合がございます。・水曜日は定休日の為、ご予約出来ません。※初回予約の方に限ります。※アンケートの全ての項目にお答えいただくことが条件になります。※ギフトカードは事前アンケート記載のメールアドレスに後日送付させていただきます。※ギフトカードプレゼントは1家族様一回限りとさせていただきます。※すでにご契約、お申し込みいただいている方は対象外とさせていただきます。※アールプランナーグループの他キャンペーンとは併用できません。※ギフトカードプレゼントは予告なく終了する場合がございます。店舗への来店予約キャンペーンも行っております。詳しくはお問い合わせください。 | ||||
| 取引条件有効期限 | 2026年12月31日 | ||||
会社情報
| お問い合わせ先 |
(株)アールプランナー不動産三鷹営業所 0422-66-2888 上記の電話番号にお問合せください。(携帯・PHS 可) 【物件番号】77997931 | ||||
|---|---|---|---|---|---|
| 会社概要 |
(株)アールプランナー不動産三鷹営業所[国土交通大臣(1)第009836号] 東京都武蔵野市中町1-20-2 藤和シティコープ三鷹2階 【所属団体】 国土交通大臣(1)第009836号(公社)東京都宅地建物取引業協会会員 (公社)首都圏不動産公正取引協議会加盟 | ||||
この物件の地図・周辺環境
このアイコンは物件のおおよその位置を表しており、実際の場所と異なる場合がございます。詳しくは不動産会社に直接ご確認ください。
※地図上に表示される物件の位置は付近住所に所在することを表すものであり、実際の物件所在地とは異なる場合がございます。
※地図の更新タイミングの関係で、物件情報が実際のものとは異なる場合や最新情報に更新されていない場合がございます。
※以下の南西諸島及び離島においては、表示される物件の位置が実際のものとは数百メートル程度ずれる場合がございます。
東京都:硫黄島・青ヶ島、沖縄県: 北大東島・南大東島・多良間島・水納島・与那国島・宮古諸島・石垣島・竹富島
取り扱い不動産会社
- 電話番号
- 0422-66-2888
- 受付
- 営業時間:10:00~19:00 / 定休日:火・水曜日
- 物件番号
- 77997931
株式会社アールプランナー不動産 三鷹営業所
国立駅の口コミ
お買い物・飲食
3.0
若者の服を売っている店はないので、隣駅の立川駅まで出ないといけない。飲食は割りと多い。ファーストフードからおしゃれな店、老舗の喫茶店など多種多様で外食には困らない。わたしは駅前の松屋が好きでした。
自然環境
5.0
国立駅周辺は桜の名所のため、春先の駅舎からの景色はとても素晴らしいものであった。また、植樹が盛んらしく、長閑な風景が拝める場所が多々ある。
住宅ローンシミュレーション
住宅ローン設定
物件価格
返済期間
頭金
ボーナス払(年1回)
※
※物件価格の80%以下でお借入れの場合
※50歳以下で一般団信をご選択の場合
※住宅ローン金利優遇割適用後の変動金利(全期間引き下げプラン)
※実際のお借入日の金利により変動します。
※審査の結果によっては保証付金利プランとなる場合があり、この場合は上記とは異なる金利となります。
※別途借入金額の2.20%(税込)の事務手数料が発生します。
ボーナス払 | 35年間返済 | 30年間返済 | 25年間返済 | 20年間返済 | 15年間返済 | 10年間返済 |
|---|---|---|---|---|---|---|
0万円 | -円/月 | -円/月 | -円/月 | -円/月 | -円/月 | -円/月 |
5万円 | -円/月 | -円/月 | -円/月 | -円/月 | -円/月 | -円/月 |
10万円 | -円/月 | -円/月 | -円/月 | -円/月 | -円/月 | -円/月 |
15万円 | -円/月 | -円/月 | -円/月 | -円/月 | -円/月 | -円/月 |
20万円 | -円/月 | -円/月 | -円/月 | -円/月 | -円/月 | -円/月 |
25万円 | -円/月 | -円/月 | -円/月 | -円/月 | -円/月 | -円/月 |
30万円 | -円/月 | -円/月 | -円/月 | -円/月 | -円/月 | -円/月 |
ボーナス払 | 35年間返済 | 30年間返済 | 25年間返済 | 20年間返済 | 15年間返済 | 10年間返済 |
|---|---|---|---|---|---|---|
0万円 | -円/月 | -円/月 | -円/月 | -円/月 | -円/月 | -円/月 |
5万円 | -円/月 | -円/月 | -円/月 | -円/月 | -円/月 | -円/月 |
10万円 | -円/月 | -円/月 | -円/月 | -円/月 | -円/月 | -円/月 |
15万円 | -円/月 | -円/月 | -円/月 | -円/月 | -円/月 | -円/月 |
20万円 | -円/月 | -円/月 | -円/月 | -円/月 | -円/月 | -円/月 |
25万円 | -円/月 | -円/月 | -円/月 | -円/月 | -円/月 | -円/月 |
30万円 | -円/月 | -円/月 | -円/月 | -円/月 | -円/月 | -円/月 |
- ・金利は、今後35年間変動しない仮定のもと元利均等返済方式で計算しております。
- ・実際の金利は、各金融機関のホームページをご参照ください。
- ・ローン契約の際には、手数料や印紙税などの諸費用が別途かかります。
- ・ボーナス支払総額が総支払額の50%を超えている場合、上記の表では「ローン不可」となります。
- ・シミュレーションを利用し、それが原因で利用者が受けたいかなる損害についても当社は一切責任を負いません。あらかじめご了承ください。
※価格は物件の代金総額を表示しており、消費税が課税される場合は税込み価格です。 (1000円未満は切り上げ。)
※写真に写っている、またはパース(絵)や間取り図に描かれている家具や車などは、特にコメントがない場合、販売価格に含まれません。
※敷地権利が定期借地権のものは価格に権利金を含みます。
※建築条件付き土地価格には、建物価格は含まれません。
※物件情報は、原則として情報提供日の2日前に最終確認した情報です。
※完成予想図はいずれも外構、植栽、外観等実際のものとは多少異なることがあります。
※モデルルーム・モデルハウス・展示場・ショールームの画像の場合、今回販売の物件と異なる場合があります。
※CG合成の画像の場合、実際とは多少異なる場合があります。
※物件特徴:販売戸数が複数の物件は、全ての住戸に該当しない項目もあります。
※0800で始まる電話番号は通話料無料です。また、サービス検証のため当該番号の利用履歴を個人が特定できない範囲で取得しています。予めご了承ください。
※完成後1年以上を経過した未入居物件が掲載される場合があります。ご了承ください。
※新着:物件情報が「SUUMO」に掲載された日から1週間表示されます。
※価格更新:物件価格が変更された日から1週間表示されます。
※販売予定物件はすべて、販売開始するまで契約または予約の申込みはできません。
※購入の前には物件内容や契約条件についてご自身で十分な確認をしていただくようにお願いいたします。
※建築条件土地の情報内に掲載されている、建物プラン例は、土地購入者の設計プランの参考の一例であって、プランの採用可否は任意です。
※土地(建築条件なし)で「建物プラン例」が表記してある時、そのプラン例は特定の建築請負会社によるもので、当該建築請負会社以外で建てた場合、同様のものが同価格で建てられるとは限りません。また建築請負会社を特定するものではありません。
※建築条件付き土地とは、その土地に建築する建物の建築請負契約が、一定期間内に成立することを条件として売買される土地のことをいいます。建築請負契約成立に向けて設計プランを協議するため、土地購入者が自己の希望する建物の設計協議をするために必要な相当の期間の交渉期間が設定され、その期間内で希望を満たすプランが実現できたかどうかにより結論を出します。なお、この期間は概ね3ヶ月程度とされています。納得のいくプランが出来ず、建築請負契約が成立しない場合、土地売買契約は白紙に戻り、土地契約にかかった代金(土地代金、手付金など)は名目のいかんに関わらず、全て返却されます。




































