一戸建て【レーベンプラッツ練馬Ⅱ】第2期予告/予告広告の詳細情報
9900万円・1億900万円台(予定)(予告広告)
月々のローン返済額を試算
この広告は予告広告です。販売を開始するまでは、契約または予約(仮予約を含む)のお申込みには一切応じられませんのでご了承ください。
価格または販売方法が未定の場合は、新規分譲広告にて確定情報をお知らせします。
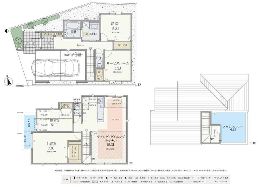
【LEBEN PLATZ】練馬駅14分×スカイバルコニー×延床108㎡超
外観・室内・設備(23枚)

リモコンキー、タグキーで開閉可能なスマート電気錠
リモコンキーを持っていれば、ハンドルのボタンを押すだけで、上下2つのカギを一度に開け閉め。離れたところからリモコン操作もできます。またタグキーやスマートフォンからカギの開け閉めも可能です。

通話や開け閉めをどこでもスマホで「外でもドアホン」
【通話や開け閉めをどこでもスマホで「外でもドアホン」】家の中でも、外にいても、いつでも来客の対応ができるのが外でもドアホン。買い物中でも急に帰宅した子どもに鍵を開けてあげたり、スマホでメッセージを残すこともできます。

耐震等級3(構造躯体の倒壊等防止)
新築住宅の場合、数百年に一度程度発生する地震による力(建築基準法で求めている地震力)の1.5倍の力に対して、倒壊・崩壊等しない程度の対策を講じられた強い建物に該当する基準です。[予定※]※審査完了後
物件概要
| 物件名 | 【レーベンプラッツ練馬Ⅱ】第2期予告/予告広告 | ||||
|---|---|---|---|---|---|
| 所在地 | 東京都練馬区豊玉中2-5番13の一部 他(地番) | ||||
| 交通 |
西武池袋線「練馬」歩14分 西武池袋線「桜台」歩15分 西武新宿線「沼袋」歩17分 | ||||
| 構造および階数 | 木造2階建て(木造軸組み+パネル工法) | 建ぺい率・容積率 | 建ペい率:60%(一部準防火地域の準耐火建築物による緩和適用70%、一部準防火地域の準耐火建築物による緩和及び角地緩和適用80%)、容積率:200% | ||
| 完成予定日 | 2025年10月 | 入居可能予定日 | 即引渡可 | ||
| 土地権利 | 所有権 | ||||
| 駐車場 | - | 国土法届出 | - | ||
| 地目 | 宅地 | 道路付け | 道路幅:6m・11m、アスファルト舗装、道路幅詳細:西側11.00m、西側6.00m | ||
| 機構融資 | - | 取引態様 | 売主 | ||
| 用途地域 | 1種中高 | ||||
| 施工会社 | 株式会社レーベンホームビルド | ||||
| 建築確認番号 | - | ||||
| 設備 | フラット35・S適合証明書 / 2沿線以上利用可 / LDK18畳以上 / 省エネ給湯器 / 南向き / システムキッチン / 浴室乾燥機 / 全居室収納 / 前道6m以上 / シャワー付洗面化粧台 / 対面式キッチン / EV車充電設備 / トイレ2ヶ所 / 浴室1坪以上 / 2階建 / 複層ガラス / 温水洗浄便座 / TV付浴室 / 床下収納 / TVモニタ付インターホン / 節水型トイレ / 全居室フローリング / シューズインクローク / 小学校 徒歩10分以内 / ルーフバルコニー / 床暖房 / 納戸 / 食器洗乾燥機 / 浄水器 / スマートキー | ||||
| その他制限事項 | 準防火地域 | ||||
| 備考 | 準防火地域 / 設備:電気・ガス:お客様の選択・ご契約が必要となります。/上下水道:公営 | ||||
情報更新日:2026/03/05 次回更新予定日:2026/3/13
販売概要
| 販売価格 | 9900万円・1億900万円台(予定)(予告広告) お問い合わせはこちら | ||||
|---|---|---|---|---|---|
| 販売スケジュール | 3月上旬より販売開始本広告を行い取引を開始するまでは契約または予約の申込、及び申込の順位の確保は一切できません。あらかじめご了承ください。本概要は今後の予定販売住戸全体(4邸)を対象として記載しております。販売戸数、販売価格等の数値は本広告時にお知らせ致します。 | ||||
| 販売戸数/総戸数 | 2戸/4戸 | ||||
| 予定最多価格帯 | - | ||||
| 間取り | 3LDK+S(納戸)・4LDK+WIC+スカイバルコニー+【セコム搭載】 | ||||
| 建物面積 | 108.05㎡・120.37㎡(32.68坪・36.41坪) | 土地面積 | 90.45㎡・100.24㎡(27.36坪・30.32坪) | ||
| その他施設費用、償却費 | - | ||||
| その他費用 | - | ||||
| 登録受付 | - | 抽選日 | - | ||
| モデルルーム情報 | モデルハウス(事前に必ず予約してください)日程/公開中時間/10:00~18:00■INFORMATION■------------------------------------毎日モデルハウスオープン!≪ご見学予約受付中≫[ご案内時間]①10:00~ ②13:00~ ③16:00~------------------------------------※ご案内受付場所は現地とは異なり、「レーベンプラッツインフォメーションセンター」でのご案内となります。 詳細は【MAPページ】よりご確認ください。※係員は常駐しておりませんので、ご来場を希望される場合は、事前にご連絡をお願いいたします。 | ||||
| 取引条件有効期限 | - | ||||
会社情報
| お問い合わせ先 |
株式会社レーベンホームビルド 総合予約受付窓口 0120-972-610(無料通話) 上記の電話番号にお問合せください。(携帯・PHS 可) 【物件番号】77212588 | ||||
|---|---|---|---|---|---|
| 会社概要 |
株式会社レーベンホームビルド 総合予約受付窓口 - | ||||
この物件の地図・周辺環境
このアイコンは物件のおおよその位置を表しており、実際の場所と異なる場合がございます。詳しくは不動産会社に直接ご確認ください。
※地図上に表示される物件の位置は付近住所に所在することを表すものであり、実際の物件所在地とは異なる場合がございます。
※地図の更新タイミングの関係で、物件情報が実際のものとは異なる場合や最新情報に更新されていない場合がございます。
※以下の南西諸島及び離島においては、表示される物件の位置が実際のものとは数百メートル程度ずれる場合がございます。
東京都:硫黄島・青ヶ島、沖縄県: 北大東島・南大東島・多良間島・水納島・与那国島・宮古諸島・石垣島・竹富島
取り扱い不動産会社
- 電話番号
- 0120-972-610
- 受付
- [営業時間]9:00~18:00[定休日]毎週火・水曜日(祝祭日除く)
- 物件番号
- 77212588
練馬駅の口コミ
治安・安全
5.0
深夜になると警察が巡回をしているので、比較的安心な方だと思います。 仕事で帰りが遅くなり、酔っぱらいに絡まれた時に助けてもらいました。
治安・安全
5.0
練馬駅が住宅街ということもありファミリー層が多くとても落ち着いた雰囲気で住みやすいとおもいます。西友も駅直結であるので買い物のもとても便利です。
住宅ローンシミュレーション
住宅ローン設定
物件価格
返済期間
頭金
ボーナス払(年1回)
※
※物件価格の80%以下でお借入れの場合
※50歳以下で一般団信をご選択の場合
※住宅ローン金利優遇割適用後の変動金利(全期間引き下げプラン)
※実際のお借入日の金利により変動します。
※審査の結果によっては保証付金利プランとなる場合があり、この場合は上記とは異なる金利となります。
※別途借入金額の2.20%(税込)の事務手数料が発生します。
ボーナス払 | 35年間返済 | 30年間返済 | 25年間返済 | 20年間返済 | 15年間返済 | 10年間返済 |
|---|---|---|---|---|---|---|
0万円 | -円/月 | -円/月 | -円/月 | -円/月 | -円/月 | -円/月 |
5万円 | -円/月 | -円/月 | -円/月 | -円/月 | -円/月 | -円/月 |
10万円 | -円/月 | -円/月 | -円/月 | -円/月 | -円/月 | -円/月 |
15万円 | -円/月 | -円/月 | -円/月 | -円/月 | -円/月 | -円/月 |
20万円 | -円/月 | -円/月 | -円/月 | -円/月 | -円/月 | -円/月 |
25万円 | -円/月 | -円/月 | -円/月 | -円/月 | -円/月 | -円/月 |
30万円 | -円/月 | -円/月 | -円/月 | -円/月 | -円/月 | -円/月 |
ボーナス払 | 35年間返済 | 30年間返済 | 25年間返済 | 20年間返済 | 15年間返済 | 10年間返済 |
|---|---|---|---|---|---|---|
0万円 | -円/月 | -円/月 | -円/月 | -円/月 | -円/月 | -円/月 |
5万円 | -円/月 | -円/月 | -円/月 | -円/月 | -円/月 | -円/月 |
10万円 | -円/月 | -円/月 | -円/月 | -円/月 | -円/月 | -円/月 |
15万円 | -円/月 | -円/月 | -円/月 | -円/月 | -円/月 | -円/月 |
20万円 | -円/月 | -円/月 | -円/月 | -円/月 | -円/月 | -円/月 |
25万円 | -円/月 | -円/月 | -円/月 | -円/月 | -円/月 | -円/月 |
30万円 | -円/月 | -円/月 | -円/月 | -円/月 | -円/月 | -円/月 |
- ・金利は、今後35年間変動しない仮定のもと元利均等返済方式で計算しております。
- ・実際の金利は、各金融機関のホームページをご参照ください。
- ・ローン契約の際には、手数料や印紙税などの諸費用が別途かかります。
- ・ボーナス支払総額が総支払額の50%を超えている場合、上記の表では「ローン不可」となります。
- ・シミュレーションを利用し、それが原因で利用者が受けたいかなる損害についても当社は一切責任を負いません。あらかじめご了承ください。
※価格は物件の代金総額を表示しており、消費税が課税される場合は税込み価格です。 (1000円未満は切り上げ。)
※写真に写っている、またはパース(絵)や間取り図に描かれている家具や車などは、特にコメントがない場合、販売価格に含まれません。
※敷地権利が定期借地権のものは価格に権利金を含みます。
※建築条件付き土地価格には、建物価格は含まれません。
※物件情報は、原則として情報提供日の2日前に最終確認した情報です。
※完成予想図はいずれも外構、植栽、外観等実際のものとは多少異なることがあります。
※モデルルーム・モデルハウス・展示場・ショールームの画像の場合、今回販売の物件と異なる場合があります。
※CG合成の画像の場合、実際とは多少異なる場合があります。
※物件特徴:販売戸数が複数の物件は、全ての住戸に該当しない項目もあります。
※0800で始まる電話番号は通話料無料です。また、サービス検証のため当該番号の利用履歴を個人が特定できない範囲で取得しています。予めご了承ください。
※完成後1年以上を経過した未入居物件が掲載される場合があります。ご了承ください。
※新着:物件情報が「SUUMO」に掲載された日から1週間表示されます。
※価格更新:物件価格が変更された日から1週間表示されます。
※販売予定物件はすべて、販売開始するまで契約または予約の申込みはできません。
※購入の前には物件内容や契約条件についてご自身で十分な確認をしていただくようにお願いいたします。
※建築条件土地の情報内に掲載されている、建物プラン例は、土地購入者の設計プランの参考の一例であって、プランの採用可否は任意です。
※土地(建築条件なし)で「建物プラン例」が表記してある時、そのプラン例は特定の建築請負会社によるもので、当該建築請負会社以外で建てた場合、同様のものが同価格で建てられるとは限りません。また建築請負会社を特定するものではありません。
※建築条件付き土地とは、その土地に建築する建物の建築請負契約が、一定期間内に成立することを条件として売買される土地のことをいいます。建築請負契約成立に向けて設計プランを協議するため、土地購入者が自己の希望する建物の設計協議をするために必要な相当の期間の交渉期間が設定され、その期間内で希望を満たすプランが実現できたかどうかにより結論を出します。なお、この期間は概ね3ヶ月程度とされています。納得のいくプランが出来ず、建築請負契約が成立しない場合、土地売買契約は白紙に戻り、土地契約にかかった代金(土地代金、手付金など)は名目のいかんに関わらず、全て返却されます。






























