新築マンションレ・ジェイド札幌大通ザ・タワー/予告広告の詳細情報
3,990万円~7,180万円(予定)(予告広告)
月々のローン返済額を試算
この広告は予告広告です。販売を開始するまでは、契約または予約(仮予約を含む)のお申込みには一切応じられませんのでご了承ください。
価格または販売方法が未定の場合は、新規分譲広告にて確定情報をお知らせします。
おかげさまで第1期・第2期・第3期・第4期 連続完売 いよいよ第5期販売開始地下鉄「さっぽろ」駅徒歩6分&「大通」駅徒歩7分。2つの駅に徒歩7分以内は現在の札幌で唯一(※1)【予定販売価格】1LDK 3,900万円台~(自己資金0円、ボーナス返済0円/月々7万円台~(※2)
物件概要
| 物件名 | レ・ジェイド札幌大通ザ・タワー/予告広告 | ||||
|---|---|---|---|---|---|
| 所在地 | 北海道札幌市中央区北2条東2丁目1番19 | ||||
| 交通 |
札幌市営南北線「さっぽろ」駅 徒歩6分 札幌市営東豊線「さっぽろ」駅 徒歩6分 札幌市営南北線「大通」駅 徒歩7分 | ||||
| 構造および階数 | 鉄筋コンクリート造 地下1階、地上19階、塔屋2階 | 敷地面積 | 821.30㎡ | ||
| 完成時期 | 2026年8月下旬(予定) | 入居時期 | 2026年9月下旬(予定) | ||
| 土地権利 | 所有権 | ||||
| 駐車場 | - | ||||
| 分譲後の権利形態 | 敷地:専有面積割合による所有権の共有、建物:専有部分は区分所有権、建物共用部分は専有面積割合による所有権の共有 | ||||
| 管理形態 | 区分所有者全員により管理組合を結成し、管理会社に業務委託、管理人の勤務形態:通勤管理 | ||||
| 取引態様 | 株式会社ライズパートナーズ(代理) | 用途地域 | 商業地域、防火地域 | ||
| 建築確認番号 | 第ERI-24014869号(2024年(令和6年)6月7日) | ||||
| 共有施設 | ■駐車場:21台(屋外機械式駐車場:15台、屋外平面駐車場:5台(内カーシェア1台用)、屋外福祉優先平面駐車場:1台)〈月額使用料:20,000円~30,000円〉■自転車置場:40台〔屋外自転車置場 屋根付(2段ラック式):36台、屋外自転車置場(屋根有):2台、子供用自転車置場(屋根有):2台〕〈月額使用料:200円~500円〉 | ||||
| 設備 | - | ||||
| 備考 |
※1 2025年6月現在 住宅流通研究所調べ ※2 返済例/タイプ:Cタイプ 専有面積 41.39m2 1LDK、3990万円、自己資金 0円、借入期間 50年、借入額 3990万円の場合(月々の元本3990万円、ボーナス払いの元本0円)月々78,815円(年12回)、ボーナス時加算 0円(年2回) ※金利は2025年10月時点 | ||||
情報更新日:2026/01/04 次回更新予定日:2026/01/18
販売概要
| 販売価格 | 3,990万円~7,180万円(予定)(予告広告) お問い合わせはこちら | ||||
|---|---|---|---|---|---|
| 販売スケジュール | 販売開始予定:2026年1月下旬 | ||||
| 販売戸数/総戸数 | 未定/80戸、管理室1戸 | ||||
| 予定最多価格帯 | 未定 | ||||
| 管理費 | 7,500円~12,700円(月額) | ||||
| 修繕積立金 | 4,100円~7,000円(月額) | 修繕積立基金 | 248,000円~421,000円(引渡し時一括払い) | ||
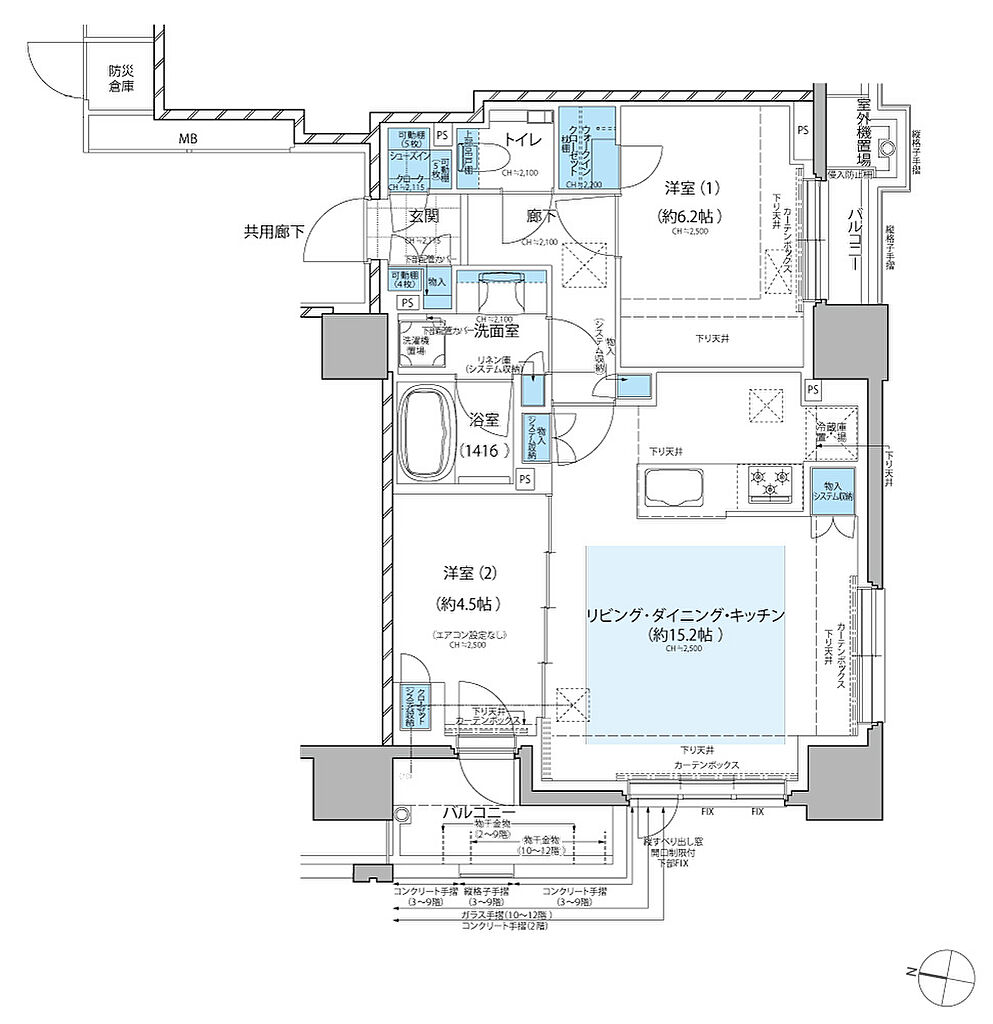
| 間取り | 1LDK~2LDK | ||||
| 専有面積 | 41.39㎡~70.20㎡ | バルコニー面積 | 5.72㎡~9.77㎡ | ||
| その他面積 | ■室外機置場面積:1.14㎡~1.81㎡ | ||||
| その他施設費用、償却費 | - | ||||
| その他費用 | 【保証金、敷金】:-、【その他費用】:管理準備金(引渡し時一括払い):7,500円~12,700円 | ||||
| 登録受付 | - | 抽選日 | - | ||
| 取引条件有効期限 | - | ||||
モデルルーム情報
| 営業時間 | 10:00~18:00 | 定休日 | 火・水曜日(祝日除く)、2025/12/23~2026/01/03 | ||
|---|---|---|---|---|---|
| 開催期間 | - | 登録受付 | - | ||
| 販売スケジュール | 販売開始予定:2026年1月下旬 | 抽選日 | - | ||
| モデルルーム所在地 | 北海道札幌市中央区北2条東4丁目1-2 サッポロファクトリー3条館2階 | ||||
| お問い合わせ先 |
「レ・ジェイド札幌大通ザ・タワー」マンションギャラリー 0037-619-28090(通話無料) お問合せ受付時間:営業時間/10:00~18:00、定休日/火・水曜日(祝日除く) | ||||
会社情報
| 売主 |
株式会社エスコン 【免許番号】 国土交通大臣(6)第6034号 | ||||
|---|---|---|---|---|---|
| お問い合わせ先 |
「レ・ジェイド札幌大通ザ・タワー」マンションギャラリー 0037-619-28090(無料通話) 上記の電話番号にお問合せください。(携帯・PHS 可) ※光IP 電話、及びIP 電話からはご利用になれません 光IP電話、及びIP電話をご利用のお客様は以下へご連絡ください。 「レ・ジェイド札幌大通ザ・タワー」マンションギャラリー TEL:0120-290-097 【物件番号】1602005-0000006 | ||||
| 管理会社 | エムエムエスマンションマネージメントサービス株式会社 | ||||
| 施工会社 | 株式会社砂子組 | ||||
| 販売会社 | 株式会社ライズパートナーズ(代理) | ||||
| 情報提供元 |
株式会社エスコン 北海道支店[国土交通大臣(6)第6034号] 北海道札幌市中央区北三条西4丁目1番1号 日本生命札幌ビル13F 【所属団体】 (公社)首都圏不動産公正取引協議会、(一社)不動産協会 | ||||
この物件の地図・周辺環境
このアイコンは物件のおおよその位置を表しており、実際の場所と異なる場合がございます。詳しくは不動産会社に直接ご確認ください。
取り扱い不動産会社
「レ・ジェイド札幌大通ザ・タワー」マンションギャラリー
- 電話番号
- 0120-290-097
- 営業時間
- 10:00~18:00
- 定休日
- 火・水曜日(祝日除く)
- 物件番号
- 1602005-0000006
電話で問い合わせる(無料)お急ぎの方はこちらから!
物件お問い合わせ専用ダイヤル
受付:10:00~18:00(定休日:火・水曜日(祝日除く)) 携帯・PHS可
※携帯・PHS可。光IP電話、及びIP電話からはご利用になれません。
札幌駅の口コミ
治安・安全
5.0
中央に近くファミリー層も多く、基本治安は問題ない地域と思いますが、周辺に灯りが少なく夜はやや暗い雰囲気を感じます
お買い物・飲食
5.0
毎日食べられる食堂が少ない。なぜ札幌にはこんなに食堂が少ないんだろう?この辺に住むとなるとおそらく北大の学食がメインになるだろうが飽きるはず。
住宅ローンシミュレーション
住宅ローン設定
物件価格
返済期間
頭金
ボーナス払(年1回)
※
※物件価格の80%以下でお借入れの場合
※50歳以下で一般団信をご選択の場合
※住宅ローン金利優遇割適用後の変動金利(全期間引き下げプラン)
※実際のお借入日の金利により変動します。
※審査の結果によっては保証付金利プランとなる場合があり、この場合は上記とは異なる金利となります。
※別途借入金額の2.20%(税込)の事務手数料が発生します。
ボーナス払 | 35年間返済 | 30年間返済 | 25年間返済 | 20年間返済 | 15年間返済 | 10年間返済 |
|---|---|---|---|---|---|---|
0万円 | -円/月 | -円/月 | -円/月 | -円/月 | -円/月 | -円/月 |
5万円 | -円/月 | -円/月 | -円/月 | -円/月 | -円/月 | -円/月 |
10万円 | -円/月 | -円/月 | -円/月 | -円/月 | -円/月 | -円/月 |
15万円 | -円/月 | -円/月 | -円/月 | -円/月 | -円/月 | -円/月 |
20万円 | -円/月 | -円/月 | -円/月 | -円/月 | -円/月 | -円/月 |
25万円 | -円/月 | -円/月 | -円/月 | -円/月 | -円/月 | -円/月 |
30万円 | -円/月 | -円/月 | -円/月 | -円/月 | -円/月 | -円/月 |
ボーナス払 | 35年間返済 | 30年間返済 | 25年間返済 | 20年間返済 | 15年間返済 | 10年間返済 |
|---|---|---|---|---|---|---|
0万円 | -円/月 | -円/月 | -円/月 | -円/月 | -円/月 | -円/月 |
5万円 | -円/月 | -円/月 | -円/月 | -円/月 | -円/月 | -円/月 |
10万円 | -円/月 | -円/月 | -円/月 | -円/月 | -円/月 | -円/月 |
15万円 | -円/月 | -円/月 | -円/月 | -円/月 | -円/月 | -円/月 |
20万円 | -円/月 | -円/月 | -円/月 | -円/月 | -円/月 | -円/月 |
25万円 | -円/月 | -円/月 | -円/月 | -円/月 | -円/月 | -円/月 |
30万円 | -円/月 | -円/月 | -円/月 | -円/月 | -円/月 | -円/月 |
- ・金利は、今後35年間変動しない仮定のもと元利均等返済方式で計算しております。
- ・実際の金利は、各金融機関のホームページをご参照ください。
- ・ローン契約の際には、手数料や印紙税などの諸費用が別途かかります。
- ・ボーナス支払総額が総支払額の50%を超えている場合、上記の表では「ローン不可」となります。
- ・シミュレーションを利用し、それが原因で利用者が受けたいかなる損害についても当社は一切責任を負いません。あらかじめご了承ください。

















