NEW新築マンションザ・ライオンズ札幌北九条の詳細情報
5,650万円(1戸)~7,740万円(1戸)
月々のローン返済額を試算地下鉄東豊線・南北線「さっぽろ」駅徒歩8分、再開発が進む札幌駅エリアへも徒歩圏の立地。中高層ZEH-M支援事業補助金採択物件。
外観・室内・設備(22枚)
周辺環境・アクセス(11枚)
物件概要
| 物件名 | ザ・ライオンズ札幌北九条 | ||||
|---|---|---|---|---|---|
| 所在地 | 北海道札幌市東区北九条東2丁目40番54 | ||||
| 交通 |
札幌市営東豊線「さっぽろ」駅 徒歩8分 札幌市営南北線「さっぽろ」駅 徒歩8分 JR函館本線「札幌」駅 徒歩11分 | ||||
| 構造および階数 | 鉄筋コンクリート造一部鉄骨造、地上15階建て、陸屋根 | 敷地面積 | 2008.16㎡ | ||
| 完成時期 | 2025年9月 | 入居時期 | 2026年4月(予定) | ||
| 土地権利 | - | ||||
| 駐車場 | - | ||||
| 分譲後の権利形態 | 敷地・建物共用部分は所有権の共有、建物専有部分は区分所有 | ||||
| 管理形態 | 管理組合構成後、株式会社大京アステージに管理委託、管理人の勤務形態:通勤 | ||||
| 取引態様 | 株式会社 大京(売主) | 用途地域 | 近隣商業地域 | ||
| 建築確認番号 | 第ERI-23014122号(2023年7月11日)第ERI-25022755号(2025年8月1日)【計画変更】 | ||||
| 共有施設 | - | ||||
| 設備 | - | ||||
| 備考 | 駐車場台数:45台 (屋外平地式37台、屋内平地式8台(カーシェアリング専用区画1台含む))月額使用料:15,000円~24,000円/台、自転車置場:83台月額使用料:200円~300円/台 | ||||
情報更新日:2026/02/16 次回更新予定日:2026/02/17
販売概要
| 販売価格 | 5,650万円(1戸)~7,740万円(1戸) お問い合わせはこちら | ||||
|---|---|---|---|---|---|
| 販売スケジュール | 分譲中 | ||||
| 販売戸数/総戸数 | 8戸/83戸(住戸) | ||||
| 最多価格帯 | - | ||||
| 管理費 | 月額19,875円(2戸)~月額26,175円(1戸) | ||||
| 修繕積立金 | 月額6,490円(2戸)~月額8,700円(1戸) | 修繕積立基金 | 649,000円(2戸)~870,000円(1戸)(引渡時一括払い) | ||
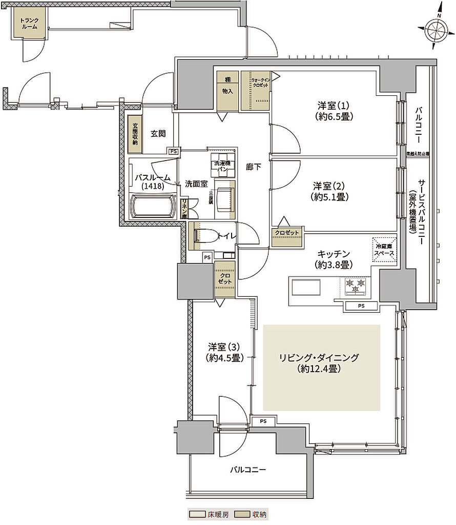
| 間取り | 2LDK+SIC,3LDK,3LDK+WIC,3LDK+WIC+SIC | ||||
| 専有面積 | 60.09㎡~80.51㎡ | バルコニー面積 | 8.58㎡~21.33㎡ | ||
| その他面積 | - | ||||
| その他施設費用、償却費 | - | ||||
| その他費用 | 【保証金、敷金】:- | ||||
| 登録受付 | - | 抽選日 | - | ||
| 取引条件有効期限 | 取引条件有効期限:2026-03-31 | ||||
モデルルーム情報
| 営業時間 | 10:00~18:00 | 定休日 | 火曜日・水曜日・第2木曜日、2026/02/05~2026/02/05 | ||
|---|---|---|---|---|---|
| 開催期間 | - | 登録受付 | - | ||
| 販売スケジュール | 分譲中 | 抽選日 | - | ||
| モデルルーム所在地 | 北海道札幌市東区北九条東2丁目2番18ザ・ライオンズ札幌北九条 | ||||
| お問い合わせ先 |
総合ご案内センター 0037-619-02385(通話無料) お問合せ受付時間:営業時間/10:00~18:00、定休日/火曜日・水曜日・第2木曜日 | ||||
会社情報
| 売主 | 株式会社 大京 | ||||
|---|---|---|---|---|---|
| お問い合わせ先 |
総合ご案内センター 0037-619-02385(無料通話) 上記の電話番号にお問合せください。(携帯・PHS 可) ※光IP 電話、及びIP 電話からはご利用になれません 光IP電話、及びIP電話をご利用のお客様は以下へご連絡ください。 総合ご案内センター TEL:0120-117406 【物件番号】1610002-0001037 | ||||
| 管理会社 | 株式会社大京アステージ | ||||
| 施工会社 | 丸彦渡辺建設株式会社 | ||||
| 販売会社 | 株式会社 大京(売主) | ||||
| 情報提供元 |
株式会社大京[国土交通大臣(15)第792号] 東京都渋谷区千駄ヶ谷4-24-13 千駄ヶ谷第21大京ビル 【所属団体】 一般社団法人不動産協会、公益社団法人首都圏不動産公正取引協議会 | ||||
この物件の地図・周辺環境
このアイコンは物件のおおよその位置を表しており、実際の場所と異なる場合がございます。詳しくは不動産会社に直接ご確認ください。
取り扱い不動産会社
総合ご案内センター
- 電話番号
- 0120-117406
- 営業時間
- 10:00~18:00
- 定休日
- 火曜日・水曜日・第2木曜日
- 物件番号
- 1610002-0001037
電話で問い合わせる(無料)お急ぎの方はこちらから!
物件お問い合わせ専用ダイヤル
受付:10:00~18:00(定休日:火曜日・水曜日・第2木曜日) 携帯・PHS可
※携帯・PHS可。光IP電話、及びIP電話からはご利用になれません。
札幌駅の口コミ
子育て・病院
2.0
生活環境が充実している=繁華街だったり、不特定多数の人がいる為、子育て環境として個人的には好ましくないと思う。
子育て・病院
4.0
公園などはそんなに多くはないですし、都心で人も観光客も多く、騒がしいエリアではあるので、子育てにはあまり向いていないかもしれません。
札幌市東区の駅から新築マンションを探す
住宅ローンシミュレーション
住宅ローン設定
物件価格
返済期間
頭金
ボーナス払(年1回)
※
※物件価格の80%以下でお借入れの場合
※50歳以下で一般団信をご選択の場合
※住宅ローン金利優遇割適用後の変動金利(全期間引き下げプラン)
※実際のお借入日の金利により変動します。
※審査の結果によっては保証付金利プランとなる場合があり、この場合は上記とは異なる金利となります。
※別途借入金額の2.20%(税込)の事務手数料が発生します。
ボーナス払 | 35年間返済 | 30年間返済 | 25年間返済 | 20年間返済 | 15年間返済 | 10年間返済 |
|---|---|---|---|---|---|---|
0万円 | -円/月 | -円/月 | -円/月 | -円/月 | -円/月 | -円/月 |
5万円 | -円/月 | -円/月 | -円/月 | -円/月 | -円/月 | -円/月 |
10万円 | -円/月 | -円/月 | -円/月 | -円/月 | -円/月 | -円/月 |
15万円 | -円/月 | -円/月 | -円/月 | -円/月 | -円/月 | -円/月 |
20万円 | -円/月 | -円/月 | -円/月 | -円/月 | -円/月 | -円/月 |
25万円 | -円/月 | -円/月 | -円/月 | -円/月 | -円/月 | -円/月 |
30万円 | -円/月 | -円/月 | -円/月 | -円/月 | -円/月 | -円/月 |
ボーナス払 | 35年間返済 | 30年間返済 | 25年間返済 | 20年間返済 | 15年間返済 | 10年間返済 |
|---|---|---|---|---|---|---|
0万円 | -円/月 | -円/月 | -円/月 | -円/月 | -円/月 | -円/月 |
5万円 | -円/月 | -円/月 | -円/月 | -円/月 | -円/月 | -円/月 |
10万円 | -円/月 | -円/月 | -円/月 | -円/月 | -円/月 | -円/月 |
15万円 | -円/月 | -円/月 | -円/月 | -円/月 | -円/月 | -円/月 |
20万円 | -円/月 | -円/月 | -円/月 | -円/月 | -円/月 | -円/月 |
25万円 | -円/月 | -円/月 | -円/月 | -円/月 | -円/月 | -円/月 |
30万円 | -円/月 | -円/月 | -円/月 | -円/月 | -円/月 | -円/月 |
- ・金利は、今後35年間変動しない仮定のもと元利均等返済方式で計算しております。
- ・実際の金利は、各金融機関のホームページをご参照ください。
- ・ローン契約の際には、手数料や印紙税などの諸費用が別途かかります。
- ・ボーナス支払総額が総支払額の50%を超えている場合、上記の表では「ローン不可」となります。
- ・シミュレーションを利用し、それが原因で利用者が受けたいかなる損害についても当社は一切責任を負いません。あらかじめご了承ください。






































