新築マンションロイヤルガーデン高松駅南弐番館の詳細情報
3,430万円~5,560万円
月々のローン返済額を試算JR高松駅 徒歩7分(約540m)市立新番丁小学校 徒歩7分(約500m)永住を目指した品質・設備のハイグレードマンション【高品質・高性能・好価格】
外観・室内・設備(28枚)

アプローチ完成予想図
都市の鼓動を一歩で静める、私邸へのゲート。高松駅前の賑わいを背に、一歩足を踏み入れると、空気がふっとやわらぐ─。ガラス越しのライティングと緑陰が、日常の緊張をほどき、家族だけの穏やかな刻へと導いてくれます。その美しい境界が、この場所。

スライド収納
豊富な収納量と奥の物も取り出しやすいスライド収納。巾木部分の収納に加え、引出内部の包丁ホルダー(チャイルドロック付)も便利です。勢いよく閉じた場合にも減速して閉まってくれるソフトクローズ仕様です。

自動お湯張り・ポンプ循環式追い焚き機能付バス
給湯器の点火・消火・温度調節など、キッチンとバスルームのリモコンから簡単に操作できます。また、浴槽の自動お湯張り、追い焚き(循環式)機能付オートバスシステムを採用。快適なバスタイムをお約束します。

EV充電対応区画設置
次世代スタイルのカーライフに対応するため、敷地内に200VのEV充電対応区画(空配管)をご用意。電気自動車ユーザーにも、快適な日々をお約束します。(お客様の申し込みにより設備対応となります)

テレビモニター付オートロック
マンション生活においては、やはり安心して暮らせる環境が大切。「ロイヤルガーデン高松駅南弐番館」では、オートロックシステムを採用することで、そんな環境に配慮し、エントランスの来訪者をインターホンを通じて住戸内からテレビモニターで確認してから解錠する安心のシステムを採用いたしました。

テレビモニター付インターホン(録画機能付)
オートロックシステムに連動して室内テレビモニターで来訪者を確認することが出来ます。エントランスの来訪者を声とテレビモニターで確認することができ、防犯と安全性を高めるのに欠かせないシステムです。※画像はハメコミ合成です

複層ガラス
複層ガラスは中空層の空気により熱が伝わりにくいため、すぐれた断熱効果が得られます。また、室内側ガラスの表面温度が下がりにくいので、屋外と屋内の気温差により発生する結露の発生も抑えられます。(一部Low-Eガラス)

地盤調査
地盤は場所ごとに性質が異なるため、建築前に標準貫入試験を行い地盤の強度分布を測定、N値(強度の目安。大きいほど地盤が強い)を求めます。また、平行してボーリング(試掘)を行い、砂や粘土などの地層分布も調査。適切な基礎設計を行います。
国際的なスポーツ大会やイベントが可能な、新アリーナがオープン。次代を感じさせる高松駅の周辺開発も進み、いまターミナルエリアは「高松の新しい顔」として、その存在感が輝きはじめました。そんな、新都市の眩い豊かさと、歴史を受け継ぐ錦町の寛ぎをひとつにして、多彩な利便と寛ぎに染まる『ロイヤルガーデン高松駅南弐番館』。この革新のライフステージに、どうぞご期待ください。
ドアを開くたび、選んだ価値が広がる。玄関の一歩目から最後の灯りを落とす瞬間まで─すべてのドアが、ここでの暮らしの価値を静かに語り続けます。家族の笑顔が交差する食卓も、一人きりで深呼吸する夜のベッドサイドも、子どもが未来を描く小さな机の上も。すべてが明日へのエールとなり、貴方と家族のドラマを美しく紡ぐことでしょう。
安心と心地よさに包まれて暮らす。
周辺環境・アクセス(10枚)
物件概要
| 物件名 | ロイヤルガーデン高松駅南弐番館 | ||||
|---|---|---|---|---|---|
| 所在地 | 香川県高松市錦町1丁目261-1 | ||||
| 交通 |
JR予讃線「高松」駅 徒歩7分 (約540m) JR高徳線「高松」駅 徒歩7分 (約540m) JR土讃線「高松」駅 徒歩7分 (約540m) | ||||
| 構造および階数 | 鉄筋コンクリート造、地上15階建 | 敷地面積 | 1,169.59㎡(建築確認表示面積) | ||
| 完成時期 | 2027年1月上旬予定 | 入居時期 | 2027年3月上旬予定 | ||
| 土地権利 | - | ||||
| 駐車場 | - | ||||
| 分譲後の権利形態 | 敷地:専有面積持分比率による敷地権(所有権)の共有、建物:区分所有権 | ||||
| 管理形態 | 入居後、区分所有者全員により管理組合を結成し、管理会社に委託、管理人の勤務形態:通勤管理 | ||||
| 取引態様 | 株式会社和田コーポレーション(売主) | 用途地域 | 商業地域 | ||
| 建築確認番号 | 第ERI-24029264号(2024年11月5日付)、計画変更番号:第ERI-25008064号(2025年3月26日付) | ||||
| 共有施設 | - | ||||
| 設備 | - | ||||
| 備考 | - | ||||
情報更新日:2025/11/25 次回更新予定日:随時
販売概要
| 販売価格 | 3,430万円~5,560万円 お問い合わせはこちら | ||||
|---|---|---|---|---|---|
| 販売スケジュール | 先着順 | ||||
| 販売戸数/総戸数 | 16戸/56戸(管理事務室を除く) | ||||
| 最多価格帯 | 3,500万円台(3戸) | ||||
| 管理費 | 8,400円~12,600円(月額) | ||||
| 修繕積立金 | 3,700円~5,600円(月額) | 修繕積立基金 | 216,000円~326,000円(一括) | ||
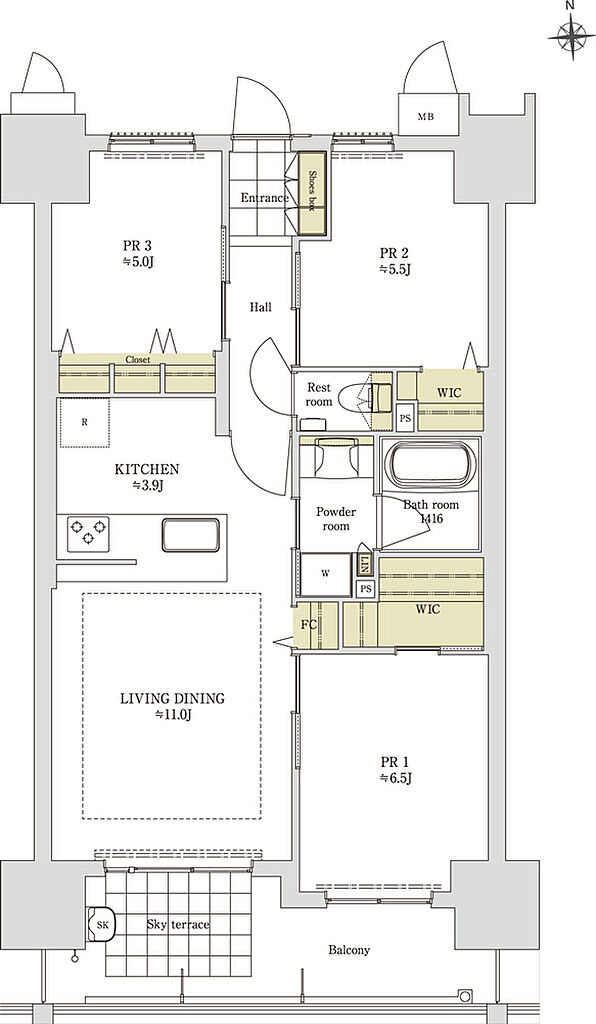
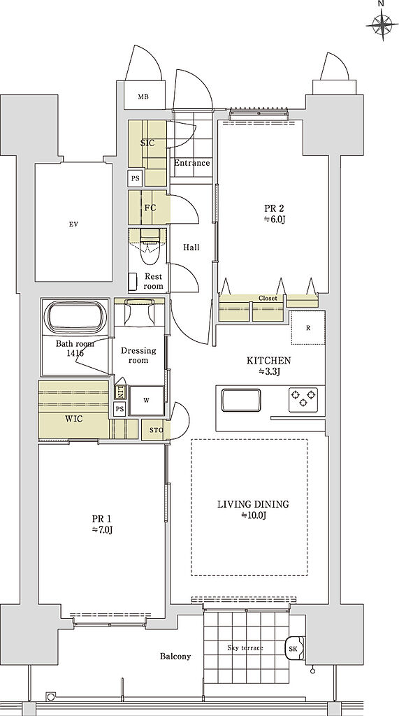
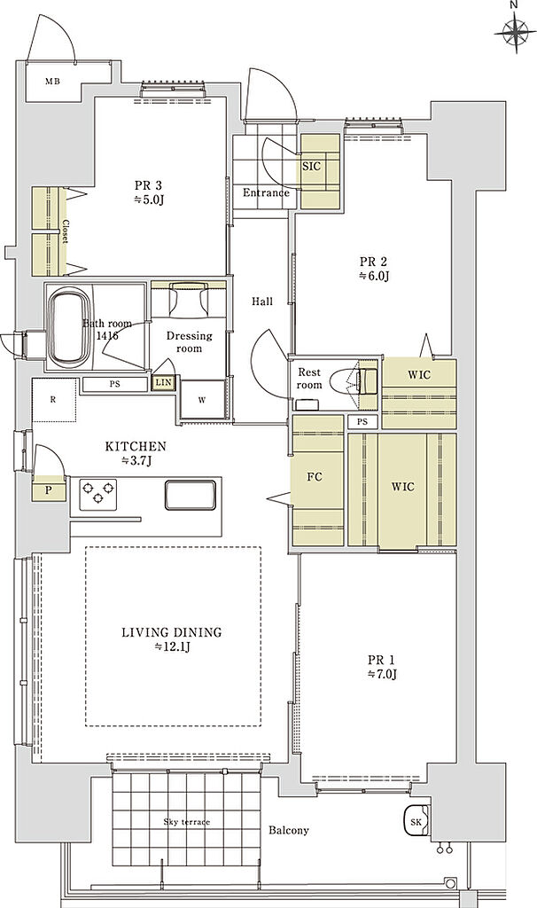
| 間取り | 2LDK+WIC+FC+SIC~3LDK+3WIC+FC+P+SIC | ||||
| 専有面積 | 61.67㎡~93.01㎡ | バルコニー面積 | 11.73㎡~15.69㎡(スカイテラス面積含む) | ||
| その他面積 | - | ||||
| その他施設費用、償却費 | - | ||||
| その他費用 | 【保証金、敷金】:- | ||||
| 登録受付 | - | 抽選日 | - | ||
| 取引条件有効期限 | 取引条件有効期限:2026-01-31 | ||||
会社情報
| 売主 | 株式会社和田コーポレーション | ||||
|---|---|---|---|---|---|
| お問い合わせ先 |
『ロイヤルガーデン高松駅南弐番館』高松マンションギャラリー 0037-619-30564(無料通話) 上記の電話番号にお問合せください。(携帯・PHS 可) ※光IP 電話、及びIP 電話からはご利用になれません 光IP電話、及びIP電話をご利用のお客様は以下へご連絡ください。 『ロイヤルガーデン高松駅南弐番館』高松マンションギャラリー TEL:087-866-0711 【物件番号】1600519-0000095 | ||||
| 管理会社 | 株式会社合人社計画研究所 | ||||
| 施工会社 | 東亜建設工業株式会社 | ||||
| 販売会社 | 株式会社和田コーポレーション(売主) | ||||
| 情報提供元 |
株式会社和田コーポレーション[国土交通大臣(4)第6884号] 香川県丸亀市大手町1丁目3番11号 和田大手町ビル 【所属団体】 四国地区不動産公正取引協議会、(公社)香川県宅地建物取引業協会 | ||||
この物件の地図・周辺環境
このアイコンは物件のおおよその位置を表しており、実際の場所と異なる場合がございます。詳しくは不動産会社に直接ご確認ください。
取り扱い不動産会社
『ロイヤルガーデン高松駅南弐番館』高松マンションギャラリー
- 電話番号
- 087-866-0711
- 営業時間
- 10:00~18:00 (定休日)火・水・第2木曜日
- 物件番号
- 1600519-0000095
和田コーポレーション
電話で問い合わせる(無料)お急ぎの方はこちらから!
物件お問い合わせ専用ダイヤル
受付:10:00~18:00 (定休日)火・水・第2木曜日 携帯・PHS可
※携帯・PHS可。光IP電話、及びIP電話からはご利用になれません。
高松駅の口コミ
お買い物・飲食
4.0
香川県なので安くて手軽に食べれるうどん屋さんが駅前にありよく利用していました。逆にコンビニも駅前まで行かないとないのでそこはコンビニをよく利用する人は注意です。
お買い物・飲食
4.0
商店街に飲食店が豊富だが、チェーン店の飲食店が少な目 中心部なので大型ショッピングモールが無い、スーパーのマルナカもかなりの小規模店
高松市近隣の市区町村から新築マンションを探す
住宅ローンシミュレーション
住宅ローン設定
物件価格
返済期間
頭金
ボーナス払(年1回)
※
※物件価格の80%以下でお借入れの場合
※50歳以下で一般団信をご選択の場合
※住宅ローン金利優遇割適用後の変動金利(全期間引き下げプラン)
※実際のお借入日の金利により変動します。
※審査の結果によっては保証付金利プランとなる場合があり、この場合は上記とは異なる金利となります。
※別途借入金額の2.20%(税込)の事務手数料が発生します。
ボーナス払 | 35年間返済 | 30年間返済 | 25年間返済 | 20年間返済 | 15年間返済 | 10年間返済 |
|---|---|---|---|---|---|---|
0万円 | -円/月 | -円/月 | -円/月 | -円/月 | -円/月 | -円/月 |
5万円 | -円/月 | -円/月 | -円/月 | -円/月 | -円/月 | -円/月 |
10万円 | -円/月 | -円/月 | -円/月 | -円/月 | -円/月 | -円/月 |
15万円 | -円/月 | -円/月 | -円/月 | -円/月 | -円/月 | -円/月 |
20万円 | -円/月 | -円/月 | -円/月 | -円/月 | -円/月 | -円/月 |
25万円 | -円/月 | -円/月 | -円/月 | -円/月 | -円/月 | -円/月 |
30万円 | -円/月 | -円/月 | -円/月 | -円/月 | -円/月 | -円/月 |
ボーナス払 | 35年間返済 | 30年間返済 | 25年間返済 | 20年間返済 | 15年間返済 | 10年間返済 |
|---|---|---|---|---|---|---|
0万円 | -円/月 | -円/月 | -円/月 | -円/月 | -円/月 | -円/月 |
5万円 | -円/月 | -円/月 | -円/月 | -円/月 | -円/月 | -円/月 |
10万円 | -円/月 | -円/月 | -円/月 | -円/月 | -円/月 | -円/月 |
15万円 | -円/月 | -円/月 | -円/月 | -円/月 | -円/月 | -円/月 |
20万円 | -円/月 | -円/月 | -円/月 | -円/月 | -円/月 | -円/月 |
25万円 | -円/月 | -円/月 | -円/月 | -円/月 | -円/月 | -円/月 |
30万円 | -円/月 | -円/月 | -円/月 | -円/月 | -円/月 | -円/月 |
- ・金利は、今後35年間変動しない仮定のもと元利均等返済方式で計算しております。
- ・実際の金利は、各金融機関のホームページをご参照ください。
- ・ローン契約の際には、手数料や印紙税などの諸費用が別途かかります。
- ・ボーナス支払総額が総支払額の50%を超えている場合、上記の表では「ローン不可」となります。
- ・シミュレーションを利用し、それが原因で利用者が受けたいかなる損害についても当社は一切責任を負いません。あらかじめご了承ください。




































