新築マンションブランシエラ南洲門前通りの詳細情報
4,100万円~6,530万円
月々のローン返済額を試算JR鹿児島駅(徒歩8分(約600m))など自在なアクセス、全159邸、ZEHマンションが春日町に登場。
外観・室内・設備(29枚)

敷地配置図
【1】Community YOTSUBA【2】ランドリー【3】そよかぜテラス【4】駐車スペース【5】宅配ロッカー【6】24時間ゴミ出し【7】防災備蓄倉庫【8】EV充電設備【9】Share Labo

浄水器一体型シャワー水栓
水栓はシャワーホースを引き出して使えるスライドタイプ。シンクの隅々まで水が行き渡り、シンクを清潔に保てます。浄水器はカートリッジが本体に収納されたタイプです。(交換カートリッジは別途有償です。)
敷地内には豊かな植栽をプランニングし、上質感漂うラウンジやテラスを設けることで、人々が集い、癒しや憩いの時を共有する安らぎの「都」をつくりたいと考えました。それは、歴史を受け継ぎ、未来へと続く新しい都の象徴です。歴史と今、和と洋、人と人が「クロス」する159邸。趣 都 〈しゅと〉。地の趣を継承し、住の趣を創造するクロスレジデンスがここに誕生します。
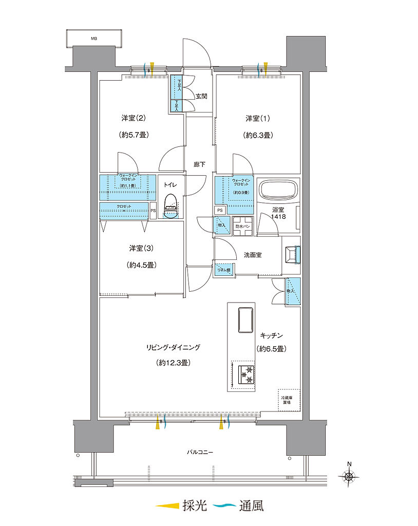
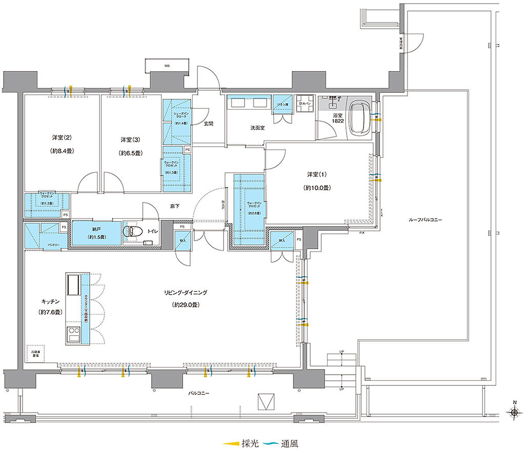
さまざまなご家族の理想にあわせた2LDK~4LDK、全19タイプのプラン。
持続可能な未来を目指した省エネルギーマンション
周辺環境・アクセス(11枚)
物件概要
| 物件名 | ブランシエラ南洲門前通り | ||||
|---|---|---|---|---|---|
| 所在地 | 鹿児島県鹿児島市春日町4-7、4-8、4-16(地番) | ||||
| 交通 |
JR日豊本線「鹿児島」駅 徒歩8分 | ||||
| 構造および階数 | 鉄筋コンクリート造 地下1階地上14階建 | 敷地面積 | 6,429.96㎡ | ||
| 完成時期 | 2027年1月予定 | 入居時期 | 2027年3月予定 | ||
| 土地権利 | - | ||||
| 駐車場 | - | ||||
| 分譲後の権利形態 | <敷地>専有面積割合による所有権の共有、<建物>専有部分は区分所有権、共用部分は専有面積割合による所有権の共有 | ||||
| 管理形態 | 管理組合結成後、管理会社に委託、管理人の勤務形態:日勤 | ||||
| 取引態様 | 株式会社長谷工アーベスト(代理) | 用途地域 | 第1種住居地域 | ||
| 建築確認番号 | 第KJH24-03011-1号(2025年2月7日)、第KJH24-03011-2号(2025年8月27日) | ||||
| 共有施設 | ■駐車場:166台(平置132台(うち身障者対応1台、来客用1台)、機械式34台)(月額使用料:4,000円~15,000円)■自転車置場:175台(スライドラック式167台、ラック式8台)(月額使用料:100円)■バイク置場:14台(月額使用料:1,000円~2,000円) | ||||
| 設備 | - | ||||
| 備考 | - | ||||
情報更新日:2026/03/05 次回更新予定日:随時
販売概要
| 販売価格 | 4,100万円~6,530万円 お問い合わせはこちら | ||||
|---|---|---|---|---|---|
| 販売スケジュール | 先着順申込受付中 | ||||
| 販売戸数/総戸数 | 12戸/159戸(他、フロントオフィス(管理事務室)1戸) | ||||
| 最多価格帯 | 4,400万円台(3戸) | ||||
| 管理費 | 9,700円~14,400円(月額) | ||||
| 修繕積立金 | 8,040円~11,980円(月額) | 修繕積立基金 | 536,000円~799,000円(引渡時一括払い) | ||
| 間取り | 3LDK・4LDK | ||||
| 専有面積 | 66.97㎡~99.76㎡ | バルコニー面積 | 11.31㎡~32.45㎡ | ||
| その他面積 | ■サービスバルコニー面積/2.33㎡ | ||||
| その他施設費用、償却費 | ■インターネット利用料(月額):550円 | ||||
| その他費用 | 【保証金、敷金】:-、【その他費用】:管理準備金(引渡時一括払い):18,100円~26,900円 | ||||
| 登録受付 | - | 抽選日 | - | ||
| 取引条件有効期限 | 取引条件有効期限:2026-03-31 | ||||
モデルルーム情報
| 営業時間 | 10:00~18:00 | 定休日 | 水・木曜日(祝日除く) | ||
|---|---|---|---|---|---|
| 開催期間 | - | 登録受付 | - | ||
| 販売スケジュール | 先着順申込受付中 | 抽選日 | - | ||
| モデルルーム所在地 | - | ||||
| お問い合わせ先 |
ブランシエラマンションギャラリー 0037-619-34377(通話無料) お問合せ受付時間:営業時間/10:00~18:00、定休日/水・木曜日(祝日除く) | ||||
会社情報
| 売主 | 株式会社長谷工不動産、東京建物株式会社(国土交通大臣(17)第6 号) | ||||
|---|---|---|---|---|---|
| お問い合わせ先 |
ブランシエラマンションギャラリー 0037-619-34377(無料通話) 上記の電話番号にお問合せください。(携帯・PHS 可) ※光IP 電話、及びIP 電話からはご利用になれません 光IP電話、及びIP電話をご利用のお客様は以下へご連絡ください。 ブランシエラマンションギャラリー TEL:0120-845-159 【物件番号】1601992-0000013 | ||||
| 管理会社 | 株式会社長谷工コミュニティ九州 | ||||
| 施工会社 | 吉原建設株式会社 | ||||
| 販売会社 | 株式会社長谷工アーベスト(代理) | ||||
| 情報提供元 |
株式会社長谷工不動産 九州支店[国土交通大臣(6)第5600号] 福岡県福岡市博多区博多駅前1-21-28 いちご博多駅前スクエア 2F 【所属団体】 (公社)首都圏不動産公正取引協議会、(一社)全国住宅産業協会 | ||||
この物件の地図・周辺環境
このアイコンは物件のおおよその位置を表しており、実際の場所と異なる場合がございます。詳しくは不動産会社に直接ご確認ください。
取り扱い不動産会社
ブランシエラマンションギャラリー
- 電話番号
- 0120-845-159
- 営業時間
- 10:00~18:00
- 定休日
- 水・木曜日(祝日除く)
- 物件番号
- 1601992-0000013
長谷工不動産
電話で問い合わせる(無料)お急ぎの方はこちらから!
物件お問い合わせ専用ダイヤル
受付:10:00~18:00(定休日:水・木曜日(祝日除く)) 携帯・PHS可
※携帯・PHS可。光IP電話、及びIP電話からはご利用になれません。
住宅ローンシミュレーション
住宅ローン設定
物件価格
返済期間
頭金
ボーナス払(年1回)
※
※物件価格の80%以下でお借入れの場合
※50歳以下で一般団信をご選択の場合
※住宅ローン金利優遇割適用後の変動金利(全期間引き下げプラン)
※実際のお借入日の金利により変動します。
※審査の結果によっては保証付金利プランとなる場合があり、この場合は上記とは異なる金利となります。
※別途借入金額の2.20%(税込)の事務手数料が発生します。
ボーナス払 | 35年間返済 | 30年間返済 | 25年間返済 | 20年間返済 | 15年間返済 | 10年間返済 |
|---|---|---|---|---|---|---|
0万円 | -円/月 | -円/月 | -円/月 | -円/月 | -円/月 | -円/月 |
5万円 | -円/月 | -円/月 | -円/月 | -円/月 | -円/月 | -円/月 |
10万円 | -円/月 | -円/月 | -円/月 | -円/月 | -円/月 | -円/月 |
15万円 | -円/月 | -円/月 | -円/月 | -円/月 | -円/月 | -円/月 |
20万円 | -円/月 | -円/月 | -円/月 | -円/月 | -円/月 | -円/月 |
25万円 | -円/月 | -円/月 | -円/月 | -円/月 | -円/月 | -円/月 |
30万円 | -円/月 | -円/月 | -円/月 | -円/月 | -円/月 | -円/月 |
ボーナス払 | 35年間返済 | 30年間返済 | 25年間返済 | 20年間返済 | 15年間返済 | 10年間返済 |
|---|---|---|---|---|---|---|
0万円 | -円/月 | -円/月 | -円/月 | -円/月 | -円/月 | -円/月 |
5万円 | -円/月 | -円/月 | -円/月 | -円/月 | -円/月 | -円/月 |
10万円 | -円/月 | -円/月 | -円/月 | -円/月 | -円/月 | -円/月 |
15万円 | -円/月 | -円/月 | -円/月 | -円/月 | -円/月 | -円/月 |
20万円 | -円/月 | -円/月 | -円/月 | -円/月 | -円/月 | -円/月 |
25万円 | -円/月 | -円/月 | -円/月 | -円/月 | -円/月 | -円/月 |
30万円 | -円/月 | -円/月 | -円/月 | -円/月 | -円/月 | -円/月 |
- ・金利は、今後35年間変動しない仮定のもと元利均等返済方式で計算しております。
- ・実際の金利は、各金融機関のホームページをご参照ください。
- ・ローン契約の際には、手数料や印紙税などの諸費用が別途かかります。
- ・ボーナス支払総額が総支払額の50%を超えている場合、上記の表では「ローン不可」となります。
- ・シミュレーションを利用し、それが原因で利用者が受けたいかなる損害についても当社は一切責任を負いません。あらかじめご了承ください。
















































