新築マンションロイヤルガーデン本町一丁目の詳細情報
2,880万円~4,980万円
月々のローン返済額を試算次代に向けて新たなるRGが始動。それは、かつてないスマートライフのご提案。高知都心エリアを掌中にする寛ぎの邸宅です。高知市の新築分譲マンション - 永住を目指した品質・設備の新築分譲マンション。
外観・室内・設備(4枚)
周辺環境・アクセス(10枚)
高知都心に暮らす未来は、貴方の日々を素敵に変貌させていきます。帯屋町商店街まで徒歩3分、とさでん交通「堀詰」電停へ徒歩2分。本町一丁目は、徒歩圏内にショッピング、医療、金融、公共などの施設が揃い、豊かな利便性が息づく街。魅力あふれるアドレスは、暮らす人の未来をきっと素敵に変えてくれるでしょう。寛ぎと豊かさに包まれて、毎日を心地よく過ごせます。
物件概要
| 物件名 | ロイヤルガーデン本町一丁目 | ||||
|---|---|---|---|---|---|
| 所在地 | 高知県高知市本町一丁目108番1 | ||||
| 交通 |
とさでん交通市内線「堀詰」駅 徒歩2分 | ||||
| 構造および階数 | 鉄筋コンクリート造、地上15階建 | 敷地面積 | 1,193.00㎡(建築確認対象面積) | ||
| 完成時期 | 2027年5月下旬(予定) | 入居時期 | 2027年7月下旬(予定) | ||
| 土地権利 | - | ||||
| 駐車場 | - | ||||
| 分譲後の権利形態 | 敷地:専有面積持分比率による敷地権(所有権)の共有、建物:区分所有権 | ||||
| 管理形態 | 入居後、区分所有者全員により管理組合を結成し、管理会社に委託、管理人の勤務形態:通勤管理 | ||||
| 取引態様 | 株式会社和田コーポレーション(売主) | 用途地域 | 商業地域 | ||
| 建築確認番号 | 第ERI-24041256(2025年3月11日付) | ||||
| 共有施設 | - | ||||
| 設備 | - | ||||
| 備考 | - | ||||
情報更新日:2025/12/08 次回更新予定日:随時
販売概要
| 販売価格 | 2,880万円~4,980万円 お問い合わせはこちら | ||||
|---|---|---|---|---|---|
| 販売スケジュール | 先着順 | ||||
| 販売戸数/総戸数 | 14戸/56戸(管理事務室を除く) | ||||
| 最多価格帯 | 3,200万円台(3戸) | ||||
| 管理費 | 6,200円~9,900円(月額) | ||||
| 修繕積立金 | 3,800円~6,100円(月額) | 修繕積立基金 | 337,000円~543,000円(一括) | ||
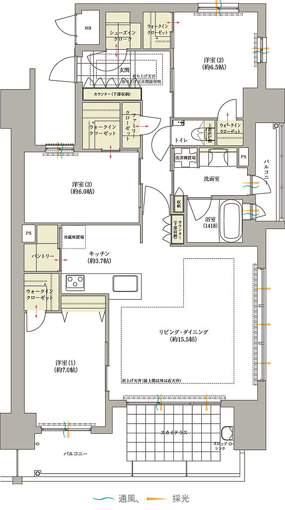
| 間取り | 2LDK+WIC~3LDK+4WIC+FC+P+SIC | ||||
| 専有面積 | 58.09㎡~93.66㎡ | バルコニー面積 | 11.80㎡~19.38㎡(スカイテラス面積含む) | ||
| その他面積 | - | ||||
| その他施設費用、償却費 | - | ||||
| その他費用 | 【保証金、敷金】:- | ||||
| 登録受付 | - | 抽選日 | - | ||
| 取引条件有効期限 | 取引条件有効期限:2026-01-31 | ||||
モデルルーム情報
| 営業時間 | 10:00~18:00 | 定休日 | 火曜日・水曜日・第2木曜日 | ||
|---|---|---|---|---|---|
| 開催期間 | - | 登録受付 | - | ||
| 販売スケジュール | 先着順 | 抽選日 | - | ||
| モデルルーム所在地 | 高知県高知市新本町1丁目6-28 | ||||
| お問い合わせ先 |
『ロイヤルガーデン本町一丁目』 高知マンションギャラリー 0037-619-48167(通話無料) お問合せ受付時間:営業時間/10:00~18:00、定休日/火曜日・水曜日・第2木曜日 | ||||
会社情報
| 売主 | 株式会社和田コーポレーション | ||||
|---|---|---|---|---|---|
| お問い合わせ先 |
『ロイヤルガーデン本町一丁目』 高知マンションギャラリー 0037-619-48167(無料通話) 上記の電話番号にお問合せください。(携帯・PHS 可) ※光IP 電話、及びIP 電話からはご利用になれません 光IP電話、及びIP電話をご利用のお客様は以下へご連絡ください。 『ロイヤルガーデン本町一丁目』 高知マンションギャラリー TEL:088-826-3501 【物件番号】1600519-0000097 | ||||
| 管理会社 | 株式会社合人社計画研究所 | ||||
| 施工会社 | 株式会社岸之上工務店 | ||||
| 販売会社 | 株式会社和田コーポレーション(売主) | ||||
| 情報提供元 |
株式会社和田コーポレーション[国土交通大臣(4)第6884号] 香川県丸亀市大手町1丁目3番11号 和田大手町ビル 【所属団体】 四国地区不動産公正取引協議会、(公社)香川県宅地建物取引業協会 | ||||
この物件の地図・周辺環境
このアイコンは物件のおおよその位置を表しており、実際の場所と異なる場合がございます。詳しくは不動産会社に直接ご確認ください。
取り扱い不動産会社
『ロイヤルガーデン本町一丁目』 高知マンションギャラリー
- 電話番号
- 088-826-3501
- 営業時間
- 10:00~18:00
- 定休日
- 火曜日・水曜日・第2木曜日
- 物件番号
- 1600519-0000097
和田コーポレーション
電話で問い合わせる(無料)お急ぎの方はこちらから!
物件お問い合わせ専用ダイヤル
受付:10:00~18:00(定休日:火曜日・水曜日・第2木曜日) 携帯・PHS可
※携帯・PHS可。光IP電話、及びIP電話からはご利用になれません。
住宅ローンシミュレーション
住宅ローン設定
物件価格
返済期間
頭金
ボーナス払(年1回)
※
※物件価格の80%以下でお借入れの場合
※50歳以下で一般団信をご選択の場合
※住宅ローン金利優遇割適用後の変動金利(全期間引き下げプラン)
※実際のお借入日の金利により変動します。
※審査の結果によっては保証付金利プランとなる場合があり、この場合は上記とは異なる金利となります。
※別途借入金額の2.20%(税込)の事務手数料が発生します。
ボーナス払 | 35年間返済 | 30年間返済 | 25年間返済 | 20年間返済 | 15年間返済 | 10年間返済 |
|---|---|---|---|---|---|---|
0万円 | -円/月 | -円/月 | -円/月 | -円/月 | -円/月 | -円/月 |
5万円 | -円/月 | -円/月 | -円/月 | -円/月 | -円/月 | -円/月 |
10万円 | -円/月 | -円/月 | -円/月 | -円/月 | -円/月 | -円/月 |
15万円 | -円/月 | -円/月 | -円/月 | -円/月 | -円/月 | -円/月 |
20万円 | -円/月 | -円/月 | -円/月 | -円/月 | -円/月 | -円/月 |
25万円 | -円/月 | -円/月 | -円/月 | -円/月 | -円/月 | -円/月 |
30万円 | -円/月 | -円/月 | -円/月 | -円/月 | -円/月 | -円/月 |
ボーナス払 | 35年間返済 | 30年間返済 | 25年間返済 | 20年間返済 | 15年間返済 | 10年間返済 |
|---|---|---|---|---|---|---|
0万円 | -円/月 | -円/月 | -円/月 | -円/月 | -円/月 | -円/月 |
5万円 | -円/月 | -円/月 | -円/月 | -円/月 | -円/月 | -円/月 |
10万円 | -円/月 | -円/月 | -円/月 | -円/月 | -円/月 | -円/月 |
15万円 | -円/月 | -円/月 | -円/月 | -円/月 | -円/月 | -円/月 |
20万円 | -円/月 | -円/月 | -円/月 | -円/月 | -円/月 | -円/月 |
25万円 | -円/月 | -円/月 | -円/月 | -円/月 | -円/月 | -円/月 |
30万円 | -円/月 | -円/月 | -円/月 | -円/月 | -円/月 | -円/月 |
- ・金利は、今後35年間変動しない仮定のもと元利均等返済方式で計算しております。
- ・実際の金利は、各金融機関のホームページをご参照ください。
- ・ローン契約の際には、手数料や印紙税などの諸費用が別途かかります。
- ・ボーナス支払総額が総支払額の50%を超えている場合、上記の表では「ローン不可」となります。
- ・シミュレーションを利用し、それが原因で利用者が受けたいかなる損害についても当社は一切責任を負いません。あらかじめご了承ください。



















