新築マンションシエリア島本/予告広告の詳細情報
4,300万円台~6,900万円台(予告広告)
月々のローン返済額を試算
この広告は予告広告です。販売を開始するまでは、契約または予約(仮予約を含む)のお申込みには一切応じられませんのでご了承ください。
価格または販売方法が未定の場合は、新規分譲広告にて確定情報をお知らせします。
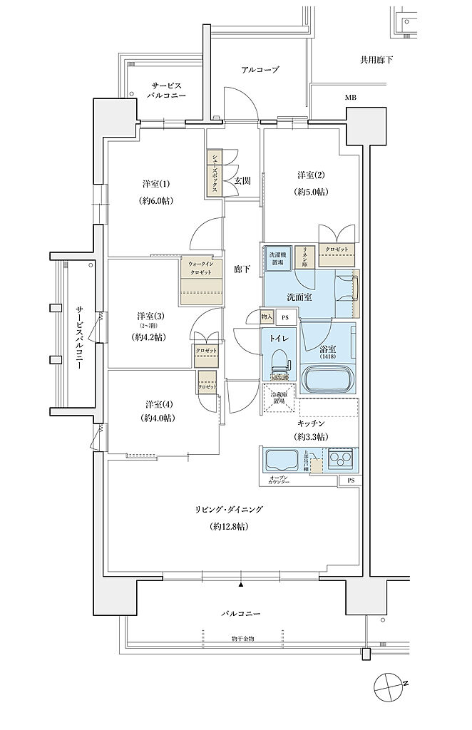
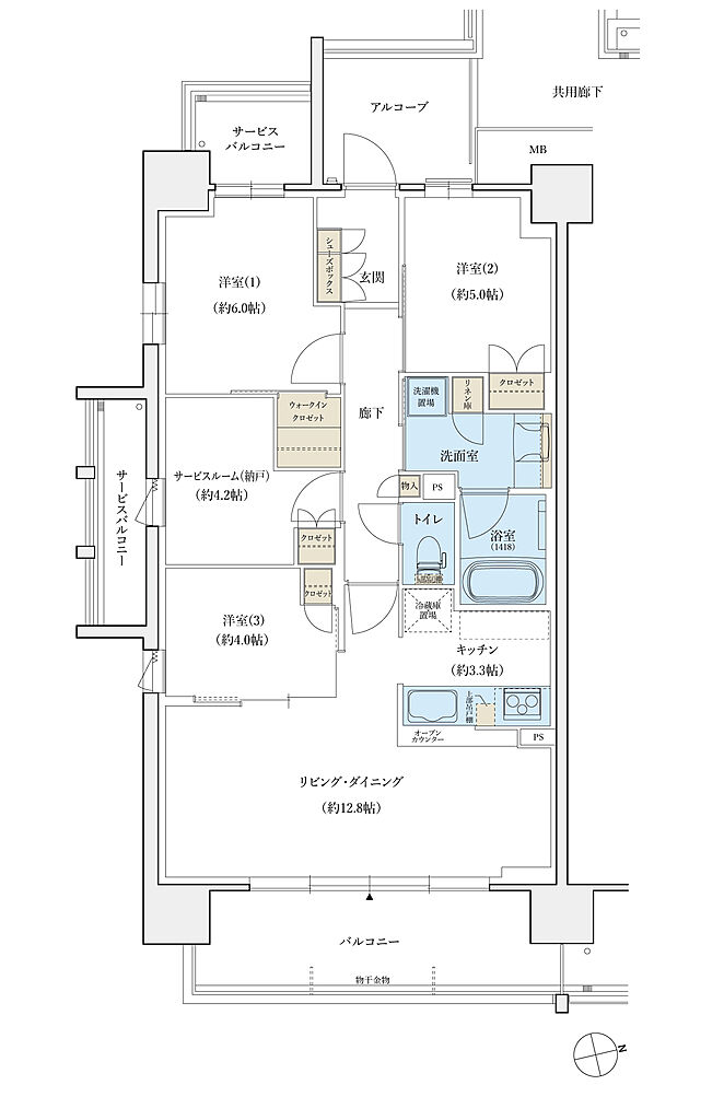
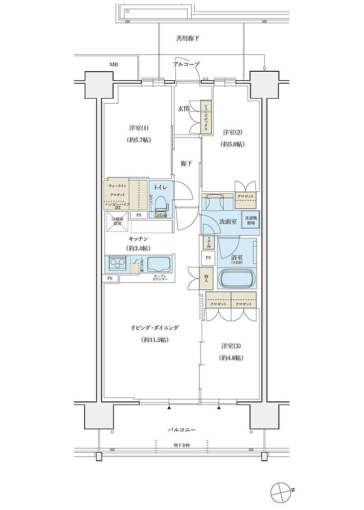
販売予定価格 3LDK 4,300万円台~
外観・室内・設備(1枚)
周辺環境・アクセス(11枚)
物件概要
| 物件名 | シエリア島本/予告広告 | ||||
|---|---|---|---|---|---|
| 所在地 | 大阪府三島郡島本町百山794-5他 | ||||
| 交通 |
JR東海道・山陽本線「島本」駅 徒歩8分 阪急京都本線「水無瀬」駅 徒歩14分 | ||||
| 構造および階数 | 鉄筋コンクリート造 地上11階建て | 敷地面積 | 7,385.44㎡ | ||
| 完成時期 | 2027年9月中旬予定 | 入居時期 | 2027年10月下旬予定 | ||
| 土地権利 | 所有権 | ||||
| 駐車場 | - | ||||
| 分譲後の権利形態 | 建物は区分所有、敷地及び建物共用部分は専有面積割合による所有権の共有 | ||||
| 管理形態 | 区分所有者全員で管理組合を結成し、管理業務等は管理会社へ委託予定、管理人の勤務形態:日勤予定 | ||||
| 取引態様 | プレジオコーポレーション株式会社(販売代理)、株式会社ビーロット大阪支社(販売代理) | 用途地域 | 第二種住居地域 | ||
| 建築確認番号 | 第ERI-24033613 | ||||
| 共有施設 | ■駐車場:167台(来客用2台含む)■バイク置場:5台■自転車置場:416台■ミニバイク置場:8台 | ||||
| 設備 | - | ||||
| 備考 | - | ||||
情報更新日:2025/11/19 次回更新予定日:2025/12/03
販売概要
| 販売価格 | 4,300万円台~6,900万円台(予告広告) お問い合わせはこちら | ||||
|---|---|---|---|---|---|
| 販売スケジュール | 販売開始時期/2026年6月下旬予定 | ||||
| 販売戸数/総戸数 | 9戸/207戸 | ||||
| 予定最多価格帯 | - | ||||
| 管理費 | 未定 | ||||
| 修繕積立金 | 未定 | 修繕積立基金 | 未定 | ||
| 間取り | 2LDK~4LDK | ||||
| 専有面積 | 61.83㎡~81.88㎡ | バルコニー面積 | 8.13㎡~17.63㎡ | ||
| その他面積 | ■アルコーブ面積/3.8㎡~5.98㎡ ■テラス面積/8.13㎡~11.34㎡ | ||||
| その他施設費用、償却費 | - | ||||
| その他費用 | 【保証金、敷金】:-、【その他費用】:管理準備金:未定 | ||||
| 登録受付 | - | 抽選日 | - | ||
| 取引条件有効期限 | - | ||||
会社情報
| 売主 | 関電不動産開発株式会社、積水化学工業株式会社(国土交通大臣(15)第000967号) | ||||
|---|---|---|---|---|---|
| お問い合わせ先 |
「シエリア島本」プロジェクト準備室 0037-619-28248(無料通話) 上記の電話番号にお問合せください。(携帯・PHS 可) ※光IP 電話、及びIP 電話からはご利用になれません 光IP電話、及びIP電話をご利用のお客様は以下へご連絡ください。 「シエリア島本」プロジェクト準備室 TEL:0120-530-207 【物件番号】1601054-0000090 | ||||
| 管理会社 | 関電コミュニティ株式会社 | ||||
| 施工会社 | 株式会社長谷工コーポレーション | ||||
| 販売会社 | プレジオコーポレーション株式会社(販売代理)、株式会社ビーロット大阪支社(販売代理) | ||||
| 情報提供元 |
関電不動産開発株式会社[国土交通大臣(5)第6379号] 大阪府大阪市北区中之島3-3-23 【所属団体】 (公社)首都圏不動産公正取引協議会、(一社)不動産協会、(一社)大阪土地協会会員 | ||||
この物件の地図・周辺環境
このアイコンは物件のおおよその位置を表しており、実際の場所と異なる場合がございます。詳しくは不動産会社に直接ご確認ください。
取り扱い不動産会社
「シエリア島本」プロジェクト準備室
- 電話番号
- 0120-530-207
- 営業時間
- 10:00~18:00 定休日/水曜・日曜
- 物件番号
- 1601054-0000090
電話で問い合わせる(無料)お急ぎの方はこちらから!
物件お問い合わせ専用ダイヤル
受付:10:00~18:00 定休日/水曜・日曜 携帯・PHS可
※携帯・PHS可。光IP電話、及びIP電話からはご利用になれません。
島本駅の口コミ
お買い物・飲食
4.0
生協(コープ)が近くて便利である。JR島本駅の向こうにスーパーができたため、選択肢が増えた。阪急水無瀬駅の方には、飲食店もある。
自然環境
4.0
島本町、とてものどかなところです。でも、島本駅から東海道に乗ったら直で京都へ出られます。サントリーの山崎蒸留所(アクセスは山崎駅からが近いです)があるくらい水が綺麗なところなので、自然豊かがお好きな方にいいと思います。
三島郡島本町の駅から新築マンションを探す
住宅ローンシミュレーション
住宅ローン設定
物件価格
返済期間
頭金
ボーナス払(年1回)
※
※物件価格の80%以下でお借入れの場合
※50歳以下で一般団信をご選択の場合
※住宅ローン金利優遇割適用後の変動金利(全期間引き下げプラン)
※実際のお借入日の金利により変動します。
※審査の結果によっては保証付金利プランとなる場合があり、この場合は上記とは異なる金利となります。
※別途借入金額の2.20%(税込)の事務手数料が発生します。
ボーナス払 | 35年間返済 | 30年間返済 | 25年間返済 | 20年間返済 | 15年間返済 | 10年間返済 |
|---|---|---|---|---|---|---|
0万円 | -円/月 | -円/月 | -円/月 | -円/月 | -円/月 | -円/月 |
5万円 | -円/月 | -円/月 | -円/月 | -円/月 | -円/月 | -円/月 |
10万円 | -円/月 | -円/月 | -円/月 | -円/月 | -円/月 | -円/月 |
15万円 | -円/月 | -円/月 | -円/月 | -円/月 | -円/月 | -円/月 |
20万円 | -円/月 | -円/月 | -円/月 | -円/月 | -円/月 | -円/月 |
25万円 | -円/月 | -円/月 | -円/月 | -円/月 | -円/月 | -円/月 |
30万円 | -円/月 | -円/月 | -円/月 | -円/月 | -円/月 | -円/月 |
ボーナス払 | 35年間返済 | 30年間返済 | 25年間返済 | 20年間返済 | 15年間返済 | 10年間返済 |
|---|---|---|---|---|---|---|
0万円 | -円/月 | -円/月 | -円/月 | -円/月 | -円/月 | -円/月 |
5万円 | -円/月 | -円/月 | -円/月 | -円/月 | -円/月 | -円/月 |
10万円 | -円/月 | -円/月 | -円/月 | -円/月 | -円/月 | -円/月 |
15万円 | -円/月 | -円/月 | -円/月 | -円/月 | -円/月 | -円/月 |
20万円 | -円/月 | -円/月 | -円/月 | -円/月 | -円/月 | -円/月 |
25万円 | -円/月 | -円/月 | -円/月 | -円/月 | -円/月 | -円/月 |
30万円 | -円/月 | -円/月 | -円/月 | -円/月 | -円/月 | -円/月 |
- ・金利は、今後35年間変動しない仮定のもと元利均等返済方式で計算しております。
- ・実際の金利は、各金融機関のホームページをご参照ください。
- ・ローン契約の際には、手数料や印紙税などの諸費用が別途かかります。
- ・ボーナス支払総額が総支払額の50%を超えている場合、上記の表では「ローン不可」となります。
- ・シミュレーションを利用し、それが原因で利用者が受けたいかなる損害についても当社は一切責任を負いません。あらかじめご了承ください。

















