新築マンションアルファ藤枝駅前ザ・タワーの詳細情報
4,320万円(1戸)〜;6,280万円(2戸)
月々のローン返済額を試算進化を続ける「駅前一丁目9街区」エリアの地上21階建てタワーレジデンスJR東海道線「藤枝」駅(約160m)徒歩2分省エネ性能ZEH-M Oriented/免震構造タワーレジデンス
外観・室内・設備(21枚)

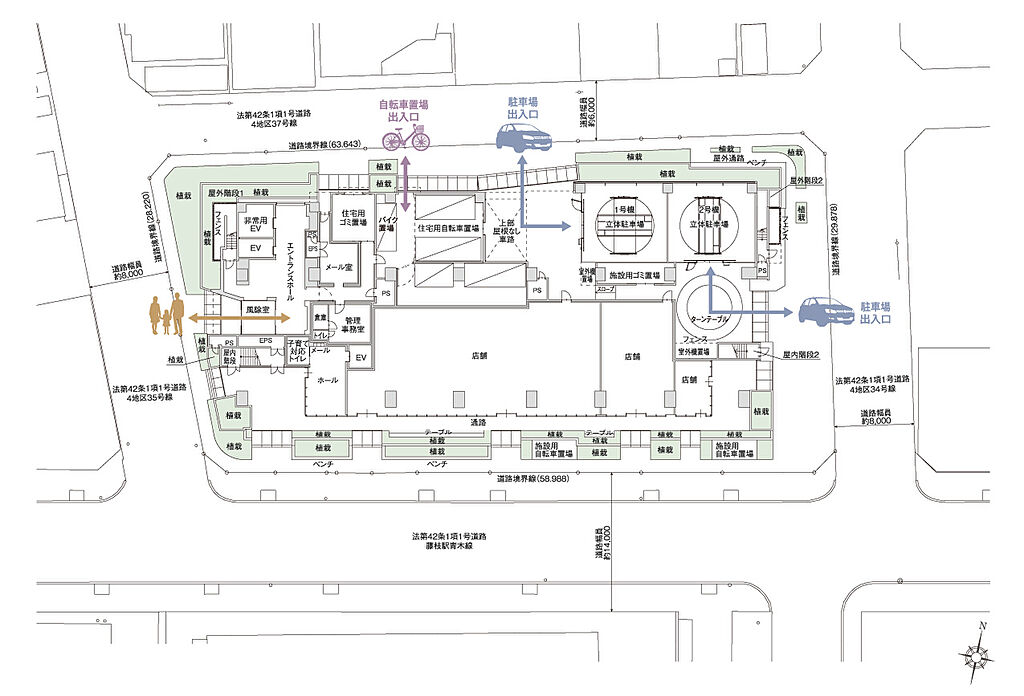
敷地配置図
地域の人々が行き交う計画地を街道に見立て、沿道を四季折々の豊かな表情を魅せる草木で満たしたランドスケープ。1階の店舗前には気軽に木陰で休むことのできるベンチやテーブルを設置。街の“リビング”として、コミュニティの活性化に寄与します。

ZEH-M Oriented
高い断熱性により、魔法瓶のように保温性が高い住空間に、電気やガスなどの一次エネルギー消費量を削減する設備・仕様を採用。家計と地球に優しい「ZEH-M Orieted」マンションです。

インターネット常時接続
プロバイダーがセットになった常時接続型インターネットサービスを採用しています。インターネットサービスデスクの専門オペレーターが電話対応いたします。※使用料は管理費に含まれます。※オプションサービスは別途お申込みと費用が必要となります。

24時間体制の防犯システム
24時間体制の警備会社と提携し、建物のセキュリティを高めています。万が一非常事態や火災が発生した場合、住戸内にある非常用押しボタンで管理事務室に表示・通報、警備会社にも同時に通報され、非常事態に対処します。また、エントランスホール、エレベーター、駐車場や自転車置場等の共用部には24時間稼働のビデオ録画付き監視カメラを設置しています。
暮らしが変わる!街のランドマークとなる、地上21階建てタワーレジデンス。「藤枝駅前一丁目9街区第一種市街地再開発事業」の一画、駅徒歩2分(約160m)の地に、地上21階建てタワーレジデンスが誕生。全132邸、先進の免震構造を採用した、あなぶき興産の技術を結晶した大規模プロジェクトが実現します。すべては、家族がいつまでも快適に暮らし続けるために。「アルファ藤枝駅前 ザ・タワー」。未来に伸びる街にそびえる、心地よいランドマークを、今ここに
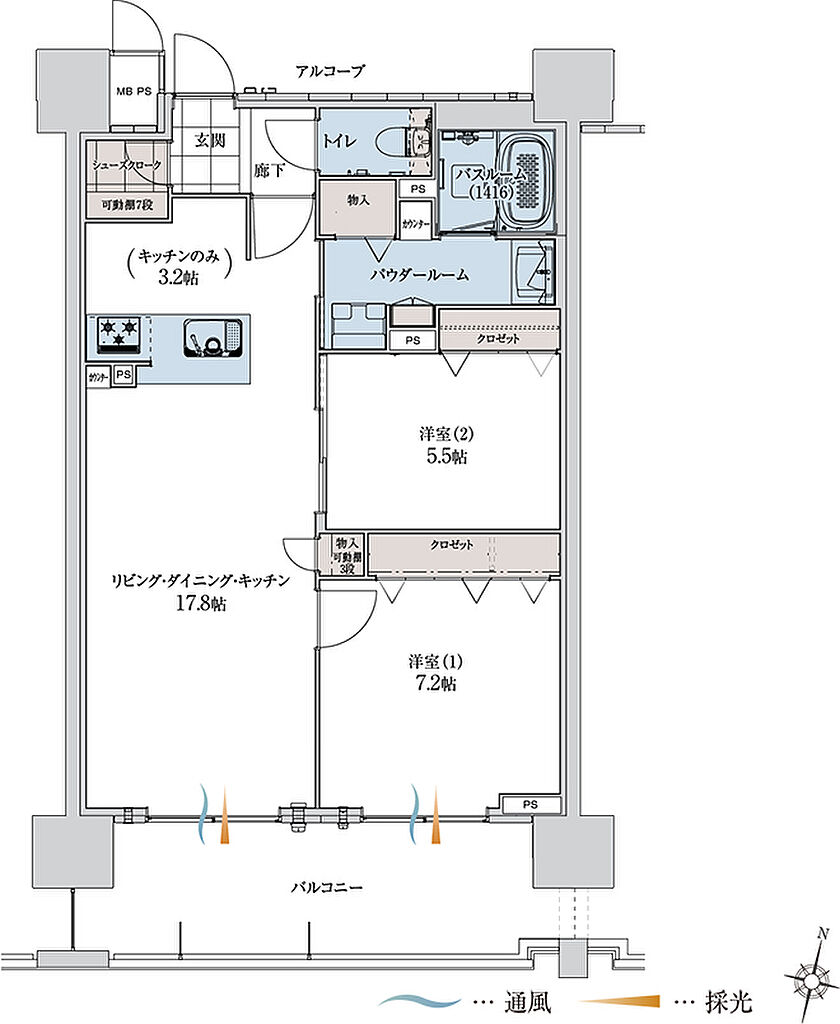
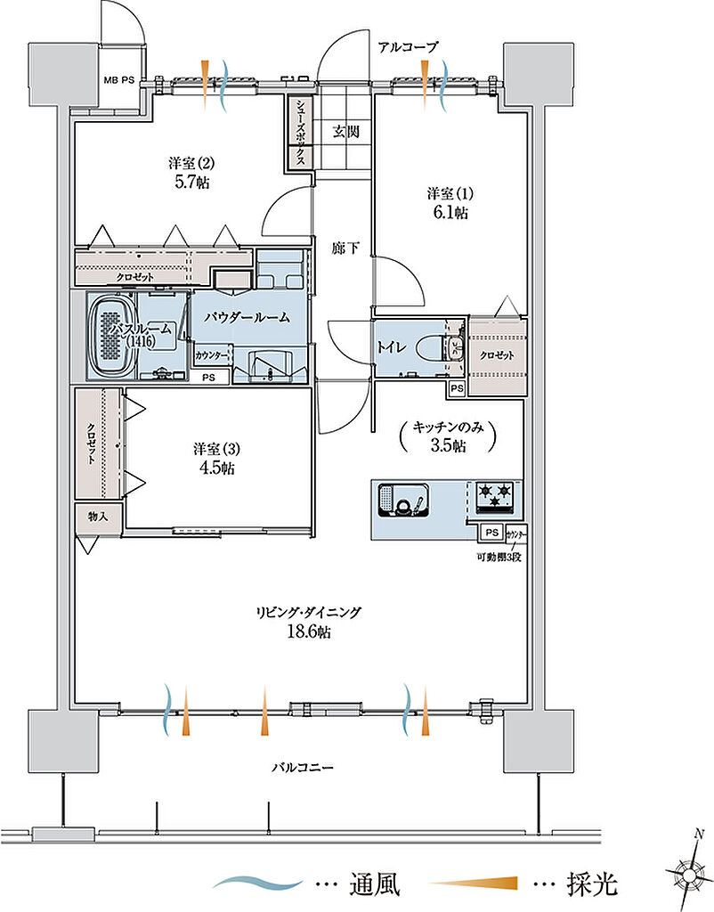
多彩なライフスタイルに応えるプランバリエーションをご用意。
快適な暮らし心地を実現する設備・仕様
周辺環境・アクセス(11枚)
物件概要
| 物件名 | アルファ藤枝駅前ザ・タワー | ||||
|---|---|---|---|---|---|
| 所在地 | 静岡県藤枝市駅前一丁目9-1~9-15 | ||||
| 交通 |
JR東海道本線「藤枝」駅 徒歩2分 | ||||
| 構造および階数 | 鉄筋コンクリート造 地上21階建 | 敷地面積 | 2,159.77㎡(確認申請時) | ||
| 完成時期 | 2027年6月下旬予定 | 入居時期 | 2027年8月上旬予定 | ||
| 土地権利 | - | ||||
| 駐車場 | - | ||||
| 分譲後の権利形態 | 敷地:権利変換計画書に定める割合による所有権の共有、建物:(専有部分)区分所有権 (共有部分)専有面積割合による所有権の共有 | ||||
| 管理形態 | 管理組合方式により管理組合と弊社指定の管理会社間で管理委託契約を締結、管理人の勤務形態:通勤/月~日9:00~17:00 | ||||
| 取引態様 | 穴吹興産株式会社(売主)、株式会社あなぶきリアルエステート(販売代理) | 用途地域 | 商業地域 | ||
| 建築確認番号 | 第ERI-23046665号(2024年(令和6年)9月19日付) | ||||
| 共有施設 | - | ||||
| 設備 | - | ||||
| 備考 |
(事業主)藤枝駅前一丁目9街区市街地再開発事業組合 【TOP画像】 ※1.掲載の完成予想図は設計図面を基に描き起こしたもので、実際とは異なる場合があります。行政官庁の指導または施工上の都合により、設計・設備・仕様・色調・植栽計画等の変更がある場合がございます。予めご了承ください。 | ||||
情報更新日:2026/03/02 次回更新予定日:2026/03/16
販売概要
| 販売価格 | 4,320万円(1戸)〜;6,280万円(2戸) お問い合わせはこちら | ||||
|---|---|---|---|---|---|
| 販売スケジュール | 先着順受付中 | ||||
| 販売戸数/総戸数 | 6戸/132戸(非分譲住戸6戸・地権者住戸6戸を含む/管理事務室、集会室、テナント、防災倉庫を除く) | ||||
| 最多価格帯 | - | ||||
| 管理費 | 20,650円〜;25,250円(月額) | ||||
| 修繕積立金 | 6,600円〜;8,290円(月額) | 修繕積立基金 | 528,000円〜;663,200円(一括払) | ||
| 間取り | 2LDK、3LDK | ||||
| 専有面積 | 64.77㎡〜80.51㎡ | バルコニー面積 | 12.90㎡~27.76㎡ | ||
| その他面積 | アルコーブ面積:2.60㎡~4.20㎡ | ||||
| その他施設費用、償却費 | ■駐車場:130台/月額使用料:8,000円~15,000円 ■自転車置場:132台(2段ラック式)/月額使用料:100円・300円 ■バイク置場:6台/月額使用料:3,000円 | ||||
| その他費用 | 【保証金、敷金】:-、【その他費用】:災害積立金300円(月額)、災害積立基金10,000円(一括払) | ||||
| 登録受付 | - | 抽選日 | - | ||
| 取引条件有効期限 | 取引条件有効期限:2026-03-18 | ||||
モデルルーム情報
| 営業時間 | 10:00~18:00 | 定休日 | 火曜・水曜・第2木曜日(祝日を除く)、2025/12/30~2026/01/04 | ||
|---|---|---|---|---|---|
| 開催期間 | - | 登録受付 | - | ||
| 販売スケジュール | 先着順受付中 | 抽選日 | - | ||
| モデルルーム所在地 | 静岡県藤枝市駅前1-5-13 | ||||
| お問い合わせ先 |
アルファ藤枝駅前ザ・タワー マンションギャラリー 0037-619-00725(通話無料) お問合せ受付時間:営業時間/10:00~18:00、定休日/火曜・水曜・第2木曜日(祝日を除く) | ||||
会社情報
| 売主 |
穴吹興産株式会社 【免許番号】 国土交通大臣免許(10)第3300号 | ||||
|---|---|---|---|---|---|
| お問い合わせ先 |
アルファ藤枝駅前ザ・タワー マンションギャラリー 0037-619-00725(無料通話) 上記の電話番号にお問合せください。(携帯・PHS 可) ※光IP 電話、及びIP 電話からはご利用になれません 光IP電話、及びIP電話をご利用のお客様は以下へご連絡ください。 アルファ藤枝駅前ザ・タワー マンションギャラリー TEL:0120-115-222 【物件番号】1600187-0000714 | ||||
| 管理会社 | 株式会社穴吹ハウジングサービス | ||||
| 施工会社 | 鉄建建設株式会社 名古屋支店 | ||||
| 販売会社 | 穴吹興産株式会社(売主)、株式会社あなぶきリアルエステート(販売代理) | ||||
| 情報提供元 |
穴吹興産株式会社[国土交通大臣(10)第3300号] 香川県高松市鍛冶屋町7-12 【所属団体】 四国地区不動産公正取引協議会、(公社)香川県宅地建物取引業協会 | ||||
この物件の地図・周辺環境
このアイコンは物件のおおよその位置を表しており、実際の場所と異なる場合がございます。詳しくは不動産会社に直接ご確認ください。
取り扱い不動産会社
アルファ藤枝駅前ザ・タワー マンションギャラリー
- 電話番号
- 0120-115-222
- 営業時間
- 10:00~18:00
- 定休日
- 火曜・水曜・第2木曜日(祝日を除く)
- 物件番号
- 1600187-0000714
穴吹興産
電話で問い合わせる(無料)お急ぎの方はこちらから!
物件お問い合わせ専用ダイヤル
受付:10:00~18:00(定休日:火曜・水曜・第2木曜日(祝日を除く)) 携帯・PHS可
※携帯・PHS可。光IP電話、及びIP電話からはご利用になれません。
藤枝駅の口コミ
お買い物・飲食
4.0
特に気になる部分はありません。 強いて言うなら、アパレル関連のお店がすくないのと書店などがないのが残念
お買い物・飲食
5.0
近くに西友があるので買い物には困らない。現在は杏林堂やユニクロもあるので生活するにはとても便利だと思う。
藤枝市の駅から新築マンションを探す
藤枝市近隣の町域から新築マンションを探す
住宅ローンシミュレーション
住宅ローン設定
物件価格
返済期間
頭金
ボーナス払(年1回)
※
※物件価格の80%以下でお借入れの場合
※50歳以下で一般団信をご選択の場合
※住宅ローン金利優遇割適用後の変動金利(全期間引き下げプラン)
※実際のお借入日の金利により変動します。
※審査の結果によっては保証付金利プランとなる場合があり、この場合は上記とは異なる金利となります。
※別途借入金額の2.20%(税込)の事務手数料が発生します。
ボーナス払 | 35年間返済 | 30年間返済 | 25年間返済 | 20年間返済 | 15年間返済 | 10年間返済 |
|---|---|---|---|---|---|---|
0万円 | -円/月 | -円/月 | -円/月 | -円/月 | -円/月 | -円/月 |
5万円 | -円/月 | -円/月 | -円/月 | -円/月 | -円/月 | -円/月 |
10万円 | -円/月 | -円/月 | -円/月 | -円/月 | -円/月 | -円/月 |
15万円 | -円/月 | -円/月 | -円/月 | -円/月 | -円/月 | -円/月 |
20万円 | -円/月 | -円/月 | -円/月 | -円/月 | -円/月 | -円/月 |
25万円 | -円/月 | -円/月 | -円/月 | -円/月 | -円/月 | -円/月 |
30万円 | -円/月 | -円/月 | -円/月 | -円/月 | -円/月 | -円/月 |
ボーナス払 | 35年間返済 | 30年間返済 | 25年間返済 | 20年間返済 | 15年間返済 | 10年間返済 |
|---|---|---|---|---|---|---|
0万円 | -円/月 | -円/月 | -円/月 | -円/月 | -円/月 | -円/月 |
5万円 | -円/月 | -円/月 | -円/月 | -円/月 | -円/月 | -円/月 |
10万円 | -円/月 | -円/月 | -円/月 | -円/月 | -円/月 | -円/月 |
15万円 | -円/月 | -円/月 | -円/月 | -円/月 | -円/月 | -円/月 |
20万円 | -円/月 | -円/月 | -円/月 | -円/月 | -円/月 | -円/月 |
25万円 | -円/月 | -円/月 | -円/月 | -円/月 | -円/月 | -円/月 |
30万円 | -円/月 | -円/月 | -円/月 | -円/月 | -円/月 | -円/月 |
- ・金利は、今後35年間変動しない仮定のもと元利均等返済方式で計算しております。
- ・実際の金利は、各金融機関のホームページをご参照ください。
- ・ローン契約の際には、手数料や印紙税などの諸費用が別途かかります。
- ・ボーナス支払総額が総支払額の50%を超えている場合、上記の表では「ローン不可」となります。
- ・シミュレーションを利用し、それが原因で利用者が受けたいかなる損害についても当社は一切責任を負いません。あらかじめご了承ください。









































