新築マンションザ・サーパス徳島町の詳細情報
5,268万円~7,700万円
月々のローン返済額を試算徳島町三丁目 城址の杜を眺む邸杜の眺望と誇り高きアドレス暮らしと美意識を満たす上質なレジデンス
外観・室内・設備(5枚)
周辺環境・アクセス(10枚)
物件概要
| 物件名 | ザ・サーパス徳島町 | ||||
|---|---|---|---|---|---|
| 所在地 | 徳島県徳島市徳島町三丁目7-1(地番) | ||||
| 交通 |
JR高徳線「徳島」駅 徒歩11分 | ||||
| 構造および階数 | 鉄筋コンクリート造 地上14階建 | 敷地面積 | 1,082.18㎡ | ||
| 完成時期 | 2027年7月上旬(予定) | 入居時期 | 2027年7月上旬(予定) | ||
| 土地権利 | - | ||||
| 駐車場 | - | ||||
| 分譲後の権利形態 | 土地:専有面積割合による敷地権の共有、建物:専有部分:区分所有権、共用部分:専有面積割合による所有権の共有 | ||||
| 管理形態 | 区分所有者全員による管理組合を結成の上、管理会社に委託、管理人の勤務形態:通勤方式 | ||||
| 取引態様 | 株式会社穴吹工務店(売主) | 用途地域 | 商業地域 | ||
| 建築確認番号 | 第ERI-24019152号(2024年8月8日)第ERI‐25029971号(2025年10月9日)【計画変更】 | ||||
| 共有施設 | - | ||||
| 設備 | - | ||||
| 備考 |
[駐車場]総45区画(屋内平置式1区画・タワーパーキング44区画) 【空き区画24区画:屋内平置式1区画、タワーパーキング(ミドルハイルーフ12区画、ハイルーフ区画9区画、フラットパレット区画2区画)】 使用料(月額)/10,000円~30,000円 ●EV区画の充電設備を利用する場合、月額2,500円の使用料がかかります。 | ||||
情報更新日:2026/01/19 次回更新予定日:2026/01/26
販売概要
| 販売価格 | 5,268万円~7,700万円 お問い合わせはこちら | ||||
|---|---|---|---|---|---|
| 販売スケジュール | 先着順受付中 | ||||
| 販売戸数/総戸数 | 5戸/49戸 | ||||
| 最多価格帯 | - | ||||
| 管理費 | 月額 18,575円~22,475円(インターネットサービス保守管理費などを含む) | ||||
| 修繕積立金 | 月額 11,600円~14,900円 | 修繕積立基金 | 1,160,000円~1,490,000円(引き渡し時一括払い) | ||
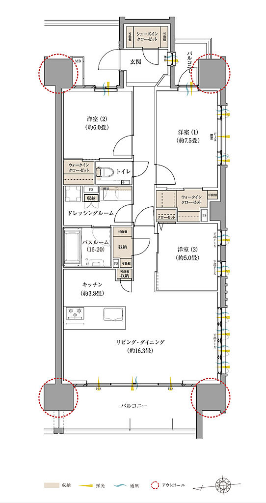
| 間取り | 2LDK・3LDK | ||||
| 専有面積 | 72.39㎡~92.83㎡ | バルコニー面積 | 11.40㎡~27.64㎡ | ||
| その他面積 | - | ||||
| その他施設費用、償却費 | - | ||||
| その他費用 | 【保証金、敷金】:- | ||||
| 登録受付 | - | 抽選日 | - | ||
| 取引条件有効期限 | 取引条件有効期限:2026-02-18 | ||||
モデルルーム情報
| 営業時間 | - | 定休日 | - | ||
|---|---|---|---|---|---|
| 開催期間 | - | 登録受付 | - | ||
| 販売スケジュール | 先着順受付中 | 抽選日 | - | ||
| モデルルーム所在地 | - | ||||
| お問い合わせ先 |
総合ご案内センター フリーダイヤル0120-384-215 0037-619-06242(通話無料) お問合せ受付時間:営業時間/-、定休日/- | ||||
会社情報
| 売主 | 株式会社穴吹工務店 四国支店 | ||||
|---|---|---|---|---|---|
| お問い合わせ先 |
総合ご案内センター フリーダイヤル0120-384-215 0037-619-06242(無料通話) 上記の電話番号にお問合せください。(携帯・PHS 可) ※光IP 電話、及びIP 電話からはご利用になれません 光IP電話、及びIP電話をご利用のお客様は以下へご連絡ください。 総合ご案内センター フリーダイヤル0120-384-215 TEL:0120-384-215 【物件番号】1600008-0000985 | ||||
| 管理会社 | - | ||||
| 施工会社 | 大京穴吹建設・穴吹工務店共同企業体 | ||||
| 販売会社 | 株式会社穴吹工務店(売主) | ||||
| 情報提供元 |
株式会社穴吹工務店[国土交通大臣(14)第1545号] 香川県高松市藤塚町1-11-22 【所属団体】 (公社)首都圏不動産公正取引協議会 | ||||
この物件の地図・周辺環境
このアイコンは物件のおおよその位置を表しており、実際の場所と異なる場合がございます。詳しくは不動産会社に直接ご確認ください。
取り扱い不動産会社
総合ご案内センター フリーダイヤル0120-384-215
- 電話番号
- 0120-384-215
- 物件番号
- 1600008-0000985
穴吹工務店
電話で問い合わせる(無料)お急ぎの方はこちらから!
物件お問い合わせ専用ダイヤル
受付:- 携帯・PHS可
※携帯・PHS可。光IP電話、及びIP電話からはご利用になれません。
徳島駅の口コミ
お買い物・飲食
5.0
徳大の学生さんが多い町なので、安い飲食店、お弁当屋さんも多く助かっている。普段の買物なら近隣の地元スーパーで事足りるので、不便ではありませんね。
治安・安全
4.0
街灯も少なく夜は暗くて不安でしたが、不審人物などもおらず全体的に安心して住むことができました。完全なる住宅街です。
住宅ローンシミュレーション
住宅ローン設定
物件価格
返済期間
頭金
ボーナス払(年1回)
※
※物件価格の80%以下でお借入れの場合
※50歳以下で一般団信をご選択の場合
※住宅ローン金利優遇割適用後の変動金利(全期間引き下げプラン)
※実際のお借入日の金利により変動します。
※審査の結果によっては保証付金利プランとなる場合があり、この場合は上記とは異なる金利となります。
※別途借入金額の2.20%(税込)の事務手数料が発生します。
ボーナス払 | 35年間返済 | 30年間返済 | 25年間返済 | 20年間返済 | 15年間返済 | 10年間返済 |
|---|---|---|---|---|---|---|
0万円 | -円/月 | -円/月 | -円/月 | -円/月 | -円/月 | -円/月 |
5万円 | -円/月 | -円/月 | -円/月 | -円/月 | -円/月 | -円/月 |
10万円 | -円/月 | -円/月 | -円/月 | -円/月 | -円/月 | -円/月 |
15万円 | -円/月 | -円/月 | -円/月 | -円/月 | -円/月 | -円/月 |
20万円 | -円/月 | -円/月 | -円/月 | -円/月 | -円/月 | -円/月 |
25万円 | -円/月 | -円/月 | -円/月 | -円/月 | -円/月 | -円/月 |
30万円 | -円/月 | -円/月 | -円/月 | -円/月 | -円/月 | -円/月 |
ボーナス払 | 35年間返済 | 30年間返済 | 25年間返済 | 20年間返済 | 15年間返済 | 10年間返済 |
|---|---|---|---|---|---|---|
0万円 | -円/月 | -円/月 | -円/月 | -円/月 | -円/月 | -円/月 |
5万円 | -円/月 | -円/月 | -円/月 | -円/月 | -円/月 | -円/月 |
10万円 | -円/月 | -円/月 | -円/月 | -円/月 | -円/月 | -円/月 |
15万円 | -円/月 | -円/月 | -円/月 | -円/月 | -円/月 | -円/月 |
20万円 | -円/月 | -円/月 | -円/月 | -円/月 | -円/月 | -円/月 |
25万円 | -円/月 | -円/月 | -円/月 | -円/月 | -円/月 | -円/月 |
30万円 | -円/月 | -円/月 | -円/月 | -円/月 | -円/月 | -円/月 |
- ・金利は、今後35年間変動しない仮定のもと元利均等返済方式で計算しております。
- ・実際の金利は、各金融機関のホームページをご参照ください。
- ・ローン契約の際には、手数料や印紙税などの諸費用が別途かかります。
- ・ボーナス支払総額が総支払額の50%を超えている場合、上記の表では「ローン不可」となります。
- ・シミュレーションを利用し、それが原因で利用者が受けたいかなる損害についても当社は一切責任を負いません。あらかじめご了承ください。
























