一戸建て長浦1(長浦駅) 2850万円の詳細情報
\現地ご案内大歓迎!/■□駅近物件/日当たり良好/閑静な住宅街□■
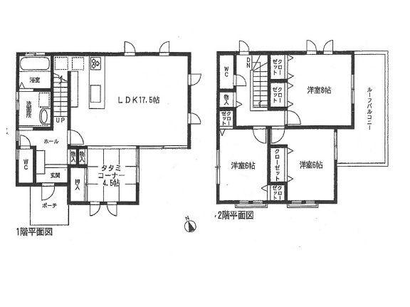
その他(20枚)
物件概要
| 物件名 | 長浦1(長浦駅) 2850万円 | ||||
|---|---|---|---|---|---|
| 所在地 | 愛知県知多市長浦1-66番地10 | ||||
| 交通 |
名鉄常滑線「長浦」歩3分 名鉄常滑線「古見」歩21分 名鉄常滑線「朝倉」歩31分 | ||||
| 建物構造 | 木造2階建一部鉄骨 | 最多価格帯 | - | ||
| 販売戸数/総戸数 | 1戸/1戸 | 入居時期 | 相談 | ||
| 駐車場 | カースペース | 地目 | - | ||
| 用途地域 | 市街化調整区域 | 建ぺい率・容積率 | 60%・200% | ||
| 土地権利 | 所有権 | 私道負担・道路 | 無、南4m幅(接道幅11.8m) | ||
| セットバック | - | リフォーム | - | ||
| 取引態様 | 仲介 | 施工会社名 | - | ||
| 建築確認番号 | - | ||||
| その他費用 | - | ||||
| 販売スケジュール | - | ||||
| イベント情報 |
現地案内会(事前に必ず予約してください) 日程/12月23日(火曜日)~3月31日(火曜日) 時間/10:00~18:00 「住まいの窓口ハウスボカン」として愛知県内に12拠点展開し、 物件のご紹介から資金計画まで、お客様の想いに寄り添います。 ■物件のご見学について■ 【さくっと見学プラン】 お問い合わせ頂いた住宅を1件だけ見たい!など、お忙しいお客様向けです。 物件のご案内のみさせていただきます。 【比較見学プラン】 お問い合わせ頂いた物件のみではなく、未公開物件、中古物件も含めたご案内コースです。 物件の雰囲気だけではなく、間取り、設備等もしっかり確認されたいお客様向けです。 【じっくり相談プラン】 ご希望のエリア内の気になる物件をまとめてご案内いたします。 資金計画・住宅ローンのご相談や注文住宅・リフォームのご案内、火災保険のご相談なども可能です。 ■当社の特徴■ 【キッズルーム・授乳室完備】 小さなお子様がいらっしゃるご家族も安心してご来店いただけます。 【駐車場完備】 ワンボックスカーでも駐車できる無料駐車場を完備しております。 【明るくおしゃれな店舗】 おしゃれで明るいカフェのような空間をテーマに店舗設計を行っています。 【リノベ・注文住宅の相談】 不動産売買、住宅ローンのご相談はもちろん、リフォーム・リノベ・注文住宅のご相談も同時に可能です。 ■感染防止への取り組み■ 店内換気・手消毒・マスク着用・検温チェック・机と椅子の除菌消毒など 安心してご利用いただくために積極的に取り組んで参ります ■お問い合わせ方法■ ・見学予約はフリーダイヤル0120-115006まで ・資料請求のお客様はオレンジボタン「資料請求(無料)」からどうぞ | ||||
| その他制限事項 | - | ||||
| 備考 | 担当者:彦坂 裕真、設備:公営水道、オール電化、建築許可理由:調整区域につき建築許可要、駐車場:カースペース | ||||
| 取引条件有効期限 | - | ||||
情報公開日:2026/01/07 次回更新予定日:情報提供より8日以内
この物件の地図・周辺環境
このアイコンは物件のおおよその位置を表しており、実際の場所と異なる場合がございます。詳しくは不動産会社に直接ご確認ください。
※地図上に表示される物件の位置は付近住所に所在することを表すものであり、実際の物件所在地とは異なる場合がございます。
※地図の更新タイミングの関係で、物件情報が実際のものとは異なる場合や最新情報に更新されていない場合がございます。
※以下の南西諸島及び離島においては、表示される物件の位置が実際のものとは数百メートル程度ずれる場合がございます。
東京都:硫黄島・青ヶ島、沖縄県: 北大東島・南大東島・多良間島・水納島・与那国島・宮古諸島・石垣島・竹富島
取り扱い不動産会社
- 住所
- 愛知県東海市富木島町前外面93-1
- 電話番号
- 0120-115006
- 営業時間
- 営業時間:10時~18時 / 定休日:毎週火曜日・水曜日
- 免許番号
- 愛知県知事(2)第024391号
- 会社概要
- <仲介>
愛知県知事(2)第024391号
(公社)全日本不動産協会愛知県本部会員 東海不動産公正取引協議会加盟
(株)sumarchハウスボカン 東海店
〒476-0011 愛知県東海市富木島町前外面93-1
ハウスボカン東海店 (株)sumarch
住宅ローンシミュレーション
住宅ローン設定
物件価格
返済期間
頭金
ボーナス払(年1回)
※
※物件価格の80%以下でお借入れの場合
※50歳以下で一般団信をご選択の場合
※住宅ローン金利優遇割適用後の変動金利(全期間引き下げプラン)
※実際のお借入日の金利により変動します。
※審査の結果によっては保証付金利プランとなる場合があり、この場合は上記とは異なる金利となります。
※別途借入金額の2.20%(税込)の事務手数料が発生します。
ボーナス払 | 35年間返済 | 30年間返済 | 25年間返済 | 20年間返済 | 15年間返済 | 10年間返済 |
|---|---|---|---|---|---|---|
0万円 | -円/月 | -円/月 | -円/月 | -円/月 | -円/月 | -円/月 |
5万円 | -円/月 | -円/月 | -円/月 | -円/月 | -円/月 | -円/月 |
10万円 | -円/月 | -円/月 | -円/月 | -円/月 | -円/月 | -円/月 |
15万円 | -円/月 | -円/月 | -円/月 | -円/月 | -円/月 | -円/月 |
20万円 | -円/月 | -円/月 | -円/月 | -円/月 | -円/月 | -円/月 |
25万円 | -円/月 | -円/月 | -円/月 | -円/月 | -円/月 | -円/月 |
30万円 | -円/月 | -円/月 | -円/月 | -円/月 | -円/月 | -円/月 |
ボーナス払 | 35年間返済 | 30年間返済 | 25年間返済 | 20年間返済 | 15年間返済 | 10年間返済 |
|---|---|---|---|---|---|---|
0万円 | -円/月 | -円/月 | -円/月 | -円/月 | -円/月 | -円/月 |
5万円 | -円/月 | -円/月 | -円/月 | -円/月 | -円/月 | -円/月 |
10万円 | -円/月 | -円/月 | -円/月 | -円/月 | -円/月 | -円/月 |
15万円 | -円/月 | -円/月 | -円/月 | -円/月 | -円/月 | -円/月 |
20万円 | -円/月 | -円/月 | -円/月 | -円/月 | -円/月 | -円/月 |
25万円 | -円/月 | -円/月 | -円/月 | -円/月 | -円/月 | -円/月 |
30万円 | -円/月 | -円/月 | -円/月 | -円/月 | -円/月 | -円/月 |
- ・金利は、今後35年間変動しない仮定のもと元利均等返済方式で計算しております。
- ・実際の金利は、各金融機関のホームページをご参照ください。
- ・ローン契約の際には、手数料や印紙税などの諸費用が別途かかります。
- ・ボーナス支払総額が総支払額の50%を超えている場合、上記の表では「ローン不可」となります。
- ・シミュレーションを利用し、それが原因で利用者が受けたいかなる損害についても当社は一切責任を負いません。あらかじめご了承ください。





















