NEW中古売戸建住宅福岡県筑紫野市二日市南2丁目の中古売戸建住宅の詳細情報
掲載期限まであと13日
物件概要
| 物件名 | 福岡県筑紫野市二日市南2丁目の中古売戸建住宅 | ||||
|---|---|---|---|---|---|
| 所在地 | 福岡県筑紫野市二日市南2丁目 | ||||
| 交通 |
西鉄天神大牟田線 「紫」駅 徒歩8分 JR鹿児島本線 「二日市」駅 徒歩10分 西鉄天神大牟田線 「朝倉街道」駅 徒歩17分 | ||||
| 建物構造 | 木造/2階建 | 最多価格帯 | - | ||
| 販売戸数/総戸数 | -/- | 主要採光面 | - | ||
| 引渡し | 相談 | 現況 | 空 | ||
| 管理 | - | 駐車場 | - | ||
| 地目 | 宅地 | 地勢 | - | ||
| 都市計画 | 市街化区域 | 用途地域 | 1種住居 | ||
| 建ぺい率 | 60.00% | 容積率 | 200.00% | ||
| 土地権利 | 所有権 | 国土法届出 | - | ||
| 私道負担・道路 | - | 接道状況 | 東 5.1m | ||
| セットバック | - | リフォーム | - | ||
| リノベーション | - | 取引態様 | 媒介 | ||
| 施工会社名 | - | 建築確認番号 | 第ERI-25027245 号 | ||
| その他費用 | - | ||||
| その他制限事項 | - | ||||
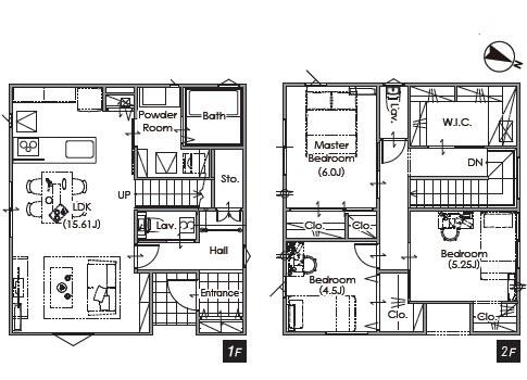
| 備考 | 広々とした延床面積95.64㎡の居室空間、更に大きな荷物も収納できるウォークインクロゼット有なので、分厚いコートなど冬物の収納に便利です。・仲介手数料:売買代金の3%+60,000円 | ||||
情報公開日:2026/03/27 次回更新予定日:情報更新日より14日以内
取り扱い不動産会社
- 住所
- 福岡県福岡市博多区東那珂1丁目4-10
- 電話番号
- 092-292-5740
- 営業時間
- 09:30~18:30
- 定休日
- 日曜・祝日・年末年始・ゴールデンウイーク・夏季休暇
- 免許番号
- 福岡県知事免許(4)第16324号
- 所属団体
- (公社)福岡県宅地建物取引業協会、(一社)九州不動産公正取引協議会
掲載期限まであと13日
紫駅の口コミ
お買い物・飲食
4.0
紫駅の近くにセブンイレブンとドラッグストアモリがあるので大抵のものは購入出来ます。最近は肉の取り扱いもあるそうです。野菜は紫駅からは離れていますが、中央通り商店街の近くに、安くて新鮮な八百屋さんがありオススメです。お客さんもいつも多いです。 飲食店は紫駅周辺にラーメン屋、持ち帰りの焼き鳥屋さんがあります。紫駅からJR二日市駅方面に歩くと飲食店は複数あり、選択肢が増えます。西鉄二日市駅方面だともっとたくさんあります。
住宅ローンシミュレーション
住宅ローン設定
物件価格
返済期間
頭金
ボーナス払(年1回)
※
※物件価格の80%以下でお借入れの場合
※50歳以下で一般団信をご選択の場合
※住宅ローン金利優遇割適用後の変動金利(全期間引き下げプラン)
※実際のお借入日の金利により変動します。
※審査の結果によっては保証付金利プランとなる場合があり、この場合は上記とは異なる金利となります。
※別途借入金額の2.20%(税込)の事務手数料が発生します。
ボーナス払 | 35年間返済 | 30年間返済 | 25年間返済 | 20年間返済 | 15年間返済 | 10年間返済 |
|---|---|---|---|---|---|---|
0万円 | -円/月 | -円/月 | -円/月 | -円/月 | -円/月 | -円/月 |
5万円 | -円/月 | -円/月 | -円/月 | -円/月 | -円/月 | -円/月 |
10万円 | -円/月 | -円/月 | -円/月 | -円/月 | -円/月 | -円/月 |
15万円 | -円/月 | -円/月 | -円/月 | -円/月 | -円/月 | -円/月 |
20万円 | -円/月 | -円/月 | -円/月 | -円/月 | -円/月 | -円/月 |
25万円 | -円/月 | -円/月 | -円/月 | -円/月 | -円/月 | -円/月 |
30万円 | -円/月 | -円/月 | -円/月 | -円/月 | -円/月 | -円/月 |
ボーナス払 | 35年間返済 | 30年間返済 | 25年間返済 | 20年間返済 | 15年間返済 | 10年間返済 |
|---|---|---|---|---|---|---|
0万円 | -円/月 | -円/月 | -円/月 | -円/月 | -円/月 | -円/月 |
5万円 | -円/月 | -円/月 | -円/月 | -円/月 | -円/月 | -円/月 |
10万円 | -円/月 | -円/月 | -円/月 | -円/月 | -円/月 | -円/月 |
15万円 | -円/月 | -円/月 | -円/月 | -円/月 | -円/月 | -円/月 |
20万円 | -円/月 | -円/月 | -円/月 | -円/月 | -円/月 | -円/月 |
25万円 | -円/月 | -円/月 | -円/月 | -円/月 | -円/月 | -円/月 |
30万円 | -円/月 | -円/月 | -円/月 | -円/月 | -円/月 | -円/月 |
- ・金利は、今後35年間変動しない仮定のもと元利均等返済方式で計算しております。
- ・実際の金利は、各金融機関のホームページをご参照ください。
- ・ローン契約の際には、手数料や印紙税などの諸費用が別途かかります。
- ・ボーナス支払総額が総支払額の50%を超えている場合、上記の表では「ローン不可」となります。
- ・シミュレーションを利用し、それが原因で利用者が受けたいかなる損害についても当社は一切責任を負いません。あらかじめご了承ください。
















