一戸建て神辺町字道上(道上駅) 929万円の詳細情報
929万円
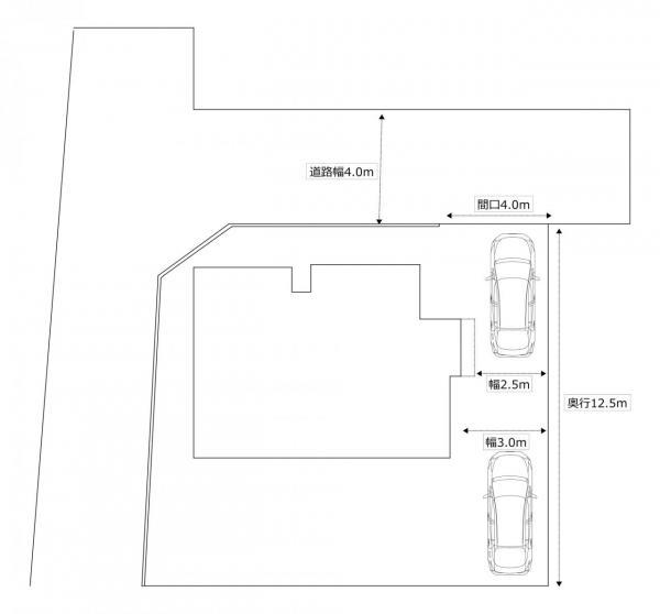
月々のローン返済額を試算【見学会開催】【内外装リフォーム済・即入居可】普通車2台駐車可能。フロー
間取り・区画図(1枚)
物件概要
| 物件名 | 神辺町字道上(道上駅) 929万円 | ||||
|---|---|---|---|---|---|
| 所在地 | 広島県福山市神辺町字道上2238-10 | ||||
| 交通 |
JR福塩線「道上」歩20分 | ||||
| 建物構造 | 木造2階建 | 最多価格帯 | - | ||
| 販売戸数/総戸数 | 1戸/- | 入居時期 | 即引渡可 | ||
| 駐車場 | カースペース | 地目 | - | ||
| 用途地域 | 1種低層 | 建ぺい率・容積率 | 40%・80% | ||
| 土地権利 | 所有権 | 私道負担・道路 | 無、北東3.3m幅、南西3.8m幅 | ||
| セットバック | - | リフォーム |
2025年5月完了 水回り設備交換:トイレ 内装リフォーム:壁・床・全室 2025年5月完了 その他リフォーム:外壁 ※年月は一番古いリフォーム箇所を表します | ||
| 取引態様 | 売主 | 施工会社名 | - | ||
| 建築確認番号 | - | ||||
| その他費用 | 取引にかかる費用:弊社売主につき仲介手数料不要 | ||||
| 販売スケジュール | - | ||||
| イベント情報 |
現地見学会(事前に必ずお問い合わせください) 日程/12月11日(木曜日)~12月15日(月曜日) 見学ご希望の方は、電話もしくはメールでお問い合わせください。なお、来場受付票をご記入いただいた方にはAmazonギフトカードをプレゼントします。 | ||||
| その他制限事項 | - | ||||
| 備考 | 設備:公営水道、個別浄化槽、個別LPG、駐車場:カースペース | ||||
| 取引条件有効期限 | - | ||||
情報公開日:2025/12/11 次回更新予定日:情報提供より8日以内
この物件の地図・周辺環境
このアイコンは物件のおおよその位置を表しており、実際の場所と異なる場合がございます。詳しくは不動産会社に直接ご確認ください。
※地図上に表示される物件の位置は付近住所に所在することを表すものであり、実際の物件所在地とは異なる場合がございます。
※地図の更新タイミングの関係で、物件情報が実際のものとは異なる場合や最新情報に更新されていない場合がございます。
※以下の南西諸島及び離島においては、表示される物件の位置が実際のものとは数百メートル程度ずれる場合がございます。
東京都:硫黄島・青ヶ島、沖縄県: 北大東島・南大東島・多良間島・水納島・与那国島・宮古諸島・石垣島・竹富島
取り扱い不動産会社
- 住所
- 広島県福山市南蔵王町2-4-18 フローレンス南蔵王1階北
- 電話番号
- 0120-593000
- 営業時間
- 営業時間:9:00~18:00 / 定休日:毎週水曜日、第一・三・五火曜日、年末年始、夏季休暇
- 免許番号
- 国土交通大臣(7)第005475号
- 会社概要
- <売主>
国土交通大臣(7)第005475号
(公社)広島県宅地建物取引業協会会員 中国地区不動産公正取引協議会加盟
(株)カチタス福山店
〒721-0973 広島県福山市南蔵王町2-4-18 フローレンス南蔵王1階北
(株)カチタス 福山店
住宅ローンシミュレーション
住宅ローン設定
物件価格
返済期間
頭金
ボーナス払(年1回)
※
※物件価格の80%以下でお借入れの場合
※50歳以下で一般団信をご選択の場合
※住宅ローン金利優遇割適用後の変動金利(全期間引き下げプラン)
※実際のお借入日の金利により変動します。
※審査の結果によっては保証付金利プランとなる場合があり、この場合は上記とは異なる金利となります。
※別途借入金額の2.20%(税込)の事務手数料が発生します。
ボーナス払 | 35年間返済 | 30年間返済 | 25年間返済 | 20年間返済 | 15年間返済 | 10年間返済 |
|---|---|---|---|---|---|---|
0万円 | -円/月 | -円/月 | -円/月 | -円/月 | -円/月 | -円/月 |
5万円 | -円/月 | -円/月 | -円/月 | -円/月 | -円/月 | -円/月 |
10万円 | -円/月 | -円/月 | -円/月 | -円/月 | -円/月 | -円/月 |
15万円 | -円/月 | -円/月 | -円/月 | -円/月 | -円/月 | -円/月 |
20万円 | -円/月 | -円/月 | -円/月 | -円/月 | -円/月 | -円/月 |
25万円 | -円/月 | -円/月 | -円/月 | -円/月 | -円/月 | -円/月 |
30万円 | -円/月 | -円/月 | -円/月 | -円/月 | -円/月 | -円/月 |
ボーナス払 | 35年間返済 | 30年間返済 | 25年間返済 | 20年間返済 | 15年間返済 | 10年間返済 |
|---|---|---|---|---|---|---|
0万円 | -円/月 | -円/月 | -円/月 | -円/月 | -円/月 | -円/月 |
5万円 | -円/月 | -円/月 | -円/月 | -円/月 | -円/月 | -円/月 |
10万円 | -円/月 | -円/月 | -円/月 | -円/月 | -円/月 | -円/月 |
15万円 | -円/月 | -円/月 | -円/月 | -円/月 | -円/月 | -円/月 |
20万円 | -円/月 | -円/月 | -円/月 | -円/月 | -円/月 | -円/月 |
25万円 | -円/月 | -円/月 | -円/月 | -円/月 | -円/月 | -円/月 |
30万円 | -円/月 | -円/月 | -円/月 | -円/月 | -円/月 | -円/月 |
- ・金利は、今後35年間変動しない仮定のもと元利均等返済方式で計算しております。
- ・実際の金利は、各金融機関のホームページをご参照ください。
- ・ローン契約の際には、手数料や印紙税などの諸費用が別途かかります。
- ・ボーナス支払総額が総支払額の50%を超えている場合、上記の表では「ローン不可」となります。
- ・シミュレーションを利用し、それが原因で利用者が受けたいかなる損害についても当社は一切責任を負いません。あらかじめご了承ください。



















