NEW中古売戸建住宅岩手県盛岡市津志田町1丁目の中古売戸建住宅の詳細情報
掲載期限まであと11日
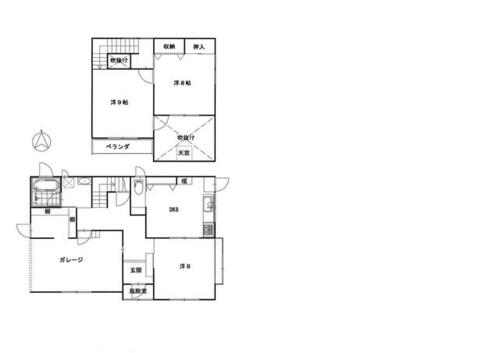
外観・室内・設備(6枚)
物件概要
| 物件名 | 岩手県盛岡市津志田町1丁目の中古売戸建住宅 | ||||
|---|---|---|---|---|---|
| 所在地 | 岩手県盛岡市津志田町1丁目 | ||||
| 交通 |
JR東北本線仙北町駅岩手県交通:津志田北停歩640m | ||||
| 建物構造 | 木造/2階建 | 最多価格帯 | - | ||
| 販売戸数/総戸数 | -/- | 主要採光面 | 南 | ||
| 引渡し | 相談 | 現況 | 空 | ||
| 管理 | - | 駐車場 | - | ||
| 地目 | 宅地 | 地勢 | 平坦 | ||
| 都市計画 | 市街化区域 | 用途地域 | 準工業 | ||
| 建ぺい率 | 60.00% | 容積率 | 200.00% | ||
| 土地権利 | 所有権 | 国土法届出 | - | ||
| 私道負担・道路 | - | 接道状況 | 西 6.0m 公道 接面12.0m | ||
| セットバック | - | リフォーム | 備考に記載 | ||
| リノベーション | - | 取引態様 | 売主 | ||
| 施工会社名 | - | 建築確認番号 | - | ||
| その他費用 | - | ||||
| その他制限事項 | - | ||||
| 備考 | ・116-28(141.53㎡)への新築は不可。但し、現建物への増築は可です。・・人気の津志田町、141.53㎡の広々とした駐車スペース、ビルトインガレージ(電動シャッター交換済み)、建物内外リフォーム済みの中古住宅です。12月3日、価格改定しました。・仲介手数料:不要・リフォーム実施:2025年2月水回り(キッチン/浴室/トイレ/洗面所/給湯器)、2025年4月内装(全室クロス張替え/床(フローリング等)/・ガレージ(電動シャッター付き))、2025年2月外装(外壁/屋根) | ||||
情報公開日:2025/12/03 次回更新予定日:情報更新日より14日以内
この物件の地図・周辺環境
このアイコンは物件のおおよその位置を表しており、実際の場所と異なる場合がございます。詳しくは不動産会社に直接ご確認ください。
取り扱い不動産会社
- 住所
- 岩手県盛岡市三ツ割1丁目9-8SRビル101
- 電話番号
- 019-613-4302
- 営業時間
- 10:00~19:00
- 定休日
- 日曜日・祝日・年末年始、GW、夏季休暇
- 免許番号
- 岩手県知事免許(1)第2688号
- 所属団体
- (公社)全日本不動産協会、東北地区不動産公正取引協議会
掲載期限まであと11日
仙北町駅の口コミ
お買い物・飲食
4.0
なんといっても、徒歩圏内に南イオン、TSUTAYA、当時はファミリーレストランのまるまつなどがあり、子どもも小さかったため助けられた。
治安・安全
4.0
特に危険は感じません。夜は静かですが犯罪もなく岩手公園も変質者がいる話は聞きません。治安はいいと思います。
住宅ローンシミュレーション
住宅ローン設定
物件価格
返済期間
頭金
ボーナス払(年1回)
※
※物件価格の80%以下でお借入れの場合
※50歳以下で一般団信をご選択の場合
※住宅ローン金利優遇割適用後の変動金利(全期間引き下げプラン)
※実際のお借入日の金利により変動します。
※審査の結果によっては保証付金利プランとなる場合があり、この場合は上記とは異なる金利となります。
※別途借入金額の2.20%(税込)の事務手数料が発生します。
ボーナス払 | 35年間返済 | 30年間返済 | 25年間返済 | 20年間返済 | 15年間返済 | 10年間返済 |
|---|---|---|---|---|---|---|
0万円 | -円/月 | -円/月 | -円/月 | -円/月 | -円/月 | -円/月 |
5万円 | -円/月 | -円/月 | -円/月 | -円/月 | -円/月 | -円/月 |
10万円 | -円/月 | -円/月 | -円/月 | -円/月 | -円/月 | -円/月 |
15万円 | -円/月 | -円/月 | -円/月 | -円/月 | -円/月 | -円/月 |
20万円 | -円/月 | -円/月 | -円/月 | -円/月 | -円/月 | -円/月 |
25万円 | -円/月 | -円/月 | -円/月 | -円/月 | -円/月 | -円/月 |
30万円 | -円/月 | -円/月 | -円/月 | -円/月 | -円/月 | -円/月 |
ボーナス払 | 35年間返済 | 30年間返済 | 25年間返済 | 20年間返済 | 15年間返済 | 10年間返済 |
|---|---|---|---|---|---|---|
0万円 | -円/月 | -円/月 | -円/月 | -円/月 | -円/月 | -円/月 |
5万円 | -円/月 | -円/月 | -円/月 | -円/月 | -円/月 | -円/月 |
10万円 | -円/月 | -円/月 | -円/月 | -円/月 | -円/月 | -円/月 |
15万円 | -円/月 | -円/月 | -円/月 | -円/月 | -円/月 | -円/月 |
20万円 | -円/月 | -円/月 | -円/月 | -円/月 | -円/月 | -円/月 |
25万円 | -円/月 | -円/月 | -円/月 | -円/月 | -円/月 | -円/月 |
30万円 | -円/月 | -円/月 | -円/月 | -円/月 | -円/月 | -円/月 |
- ・金利は、今後35年間変動しない仮定のもと元利均等返済方式で計算しております。
- ・実際の金利は、各金融機関のホームページをご参照ください。
- ・ローン契約の際には、手数料や印紙税などの諸費用が別途かかります。
- ・ボーナス支払総額が総支払額の50%を超えている場合、上記の表では「ローン不可」となります。
- ・シミュレーションを利用し、それが原因で利用者が受けたいかなる損害についても当社は一切責任を負いません。あらかじめご了承ください。
















