NEW一戸建て東餅田(帖佐駅) 1880万円の詳細情報
1880万円
月々のローン返済額を試算吹付断熱・樹脂サッシ・エコワイ熱交換換気システム夏は涼しく冬はあったか^^
その他(15枚)
物件概要
| 物件名 | 東餅田(帖佐駅) 1880万円 | ||||
|---|---|---|---|---|---|
| 所在地 | 鹿児島県姶良市東餅田1311-27 | ||||
| 交通 |
JR日豊本線「帖佐」歩12分 | ||||
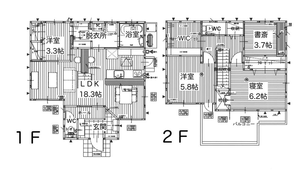
| 建物構造 | 木造2階建(軸組工法) | 最多価格帯 | - | ||
| 販売戸数/総戸数 | 1戸/1戸 | 入居時期 | 即引渡可 | ||
| 駐車場 | カースペース | 地目 | - | ||
| 用途地域 | 1種住居 | 建ぺい率・容積率 | 70%・200% | ||
| 土地権利 | 所有権 | 私道負担・道路 | 無、東5m幅(接道幅9.3m)、南5m幅(接道幅10.5m) | ||
| セットバック | - | リフォーム | - | ||
| 取引態様 | 仲介 | 施工会社名 | (株)七呂建設 | ||
| 建築確認番号 | - | ||||
| その他費用 | - | ||||
| 販売スケジュール | - | ||||
| イベント情報 |
(事前に必ずお問い合わせください) イベント情報 現地販売会(事前に必ずお問い合わせください) 【平日・土日祝】問わず、ご見学時間は事前予約で夜間でも可能です! 『私たちの収入だといくらまで住宅ローン借りれるの??』 『総額○○〇万円の融資の場合の月々の支払いはいくら??』 『金利優遇って何?どこの銀行を利用するのがいいの??』 ・・・など、銀行に関する事、土地に関する事、建物に関する事、その他住まいに関する事等、何でもお気軽にご相談ください! ◇◇◇◇◇◇◇◇◇◇◇◇◇◇◇お問合せ方法◇◇◇◇◇◇◇◇◇◇◇◇◇◇◇ (1)オレンジ色の『資料請求』ボタンをクリック♪各項目を埋めてご確認ボタンをクリック♪ ※資料請求・ご予約状況を確認後、こちらからご連絡させていただきます。 これが面倒な人は・・・↓ (2)不動産SHOP七呂【099-299-1681】までお電話♪ その際に下記プラン↓↓↓をお伝えください。 Aプラン:土地建物の資料、パンフレット等が欲しい ご自宅にご郵送でも賜ります♪ Bプラン:分譲住宅を内観したい ご希望日時に現地でスタッフとお待ち合わせ♪約30分程 Cプラン:分譲住宅を内観した後に、建物詳細や銀行の話等聞きたい 専門スタッフがお客様の疑問点やご不安な点を詳しく解説いたします!約1時間30分程 その他、土地建物探索のお手伝い、各シミュレーション等、家づくりプロジェクトに関わること 無料でお手伝いさせていただきます^^♪ ◇◇◇◇◇◇◇◇◇◇◇◇◇◇◇◇◇◇◇◇◇◇◇◇◇◇◇◇◇◇◇◇◇◇◇◇ | ||||
| その他制限事項 | - | ||||
| 備考 | 担当者:田上 新吾、設備:公営水道、集中浄化槽、オール電化、駐車場:カースペース | ||||
| 取引条件有効期限 | - | ||||
情報公開日:2025/12/12 次回更新予定日:情報提供より8日以内
この物件の地図・周辺環境
このアイコンは物件のおおよその位置を表しており、実際の場所と異なる場合がございます。詳しくは不動産会社に直接ご確認ください。
※地図上に表示される物件の位置は付近住所に所在することを表すものであり、実際の物件所在地とは異なる場合がございます。
※地図の更新タイミングの関係で、物件情報が実際のものとは異なる場合や最新情報に更新されていない場合がございます。
※以下の南西諸島及び離島においては、表示される物件の位置が実際のものとは数百メートル程度ずれる場合がございます。
東京都:硫黄島・青ヶ島、沖縄県: 北大東島・南大東島・多良間島・水納島・与那国島・宮古諸島・石垣島・竹富島
取り扱い不動産会社
- 住所
- 鹿児島県鹿児島市石谷町1260-13
- 電話番号
- 099-299-1681
- 免許番号
- 鹿児島県知事(1)第006653号
- 会社概要
- <仲介>
鹿児島県知事(1)第006653号
(株)不動産SHOP七呂
〒899-2701 鹿児島県鹿児島市石谷町1260-13
(株)不動産SHOP七呂
帖佐駅の口コミ
子育て・病院
4.0
姶良市は、子育て支援施設「ちるどん」や一時預かりサービス、子育てコンシェルジュなど、多彩な支援体制が整っており、安心して子育てができる環境が整っています。
住宅ローンシミュレーション
住宅ローン設定
物件価格
返済期間
頭金
ボーナス払(年1回)
※
※物件価格の80%以下でお借入れの場合
※50歳以下で一般団信をご選択の場合
※住宅ローン金利優遇割適用後の変動金利(全期間引き下げプラン)
※実際のお借入日の金利により変動します。
※審査の結果によっては保証付金利プランとなる場合があり、この場合は上記とは異なる金利となります。
※別途借入金額の2.20%(税込)の事務手数料が発生します。
ボーナス払 | 35年間返済 | 30年間返済 | 25年間返済 | 20年間返済 | 15年間返済 | 10年間返済 |
|---|---|---|---|---|---|---|
0万円 | -円/月 | -円/月 | -円/月 | -円/月 | -円/月 | -円/月 |
5万円 | -円/月 | -円/月 | -円/月 | -円/月 | -円/月 | -円/月 |
10万円 | -円/月 | -円/月 | -円/月 | -円/月 | -円/月 | -円/月 |
15万円 | -円/月 | -円/月 | -円/月 | -円/月 | -円/月 | -円/月 |
20万円 | -円/月 | -円/月 | -円/月 | -円/月 | -円/月 | -円/月 |
25万円 | -円/月 | -円/月 | -円/月 | -円/月 | -円/月 | -円/月 |
30万円 | -円/月 | -円/月 | -円/月 | -円/月 | -円/月 | -円/月 |
ボーナス払 | 35年間返済 | 30年間返済 | 25年間返済 | 20年間返済 | 15年間返済 | 10年間返済 |
|---|---|---|---|---|---|---|
0万円 | -円/月 | -円/月 | -円/月 | -円/月 | -円/月 | -円/月 |
5万円 | -円/月 | -円/月 | -円/月 | -円/月 | -円/月 | -円/月 |
10万円 | -円/月 | -円/月 | -円/月 | -円/月 | -円/月 | -円/月 |
15万円 | -円/月 | -円/月 | -円/月 | -円/月 | -円/月 | -円/月 |
20万円 | -円/月 | -円/月 | -円/月 | -円/月 | -円/月 | -円/月 |
25万円 | -円/月 | -円/月 | -円/月 | -円/月 | -円/月 | -円/月 |
30万円 | -円/月 | -円/月 | -円/月 | -円/月 | -円/月 | -円/月 |
- ・金利は、今後35年間変動しない仮定のもと元利均等返済方式で計算しております。
- ・実際の金利は、各金融機関のホームページをご参照ください。
- ・ローン契約の際には、手数料や印紙税などの諸費用が別途かかります。
- ・ボーナス支払総額が総支払額の50%を超えている場合、上記の表では「ローン不可」となります。
- ・シミュレーションを利用し、それが原因で利用者が受けたいかなる損害についても当社は一切責任を負いません。あらかじめご了承ください。
















