中古売戸建住宅鹿児島県霧島市牧園町宿窪田の中古売戸建住宅の詳細情報
物件概要
| 物件名 | 鹿児島県霧島市牧園町宿窪田の中古売戸建住宅 | ||||
|---|---|---|---|---|---|
| 所在地 | 鹿児島県霧島市牧園町宿窪田 | ||||
| 交通 |
JR肥薩線 「霧島温泉」駅 徒歩4分 | ||||
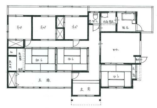
| 建物構造 | 木造/1階建 | 最多価格帯 | - | ||
| 販売戸数/総戸数 | -/- | 主要採光面 | - | ||
| 引渡し | 相談 | 現況 | 空 | ||
| 管理 | - | 駐車場 | - | ||
| 地目 | 宅地 | 地勢 | 平坦 | ||
| 都市計画 | 非線引区域 | 用途地域 | 無指定 | ||
| 建ぺい率 | 70.00% | 容積率 | 400.00% | ||
| 土地権利 | 所有権 | 国土法届出 | - | ||
| 私道負担・道路 | - | 接道状況 | 北 5.0m 公道 | ||
| セットバック | - | リフォーム | 備考に記載 | ||
| リノベーション | - | 取引態様 | 媒介 | ||
| 施工会社名 | - | 建築確認番号 | - | ||
| その他費用 | - | ||||
| その他制限事項 | - | ||||
| 備考 | 古民家カフェ等、飲食店にも利用できる建物になります♪・仲介手数料:330,000円・リフォーム実施:2022年5月水回り(キッチン/給湯器) | ||||
情報公開日:2025/10/21 次回更新予定日:情報更新日より14日以内
取り扱い不動産会社
- 住所
- 鹿児島県鹿児島市伊敷4丁目9-16
- 電話番号
- 099-297-5325
- 営業時間
- 09:30~17:30
- 定休日
- 不定休・年末年始、GW、夏季休暇
- 免許番号
- 鹿児島県知事免許(1)第6331号
- 所属団体
- (公社)鹿児島県宅地建物取引業協会、(一社)九州不動産公正取引協議会
掲載期限まであと1日
住宅ローンシミュレーション
住宅ローン設定
物件価格
返済期間
頭金
ボーナス払(年1回)
※
※物件価格の80%以下でお借入れの場合
※50歳以下で一般団信をご選択の場合
※住宅ローン金利優遇割適用後の変動金利(全期間引き下げプラン)
※実際のお借入日の金利により変動します。
※審査の結果によっては保証付金利プランとなる場合があり、この場合は上記とは異なる金利となります。
※別途借入金額の2.20%(税込)の事務手数料が発生します。
ボーナス払 | 35年間返済 | 30年間返済 | 25年間返済 | 20年間返済 | 15年間返済 | 10年間返済 |
|---|---|---|---|---|---|---|
0万円 | -円/月 | -円/月 | -円/月 | -円/月 | -円/月 | -円/月 |
5万円 | -円/月 | -円/月 | -円/月 | -円/月 | -円/月 | -円/月 |
10万円 | -円/月 | -円/月 | -円/月 | -円/月 | -円/月 | -円/月 |
15万円 | -円/月 | -円/月 | -円/月 | -円/月 | -円/月 | -円/月 |
20万円 | -円/月 | -円/月 | -円/月 | -円/月 | -円/月 | -円/月 |
25万円 | -円/月 | -円/月 | -円/月 | -円/月 | -円/月 | -円/月 |
30万円 | -円/月 | -円/月 | -円/月 | -円/月 | -円/月 | -円/月 |
ボーナス払 | 35年間返済 | 30年間返済 | 25年間返済 | 20年間返済 | 15年間返済 | 10年間返済 |
|---|---|---|---|---|---|---|
0万円 | -円/月 | -円/月 | -円/月 | -円/月 | -円/月 | -円/月 |
5万円 | -円/月 | -円/月 | -円/月 | -円/月 | -円/月 | -円/月 |
10万円 | -円/月 | -円/月 | -円/月 | -円/月 | -円/月 | -円/月 |
15万円 | -円/月 | -円/月 | -円/月 | -円/月 | -円/月 | -円/月 |
20万円 | -円/月 | -円/月 | -円/月 | -円/月 | -円/月 | -円/月 |
25万円 | -円/月 | -円/月 | -円/月 | -円/月 | -円/月 | -円/月 |
30万円 | -円/月 | -円/月 | -円/月 | -円/月 | -円/月 | -円/月 |
- ・金利は、今後35年間変動しない仮定のもと元利均等返済方式で計算しております。
- ・実際の金利は、各金融機関のホームページをご参照ください。
- ・ローン契約の際には、手数料や印紙税などの諸費用が別途かかります。
- ・ボーナス支払総額が総支払額の50%を超えている場合、上記の表では「ローン不可」となります。
- ・シミュレーションを利用し、それが原因で利用者が受けたいかなる損害についても当社は一切責任を負いません。あらかじめご了承ください。









