中古一戸建て宮崎県宮崎市小松台東3丁目の中古一戸建ての詳細情報
掲載期限まであと13日
外観・室内・設備(1枚)
物件概要
| 物件名 | 宮崎県宮崎市小松台東3丁目の中古一戸建て | ||||
|---|---|---|---|---|---|
| 所在地 | 宮崎県宮崎市小松台東3丁目9-20 | ||||
| 交通 |
バス 南ハイランド下車 徒歩1分 | ||||
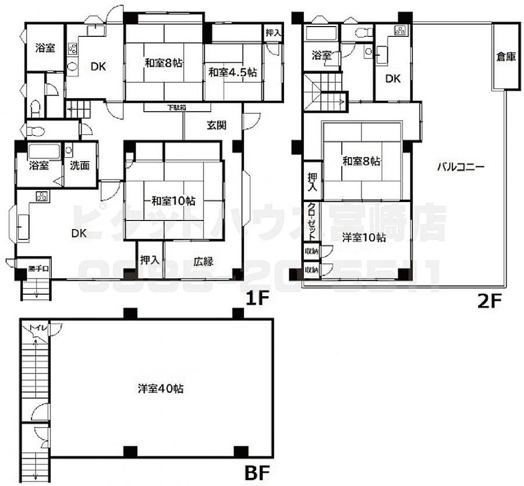
| 建物構造 | RC(鉄筋コンクリート)/2階建地下1階 | 間取り詳細(帖) | - | ||
| 総戸数 | - | 主要採光面 | - | ||
| 引渡し | 相談 | 現況 | 居住中 | ||
| 管理 | - | 駐車場 | 空有 (4台) | ||
| 地目 | 宅地 | 地勢 | - | ||
| 都市計画 | 市街化区域 | 用途地域 | 第一種低層住居専用地域 | ||
| 建ぺい率 | 50% | 容積率 | 60% | ||
| 土地権利 | 所有権 | 国土法届出 | 不要 | ||
| 私道負担・道路 | - | 接道状況 | 角地 ( 南 6m 公道 ) ( 東 6m 公道 ) | ||
| セットバック | - | リフォーム | - | ||
| リノベーション | - | 取引態様 | 一般媒介 | ||
| 施工会社名 | - | 建築確認番号 | - | ||
| その他費用 | - | ||||
| オープンルーム情報 | - | ||||
| 備考 | 高台の小松台東3丁目の東南角地。地下1階はスタジオやシアターなど向きの広いスペース40帖。キッチン、浴室は3ヶ所ずつ有り。買い物利便良好な立地。駐車場は4台可。 高台の角地!RC造、地下1Fのある6LDK☆ | ||||
情報公開日:2020/05/14 有効期限:2025/11/24
設備・条件
| 位置 | 南道路、角地 | ||||
|---|---|---|---|---|---|
| キッチン | 給湯 | ||||
| 設備・サービス | バルコニー、温水洗浄便座、専用トイレ、専用バス、洗面所独立、下水、都市ガス、公営水道、室内洗濯機置場 | ||||
| その他 | バス停3分以内、低層住宅地、2階建て、所有権、鉄筋系、駐車場あり、駐車場2台以上、上下水道、駐車場3台以上、前面道路6m以上 | ||||
この物件の地図・周辺環境
このアイコンは物件のおおよその位置を表しており、実際の場所と異なる場合がございます。詳しくは不動産会社に直接ご確認ください。
取り扱い不動産会社
- 住所
- 宮崎県宮崎市霧島2丁目205番地
- 電話番号
- 0985-20-5511
- 営業時間
- 09:00~18:00
- 定休日
- なし(GW休暇・夏期休暇・年末年始を除く)
- 免許番号
- 宮崎県知事(06)第004222号
- 所属団体
- (各都道府県)宅地建物取引業協会
有限会社シーエス不動産コンサルタンツ 宮崎店
(株)ジョイハウス
電話で問い合わせる(無料)お急ぎの方はこちらから!
物件お問い合わせ専用ダイヤル
営業時間:09:00~18:00(定休日:なし(GW休暇・夏期休暇・年末年始を除く)) 携帯・PHS可
音声案内に従って以下の数字を入力
お問い合わせ番号:82462-1050
LIFULL HOME'S物件番号:0845010344
※お客様の電話番号は不動産会社に通知されません。
※光IP電話、及びIP電話からはご利用になれません。
※不動産会社の方からの上記電話番号によるお問合せはお断りしております。
掲載期限まであと13日
宮崎市の口コミ
お買い物・飲食
4.0
繁華街のど真ん中のため、ショッピングや飲食店の店選びには困ることがない。ただし、日常使いのためのスーパーマーケットや、商店などはあまりないため、逆に郊外に買い物に出る必要がある。
お買い物・飲食
5.0
近くにスーパーや飲食店など豊富にあり、日々の生活がとても便利です。また、公園や河川敷も、近くにあり子育てに、ぴったりです。
住宅ローンシミュレーション
住宅ローン設定
物件価格
返済期間
頭金
ボーナス払(年1回)
※
※物件価格の80%以下でお借入れの場合
※50歳以下で一般団信をご選択の場合
※住宅ローン金利優遇割適用後の変動金利(全期間引き下げプラン)
※実際のお借入日の金利により変動します。
※審査の結果によっては保証付金利プランとなる場合があり、この場合は上記とは異なる金利となります。
※別途借入金額の2.20%(税込)の事務手数料が発生します。
ボーナス払 | 35年間返済 | 30年間返済 | 25年間返済 | 20年間返済 | 15年間返済 | 10年間返済 |
|---|---|---|---|---|---|---|
0万円 | -円/月 | -円/月 | -円/月 | -円/月 | -円/月 | -円/月 |
5万円 | -円/月 | -円/月 | -円/月 | -円/月 | -円/月 | -円/月 |
10万円 | -円/月 | -円/月 | -円/月 | -円/月 | -円/月 | -円/月 |
15万円 | -円/月 | -円/月 | -円/月 | -円/月 | -円/月 | -円/月 |
20万円 | -円/月 | -円/月 | -円/月 | -円/月 | -円/月 | -円/月 |
25万円 | -円/月 | -円/月 | -円/月 | -円/月 | -円/月 | -円/月 |
30万円 | -円/月 | -円/月 | -円/月 | -円/月 | -円/月 | -円/月 |
ボーナス払 | 35年間返済 | 30年間返済 | 25年間返済 | 20年間返済 | 15年間返済 | 10年間返済 |
|---|---|---|---|---|---|---|
0万円 | -円/月 | -円/月 | -円/月 | -円/月 | -円/月 | -円/月 |
5万円 | -円/月 | -円/月 | -円/月 | -円/月 | -円/月 | -円/月 |
10万円 | -円/月 | -円/月 | -円/月 | -円/月 | -円/月 | -円/月 |
15万円 | -円/月 | -円/月 | -円/月 | -円/月 | -円/月 | -円/月 |
20万円 | -円/月 | -円/月 | -円/月 | -円/月 | -円/月 | -円/月 |
25万円 | -円/月 | -円/月 | -円/月 | -円/月 | -円/月 | -円/月 |
30万円 | -円/月 | -円/月 | -円/月 | -円/月 | -円/月 | -円/月 |
- ・金利は、今後35年間変動しない仮定のもと元利均等返済方式で計算しております。
- ・実際の金利は、各金融機関のホームページをご参照ください。
- ・ローン契約の際には、手数料や印紙税などの諸費用が別途かかります。
- ・ボーナス支払総額が総支払額の50%を超えている場合、上記の表では「ローン不可」となります。
- ・シミュレーションを利用し、それが原因で利用者が受けたいかなる損害についても当社は一切責任を負いません。あらかじめご了承ください。




















