中古売戸建住宅長崎県長崎市琴海戸根町の中古売戸建住宅の詳細情報
掲載期限まであと10日
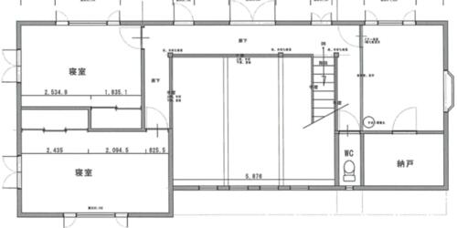
物件概要
| 物件名 | 長崎県長崎市琴海戸根町の中古売戸建住宅 | ||||
|---|---|---|---|---|---|
| 所在地 | 長崎県長崎市琴海戸根町 | ||||
| 交通 |
下屋敷停歩3700m | ||||
| 建物構造 | 木造/2階建 | 最多価格帯 | - | ||
| 販売戸数/総戸数 | -/- | 主要採光面 | 北西 | ||
| 引渡し | 相談 | 現況 | 賃貸中 | ||
| 管理 | - | 駐車場 | 有 | ||
| 地目 | 宅地 | 地勢 | 平坦 | ||
| 都市計画 | 非線引区域 | 用途地域 | 無指定 | ||
| 建ぺい率 | 70.00% | 容積率 | 200.00% | ||
| 土地権利 | 所有権 | 国土法届出 | - | ||
| 私道負担・道路 | - | 接道状況 | 南 3.0m 私道 | ||
| セットバック | - | リフォーム | - | ||
| リノベーション | - | 取引態様 | 媒介 | ||
| 施工会社名 | - | 建築確認番号 | - | ||
| その他費用 | - | ||||
| その他制限事項 | - | ||||
| 備考 | 家具家電あり。賃貸中のため、内覧希望の場合は第一希望・第二希望と日程の候補をお知らせください。・大村湾を望む風光明媚なリゾート物件☆海まで続くウッドデッキ。綺麗な海にはたくさんの魚や貝類が共存しています。テラスから釣りを楽しむこともできます。もちろん船舶を係留することも可能☆・仲介手数料:売買代金の3%+60,000円 | ||||
情報公開日:2025/10/01 次回更新予定日:情報更新日より14日以内
この物件の地図・周辺環境
このアイコンは物件のおおよその位置を表しており、実際の場所と異なる場合がございます。詳しくは不動産会社に直接ご確認ください。
取り扱い不動産会社
- 住所
- 福岡県北九州市小倉北区室町2丁目2-8リード室町1F
- 電話番号
- 093-561-1777
- 営業時間
- 09:30~18:30
- 免許番号
- 福岡県知事免許(3)第16754号
- 所属団体
- (公社)福岡県宅地建物取引業協会、(一社)九州不動産公正取引協議会
掲載期限まであと10日
長崎市の口コミ
自然環境
3.0
近くに諏訪神社があり景色も綺麗な場所です。 お祭りの会場になったり境内には 茶屋もあり軽食やぼたもちなど安くて おすすめです。
お買い物・飲食
5.0
ホットモットが近くにあり、非常に助かった。ココウォークにはドラッグストアやフードコートもあり、外食や買い物に困ることはまずない。飲み屋も多く、ラーメン屋、やきにく、お好み焼きなどなんでも美味しいものは揃っている。ただし物価は安いとは感じなかった。
住宅ローンシミュレーション
住宅ローン設定
物件価格
返済期間
頭金
ボーナス払(年1回)
※
※物件価格の80%以下でお借入れの場合
※50歳以下で一般団信をご選択の場合
※住宅ローン金利優遇割適用後の変動金利(全期間引き下げプラン)
※実際のお借入日の金利により変動します。
※審査の結果によっては保証付金利プランとなる場合があり、この場合は上記とは異なる金利となります。
※別途借入金額の2.20%(税込)の事務手数料が発生します。
ボーナス払 | 35年間返済 | 30年間返済 | 25年間返済 | 20年間返済 | 15年間返済 | 10年間返済 |
|---|---|---|---|---|---|---|
0万円 | -円/月 | -円/月 | -円/月 | -円/月 | -円/月 | -円/月 |
5万円 | -円/月 | -円/月 | -円/月 | -円/月 | -円/月 | -円/月 |
10万円 | -円/月 | -円/月 | -円/月 | -円/月 | -円/月 | -円/月 |
15万円 | -円/月 | -円/月 | -円/月 | -円/月 | -円/月 | -円/月 |
20万円 | -円/月 | -円/月 | -円/月 | -円/月 | -円/月 | -円/月 |
25万円 | -円/月 | -円/月 | -円/月 | -円/月 | -円/月 | -円/月 |
30万円 | -円/月 | -円/月 | -円/月 | -円/月 | -円/月 | -円/月 |
ボーナス払 | 35年間返済 | 30年間返済 | 25年間返済 | 20年間返済 | 15年間返済 | 10年間返済 |
|---|---|---|---|---|---|---|
0万円 | -円/月 | -円/月 | -円/月 | -円/月 | -円/月 | -円/月 |
5万円 | -円/月 | -円/月 | -円/月 | -円/月 | -円/月 | -円/月 |
10万円 | -円/月 | -円/月 | -円/月 | -円/月 | -円/月 | -円/月 |
15万円 | -円/月 | -円/月 | -円/月 | -円/月 | -円/月 | -円/月 |
20万円 | -円/月 | -円/月 | -円/月 | -円/月 | -円/月 | -円/月 |
25万円 | -円/月 | -円/月 | -円/月 | -円/月 | -円/月 | -円/月 |
30万円 | -円/月 | -円/月 | -円/月 | -円/月 | -円/月 | -円/月 |
- ・金利は、今後35年間変動しない仮定のもと元利均等返済方式で計算しております。
- ・実際の金利は、各金融機関のホームページをご参照ください。
- ・ローン契約の際には、手数料や印紙税などの諸費用が別途かかります。
- ・ボーナス支払総額が総支払額の50%を超えている場合、上記の表では「ローン不可」となります。
- ・シミュレーションを利用し、それが原因で利用者が受けたいかなる損害についても当社は一切責任を負いません。あらかじめご了承ください。
















