一戸建て東区逢谷内 中古住宅の詳細情報
2280万円
月々のローン返済額を試算■内外装リフォーム済■逢谷内IC至近!アクセス良好■前面道路6m
周辺環境・アクセス(7枚)
その他(14枚)
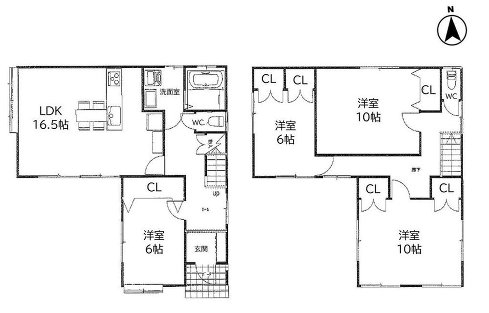
物件概要
| 物件名 | 東区逢谷内 中古住宅 | ||||
|---|---|---|---|---|---|
| 所在地 | 新潟県新潟市東区逢谷内3-538-20 | ||||
| 交通 |
JR白新線「大形」歩18分 | ||||
| 建物構造 | 木造2階建 | 最多価格帯 | - | ||
| 販売戸数/総戸数 | 1戸/1戸 | 入居時期 | 即引渡可 | ||
| 駐車場 | カースペース | 地目 | - | ||
| 用途地域 | 準工業 | 建ぺい率・容積率 | 60%・200% | ||
| 土地権利 | 所有権 | 私道負担・道路 | 共有持分33㎡×(1/1)、北西6m幅 | ||
| セットバック | - | リフォーム |
2025年2月完了 水回り設備交換:キッチン・浴室・トイレ 内装リフォーム:壁・床 その他:全室クロス/LDK拡張… 2025年2月完了 その他リフォーム:外壁 ※年月は一番古いリフォーム箇所を表します | ||
| 取引態様 | 仲介 | 施工会社名 | - | ||
| 建築確認番号 | - | ||||
| その他費用 | - | ||||
| 販売スケジュール | - | ||||
| イベント情報 | - | ||||
| その他制限事項 | 景観法による規制有、日影制限有、大規模集客施設制限地区/斜線制限有 | ||||
| 備考 | 担当者:藤井 早紀、設備:公営水道、本下水、都市ガス、駐車場:カースペース | ||||
| 取引条件有効期限 | - | ||||
情報公開日:2025/11/22 次回更新予定日:情報提供より8日以内
この物件の地図・周辺環境
このアイコンは物件のおおよその位置を表しており、実際の場所と異なる場合がございます。詳しくは不動産会社に直接ご確認ください。
※地図上に表示される物件の位置は付近住所に所在することを表すものであり、実際の物件所在地とは異なる場合がございます。
※地図の更新タイミングの関係で、物件情報が実際のものとは異なる場合や最新情報に更新されていない場合がございます。
※以下の南西諸島及び離島においては、表示される物件の位置が実際のものとは数百メートル程度ずれる場合がございます。
東京都:硫黄島・青ヶ島、沖縄県: 北大東島・南大東島・多良間島・水納島・与那国島・宮古諸島・石垣島・竹富島
取り扱い不動産会社
- 住所
- 新潟県新潟市中央区女池2-2-25
- 電話番号
- 025-288-5637
- 営業時間
- 営業時間:9:00~18:00 / 定休日:無休
- 免許番号
- 新潟県知事(3)第005151号
- 会社概要
- <仲介>
新潟県知事(3)第005151号
(公社)新潟県宅地建物取引業協会会員 (公社)首都圏不動産公正取引協議会加盟
新潟土地建物販売センター(株)
〒950-0941 新潟県新潟市中央区女池2-2-25
住宅ローンシミュレーション
住宅ローン設定
物件価格
返済期間
頭金
ボーナス払(年1回)
※
※物件価格の80%以下でお借入れの場合
※50歳以下で一般団信をご選択の場合
※住宅ローン金利優遇割適用後の変動金利(全期間引き下げプラン)
※実際のお借入日の金利により変動します。
※審査の結果によっては保証付金利プランとなる場合があり、この場合は上記とは異なる金利となります。
※別途借入金額の2.20%(税込)の事務手数料が発生します。
ボーナス払 | 35年間返済 | 30年間返済 | 25年間返済 | 20年間返済 | 15年間返済 | 10年間返済 |
|---|---|---|---|---|---|---|
0万円 | -円/月 | -円/月 | -円/月 | -円/月 | -円/月 | -円/月 |
5万円 | -円/月 | -円/月 | -円/月 | -円/月 | -円/月 | -円/月 |
10万円 | -円/月 | -円/月 | -円/月 | -円/月 | -円/月 | -円/月 |
15万円 | -円/月 | -円/月 | -円/月 | -円/月 | -円/月 | -円/月 |
20万円 | -円/月 | -円/月 | -円/月 | -円/月 | -円/月 | -円/月 |
25万円 | -円/月 | -円/月 | -円/月 | -円/月 | -円/月 | -円/月 |
30万円 | -円/月 | -円/月 | -円/月 | -円/月 | -円/月 | -円/月 |
ボーナス払 | 35年間返済 | 30年間返済 | 25年間返済 | 20年間返済 | 15年間返済 | 10年間返済 |
|---|---|---|---|---|---|---|
0万円 | -円/月 | -円/月 | -円/月 | -円/月 | -円/月 | -円/月 |
5万円 | -円/月 | -円/月 | -円/月 | -円/月 | -円/月 | -円/月 |
10万円 | -円/月 | -円/月 | -円/月 | -円/月 | -円/月 | -円/月 |
15万円 | -円/月 | -円/月 | -円/月 | -円/月 | -円/月 | -円/月 |
20万円 | -円/月 | -円/月 | -円/月 | -円/月 | -円/月 | -円/月 |
25万円 | -円/月 | -円/月 | -円/月 | -円/月 | -円/月 | -円/月 |
30万円 | -円/月 | -円/月 | -円/月 | -円/月 | -円/月 | -円/月 |
- ・金利は、今後35年間変動しない仮定のもと元利均等返済方式で計算しております。
- ・実際の金利は、各金融機関のホームページをご参照ください。
- ・ローン契約の際には、手数料や印紙税などの諸費用が別途かかります。
- ・ボーナス支払総額が総支払額の50%を超えている場合、上記の表では「ローン不可」となります。
- ・シミュレーションを利用し、それが原因で利用者が受けたいかなる損害についても当社は一切責任を負いません。あらかじめご了承ください。






















