一戸建て大池 1198万円の詳細情報
1198万円
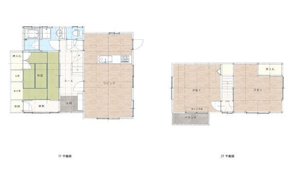
月々のローン返済額を試算3LDK2階建て♪ 水廻りは全て新品!駐車スペースは3台。
その他(20枚)
物件概要
| 物件名 | 大池 1198万円 | ||||
|---|---|---|---|---|---|
| 所在地 | 静岡県掛川市大池 | ||||
| 交通 |
天竜浜名湖鉄道「西掛川」車0.8km JR東海道本線「掛川」バス8分二瀬川歩2分 | ||||
| 建物構造 | 木造2階建 | 最多価格帯 | - | ||
| 販売戸数/総戸数 | 1戸/- | 入居時期 | 相談 | ||
| 駐車場 | カースペース | 地目 | - | ||
| 用途地域 | 1種低層 | 建ぺい率・容積率 | 40%・60% | ||
| 土地権利 | 所有権 | 私道負担・道路 | 無、南東3.2m幅(接道幅18m)、南西2.5m幅(接道幅8.5m) | ||
| セットバック | 要 | リフォーム |
2023年5月完了 水回り設備交換:キッチン・浴室・トイレ 内装リフォーム:壁・床・全室 2023年5月完了 その他リフォーム:外壁 ※年月は一番古いリフォーム箇所を表します | ||
| 取引態様 | 仲介 | 施工会社名 | - | ||
| 建築確認番号 | - | ||||
| その他費用 | - | ||||
| 販売スケジュール | - | ||||
| イベント情報 | - | ||||
| その他制限事項 | セットバック:要、景観法による規制有、道路は二方向ともに法定外道路(農道)。セットバック及び農道使用許可または承諾により再建築可。建蔽率の緩和はありません。 | ||||
| 備考 | 担当者:西郷敬悟、設備:公営水道、個別浄化槽、個別LPG、駐車場:カースペース | ||||
| 取引条件有効期限 | - | ||||
情報公開日:2025/11/27 次回更新予定日:情報提供より8日以内
この物件の地図・周辺環境
このアイコンは物件のおおよその位置を表しており、実際の場所と異なる場合がございます。詳しくは不動産会社に直接ご確認ください。
※地図上に表示される物件の位置は付近住所に所在することを表すものであり、実際の物件所在地とは異なる場合がございます。
※地図の更新タイミングの関係で、物件情報が実際のものとは異なる場合や最新情報に更新されていない場合がございます。
※以下の南西諸島及び離島においては、表示される物件の位置が実際のものとは数百メートル程度ずれる場合がございます。
東京都:硫黄島・青ヶ島、沖縄県: 北大東島・南大東島・多良間島・水納島・与那国島・宮古諸島・石垣島・竹富島
取り扱い不動産会社
- 住所
- 静岡県磐田市下万能152
- 電話番号
- 0538-39-0500
- 営業時間
- 営業時間:9:00-18:00 / 定休日:火曜日、水曜日、GW、年末年始
- 免許番号
- 国土交通大臣(1)第010621号
- 会社概要
- <仲介>
国土交通大臣(1)第010621号
(公社)静岡県宅地建物取引業協会会員 東海不動産公正取引協議会加盟
センチュリー21中央不動産(株)磐田店
〒438-0818 静岡県磐田市下万能152
アイデムホーム 浜松店
(株)市川不動産ホーム
(株)Earnest
センチュリー21中央不動産磐田店
富士ヶ丘サービス株式会社
(株)みつばち不動産
(株)Earnest
(株)アーガス イエステーション掛川店
住宅ローンシミュレーション
住宅ローン設定
物件価格
返済期間
頭金
ボーナス払(年1回)
※
※物件価格の80%以下でお借入れの場合
※50歳以下で一般団信をご選択の場合
※住宅ローン金利優遇割適用後の変動金利(全期間引き下げプラン)
※実際のお借入日の金利により変動します。
※審査の結果によっては保証付金利プランとなる場合があり、この場合は上記とは異なる金利となります。
※別途借入金額の2.20%(税込)の事務手数料が発生します。
ボーナス払 | 35年間返済 | 30年間返済 | 25年間返済 | 20年間返済 | 15年間返済 | 10年間返済 |
|---|---|---|---|---|---|---|
0万円 | -円/月 | -円/月 | -円/月 | -円/月 | -円/月 | -円/月 |
5万円 | -円/月 | -円/月 | -円/月 | -円/月 | -円/月 | -円/月 |
10万円 | -円/月 | -円/月 | -円/月 | -円/月 | -円/月 | -円/月 |
15万円 | -円/月 | -円/月 | -円/月 | -円/月 | -円/月 | -円/月 |
20万円 | -円/月 | -円/月 | -円/月 | -円/月 | -円/月 | -円/月 |
25万円 | -円/月 | -円/月 | -円/月 | -円/月 | -円/月 | -円/月 |
30万円 | -円/月 | -円/月 | -円/月 | -円/月 | -円/月 | -円/月 |
ボーナス払 | 35年間返済 | 30年間返済 | 25年間返済 | 20年間返済 | 15年間返済 | 10年間返済 |
|---|---|---|---|---|---|---|
0万円 | -円/月 | -円/月 | -円/月 | -円/月 | -円/月 | -円/月 |
5万円 | -円/月 | -円/月 | -円/月 | -円/月 | -円/月 | -円/月 |
10万円 | -円/月 | -円/月 | -円/月 | -円/月 | -円/月 | -円/月 |
15万円 | -円/月 | -円/月 | -円/月 | -円/月 | -円/月 | -円/月 |
20万円 | -円/月 | -円/月 | -円/月 | -円/月 | -円/月 | -円/月 |
25万円 | -円/月 | -円/月 | -円/月 | -円/月 | -円/月 | -円/月 |
30万円 | -円/月 | -円/月 | -円/月 | -円/月 | -円/月 | -円/月 |
- ・金利は、今後35年間変動しない仮定のもと元利均等返済方式で計算しております。
- ・実際の金利は、各金融機関のホームページをご参照ください。
- ・ローン契約の際には、手数料や印紙税などの諸費用が別途かかります。
- ・ボーナス支払総額が総支払額の50%を超えている場合、上記の表では「ローン不可」となります。
- ・シミュレーションを利用し、それが原因で利用者が受けたいかなる損害についても当社は一切責任を負いません。あらかじめご了承ください。





















