NEW中古売戸建住宅徳島県徳島市名東町2丁目の中古売戸建住宅の詳細情報
掲載期限まであと13日
物件概要
| 物件名 | 徳島県徳島市名東町2丁目の中古売戸建住宅 | ||||
|---|---|---|---|---|---|
| 所在地 | 徳島県徳島市名東町2丁目 | ||||
| 交通 |
【バス】名東2丁目 バス停下車 徒歩3分 | ||||
| 建物構造 | 木造/2階建 | 最多価格帯 | - | ||
| 販売戸数/総戸数 | -/- | 主要採光面 | 東 | ||
| 引渡し | 即時 | 現況 | 空 | ||
| 管理 | - | 駐車場 | 有 (無料) | ||
| 地目 | 宅地 | 地勢 | 平坦 | ||
| 都市計画 | 市街化区域 | 用途地域 | 1種中高 | ||
| 建ぺい率 | 60.00% | 容積率 | 160.00% | ||
| 土地権利 | 所有権 | 国土法届出 | - | ||
| 私道負担・道路 | - | 接道状況 | 北 4.0m 公道 接面8.6m | ||
| セットバック | - | リフォーム | 備考に記載 | ||
| リノベーション | - | 取引態様 | 媒介 | ||
| 施工会社名 | - | 建築確認番号 | - | ||
| その他費用 | - | ||||
| その他制限事項 | - | ||||
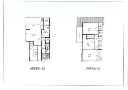
| 備考 | 私道負担:なし・リフォーム実施:2024年3月水回り(キッチン/トイレ/給湯器)、2024年3月内装(全室クロス張替え/床(フローリング等))、2024年3月外装(外壁/屋根)、2024年3月その他(ベランダ防水・シロアリ消毒・各部屋照明・網戸貼り替え等) | ||||
情報公開日:2026/02/04 次回更新予定日:情報更新日より14日以内
この物件の地図・周辺環境
このアイコンは物件のおおよその位置を表しており、実際の場所と異なる場合がございます。詳しくは不動産会社に直接ご確認ください。
取り扱い不動産会社
- 住所
- 徳島県徳島市南前川町4丁目14船橋設計ビル1F
- 電話番号
- 088-611-2588
- 営業時間
- 09:15~18:30(日曜日・祝日のみ 9:15~18:00)
- 定休日
- 年末年始・お盆
- 免許番号
- 徳島県知事免許(6)第2515号
- 所属団体
- (公社)徳島県宅地建物取引業協会、四国地区不動産公正取引協議会
掲載期限まであと13日
徳島市の口コミ
自然環境
4.0
周りは水田が多く、初夏の夜に近くを通ると蛙の鳴き声が聞こえる。大きな公園は近くに無いが、街と自然のバランスは良いと思う。
子育て・病院
5.0
大きい病院(大学病院)が近い。コンビニが近い。学校も大学が近い。静かで治安が比較的良い。子育てしやすい。
住宅ローンシミュレーション
住宅ローン設定
物件価格
返済期間
頭金
ボーナス払(年1回)
※
※物件価格の80%以下でお借入れの場合
※50歳以下で一般団信をご選択の場合
※住宅ローン金利優遇割適用後の変動金利(全期間引き下げプラン)
※実際のお借入日の金利により変動します。
※審査の結果によっては保証付金利プランとなる場合があり、この場合は上記とは異なる金利となります。
※別途借入金額の2.20%(税込)の事務手数料が発生します。
ボーナス払 | 35年間返済 | 30年間返済 | 25年間返済 | 20年間返済 | 15年間返済 | 10年間返済 |
|---|---|---|---|---|---|---|
0万円 | -円/月 | -円/月 | -円/月 | -円/月 | -円/月 | -円/月 |
5万円 | -円/月 | -円/月 | -円/月 | -円/月 | -円/月 | -円/月 |
10万円 | -円/月 | -円/月 | -円/月 | -円/月 | -円/月 | -円/月 |
15万円 | -円/月 | -円/月 | -円/月 | -円/月 | -円/月 | -円/月 |
20万円 | -円/月 | -円/月 | -円/月 | -円/月 | -円/月 | -円/月 |
25万円 | -円/月 | -円/月 | -円/月 | -円/月 | -円/月 | -円/月 |
30万円 | -円/月 | -円/月 | -円/月 | -円/月 | -円/月 | -円/月 |
ボーナス払 | 35年間返済 | 30年間返済 | 25年間返済 | 20年間返済 | 15年間返済 | 10年間返済 |
|---|---|---|---|---|---|---|
0万円 | -円/月 | -円/月 | -円/月 | -円/月 | -円/月 | -円/月 |
5万円 | -円/月 | -円/月 | -円/月 | -円/月 | -円/月 | -円/月 |
10万円 | -円/月 | -円/月 | -円/月 | -円/月 | -円/月 | -円/月 |
15万円 | -円/月 | -円/月 | -円/月 | -円/月 | -円/月 | -円/月 |
20万円 | -円/月 | -円/月 | -円/月 | -円/月 | -円/月 | -円/月 |
25万円 | -円/月 | -円/月 | -円/月 | -円/月 | -円/月 | -円/月 |
30万円 | -円/月 | -円/月 | -円/月 | -円/月 | -円/月 | -円/月 |
- ・金利は、今後35年間変動しない仮定のもと元利均等返済方式で計算しております。
- ・実際の金利は、各金融機関のホームページをご参照ください。
- ・ローン契約の際には、手数料や印紙税などの諸費用が別途かかります。
- ・ボーナス支払総額が総支払額の50%を超えている場合、上記の表では「ローン不可」となります。
- ・シミュレーションを利用し、それが原因で利用者が受けたいかなる損害についても当社は一切責任を負いません。あらかじめご了承ください。
















