NEW中古売戸建住宅山梨県北杜市大泉町谷戸の中古売戸建住宅の詳細情報
掲載期限まであと13日
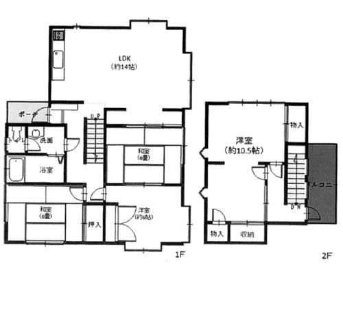
外観・室内・設備(8枚)
物件概要
| 物件名 | 山梨県北杜市大泉町谷戸の中古売戸建住宅 | ||||
|---|---|---|---|---|---|
| 所在地 | 山梨県北杜市大泉町谷戸 | ||||
| 交通 |
JR小海線甲斐小泉駅徒歩3100m | ||||
| 建物構造 | 木造/2階建 | 最多価格帯 | - | ||
| 販売戸数/総戸数 | -/- | 主要採光面 | 南 | ||
| 引渡し | 相談 | 現況 | 居住中 | ||
| 管理 | - | 駐車場 | 有 (無料) | ||
| 地目 | 宅地 | 地勢 | 傾斜地 | ||
| 都市計画 | 区域外 | 用途地域 | 無指定 | ||
| 建ぺい率 | 30.00% | 容積率 | 40.00% | ||
| 土地権利 | 所有権 | 国土法届出 | - | ||
| 私道負担・道路 | - | 接道状況 | 北 4.0m 私道 接面21.0m | ||
| セットバック | - | リフォーム | 備考に記載 | ||
| リノベーション | - | 取引態様 | 媒介 | ||
| 施工会社名 | - | 建築確認番号 | - | ||
| その他費用 | 管理費/年:79,200円 | ||||
| その他制限事項 | - | ||||
| 備考 | JR小海甲斐小泉駅から約3.1kmの北東側。閑静な別荘地と森林の中の別荘だからこそのオンオフのメリハリがつきます。内外装のリフォームも行っており、快適な別荘ライフが楽しめる事でしょう!!ハザードマップの掛かりはございません。・維持費等:管理費79,200円/年・固定資産税35,900円/年・市民税(別荘一律)4,500円/年・私道負担:なし・泉郷の3期の分譲用別荘地内です。傾斜地であり程よい陽射しが入り、ゆったりとした空間の別荘です。ハザードマップの掛かりはございません。・リフォーム実施:2024年10月水回り(キッチン/トイレ/洗面所/給湯器/浴室換気扇の取付け。)、2024年10月内装(サッシ/内窓取付け。畳張替。)、2025年4月外装(外壁/屋根/屋根:カバー工法によるガルバリウム鋼板取付け) | ||||
情報公開日:2026/04/02 次回更新予定日:情報更新日より14日以内
この物件の地図・周辺環境
このアイコンは物件のおおよその位置を表しており、実際の場所と異なる場合がございます。詳しくは不動産会社に直接ご確認ください。
取り扱い不動産会社
(株)オー・エム・シー B-STYLE/STYLE HOUSE
- 住所
- 山梨県甲府市下飯田1丁目3-17
- 電話番号
- 055-221-7722
- 営業時間
- 10:00~19:00
- 定休日
- 水曜日・年末年始、GW
- 免許番号
- 山梨県知事免許(6)第2002号
- 所属団体
- (公社)山梨県宅地建物取引業協会、(公社)首都圏不動産公正取引協議会
掲載期限まであと13日
住宅ローンシミュレーション
住宅ローン設定
物件価格
返済期間
頭金
ボーナス払(年1回)
※
※物件価格の80%以下でお借入れの場合
※50歳以下で一般団信をご選択の場合
※住宅ローン金利優遇割適用後の変動金利(全期間引き下げプラン)
※実際のお借入日の金利により変動します。
※審査の結果によっては保証付金利プランとなる場合があり、この場合は上記とは異なる金利となります。
※別途借入金額の2.20%(税込)の事務手数料が発生します。
ボーナス払 | 35年間返済 | 30年間返済 | 25年間返済 | 20年間返済 | 15年間返済 | 10年間返済 |
|---|---|---|---|---|---|---|
0万円 | -円/月 | -円/月 | -円/月 | -円/月 | -円/月 | -円/月 |
5万円 | -円/月 | -円/月 | -円/月 | -円/月 | -円/月 | -円/月 |
10万円 | -円/月 | -円/月 | -円/月 | -円/月 | -円/月 | -円/月 |
15万円 | -円/月 | -円/月 | -円/月 | -円/月 | -円/月 | -円/月 |
20万円 | -円/月 | -円/月 | -円/月 | -円/月 | -円/月 | -円/月 |
25万円 | -円/月 | -円/月 | -円/月 | -円/月 | -円/月 | -円/月 |
30万円 | -円/月 | -円/月 | -円/月 | -円/月 | -円/月 | -円/月 |
ボーナス払 | 35年間返済 | 30年間返済 | 25年間返済 | 20年間返済 | 15年間返済 | 10年間返済 |
|---|---|---|---|---|---|---|
0万円 | -円/月 | -円/月 | -円/月 | -円/月 | -円/月 | -円/月 |
5万円 | -円/月 | -円/月 | -円/月 | -円/月 | -円/月 | -円/月 |
10万円 | -円/月 | -円/月 | -円/月 | -円/月 | -円/月 | -円/月 |
15万円 | -円/月 | -円/月 | -円/月 | -円/月 | -円/月 | -円/月 |
20万円 | -円/月 | -円/月 | -円/月 | -円/月 | -円/月 | -円/月 |
25万円 | -円/月 | -円/月 | -円/月 | -円/月 | -円/月 | -円/月 |
30万円 | -円/月 | -円/月 | -円/月 | -円/月 | -円/月 | -円/月 |
- ・金利は、今後35年間変動しない仮定のもと元利均等返済方式で計算しております。
- ・実際の金利は、各金融機関のホームページをご参照ください。
- ・ローン契約の際には、手数料や印紙税などの諸費用が別途かかります。
- ・ボーナス支払総額が総支払額の50%を超えている場合、上記の表では「ローン不可」となります。
- ・シミュレーションを利用し、それが原因で利用者が受けたいかなる損害についても当社は一切責任を負いません。あらかじめご了承ください。
















