NEWマンションアルフィーネ大野城アクアサイドの詳細情報
3480万円
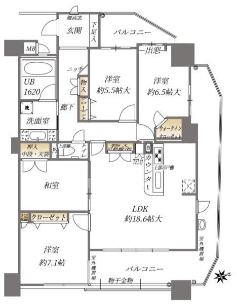
月々のローン返済額を試算【大好評につき夜22時まで内覧サービス継続中】専有面積100、57平米!
物件概要
| 物件名 | アルフィーネ大野城アクアサイド | ||||
|---|---|---|---|---|---|
| 所在地 | 福岡県大野城市筒井5 | ||||
| 交通 |
西鉄天神大牟田線「春日原」歩14分 西鉄天神大牟田線「白木原」歩17分 JR鹿児島本線「春日」歩22分 | ||||
| 建物構造 | RC10階建 | 最多価格帯 | - | ||
| 販売戸数/総戸数 | 1戸/67戸 | 主要採光面 | 南東 | ||
| 修繕積立金 | 2万1120円/月 | 修繕積立基金 | - | ||
| その他面積 | バルコニー面積:30.61㎡ | 土地権利 | 所有権 | ||
| 入居時期 | 相談 | 管理 | 1万1270円/月(委託(通勤)) | ||
| 駐車場 | 敷地内(6500円/月) | 用途地域 | 1種住居 | ||
| リフォーム | - | 取引態様 | 仲介 | ||
| 施工会社名 | - | ||||
| その他費用 | - | ||||
| 販売スケジュール | - | ||||
| イベント情報 |
■ご自宅や最寄駅での待ち合わせ等の送迎サービス実施中 ■頭金0円住宅ローン金利優遇MAX・おまとめローン個別相談会実施中 ■火災保険・引越し・リフォーム等々の面倒な諸手続き全てお任せください ■住宅ローン複数行一括申込可能(弊社ではローン代行0円) ☆☆☆ 住替えサポート制度はじめました ☆☆☆ 現在のお住まいを一定期間、買主を探しその期間内で売れなかった場合に弊社が事前に提示した金額で買取保証致します。つまり、仲介で高く売却する機会があり、たとえ期間内に売れなくても確実に売却できるという、仲介と買取双方の長所を備えた制度になります。 不動産の購入だけではなく売却の不安も解消させていただきます。 CENTURY21とは 世界85の国と地域に約14000店舗15万人もの営業スタッフが働き、 国内では1983年に創業し、 現在日本全国に約1,000店舗を展開している国内有数の不動産ネットワークです。 店舗数は売買・賃貸をともに扱っている不動産会社としては日本で最も多く、 現在7,000名近い従業員がセンチュリー21の店舗で働いています。 ◆◆◆ 物件見学にかかる時間の目安 ◆◆◆ 1.お急ぎプラン…約20分 気になる1物件を限定で見学(忙しい方向け) 2.おまとめ見学プラン…約60分 複数の物件をまとめて見学(比較検討に最適) 3.じっくり検討プラン…約90分 資金計画や住宅ローン減税等々のご案内(物件見学含む) | ||||
| その他制限事項 | - | ||||
| 備考 | - | ||||
| 取引条件有効期限 | - | ||||
情報公開日:2025/11/09 次回更新予定日:情報提供より8日以内
取り扱い不動産会社
- 電話番号
- 092-407-1822
- 営業時間
- 営業時間:10:00~20:00 / 定休日:火曜日・水曜日
- 免許番号
- 福岡県知事(2)第018931号
- 会社概要
- <仲介>
福岡県知事(2)第018931号
(公社)福岡県宅地建物取引業協会会員 (一社)九州不動産公正取引協議会加盟
センチュリー21新日本構想(株)
〒819-0006 福岡県福岡市西区姪浜駅南4-12-12-3階
春日原駅の口コミ
治安・安全
4.0
春日原駅を挟んで反対側にはスナック等もあるようですが、それほど夜遅くまで営業しているお店は少なく、交番もあるので治安は問題ないと思います。
子育て・病院
4.0
天神に出やすい駅ですが、駅前に24時間営業のスーパーがあったり、少し行けば大きい公園があったりと、お子さんがいても生活しやすいところだと思います。小児科も駅近くに複数あって、合ったところを選べると思います。
住宅ローンシミュレーション
住宅ローン設定
物件価格
返済期間
頭金
ボーナス払(年1回)
※
※物件価格の80%以下でお借入れの場合
※50歳以下で一般団信をご選択の場合
※住宅ローン金利優遇割適用後の変動金利(全期間引き下げプラン)
※実際のお借入日の金利により変動します。
※審査の結果によっては保証付金利プランとなる場合があり、この場合は上記とは異なる金利となります。
※別途借入金額の2.20%(税込)の事務手数料が発生します。
ボーナス払 | 35年間返済 | 30年間返済 | 25年間返済 | 20年間返済 | 15年間返済 | 10年間返済 |
|---|---|---|---|---|---|---|
0万円 | -円/月 | -円/月 | -円/月 | -円/月 | -円/月 | -円/月 |
5万円 | -円/月 | -円/月 | -円/月 | -円/月 | -円/月 | -円/月 |
10万円 | -円/月 | -円/月 | -円/月 | -円/月 | -円/月 | -円/月 |
15万円 | -円/月 | -円/月 | -円/月 | -円/月 | -円/月 | -円/月 |
20万円 | -円/月 | -円/月 | -円/月 | -円/月 | -円/月 | -円/月 |
25万円 | -円/月 | -円/月 | -円/月 | -円/月 | -円/月 | -円/月 |
30万円 | -円/月 | -円/月 | -円/月 | -円/月 | -円/月 | -円/月 |
ボーナス払 | 35年間返済 | 30年間返済 | 25年間返済 | 20年間返済 | 15年間返済 | 10年間返済 |
|---|---|---|---|---|---|---|
0万円 | -円/月 | -円/月 | -円/月 | -円/月 | -円/月 | -円/月 |
5万円 | -円/月 | -円/月 | -円/月 | -円/月 | -円/月 | -円/月 |
10万円 | -円/月 | -円/月 | -円/月 | -円/月 | -円/月 | -円/月 |
15万円 | -円/月 | -円/月 | -円/月 | -円/月 | -円/月 | -円/月 |
20万円 | -円/月 | -円/月 | -円/月 | -円/月 | -円/月 | -円/月 |
25万円 | -円/月 | -円/月 | -円/月 | -円/月 | -円/月 | -円/月 |
30万円 | -円/月 | -円/月 | -円/月 | -円/月 | -円/月 | -円/月 |
- ・金利は、今後35年間変動しない仮定のもと元利均等返済方式で計算しております。
- ・実際の金利は、各金融機関のホームページをご参照ください。
- ・ローン契約の際には、手数料や印紙税などの諸費用が別途かかります。
- ・ボーナス支払総額が総支払額の50%を超えている場合、上記の表では「ローン不可」となります。
- ・シミュレーションを利用し、それが原因で利用者が受けたいかなる損害についても当社は一切責任を負いません。あらかじめご了承ください。














