マンショングレートヒルアクアフロントの詳細情報
5380万円
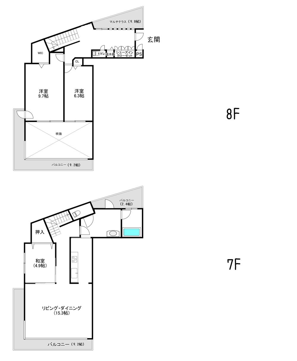
月々のローン返済額を試算豊平川一望×都心徒歩圏!三方向バルコニーの開放メゾネット
その他(19枚)
物件概要
| 物件名 | グレートヒルアクアフロント | ||||
|---|---|---|---|---|---|
| 所在地 | 北海道札幌市中央区南七条西1-20-1 | ||||
| 交通 |
地下鉄東豊線「豊水すすきの」歩4分 地下鉄南北線「中島公園」歩10分 地下鉄南北線「すすきの」歩13分 | ||||
| 建物構造 | RC14階地下1階建 | 最多価格帯 | - | ||
| 販売戸数/総戸数 | 1戸/- | 主要採光面 | 南 | ||
| 修繕積立金 | 2万2900円/月 | 修繕積立基金 | - | ||
| その他面積 | バルコニー面積:46.45㎡ | 土地権利 | 所有権 | ||
| 入居時期 | 相談 | 管理 | 1万5800円/月(委託(通勤)) | ||
| 駐車場 | 分譲駐車場(必購入)(価格は物件価格に含む、管理費無、修繕積立金無、修繕積立基金無) | 用途地域 | - | ||
| リフォーム | - | 取引態様 | 仲介 | ||
| 施工会社名 | - | ||||
| その他費用 | 町会費:200円/月 | ||||
| 販売スケジュール | - | ||||
| イベント情報 |
何社にも問い合わせる必要…ございません! 弊社で掲載していない物件も、ほぼ全てご案内可能です! 他にも気になる物件がございましたら まとめて見学手配を致しますので、お気軽にお申し付けください! 土日に限らず、営業時間外でも対応可能です。 お住まい探しは 設立27年の実績(株)円美屋にお任せ下さい! ◆・◆問い合わせ・見学・窓口◆・◆ TEL 0120-081-038 ※ 当日の見学予約も可能! ------------------------------- 住宅ローンもお任せください 「転職したばかり」「借入がある」 「審査が通るか心配…」 内容をお聞かせいただければ、しっかりとご提案いたします。 ■-■ご内覧について■-■ 平日・土日祝日内覧可能です。 下記いずれかの方法にてご連絡をお願い致します。 (1)ページ内の「見学予約」ボタンより即時予約確定♪ (2)当社「0120-081-038」に問合せ (3)担当者 西川「090-9521-5467」に直接問合せ ご案内方法 → 現地集合、ご自宅・最寄駅等へのお迎え対応致します。 ■-■お問い合わせについて■-■ 物件資料が欲しいという方はオレンジの 「資料請求」ボタンをクリックしてください。 ※ご予算、ご希望エリア等をお伝え頂けると 問い合わせ以外の物件もご提案できます。 | ||||
| その他制限事項 | - | ||||
| 備考 | 担当者:西川 俊也 | ||||
| 取引条件有効期限 | - | ||||
情報公開日:2025/11/15 次回更新予定日:情報提供より8日以内
この物件の地図・周辺環境
このアイコンは物件のおおよその位置を表しており、実際の場所と異なる場合がございます。詳しくは不動産会社に直接ご確認ください。
※地図上に表示される物件の位置は付近住所に所在することを表すものであり、実際の物件所在地とは異なる場合がございます。
※地図の更新タイミングの関係で、物件情報が実際のものとは異なる場合や最新情報に更新されていない場合がございます。
※以下の南西諸島及び離島においては、表示される物件の位置が実際のものとは数百メートル程度ずれる場合がございます。
東京都:硫黄島・青ヶ島、沖縄県: 北大東島・南大東島・多良間島・水納島・与那国島・宮古諸島・石垣島・竹富島
取り扱い不動産会社
- 住所
- 北海道札幌市西区琴似一条3-1-33
- 電話番号
- 0120-081038
- 免許番号
- 北海道知事石狩(5)第006708号
- 会社概要
- <仲介>
北海道知事石狩(5)第006708号
(株)円美屋
〒063-0811 北海道札幌市西区琴似一条3-1-33
豊水すすきの駅の口コミ
治安・安全
4.0
年に一度くらいの頻度で二条市場裏の飲食店でガス漏れや火事があり、そのたびに消防車が集まってきていました。危険と感じたのはそれくらいのものです。
子育て・病院
2.0
子育てエリアでは無いと思う。学区を気にされる方には向いていない。河川敷はあるがファミリーが集まるような公園などはない。
住宅ローンシミュレーション
住宅ローン設定
物件価格
返済期間
頭金
ボーナス払(年1回)
※
※物件価格の80%以下でお借入れの場合
※50歳以下で一般団信をご選択の場合
※住宅ローン金利優遇割適用後の変動金利(全期間引き下げプラン)
※実際のお借入日の金利により変動します。
※審査の結果によっては保証付金利プランとなる場合があり、この場合は上記とは異なる金利となります。
※別途借入金額の2.20%(税込)の事務手数料が発生します。
ボーナス払 | 35年間返済 | 30年間返済 | 25年間返済 | 20年間返済 | 15年間返済 | 10年間返済 |
|---|---|---|---|---|---|---|
0万円 | -円/月 | -円/月 | -円/月 | -円/月 | -円/月 | -円/月 |
5万円 | -円/月 | -円/月 | -円/月 | -円/月 | -円/月 | -円/月 |
10万円 | -円/月 | -円/月 | -円/月 | -円/月 | -円/月 | -円/月 |
15万円 | -円/月 | -円/月 | -円/月 | -円/月 | -円/月 | -円/月 |
20万円 | -円/月 | -円/月 | -円/月 | -円/月 | -円/月 | -円/月 |
25万円 | -円/月 | -円/月 | -円/月 | -円/月 | -円/月 | -円/月 |
30万円 | -円/月 | -円/月 | -円/月 | -円/月 | -円/月 | -円/月 |
ボーナス払 | 35年間返済 | 30年間返済 | 25年間返済 | 20年間返済 | 15年間返済 | 10年間返済 |
|---|---|---|---|---|---|---|
0万円 | -円/月 | -円/月 | -円/月 | -円/月 | -円/月 | -円/月 |
5万円 | -円/月 | -円/月 | -円/月 | -円/月 | -円/月 | -円/月 |
10万円 | -円/月 | -円/月 | -円/月 | -円/月 | -円/月 | -円/月 |
15万円 | -円/月 | -円/月 | -円/月 | -円/月 | -円/月 | -円/月 |
20万円 | -円/月 | -円/月 | -円/月 | -円/月 | -円/月 | -円/月 |
25万円 | -円/月 | -円/月 | -円/月 | -円/月 | -円/月 | -円/月 |
30万円 | -円/月 | -円/月 | -円/月 | -円/月 | -円/月 | -円/月 |
- ・金利は、今後35年間変動しない仮定のもと元利均等返済方式で計算しております。
- ・実際の金利は、各金融機関のホームページをご参照ください。
- ・ローン契約の際には、手数料や印紙税などの諸費用が別途かかります。
- ・ボーナス支払総額が総支払額の50%を超えている場合、上記の表では「ローン不可」となります。
- ・シミュレーションを利用し、それが原因で利用者が受けたいかなる損害についても当社は一切責任を負いません。あらかじめご了承ください。




















