中古売マンション岩手県盛岡市東山1丁目の中古売マンションの詳細情報
外観・室内・設備(3枚)
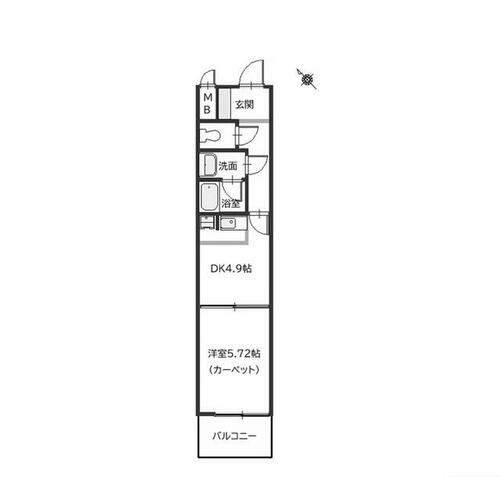
物件概要
| 物件名 | 岩手県盛岡市東山1丁目の中古売マンション | ||||
|---|---|---|---|---|---|
| 所在地 | 岩手県盛岡市東山1丁目 | ||||
| 交通 |
【バス】東山一丁目 バス停下車 徒歩6分 | ||||
| 建物構造 | RC | 総戸数 | 95戸 | ||
| 主要採光面 | 南西 | 修繕積立金 | 5,720円 | ||
| バルコニー面積 | 3.90㎡ | 土地権利 | 所有権 | ||
| 入居時期 | 即時 | 現況 | 空 | ||
| 管理 | 管理員/管理人日勤 管理形態/全部委託 管理組合/あり | 駐車場 | 近有 5,000円/月 | ||
| 都市計画 | - | 用途地域 | 2種中高 | ||
| 建ぺい率 | - | 容積率 | - | ||
| リフォーム | 備考に記載 | リノベーション | - | ||
| 取引態様 | 売主 | 施工会社名 | - | ||
| 建築確認番号 | - | ||||
| その他費用 | - | ||||
| 備考 | ・現状現況渡し・近隣月極駐車場(月額5,000円)空有(要確認)、マンションの駐車場(月額4500円~7000円)は満車です。・駐輪場使用料:無料(ステッカー有り、大型バイクは不可)・立地適正化計画【一般居住区域】居住誘導区域外・市街地景観地域、屋外広告物規制区域(第2種市街地景観区域)・宅地造成等工事規制区域・建築基準法22条屋根不燃区域・管理形態/管理員の勤務形態:全部委託/日勤(協栄テックス株式会社)・管理組合:あり・ユニバース中野店徒歩6分でお買い物が便利な立地です♪給湯器・1口コンロ・エアコン・暖房洗浄便座新品です♪・駐輪場:有(無料)・仲介手数料:不要・リフォーム実施:2026年3月その他(ガス給湯器、ガスコンロ(1口)交換) | ||||
情報公開日:2026/03/24 次回更新予定日:情報更新日より14日以内
取り扱い不動産会社
- 住所
- 岩手県盛岡市内丸6-5
- 電話番号
- 019-652-2839
- 営業時間
- 09:00~17:30(土曜日及び2/23・3/20の祝日は15時迄営業)
- 定休日
- 日曜日・祝日・GW休暇・夏季休暇・年末年始
- 免許番号
- 岩手県知事免許(7)第1875号
- 所属団体
- (一社)岩手県宅地建物取引業協会、東北地区不動産公正取引協議会
掲載期限まであと6日
盛岡市の口コミ
お買い物・飲食
3.0
上盛岡の駅前はあまり何もありませんが、南方面に少し離れた大通り商店街はお店が揃っていてお買い物が便利です。レストランやカフェもそこそこあるので買い物途中に寄ることもできます。人が多すぎなくて歩きやすいから疲れません。
治安・安全
2.0
学生が多いので、休み期間中とか金土日の夜は道路がうるさいです。道路は明るいので問題ないかと思います。
住宅ローンシミュレーション
住宅ローン設定
物件価格
返済期間
頭金
ボーナス払(年1回)
※
※物件価格の80%以下でお借入れの場合
※50歳以下で一般団信をご選択の場合
※住宅ローン金利優遇割適用後の変動金利(全期間引き下げプラン)
※実際のお借入日の金利により変動します。
※審査の結果によっては保証付金利プランとなる場合があり、この場合は上記とは異なる金利となります。
※別途借入金額の2.20%(税込)の事務手数料が発生します。
ボーナス払 | 35年間返済 | 30年間返済 | 25年間返済 | 20年間返済 | 15年間返済 | 10年間返済 |
|---|---|---|---|---|---|---|
0万円 | -円/月 | -円/月 | -円/月 | -円/月 | -円/月 | -円/月 |
5万円 | -円/月 | -円/月 | -円/月 | -円/月 | -円/月 | -円/月 |
10万円 | -円/月 | -円/月 | -円/月 | -円/月 | -円/月 | -円/月 |
15万円 | -円/月 | -円/月 | -円/月 | -円/月 | -円/月 | -円/月 |
20万円 | -円/月 | -円/月 | -円/月 | -円/月 | -円/月 | -円/月 |
25万円 | -円/月 | -円/月 | -円/月 | -円/月 | -円/月 | -円/月 |
30万円 | -円/月 | -円/月 | -円/月 | -円/月 | -円/月 | -円/月 |
ボーナス払 | 35年間返済 | 30年間返済 | 25年間返済 | 20年間返済 | 15年間返済 | 10年間返済 |
|---|---|---|---|---|---|---|
0万円 | -円/月 | -円/月 | -円/月 | -円/月 | -円/月 | -円/月 |
5万円 | -円/月 | -円/月 | -円/月 | -円/月 | -円/月 | -円/月 |
10万円 | -円/月 | -円/月 | -円/月 | -円/月 | -円/月 | -円/月 |
15万円 | -円/月 | -円/月 | -円/月 | -円/月 | -円/月 | -円/月 |
20万円 | -円/月 | -円/月 | -円/月 | -円/月 | -円/月 | -円/月 |
25万円 | -円/月 | -円/月 | -円/月 | -円/月 | -円/月 | -円/月 |
30万円 | -円/月 | -円/月 | -円/月 | -円/月 | -円/月 | -円/月 |
- ・金利は、今後35年間変動しない仮定のもと元利均等返済方式で計算しております。
- ・実際の金利は、各金融機関のホームページをご参照ください。
- ・ローン契約の際には、手数料や印紙税などの諸費用が別途かかります。
- ・ボーナス支払総額が総支払額の50%を超えている場合、上記の表では「ローン不可」となります。
- ・シミュレーションを利用し、それが原因で利用者が受けたいかなる損害についても当社は一切責任を負いません。あらかじめご了承ください。
















