マンションガーデンテラス白根台 4号棟の詳細情報
2280万円
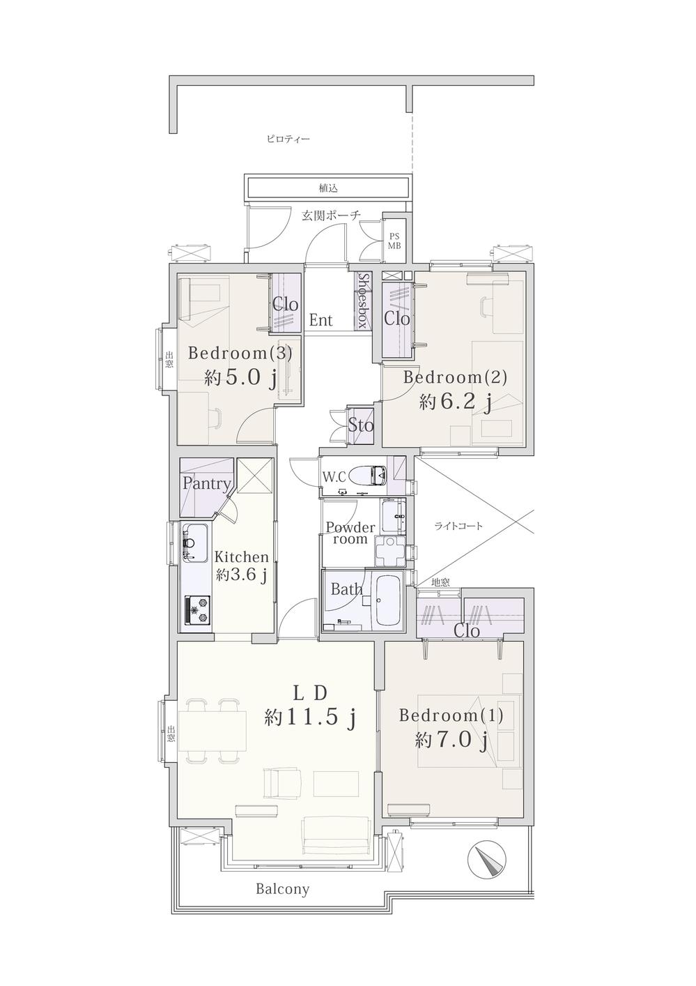
月々のローン返済額を試算《新規リノベーション実施済》新耐震基準!2面採光!パントリー付!
物件概要
| 物件名 | ガーデンテラス白根台 4号棟 | ||||
|---|---|---|---|---|---|
| 所在地 | 神奈川県横浜市旭区白根2 | ||||
| 交通 |
相鉄本線「鶴ケ峰」歩20分 相鉄本線「西谷」歩23分 相鉄本線「西谷」バス8分福寿荘前歩2分 | ||||
| 建物構造 | RC6階建 | 最多価格帯 | - | ||
| 販売戸数/総戸数 | 1戸/243戸 | 主要採光面 | 南西 | ||
| 修繕積立金 | 1万3500円/月 | 修繕積立基金 | - | ||
| その他面積 | バルコニー面積:9.01㎡ | 土地権利 | 所有権 | ||
| 入居時期 | 相談 | 管理 | 9000円/月(一部委託(通勤)) | ||
| 駐車場 | 敷地内(5500円~7000円/月) | 用途地域 | 1種低層 | ||
| リフォーム |
2025年9月完了 水回り設備交換:キッチン・浴室・トイレ 内装リフォーム:壁・床・全室 ※年月は一番古いリフォーム箇所を表します | 取引態様 | 売主 | ||
| 施工会社名 | - | ||||
| その他費用 | 取引にかかる費用:売主物件につき、仲介手数料無料です! | ||||
| 販売スケジュール | - | ||||
| イベント情報 |
現地見学会(事前に必ずお問い合わせください) 日程/公開中 時間/10:00~17:00 ■ご予約方法 お電話:0800-814-6491 インターネットからのお申込みはオレンジ色のボタン【資料請求】からご連絡くださいませ。 ■花菱不動産の強み ①上質な空間デザインにこだわったリノベーション ・生活動線を考慮した間取り ・機能的な設備 ・毎日を快適に彩る意匠性 そのどれをとっても欠くことなく調和のとれた心地よい空間を、当社設計士が丁寧な仕事で創り上げています。 ②高品質でありながら、高いコストパフォーマンス 空間を構成するあらゆる要素と真摯に向き合い、 様々な条件の中で可能な限り高品質なものを選んでいます。 ③最新の住宅ローン情報に精通した、プロフェッショナル集団 当社では多数の金融機関と取引をしているため、常に最新情報をご提供できます。 お客様のライフプランに合わせたベストな住宅ローン選びをお手伝いします。 ご不安なことは、どんなことでもご相談ください。 ■ご検討のお客様へ 私たちが大切にしていること。 それは常にお客さまの悩みやニーズを共有しともに課題解決することで、安心とワクワクの両方を実現することです。 当社が情熱を持って創り上げた、オリジナリティあるリノベーション住宅をぜひ一度ご覧ください。 ■Instagram更新中 花菱不動産のアカウントでは、物件の最新情報やお部屋探しやリフォームを検討中の方へ嬉しい情報を発信しております。 新規公開物件や価格改定された物件など、いち早くお届けしています。 ルームツアーもしておりますので、ぜひチェックしてみてください! | ||||
| その他制限事項 | - | ||||
| 備考 | 担当者:阿部ほの花 | ||||
| 取引条件有効期限 | - | ||||
情報公開日:2025/12/02 次回更新予定日:情報提供より8日以内
この物件の地図・周辺環境
このアイコンは物件のおおよその位置を表しており、実際の場所と異なる場合がございます。詳しくは不動産会社に直接ご確認ください。
※地図上に表示される物件の位置は付近住所に所在することを表すものであり、実際の物件所在地とは異なる場合がございます。
※地図の更新タイミングの関係で、物件情報が実際のものとは異なる場合や最新情報に更新されていない場合がございます。
※以下の南西諸島及び離島においては、表示される物件の位置が実際のものとは数百メートル程度ずれる場合がございます。
東京都:硫黄島・青ヶ島、沖縄県: 北大東島・南大東島・多良間島・水納島・与那国島・宮古諸島・石垣島・竹富島
取り扱い不動産会社
- 住所
- 東京都渋谷区渋谷3-1-6 TMSビル6階
- 電話番号
- 03-6809-0814
- 営業時間
- 営業時間:10:00~19:00 / 定休日:水曜日
- 免許番号
- 国土交通大臣(1)第009840号
- 会社概要
- <売主>
国土交通大臣(1)第009840号
(公社)全日本不動産協会東京都本部会員 (公社)首都圏不動産公正取引協議会加盟
花菱不動産(株)
〒150-0002 東京都渋谷区渋谷3-1-6 TMSビル6階
鶴ヶ峰駅の口コミ
治安・安全
3.0
ヤンキー家族が多いため、荒れている学校が多いように感じます。子供は私立に入れた方が、良いのではないかと感じます。
お買い物・飲食
4.0
駅前はコンビニや飲食店が多いうえ、食べ物にも困らず、西友も24時間やっているため何かあっても割と買い物はしやすい。また、駅の反対側にはココロットもあるため、買い物する不便さはあまり感じられない
神奈川県近隣の都道府県から中古マンションを探す
住宅ローンシミュレーション
住宅ローン設定
物件価格
返済期間
頭金
ボーナス払(年1回)
※
※物件価格の80%以下でお借入れの場合
※50歳以下で一般団信をご選択の場合
※住宅ローン金利優遇割適用後の変動金利(全期間引き下げプラン)
※実際のお借入日の金利により変動します。
※審査の結果によっては保証付金利プランとなる場合があり、この場合は上記とは異なる金利となります。
※別途借入金額の2.20%(税込)の事務手数料が発生します。
ボーナス払 | 35年間返済 | 30年間返済 | 25年間返済 | 20年間返済 | 15年間返済 | 10年間返済 |
|---|---|---|---|---|---|---|
0万円 | -円/月 | -円/月 | -円/月 | -円/月 | -円/月 | -円/月 |
5万円 | -円/月 | -円/月 | -円/月 | -円/月 | -円/月 | -円/月 |
10万円 | -円/月 | -円/月 | -円/月 | -円/月 | -円/月 | -円/月 |
15万円 | -円/月 | -円/月 | -円/月 | -円/月 | -円/月 | -円/月 |
20万円 | -円/月 | -円/月 | -円/月 | -円/月 | -円/月 | -円/月 |
25万円 | -円/月 | -円/月 | -円/月 | -円/月 | -円/月 | -円/月 |
30万円 | -円/月 | -円/月 | -円/月 | -円/月 | -円/月 | -円/月 |
ボーナス払 | 35年間返済 | 30年間返済 | 25年間返済 | 20年間返済 | 15年間返済 | 10年間返済 |
|---|---|---|---|---|---|---|
0万円 | -円/月 | -円/月 | -円/月 | -円/月 | -円/月 | -円/月 |
5万円 | -円/月 | -円/月 | -円/月 | -円/月 | -円/月 | -円/月 |
10万円 | -円/月 | -円/月 | -円/月 | -円/月 | -円/月 | -円/月 |
15万円 | -円/月 | -円/月 | -円/月 | -円/月 | -円/月 | -円/月 |
20万円 | -円/月 | -円/月 | -円/月 | -円/月 | -円/月 | -円/月 |
25万円 | -円/月 | -円/月 | -円/月 | -円/月 | -円/月 | -円/月 |
30万円 | -円/月 | -円/月 | -円/月 | -円/月 | -円/月 | -円/月 |
- ・金利は、今後35年間変動しない仮定のもと元利均等返済方式で計算しております。
- ・実際の金利は、各金融機関のホームページをご参照ください。
- ・ローン契約の際には、手数料や印紙税などの諸費用が別途かかります。
- ・ボーナス支払総額が総支払額の50%を超えている場合、上記の表では「ローン不可」となります。
- ・シミュレーションを利用し、それが原因で利用者が受けたいかなる損害についても当社は一切責任を負いません。あらかじめご了承ください。




















