NEW中古売マンションサーパス熊本駅前レジデンス 熊本県熊本市西区春日2丁目の中古売マンションの詳細情報
掲載期限まであと13日
物件概要
| 物件名 | サーパス熊本駅前レジデンス 熊本県熊本市西区春日2丁目の中古売マンション | ||||
|---|---|---|---|---|---|
| 所在地 | 熊本県熊本市西区春日2丁目 | ||||
| 交通 |
熊本市健軍線 「熊本駅前」駅 徒歩2分 熊本市健軍線 「二本木口」駅 徒歩5分 | ||||
| 建物構造 | RC | 総戸数 | 70戸 | ||
| 主要採光面 | - | 修繕積立金 | 6,800円 | ||
| バルコニー面積 | 17.69㎡ | 土地権利 | 所有権 | ||
| 入居時期 | 相談 | 現況 | 空 | ||
| 管理 | 管理員/管理人常駐 管理形態/全部委託 管理組合/あり | 駐車場 | 有 7,500円/月 | ||
| 都市計画 | - | 用途地域 | 商業地域 | ||
| 建ぺい率 | - | 容積率 | - | ||
| リフォーム | - | リノベーション | - | ||
| 取引態様 | 専属専任媒介 | 施工会社名 | 備考に記載 | ||
| 建築確認番号 | - | ||||
| その他費用 | インターネット/月:2,835円 | ||||
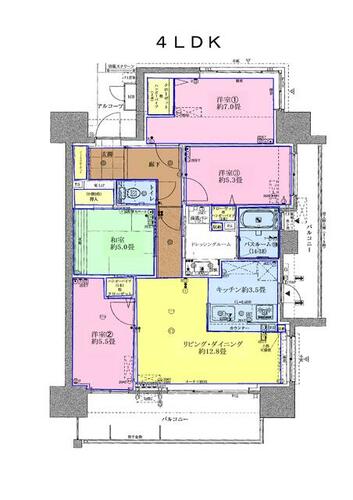
| 備考 | 約築9年ですが、奇麗に使用されており、満足のいく室内!!更に、ハウスクリーニングを予定しております。現況渡しとなりますので、現地内覧のうえご購入をお願い致します。内覧希望の方は下記まで、事前予約が必要となりますのでご了承ください。ご案内は弊社アーキエステート株式会社までTEL:096-243-0222までお待ちしております。・施工会社:株式会社穴吹工務店・維持費等:インターネット2,835円/月・SOS24486円/月・エスコートS378円/月・管理形態/管理員の勤務形態:全部委託/常駐(株式会社穴吹コミュニティ)・ペット条件:管理規約により定めあり・管理組合:あり・熊本駅白川口(東口)より本物件まで徒歩約3分!!アクセスが良く、日用品の買い出しが楽チン。ファミリーに人気のタイプ4LDKです。・バイク置場:有(500円/月)・駐輪場:有(200円/月)・仲介手数料:売買代金の3%+60,000円 | ||||
情報公開日:2025/12/02 次回更新予定日:情報更新日より14日以内
取り扱い不動産会社
- 住所
- 熊本県熊本市東区西原2丁目35-33
- 電話番号
- 096-243-0222
- 営業時間
- 09:00~18:00
- 定休日
- 日曜日・祝日・年末年始、GW、夏季休暇
- 免許番号
- 熊本県知事免許(1)第5728号
- 所属団体
- (公社)全日本不動産協会、(一社)九州不動産公正取引協議会
掲載期限まであと13日
住宅ローンシミュレーション
住宅ローン設定
物件価格
返済期間
頭金
ボーナス払(年1回)
※
※物件価格の80%以下でお借入れの場合
※50歳以下で一般団信をご選択の場合
※住宅ローン金利優遇割適用後の変動金利(全期間引き下げプラン)
※実際のお借入日の金利により変動します。
※審査の結果によっては保証付金利プランとなる場合があり、この場合は上記とは異なる金利となります。
※別途借入金額の2.20%(税込)の事務手数料が発生します。
ボーナス払 | 35年間返済 | 30年間返済 | 25年間返済 | 20年間返済 | 15年間返済 | 10年間返済 |
|---|---|---|---|---|---|---|
0万円 | -円/月 | -円/月 | -円/月 | -円/月 | -円/月 | -円/月 |
5万円 | -円/月 | -円/月 | -円/月 | -円/月 | -円/月 | -円/月 |
10万円 | -円/月 | -円/月 | -円/月 | -円/月 | -円/月 | -円/月 |
15万円 | -円/月 | -円/月 | -円/月 | -円/月 | -円/月 | -円/月 |
20万円 | -円/月 | -円/月 | -円/月 | -円/月 | -円/月 | -円/月 |
25万円 | -円/月 | -円/月 | -円/月 | -円/月 | -円/月 | -円/月 |
30万円 | -円/月 | -円/月 | -円/月 | -円/月 | -円/月 | -円/月 |
ボーナス払 | 35年間返済 | 30年間返済 | 25年間返済 | 20年間返済 | 15年間返済 | 10年間返済 |
|---|---|---|---|---|---|---|
0万円 | -円/月 | -円/月 | -円/月 | -円/月 | -円/月 | -円/月 |
5万円 | -円/月 | -円/月 | -円/月 | -円/月 | -円/月 | -円/月 |
10万円 | -円/月 | -円/月 | -円/月 | -円/月 | -円/月 | -円/月 |
15万円 | -円/月 | -円/月 | -円/月 | -円/月 | -円/月 | -円/月 |
20万円 | -円/月 | -円/月 | -円/月 | -円/月 | -円/月 | -円/月 |
25万円 | -円/月 | -円/月 | -円/月 | -円/月 | -円/月 | -円/月 |
30万円 | -円/月 | -円/月 | -円/月 | -円/月 | -円/月 | -円/月 |
- ・金利は、今後35年間変動しない仮定のもと元利均等返済方式で計算しております。
- ・実際の金利は、各金融機関のホームページをご参照ください。
- ・ローン契約の際には、手数料や印紙税などの諸費用が別途かかります。
- ・ボーナス支払総額が総支払額の50%を超えている場合、上記の表では「ローン不可」となります。
- ・シミュレーションを利用し、それが原因で利用者が受けたいかなる損害についても当社は一切責任を負いません。あらかじめご了承ください。











