中古マンションラ・ステラ春日部 10階/10階 北西向きの詳細情報
掲載期限まであと13日
外観・室内・設備(12枚)
その他(14枚)
物件概要
| 物件名 | ラ・ステラ春日部 10階/10階 北西向き | ||||
|---|---|---|---|---|---|
| 所在地 | 埼玉県春日部市中央1丁目 | ||||
| 交通 |
東武伊勢崎線 春日部駅 徒歩7分 東武野田線 春日部駅 徒歩7分 | ||||
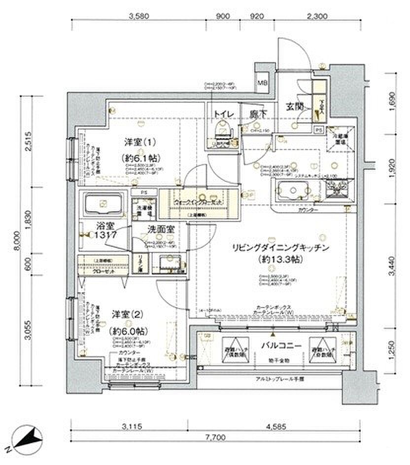
| 建物構造 | RC(鉄筋コンクリート) | 間取り詳細(帖) | 洋室 6.1帖洋室 6帖 | ||
| 総戸数 | 27戸 | 事務所戸数 | - | ||
| 主要採光面 | 北西 | 修繕積立金 | 5,600円 | ||
| 修繕積立基金 | - | バルコニー面積 | 5.56m2 | ||
| 土地権利 | 所有権 | 引渡し | 即時 | ||
| 現況 | 空家 | 管理 | 管理員:日勤、管理形態:全部委託 | ||
| 駐車場 | 空有 13,000円 | 地目 | - | ||
| 地勢 | - | 都市計画 | - | ||
| 用途地域 | 商業地域 | 建ぺい率 | - | ||
| 容積率 | - | リフォーム | - | ||
| リノベーション | - | 取引態様 | 一般媒介 | ||
| 施工会社名 | - | ||||
| その他費用 | - | ||||
| オープンルーム情報 | - | ||||
| 備考 | FP相談キャッシュフローの作成無料でできます 空き状況は管理会社へ要確認(駐車場・バイク置き場・駐輪場) | ||||
情報公開日:2025/06/08 有効期限:2025/11/21
設備・条件
| 位置 | 最上階、2階以上 | ||||
|---|---|---|---|---|---|
| キッチン | カウンターキッチン、コンロ三口以上、コンロ二口以上、ガスコンロ設置済、ガスコンロ、コンロ三口、システムキッチン | ||||
| セキュリティ | 防犯カメラ、宅配ボックス、オートロック、TVモニタ付インターホン | ||||
| 設備・サービス | フローリング、下水、公営水道、室内洗濯機置場、温水洗浄便座、専用バス、バス・トイレ別、シャワー、洗面所独立、バルコニー、エアコン、ウォークインクローゼット、都市ガス、浴室乾燥機、専用トイレ、追焚機能、エレベーター | ||||
| その他 | 24時間換気システム、オートバス、ペット可、ペット相談、所有権、鉄筋系、CS対応、ペット相談可、即入居可、全居室収納、シューズボックス、駐車場あり、駐輪場あり、セキュリティ会社加入済、全室フローリング、CATV、BS対応、クローゼット、バイク置き場あり | ||||
| 周辺環境 | 複数路線、小学校 800m以内 | ||||
この物件の地図・周辺環境
このアイコンは物件のおおよその位置を表しており、実際の場所と異なる場合がございます。詳しくは不動産会社に直接ご確認ください。
取り扱い不動産会社
- 住所
- 東京都西東京市田無町5丁目1-1 田無北口ビル
- 電話番号
- 042-497-5777
- 営業時間
- 09:00~18:30
- 免許番号
- 東京都知事(01)第107558号
- 所属団体
- (公社)首都圏不動産公正取引協議会、(公社)全日本不動産協会東京都本部
ME不動産西東京(株)
電話で問い合わせる(無料)お急ぎの方はこちらから!
物件お問い合わせ専用ダイヤル
営業時間:09:00~18:30 携帯・PHS可
音声案内に従って以下の数字を入力
お問い合わせ番号:47416-1053
LIFULL HOME'S物件番号:9502760
※お客様の電話番号は不動産会社に通知されません。
※光IP電話、及びIP電話からはご利用になれません。
※不動産会社の方からの上記電話番号によるお問合せはお断りしております。
掲載期限まであと13日
春日部駅の口コミ
お買い物・飲食
2.0
飲食店はある程度あるため、食事には困らない。ただ中華料理屋ばかりのため、飽きる。居酒屋や飲食店は西口に多い。
お買い物・飲食
2.0
再開発でどうなっているかわからないが、春日部駅東口近辺が全体的にさびれていた。開かずの踏切によって東西が分断されており、基本的にスーパーかコンビニでなんとかしていた。
埼玉県近隣の都道府県から中古マンションを探す
住宅ローンシミュレーション
住宅ローン設定
物件価格
返済期間
頭金
ボーナス払(年1回)
※
※物件価格の80%以下でお借入れの場合
※50歳以下で一般団信をご選択の場合
※住宅ローン金利優遇割適用後の変動金利(全期間引き下げプラン)
※実際のお借入日の金利により変動します。
※審査の結果によっては保証付金利プランとなる場合があり、この場合は上記とは異なる金利となります。
※別途借入金額の2.20%(税込)の事務手数料が発生します。
ボーナス払 | 35年間返済 | 30年間返済 | 25年間返済 | 20年間返済 | 15年間返済 | 10年間返済 |
|---|---|---|---|---|---|---|
0万円 | -円/月 | -円/月 | -円/月 | -円/月 | -円/月 | -円/月 |
5万円 | -円/月 | -円/月 | -円/月 | -円/月 | -円/月 | -円/月 |
10万円 | -円/月 | -円/月 | -円/月 | -円/月 | -円/月 | -円/月 |
15万円 | -円/月 | -円/月 | -円/月 | -円/月 | -円/月 | -円/月 |
20万円 | -円/月 | -円/月 | -円/月 | -円/月 | -円/月 | -円/月 |
25万円 | -円/月 | -円/月 | -円/月 | -円/月 | -円/月 | -円/月 |
30万円 | -円/月 | -円/月 | -円/月 | -円/月 | -円/月 | -円/月 |
ボーナス払 | 35年間返済 | 30年間返済 | 25年間返済 | 20年間返済 | 15年間返済 | 10年間返済 |
|---|---|---|---|---|---|---|
0万円 | -円/月 | -円/月 | -円/月 | -円/月 | -円/月 | -円/月 |
5万円 | -円/月 | -円/月 | -円/月 | -円/月 | -円/月 | -円/月 |
10万円 | -円/月 | -円/月 | -円/月 | -円/月 | -円/月 | -円/月 |
15万円 | -円/月 | -円/月 | -円/月 | -円/月 | -円/月 | -円/月 |
20万円 | -円/月 | -円/月 | -円/月 | -円/月 | -円/月 | -円/月 |
25万円 | -円/月 | -円/月 | -円/月 | -円/月 | -円/月 | -円/月 |
30万円 | -円/月 | -円/月 | -円/月 | -円/月 | -円/月 | -円/月 |
- ・金利は、今後35年間変動しない仮定のもと元利均等返済方式で計算しております。
- ・実際の金利は、各金融機関のホームページをご参照ください。
- ・ローン契約の際には、手数料や印紙税などの諸費用が別途かかります。
- ・ボーナス支払総額が総支払額の50%を超えている場合、上記の表では「ローン不可」となります。
- ・シミュレーションを利用し、それが原因で利用者が受けたいかなる損害についても当社は一切責任を負いません。あらかじめご了承ください。






























