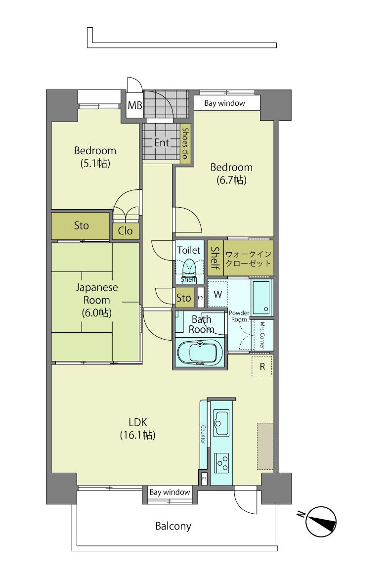
マンションサーパス不動前の詳細情報
1880万円
月々のローン返済額を試算【サーパス不動前9階(上階なし)3LDK 74.15㎡ リフォーム住宅】
物件概要
| 物件名 | サーパス不動前 | ||||
|---|---|---|---|---|---|
| 所在地 | 栃木県宇都宮市西原町 | ||||
| 交通 |
JR宇都宮線「宇都宮」歩29分 | ||||
| 建物構造 | SRC10階建 | 最多価格帯 | - | ||
| 販売戸数/総戸数 | 1戸/100戸 | 主要採光面 | 西 | ||
| 修繕積立金 | 1万5600円/月 | 修繕積立基金 | - | ||
| その他面積 | バルコニー面積:10.7㎡ | 土地権利 | 所有権 | ||
| 入居時期 | 即引渡可 | 管理 | 7100円/月(委託(通勤)) | ||
| 駐車場 | 空無 | 用途地域 | 2種住居 | ||
| リフォーム |
2025年10月完了 水回り設備交換:キッチン・トイレ 内装リフォーム:壁 その他:洗面台 ※年月は一番古いリフォーム箇所を表します | 取引態様 | 仲介 | ||
| 施工会社名 | (株)穴吹工務店 | ||||
| その他費用 | 近隣月極駐車場:6000円/月 | ||||
| 販売スケジュール | - | ||||
| イベント情報 | - | ||||
| その他制限事項 | - | ||||
| 備考 | 担当者:五味渕 | ||||
| 取引条件有効期限 | - | ||||
情報公開日:2025/12/07 次回更新予定日:情報提供より8日以内
この物件の地図・周辺環境
このアイコンは物件のおおよその位置を表しており、実際の場所と異なる場合がございます。詳しくは不動産会社に直接ご確認ください。
※地図上に表示される物件の位置は付近住所に所在することを表すものであり、実際の物件所在地とは異なる場合がございます。
※地図の更新タイミングの関係で、物件情報が実際のものとは異なる場合や最新情報に更新されていない場合がございます。
※以下の南西諸島及び離島においては、表示される物件の位置が実際のものとは数百メートル程度ずれる場合がございます。
東京都:硫黄島・青ヶ島、沖縄県: 北大東島・南大東島・多良間島・水納島・与那国島・宮古諸島・石垣島・竹富島
取り扱い不動産会社
- 住所
- 栃木県宇都宮市一ノ沢町256-7
- 電話番号
- 028-600-4455
- 営業時間
- 営業時間:10:00~18:30 / 定休日:火曜日、水曜日、第一日曜日
- 免許番号
- 国土交通大臣(7)第005168号
- 会社概要
- <仲介>
国土交通大臣(7)第005168号
(一社)全国住宅産業協会会員 (公社)首都圏不動産公正取引協議会加盟 / (公社)栃木県宅地建物取引業協会会員 (公社)首都圏不動産公正取引協議会加盟
トヨタウッドユーホーム(株)不動産部
〒320-0049 栃木県宇都宮市一ノ沢町256-7
宇都宮駅の口コミ
治安・安全
2.0
栃木・宇都宮全体の話かもしれないが、とにかく運転が荒い。たとえば、車が脇道から大通りに出るとき、大通りに少し出たところまで走ってから一旦停止する。そのため自転車で走行中、一日に二回別の車にはねられそうになったこともあった。ちなみにいずれの運転手も全く悪びれない顔をしており、降りて謝るなどは一切してこなかったのはもちろん、車内で頭を下げるなどもなかった。 他県から来られた方などは、交通法規を守っていればルール通り止まってくれるなどと悠長なことを考えず、自転車で大通りを走行中に脇道を通り過ぎる際には後方に気を付けつつ自転車側が徐行または一旦停止することを強くお勧めする。
自然環境
4.0
公園の周辺に銀杏が多いので、季節になると近くはちょっとにおいます。まあ、自然が多いことの裏返しだし、イチョウの葉のじゅうたんはとてもきれいなので仕方ないですが。
栃木県近隣の都道府県から中古マンションを探す
住宅ローンシミュレーション
住宅ローン設定
物件価格
返済期間
頭金
ボーナス払(年1回)
※
※物件価格の80%以下でお借入れの場合
※50歳以下で一般団信をご選択の場合
※住宅ローン金利優遇割適用後の変動金利(全期間引き下げプラン)
※実際のお借入日の金利により変動します。
※審査の結果によっては保証付金利プランとなる場合があり、この場合は上記とは異なる金利となります。
※別途借入金額の2.20%(税込)の事務手数料が発生します。
ボーナス払 | 35年間返済 | 30年間返済 | 25年間返済 | 20年間返済 | 15年間返済 | 10年間返済 |
|---|---|---|---|---|---|---|
0万円 | -円/月 | -円/月 | -円/月 | -円/月 | -円/月 | -円/月 |
5万円 | -円/月 | -円/月 | -円/月 | -円/月 | -円/月 | -円/月 |
10万円 | -円/月 | -円/月 | -円/月 | -円/月 | -円/月 | -円/月 |
15万円 | -円/月 | -円/月 | -円/月 | -円/月 | -円/月 | -円/月 |
20万円 | -円/月 | -円/月 | -円/月 | -円/月 | -円/月 | -円/月 |
25万円 | -円/月 | -円/月 | -円/月 | -円/月 | -円/月 | -円/月 |
30万円 | -円/月 | -円/月 | -円/月 | -円/月 | -円/月 | -円/月 |
ボーナス払 | 35年間返済 | 30年間返済 | 25年間返済 | 20年間返済 | 15年間返済 | 10年間返済 |
|---|---|---|---|---|---|---|
0万円 | -円/月 | -円/月 | -円/月 | -円/月 | -円/月 | -円/月 |
5万円 | -円/月 | -円/月 | -円/月 | -円/月 | -円/月 | -円/月 |
10万円 | -円/月 | -円/月 | -円/月 | -円/月 | -円/月 | -円/月 |
15万円 | -円/月 | -円/月 | -円/月 | -円/月 | -円/月 | -円/月 |
20万円 | -円/月 | -円/月 | -円/月 | -円/月 | -円/月 | -円/月 |
25万円 | -円/月 | -円/月 | -円/月 | -円/月 | -円/月 | -円/月 |
30万円 | -円/月 | -円/月 | -円/月 | -円/月 | -円/月 | -円/月 |
- ・金利は、今後35年間変動しない仮定のもと元利均等返済方式で計算しております。
- ・実際の金利は、各金融機関のホームページをご参照ください。
- ・ローン契約の際には、手数料や印紙税などの諸費用が別途かかります。
- ・ボーナス支払総額が総支払額の50%を超えている場合、上記の表では「ローン不可」となります。
- ・シミュレーションを利用し、それが原因で利用者が受けたいかなる損害についても当社は一切責任を負いません。あらかじめご了承ください。
















