携帯・スマートフォンにこのマンション情報を送る
サンコーレ甲運の販売物件一覧(3件)385~1,500万円
間取り図 | 階数 | 間取り 専有面積 | 販売価格 | 築年月 | お気に入り 詳細 |
|---|---|---|---|---|---|
| 7階 | 1SDK 46.24m² | 900万円 | 31年5ヶ月 | 詳細を見る |
情報提供元
| |||||
| - | 3DK 52.12m²(登記) | 1500万円 | 31年5ヶ月 | 詳細を見る |
情報提供元
| |||||
| - | ワンルーム 22.92m²(登記) | 385万円 | 31年5ヶ月 | 詳細を見る |
情報提供元
| |||||
サンコーレ甲運の賃貸物件一覧(1件)7.5万円
間取り図 | 階数 | 間取り 専有面積 | 賃料 管理費等 | 敷金 礼金 | 特徴 | お気に入り 詳細 |
|---|---|---|---|---|---|---|
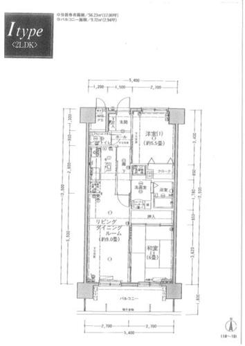
| 8階 | 2LDK 56.23㎡ | 7.5万円 - |
| バス・トイレ別 駐車場あり オートロック | 詳細を見る |
情報提供元
| ||||||
サンコーレ甲運への居住をご検討中の方へ
ニフティ不動産が提携する15の不動産サイトにサンコーレ甲運の新しい物件情報が掲載されたら、メールでお知らせを受け取ることができます。
サンコーレ甲運の基本情報
| 総戸数 | 215戸 | 階建 | 10階建 | ||
|---|---|---|---|---|---|
| 構造 | RC(鉄筋コンクリート) | 主方位 | - | ||
| 土地権利 | 所有権 | 用途地域 | - | ||
| 新築分譲時の売主 | - | 施工会社 | 早野組、長田土木、新興建設 | ||
| 設計会社 | - | 管理会社/方式 | アサヒ総合 / - | ||
| 備考 | - | ||||
- ※上記情報は分譲時のパンフレットに掲載されていた情報です。社名変更等により、現況(販売中物件)と異なる場合があります。
物件情報の精度向上にご協力をお願いいたします。物件情報に誤りがある場合は こちら よりご連絡ください。
サンコーレ甲運の口コミ・レビュー
サンコーレ甲運のユーザー評価
3.7点
- 最寄り駅の充実度: 4.2
- 周辺環境: 4.0
- 共有部: 3.5
- 設備: 3.5
- 買い物: 4.3
- 暮らし:2.5
- ※出典:マンションレビュー
2022年9月
No nameさん【その他(マンション好き・マンションに詳しい人等)】
最寄り駅の
充実度
【石和温泉駅に対する口コミ】駅改装で綺麗になった。 お土産も充実している。周辺の家賃は破格ではないでしょう。 2万円台の賃貸もある
買い物・食事
【石和温泉駅に対する口コミ】温泉地とゆうこともあり周りには飲食店が充実している
暮らし・子育て
【石和温泉駅に対する口コミ】オムツ替えのトイレがありまたエレベーターがあり何かと便利
周辺環境
【石和温泉駅に対する口コミ】出張やレジャーの時に便利に利用させていただいている。不良もすくなく治安じたいはかなら良好ではないか
2022年3月
あああさん【その他(マンション好き・マンションに詳しい人等)】
お部屋の
仕様・設備
世帯数が多い割には静か。景色もきれいだし問題ない
買い物・食事
コンビニや銀行、郵便局が近くにあり、買い物には困らない
周辺環境
山梨の主要道路に面しているため治安は良い
最寄り駅の
充実度
駅にも一直線で行ける。観光客も多く利用する駅なので、お土産屋さんがあったり、明るくて環境は良い。
外観・共用部・
セキュリティ
築年数がたってる割には切れに管理されている 子どもの遊ぶスペースはあまりない
暮らし・子育て
子どもの遊ぶスペースがない。病院も近くにあるので不便さは感じない
2021年10月
No nameさん【その他(マンション好き・マンションに詳しい人等)】
最寄り駅の
充実度
【石和温泉駅に対する口コミ】山梨県下最大の温泉「石和(いさわ)温泉」の最寄り駅。駅舎もリニューアルされました。リニューアル時に、北口出口が出来ましたが、温泉街・お土産屋など賑やかなのは圧倒的に南口。 南口出口には多数のお土産屋だけでなく、足湯もあり、また観光案内所ではワインの試飲も楽しむことができます。 温泉街は大小合わせて100件近い温泉旅館があり、中心地「さくら温泉通り」では、各旅館のカラフルな浴衣を着た観光客が夜の温泉街を楽しむ姿が見られます。
2020年6月
イブキさん【居住者・所有者さん(元居住者・元所有者さんを含む)】
周辺環境
駅近で商業施設も充実しており飲食店もかなりある。病院、郵便局、銀行も徒歩圏内にあり生活の便はよい。ライフラインは整っている。
お部屋の
仕様・設備
特にない。経過年数相応であると思うが、窓からの紅葉は素晴らしいものがある。比較的綺麗ではある。
外観・共用部・
セキュリティ
4F住みだが防音には優れていると思う。25年前の建物だが古さはまだあまり感じない。これからのリフォームには期待している。
買い物・食事
上記で書いたとおりである。充実しており。買い物、食事には困らない。大変暮らしやすい環境だと思う。
最寄り駅の
充実度
マンションの組合がしっかりしており衛生面でも気を配っている。セキリティも充実しており安心して住む事が出来る。
2018年11月
No nameさん【その他(マンション好き・マンションに詳しい人等)】
最寄り駅の
充実度
【石和温泉駅に対する口コミ】南口には、イオンがあり、食料品から衣料品、生活用品等揃っている。イオンの中には、その他百円ショップや本屋、美容院、飲食店もあり、充実している。南口には、他にも何軒か飲食店がある。お土産屋もあり、特産物が買える。足湯もあり、賑わっている。駅構内には、ワインの試飲コーナーもあり、観光客がよく訪れている。
※出典:マンションレビュー
サンコーレ甲運と周辺エリアの中古マンション相場
1坪あたりの相場価格は、過去の売り出し物件情報をもとに算出しています。個別の部屋の条件などを考慮していないため、実際の取引価格や坪単価相場とは異なります。あくまでも参考値としてご利用ください。
坪単価の相場
| 2026年02月 | 前年比 | |
|---|---|---|
| サンコーレ甲運 | 57.80 万円/坪 | -3.23 % ( -1.93 万円) |
| 石和温泉駅 | 37.14 万円/坪 | -1.75 % ( -0.66 万円) |
| 甲府市 | 90.47 万円/坪 | + 10.98 % ( + 8.95 万円) |
坪単価の推移
サンコーレ甲運の周辺の家賃相場情報 (石和温泉駅) (甲府市)
マンション
一戸建て
石和温泉駅、1R、条件なしの家賃相場情報
石和温泉駅、1K、条件なしの家賃相場情報
石和温泉駅、1DK、条件なしの家賃相場情報
石和温泉駅、1LDK、条件なしの家賃相場情報
石和温泉駅、2K、条件なしの家賃相場情報
石和温泉駅、2DK、条件なしの家賃相場情報
石和温泉駅、2LDK、条件なしの家賃相場情報
石和温泉駅、3K、条件なしの家賃相場情報
石和温泉駅、3DK、条件なしの家賃相場情報
石和温泉駅、3LDK、条件なしの家賃相場情報
石和温泉駅、4LDK、条件なしの家賃相場情報
- 平均値
- 13.67万円
- 最安値
- 11万円
- 最高値
- 15万円
| 近隣の駅 | 近隣の家賃相場 | |
|---|---|---|
| 石和温泉 | 13.67万円 | |
| 春日居町 | - | |
※このデータは「ニフティ不動産」に掲載されている物件を元に算出したものです。(2026年3月25日現在)
※相場情報はあくまで参考値です。目安として活用ください。
石和温泉駅、5LDK~、条件なしの家賃相場情報
- 平均値
- -万円
- 最安値
- -万円
- 最高値
- -万円
| 近隣の駅 | 近隣の家賃相場 | |
|---|---|---|
| 石和温泉 | - | |
| 春日居町 | - | |
※このデータは「ニフティ不動産」に掲載されている物件を元に算出したものです。(2026年3月25日現在)
※相場情報はあくまで参考値です。目安として活用ください。
石和温泉駅、1R、ペット相談の家賃相場情報
- 平均値
- -万円
- 最安値
- -万円
- 最高値
- -万円
| 近隣の駅 | 近隣の家賃相場 | |
|---|---|---|
| 石和温泉 | - | |
| 春日居町 | - | |
※このデータは「ニフティ不動産」に掲載されている物件を元に算出したものです。(2026年3月25日現在)
※相場情報はあくまで参考値です。目安として活用ください。
石和温泉駅、1K、ペット相談の家賃相場情報
石和温泉駅、1DK、ペット相談の家賃相場情報
石和温泉駅、1LDK、ペット相談の家賃相場情報
- 平均値
- 6.4万円
- 最安値
- 6.4万円
- 最高値
- 6.4万円
| 近隣の駅 | 近隣の家賃相場 | |
|---|---|---|
| 石和温泉 | 6.4万円 | |
| 春日居町 | - | |
※このデータは「ニフティ不動産」に掲載されている物件を元に算出したものです。(2026年3月25日現在)
※相場情報はあくまで参考値です。目安として活用ください。
石和温泉駅、2K、ペット相談の家賃相場情報
- 平均値
- 4.6万円
- 最安値
- 3.9万円
- 最高値
- 5.3万円
| 近隣の駅 | 近隣の家賃相場 | |
|---|---|---|
| 石和温泉 | 4.6万円 | |
| 春日居町 | - | |
※このデータは「ニフティ不動産」に掲載されている物件を元に算出したものです。(2026年3月25日現在)
※相場情報はあくまで参考値です。目安として活用ください。
石和温泉駅、2DK、ペット相談の家賃相場情報
石和温泉駅、2LDK、ペット相談の家賃相場情報
石和温泉駅、3K、ペット相談の家賃相場情報
- 平均値
- -万円
- 最安値
- -万円
- 最高値
- -万円
| 近隣の駅 | 近隣の家賃相場 | |
|---|---|---|
| 石和温泉 | - | |
| 春日居町 | - | |
※このデータは「ニフティ不動産」に掲載されている物件を元に算出したものです。(2026年3月25日現在)
※相場情報はあくまで参考値です。目安として活用ください。
石和温泉駅、3DK、ペット相談の家賃相場情報
石和温泉駅、3LDK、ペット相談の家賃相場情報
石和温泉駅、4LDK、ペット相談の家賃相場情報
- 平均値
- 13.67万円
- 最安値
- 11万円
- 最高値
- 15万円
| 近隣の駅 | 近隣の家賃相場 | |
|---|---|---|
| 石和温泉 | 13.67万円 | |
| 春日居町 | - | |
※このデータは「ニフティ不動産」に掲載されている物件を元に算出したものです。(2026年3月25日現在)
※相場情報はあくまで参考値です。目安として活用ください。
石和温泉駅、5LDK~、ペット相談の家賃相場情報
- 平均値
- -万円
- 最安値
- -万円
- 最高値
- -万円
| 近隣の駅 | 近隣の家賃相場 | |
|---|---|---|
| 石和温泉 | - | |
| 春日居町 | - | |
※このデータは「ニフティ不動産」に掲載されている物件を元に算出したものです。(2026年3月25日現在)
※相場情報はあくまで参考値です。目安として活用ください。
石和温泉駅、1R、デザイナーズの家賃相場情報
- 平均値
- -万円
- 最安値
- -万円
- 最高値
- -万円
| 近隣の駅 | 近隣の家賃相場 | |
|---|---|---|
| 石和温泉 | - | |
| 春日居町 | - | |
※このデータは「ニフティ不動産」に掲載されている物件を元に算出したものです。(2026年3月25日現在)
※相場情報はあくまで参考値です。目安として活用ください。
石和温泉駅、1K、デザイナーズの家賃相場情報
- 平均値
- -万円
- 最安値
- -万円
- 最高値
- -万円
| 近隣の駅 | 近隣の家賃相場 | |
|---|---|---|
| 石和温泉 | - | |
| 春日居町 | - | |
※このデータは「ニフティ不動産」に掲載されている物件を元に算出したものです。(2026年3月25日現在)
※相場情報はあくまで参考値です。目安として活用ください。
石和温泉駅、1DK、デザイナーズの家賃相場情報
- 平均値
- -万円
- 最安値
- -万円
- 最高値
- -万円
| 近隣の駅 | 近隣の家賃相場 | |
|---|---|---|
| 石和温泉 | - | |
| 春日居町 | - | |
※このデータは「ニフティ不動産」に掲載されている物件を元に算出したものです。(2026年3月25日現在)
※相場情報はあくまで参考値です。目安として活用ください。
石和温泉駅、1LDK、デザイナーズの家賃相場情報
- 平均値
- 9.1万円
- 最安値
- 9.1万円
- 最高値
- 9.1万円
| 近隣の駅 | 近隣の家賃相場 | |
|---|---|---|
| 石和温泉 | 9.1万円 | |
| 春日居町 | - | |
※このデータは「ニフティ不動産」に掲載されている物件を元に算出したものです。(2026年3月25日現在)
※相場情報はあくまで参考値です。目安として活用ください。
石和温泉駅、2K、デザイナーズの家賃相場情報
- 平均値
- -万円
- 最安値
- -万円
- 最高値
- -万円
| 近隣の駅 | 近隣の家賃相場 | |
|---|---|---|
| 石和温泉 | - | |
| 春日居町 | - | |
※このデータは「ニフティ不動産」に掲載されている物件を元に算出したものです。(2026年3月25日現在)
※相場情報はあくまで参考値です。目安として活用ください。
石和温泉駅、2DK、デザイナーズの家賃相場情報
- 平均値
- -万円
- 最安値
- -万円
- 最高値
- -万円
| 近隣の駅 | 近隣の家賃相場 | |
|---|---|---|
| 石和温泉 | - | |
| 春日居町 | - | |
※このデータは「ニフティ不動産」に掲載されている物件を元に算出したものです。(2026年3月25日現在)
※相場情報はあくまで参考値です。目安として活用ください。
石和温泉駅、2LDK、デザイナーズの家賃相場情報
- 平均値
- -万円
- 最安値
- -万円
- 最高値
- -万円
| 近隣の駅 | 近隣の家賃相場 | |
|---|---|---|
| 石和温泉 | - | |
| 春日居町 | - | |
※このデータは「ニフティ不動産」に掲載されている物件を元に算出したものです。(2026年3月25日現在)
※相場情報はあくまで参考値です。目安として活用ください。
石和温泉駅、3K、デザイナーズの家賃相場情報
- 平均値
- -万円
- 最安値
- -万円
- 最高値
- -万円
| 近隣の駅 | 近隣の家賃相場 | |
|---|---|---|
| 石和温泉 | - | |
| 春日居町 | - | |
※このデータは「ニフティ不動産」に掲載されている物件を元に算出したものです。(2026年3月25日現在)
※相場情報はあくまで参考値です。目安として活用ください。
石和温泉駅、3DK、デザイナーズの家賃相場情報
- 平均値
- -万円
- 最安値
- -万円
- 最高値
- -万円
| 近隣の駅 | 近隣の家賃相場 | |
|---|---|---|
| 石和温泉 | - | |
| 春日居町 | - | |
※このデータは「ニフティ不動産」に掲載されている物件を元に算出したものです。(2026年3月25日現在)
※相場情報はあくまで参考値です。目安として活用ください。
石和温泉駅、3LDK、デザイナーズの家賃相場情報
- 平均値
- -万円
- 最安値
- -万円
- 最高値
- -万円
| 近隣の駅 | 近隣の家賃相場 | |
|---|---|---|
| 石和温泉 | - | |
| 春日居町 | - | |
※このデータは「ニフティ不動産」に掲載されている物件を元に算出したものです。(2026年3月25日現在)
※相場情報はあくまで参考値です。目安として活用ください。
石和温泉駅、4LDK、デザイナーズの家賃相場情報
- 平均値
- -万円
- 最安値
- -万円
- 最高値
- -万円
| 近隣の駅 | 近隣の家賃相場 | |
|---|---|---|
| 石和温泉 | - | |
| 春日居町 | - | |
※このデータは「ニフティ不動産」に掲載されている物件を元に算出したものです。(2026年3月25日現在)
※相場情報はあくまで参考値です。目安として活用ください。
石和温泉駅、5LDK~、デザイナーズの家賃相場情報
- 平均値
- -万円
- 最安値
- -万円
- 最高値
- -万円
| 近隣の駅 | 近隣の家賃相場 | |
|---|---|---|
| 石和温泉 | - | |
| 春日居町 | - | |
※このデータは「ニフティ不動産」に掲載されている物件を元に算出したものです。(2026年3月25日現在)
※相場情報はあくまで参考値です。目安として活用ください。
石和温泉駅、1R、一戸建ての家賃相場情報
- 平均値
- -万円
- 最安値
- -万円
- 最高値
- -万円
| 近隣の駅 | 近隣の家賃相場 | |
|---|---|---|
| 石和温泉 | - | |
| 春日居町 | - | |
※このデータは「ニフティ不動産」に掲載されている物件を元に算出したものです。(2026年3月25日現在)
※相場情報はあくまで参考値です。目安として活用ください。
石和温泉駅、1K、一戸建ての家賃相場情報
- 平均値
- -万円
- 最安値
- -万円
- 最高値
- -万円
| 近隣の駅 | 近隣の家賃相場 | |
|---|---|---|
| 石和温泉 | - | |
| 春日居町 | - | |
※このデータは「ニフティ不動産」に掲載されている物件を元に算出したものです。(2026年3月25日現在)
※相場情報はあくまで参考値です。目安として活用ください。
石和温泉駅、1DK、一戸建ての家賃相場情報
- 平均値
- -万円
- 最安値
- -万円
- 最高値
- -万円
| 近隣の駅 | 近隣の家賃相場 | |
|---|---|---|
| 石和温泉 | - | |
| 春日居町 | - | |
※このデータは「ニフティ不動産」に掲載されている物件を元に算出したものです。(2026年3月25日現在)
※相場情報はあくまで参考値です。目安として活用ください。
石和温泉駅、1LDK、一戸建ての家賃相場情報
- 平均値
- 6.1万円
- 最安値
- 3.1万円
- 最高値
- 9.1万円
| 近隣の駅 | 近隣の家賃相場 | |
|---|---|---|
| 石和温泉 | 6.1万円 | |
| 春日居町 | - | |
※このデータは「ニフティ不動産」に掲載されている物件を元に算出したものです。(2026年3月25日現在)
※相場情報はあくまで参考値です。目安として活用ください。
石和温泉駅、2K、一戸建ての家賃相場情報
- 平均値
- 4万円
- 最安値
- 4万円
- 最高値
- 4万円
| 近隣の駅 | 近隣の家賃相場 | |
|---|---|---|
| 石和温泉 | 4万円 | |
| 春日居町 | - | |
※このデータは「ニフティ不動産」に掲載されている物件を元に算出したものです。(2026年3月25日現在)
※相場情報はあくまで参考値です。目安として活用ください。
石和温泉駅、2DK、一戸建ての家賃相場情報
石和温泉駅、2LDK、一戸建ての家賃相場情報
石和温泉駅、3K、一戸建ての家賃相場情報
石和温泉駅、3DK、一戸建ての家賃相場情報
石和温泉駅、3LDK、一戸建ての家賃相場情報
- 平均値
- 8.9万円
- 最安値
- 8.9万円
- 最高値
- 8.9万円
| 近隣の駅 | 近隣の家賃相場 | |
|---|---|---|
| 石和温泉 | 8.9万円 | |
| 春日居町 | - | |
※このデータは「ニフティ不動産」に掲載されている物件を元に算出したものです。(2026年3月25日現在)
※相場情報はあくまで参考値です。目安として活用ください。
石和温泉駅、4LDK、一戸建ての家賃相場情報
- 平均値
- 13.67万円
- 最安値
- 11万円
- 最高値
- 15万円
| 近隣の駅 | 近隣の家賃相場 | |
|---|---|---|
| 石和温泉 | 13.67万円 | |
| 春日居町 | - | |
※このデータは「ニフティ不動産」に掲載されている物件を元に算出したものです。(2026年3月25日現在)
※相場情報はあくまで参考値です。目安として活用ください。
石和温泉駅、5LDK~、一戸建ての家賃相場情報
- 平均値
- -万円
- 最安値
- -万円
- 最高値
- -万円
| 近隣の駅 | 近隣の家賃相場 | |
|---|---|---|
| 石和温泉 | - | |
| 春日居町 | - | |
※このデータは「ニフティ不動産」に掲載されている物件を元に算出したものです。(2026年3月25日現在)
※相場情報はあくまで参考値です。目安として活用ください。
甲府市、1R、条件なしの家賃相場情報
- 平均値
- 3.49万円
- 最安値
- 1.8万円
- 最高値
- 12.5万円
| 近隣の市区 | 近隣の家賃相場 | |
|---|---|---|
| 南都留郡鳴沢村 | - | |
| 南都留郡富士河口湖町 | 4.7万円 | |
| 甲府市 | 3.49万円 | |
| 富士吉田市 | - | |
| 都留市 | 3.84万円 | |
※このデータは「ニフティ不動産」に掲載されている物件を元に算出したものです。(2026年3月25日現在)
※相場情報はあくまで参考値です。目安として活用ください。
甲府市、1K、条件なしの家賃相場情報
- 平均値
- 3.96万円
- 最安値
- 1.7万円
- 最高値
- 10万円
| 近隣の市区 | 近隣の家賃相場 | |
|---|---|---|
| 南都留郡鳴沢村 | - | |
| 南都留郡富士河口湖町 | 4.88万円 | |
| 甲府市 | 3.96万円 | |
| 富士吉田市 | 4.81万円 | |
| 都留市 | 4.37万円 | |
※このデータは「ニフティ不動産」に掲載されている物件を元に算出したものです。(2026年3月25日現在)
※相場情報はあくまで参考値です。目安として活用ください。
甲府市、1DK、条件なしの家賃相場情報
甲府市、1LDK、条件なしの家賃相場情報
- 平均値
- 7.07万円
- 最安値
- 2.9万円
- 最高値
- 17万円
| 近隣の市区 | 近隣の家賃相場 | |
|---|---|---|
| 南都留郡鳴沢村 | - | |
| 南都留郡富士河口湖町 | 7.77万円 | |
| 甲府市 | 7.07万円 | |
| 富士吉田市 | 6.69万円 | |
| 都留市 | 6.51万円 | |
※このデータは「ニフティ不動産」に掲載されている物件を元に算出したものです。(2026年3月25日現在)
※相場情報はあくまで参考値です。目安として活用ください。
甲府市、2K、条件なしの家賃相場情報
甲府市、2DK、条件なしの家賃相場情報
- 平均値
- 4.85万円
- 最安値
- 2.8万円
- 最高値
- 8.8万円
| 近隣の市区 | 近隣の家賃相場 | |
|---|---|---|
| 南都留郡鳴沢村 | - | |
| 南都留郡富士河口湖町 | 7.1万円 | |
| 甲府市 | 4.85万円 | |
| 富士吉田市 | 5.25万円 | |
| 都留市 | 5.05万円 | |
※このデータは「ニフティ不動産」に掲載されている物件を元に算出したものです。(2026年3月25日現在)
※相場情報はあくまで参考値です。目安として活用ください。
甲府市、2LDK、条件なしの家賃相場情報
- 平均値
- 7.84万円
- 最安値
- 4万円
- 最高値
- 17万円
| 近隣の市区 | 近隣の家賃相場 | |
|---|---|---|
| 南都留郡鳴沢村 | 8.3万円 | |
| 南都留郡富士河口湖町 | 8.81万円 | |
| 甲府市 | 7.84万円 | |
| 富士吉田市 | - | |
| 都留市 | 6.05万円 | |
※このデータは「ニフティ不動産」に掲載されている物件を元に算出したものです。(2026年3月25日現在)
※相場情報はあくまで参考値です。目安として活用ください。
甲府市、3K、条件なしの家賃相場情報
甲府市、3DK、条件なしの家賃相場情報
- 平均値
- 5.51万円
- 最安値
- 3.5万円
- 最高値
- 8.5万円
| 近隣の市区 | 近隣の家賃相場 | |
|---|---|---|
| 南都留郡鳴沢村 | - | |
| 南都留郡富士河口湖町 | 6万円 | |
| 甲府市 | 5.51万円 | |
| 富士吉田市 | - | |
| 都留市 | 5.44万円 | |
※このデータは「ニフティ不動産」に掲載されている物件を元に算出したものです。(2026年3月25日現在)
※相場情報はあくまで参考値です。目安として活用ください。
甲府市、3LDK、条件なしの家賃相場情報
甲府市、4LDK、条件なしの家賃相場情報
- 平均値
- 10.45万円
- 最安値
- 5万円
- 最高値
- 17万円
| 近隣の市区 | 近隣の家賃相場 | |
|---|---|---|
| 南都留郡鳴沢村 | - | |
| 南都留郡富士河口湖町 | - | |
| 甲府市 | 10.45万円 | |
| 富士吉田市 | - | |
| 都留市 | - | |
※このデータは「ニフティ不動産」に掲載されている物件を元に算出したものです。(2026年3月25日現在)
※相場情報はあくまで参考値です。目安として活用ください。
甲府市、5LDK~、条件なしの家賃相場情報
甲府市、1R、ペット相談の家賃相場情報
- 平均値
- 2.83万円
- 最安値
- 1.8万円
- 最高値
- 5万円
| 近隣の市区 | 近隣の家賃相場 | |
|---|---|---|
| 南都留郡鳴沢村 | - | |
| 南都留郡富士河口湖町 | - | |
| 甲府市 | 2.83万円 | |
| 富士吉田市 | - | |
| 都留市 | - | |
※このデータは「ニフティ不動産」に掲載されている物件を元に算出したものです。(2026年3月25日現在)
※相場情報はあくまで参考値です。目安として活用ください。
甲府市、1K、ペット相談の家賃相場情報
- 平均値
- 3.15万円
- 最安値
- 2万円
- 最高値
- 6.7万円
| 近隣の市区 | 近隣の家賃相場 | |
|---|---|---|
| 南都留郡鳴沢村 | - | |
| 南都留郡富士河口湖町 | - | |
| 甲府市 | 3.15万円 | |
| 富士吉田市 | - | |
| 都留市 | - | |
※このデータは「ニフティ不動産」に掲載されている物件を元に算出したものです。(2026年3月25日現在)
※相場情報はあくまで参考値です。目安として活用ください。
甲府市、1DK、ペット相談の家賃相場情報
- 平均値
- 3.92万円
- 最安値
- 2.5万円
- 最高値
- 5.5万円
| 近隣の市区 | 近隣の家賃相場 | |
|---|---|---|
| 南都留郡鳴沢村 | - | |
| 南都留郡富士河口湖町 | - | |
| 甲府市 | 3.92万円 | |
| 富士吉田市 | - | |
| 都留市 | - | |
※このデータは「ニフティ不動産」に掲載されている物件を元に算出したものです。(2026年3月25日現在)
※相場情報はあくまで参考値です。目安として活用ください。
甲府市、1LDK、ペット相談の家賃相場情報
甲府市、2K、ペット相談の家賃相場情報
- 平均値
- 4.47万円
- 最安値
- 3.2万円
- 最高値
- 5.3万円
| 近隣の市区 | 近隣の家賃相場 | |
|---|---|---|
| 南都留郡鳴沢村 | - | |
| 南都留郡富士河口湖町 | - | |
| 甲府市 | 4.47万円 | |
| 富士吉田市 | - | |
| 都留市 | - | |
※このデータは「ニフティ不動産」に掲載されている物件を元に算出したものです。(2026年3月25日現在)
※相場情報はあくまで参考値です。目安として活用ください。
甲府市、2DK、ペット相談の家賃相場情報
甲府市、2LDK、ペット相談の家賃相場情報
- 平均値
- 8.87万円
- 最安値
- 4.5万円
- 最高値
- 17万円
| 近隣の市区 | 近隣の家賃相場 | |
|---|---|---|
| 南都留郡鳴沢村 | - | |
| 南都留郡富士河口湖町 | 8.15万円 | |
| 甲府市 | 8.87万円 | |
| 富士吉田市 | - | |
| 都留市 | - | |
※このデータは「ニフティ不動産」に掲載されている物件を元に算出したものです。(2026年3月25日現在)
※相場情報はあくまで参考値です。目安として活用ください。
甲府市、3K、ペット相談の家賃相場情報
- 平均値
- 6万円
- 最安値
- 4.5万円
- 最高値
- 7万円
| 近隣の市区 | 近隣の家賃相場 | |
|---|---|---|
| 南都留郡鳴沢村 | - | |
| 南都留郡富士河口湖町 | - | |
| 甲府市 | 6万円 | |
| 富士吉田市 | - | |
| 都留市 | - | |
※このデータは「ニフティ不動産」に掲載されている物件を元に算出したものです。(2026年3月25日現在)
※相場情報はあくまで参考値です。目安として活用ください。
甲府市、3DK、ペット相談の家賃相場情報
- 平均値
- 5.88万円
- 最安値
- 4万円
- 最高値
- 8.2万円
| 近隣の市区 | 近隣の家賃相場 | |
|---|---|---|
| 南都留郡鳴沢村 | - | |
| 南都留郡富士河口湖町 | - | |
| 甲府市 | 5.88万円 | |
| 富士吉田市 | - | |
| 都留市 | - | |
※このデータは「ニフティ不動産」に掲載されている物件を元に算出したものです。(2026年3月25日現在)
※相場情報はあくまで参考値です。目安として活用ください。
甲府市、3LDK、ペット相談の家賃相場情報
- 平均値
- 10.09万円
- 最安値
- 5.3万円
- 最高値
- 19.5万円
| 近隣の市区 | 近隣の家賃相場 | |
|---|---|---|
| 南都留郡鳴沢村 | - | |
| 南都留郡富士河口湖町 | - | |
| 甲府市 | 10.09万円 | |
| 富士吉田市 | - | |
| 都留市 | - | |
※このデータは「ニフティ不動産」に掲載されている物件を元に算出したものです。(2026年3月25日現在)
※相場情報はあくまで参考値です。目安として活用ください。
甲府市、4LDK、ペット相談の家賃相場情報
- 平均値
- 9.21万円
- 最安値
- 5万円
- 最高値
- 15万円
| 近隣の市区 | 近隣の家賃相場 | |
|---|---|---|
| 南都留郡鳴沢村 | - | |
| 南都留郡富士河口湖町 | - | |
| 甲府市 | 9.21万円 | |
| 富士吉田市 | - | |
| 都留市 | - | |
※このデータは「ニフティ不動産」に掲載されている物件を元に算出したものです。(2026年3月25日現在)
※相場情報はあくまで参考値です。目安として活用ください。
甲府市、5LDK~、ペット相談の家賃相場情報
- 平均値
- 11.09万円
- 最安値
- 3.8万円
- 最高値
- 29万円
| 近隣の市区 | 近隣の家賃相場 | |
|---|---|---|
| 南都留郡鳴沢村 | - | |
| 南都留郡富士河口湖町 | - | |
| 甲府市 | 11.09万円 | |
| 富士吉田市 | - | |
| 都留市 | - | |
※このデータは「ニフティ不動産」に掲載されている物件を元に算出したものです。(2026年3月25日現在)
※相場情報はあくまで参考値です。目安として活用ください。
甲府市、1R、デザイナーズの家賃相場情報
- 平均値
- -万円
- 最安値
- -万円
- 最高値
- -万円
| 近隣の市区 | 近隣の家賃相場 | |
|---|---|---|
| 南都留郡鳴沢村 | - | |
| 南都留郡富士河口湖町 | - | |
| 甲府市 | - | |
| 富士吉田市 | - | |
| 都留市 | - | |
※このデータは「ニフティ不動産」に掲載されている物件を元に算出したものです。(2026年3月25日現在)
※相場情報はあくまで参考値です。目安として活用ください。
甲府市、1K、デザイナーズの家賃相場情報
- 平均値
- 4.65万円
- 最安値
- 4.5万円
- 最高値
- 4.8万円
| 近隣の市区 | 近隣の家賃相場 | |
|---|---|---|
| 南都留郡鳴沢村 | - | |
| 南都留郡富士河口湖町 | - | |
| 甲府市 | 4.65万円 | |
| 富士吉田市 | - | |
| 都留市 | - | |
※このデータは「ニフティ不動産」に掲載されている物件を元に算出したものです。(2026年3月25日現在)
※相場情報はあくまで参考値です。目安として活用ください。
甲府市、1DK、デザイナーズの家賃相場情報
- 平均値
- -万円
- 最安値
- -万円
- 最高値
- -万円
| 近隣の市区 | 近隣の家賃相場 | |
|---|---|---|
| 南都留郡鳴沢村 | - | |
| 南都留郡富士河口湖町 | - | |
| 甲府市 | - | |
| 富士吉田市 | - | |
| 都留市 | - | |
※このデータは「ニフティ不動産」に掲載されている物件を元に算出したものです。(2026年3月25日現在)
※相場情報はあくまで参考値です。目安として活用ください。
甲府市、1LDK、デザイナーズの家賃相場情報
甲府市、2K、デザイナーズの家賃相場情報
- 平均値
- -万円
- 最安値
- -万円
- 最高値
- -万円
| 近隣の市区 | 近隣の家賃相場 | |
|---|---|---|
| 南都留郡鳴沢村 | - | |
| 南都留郡富士河口湖町 | - | |
| 甲府市 | - | |
| 富士吉田市 | - | |
| 都留市 | - | |
※このデータは「ニフティ不動産」に掲載されている物件を元に算出したものです。(2026年3月25日現在)
※相場情報はあくまで参考値です。目安として活用ください。
甲府市、2DK、デザイナーズの家賃相場情報
- 平均値
- -万円
- 最安値
- -万円
- 最高値
- -万円
| 近隣の市区 | 近隣の家賃相場 | |
|---|---|---|
| 南都留郡鳴沢村 | - | |
| 南都留郡富士河口湖町 | - | |
| 甲府市 | - | |
| 富士吉田市 | - | |
| 都留市 | - | |
※このデータは「ニフティ不動産」に掲載されている物件を元に算出したものです。(2026年3月25日現在)
※相場情報はあくまで参考値です。目安として活用ください。
甲府市、2LDK、デザイナーズの家賃相場情報
- 平均値
- 13万円
- 最安値
- 13万円
- 最高値
- 13万円
| 近隣の市区 | 近隣の家賃相場 | |
|---|---|---|
| 南都留郡鳴沢村 | - | |
| 南都留郡富士河口湖町 | - | |
| 甲府市 | 13万円 | |
| 富士吉田市 | - | |
| 都留市 | - | |
※このデータは「ニフティ不動産」に掲載されている物件を元に算出したものです。(2026年3月25日現在)
※相場情報はあくまで参考値です。目安として活用ください。
甲府市、3K、デザイナーズの家賃相場情報
- 平均値
- -万円
- 最安値
- -万円
- 最高値
- -万円
| 近隣の市区 | 近隣の家賃相場 | |
|---|---|---|
| 南都留郡鳴沢村 | - | |
| 南都留郡富士河口湖町 | - | |
| 甲府市 | - | |
| 富士吉田市 | - | |
| 都留市 | - | |
※このデータは「ニフティ不動産」に掲載されている物件を元に算出したものです。(2026年3月25日現在)
※相場情報はあくまで参考値です。目安として活用ください。
甲府市、3DK、デザイナーズの家賃相場情報
- 平均値
- -万円
- 最安値
- -万円
- 最高値
- -万円
| 近隣の市区 | 近隣の家賃相場 | |
|---|---|---|
| 南都留郡鳴沢村 | - | |
| 南都留郡富士河口湖町 | - | |
| 甲府市 | - | |
| 富士吉田市 | - | |
| 都留市 | - | |
※このデータは「ニフティ不動産」に掲載されている物件を元に算出したものです。(2026年3月25日現在)
※相場情報はあくまで参考値です。目安として活用ください。
甲府市、3LDK、デザイナーズの家賃相場情報
- 平均値
- 10.73万円
- 最安値
- 10万円
- 最高値
- 11.3万円
| 近隣の市区 | 近隣の家賃相場 | |
|---|---|---|
| 南都留郡鳴沢村 | - | |
| 南都留郡富士河口湖町 | - | |
| 甲府市 | 10.73万円 | |
| 富士吉田市 | - | |
| 都留市 | - | |
※このデータは「ニフティ不動産」に掲載されている物件を元に算出したものです。(2026年3月25日現在)
※相場情報はあくまで参考値です。目安として活用ください。
甲府市、4LDK、デザイナーズの家賃相場情報
- 平均値
- 10.5万円
- 最安値
- 10.5万円
- 最高値
- 10.5万円
| 近隣の市区 | 近隣の家賃相場 | |
|---|---|---|
| 南都留郡鳴沢村 | - | |
| 南都留郡富士河口湖町 | - | |
| 甲府市 | 10.5万円 | |
| 富士吉田市 | - | |
| 都留市 | - | |
※このデータは「ニフティ不動産」に掲載されている物件を元に算出したものです。(2026年3月25日現在)
※相場情報はあくまで参考値です。目安として活用ください。
甲府市、5LDK~、デザイナーズの家賃相場情報
- 平均値
- -万円
- 最安値
- -万円
- 最高値
- -万円
| 近隣の市区 | 近隣の家賃相場 | |
|---|---|---|
| 南都留郡鳴沢村 | - | |
| 南都留郡富士河口湖町 | - | |
| 甲府市 | - | |
| 富士吉田市 | - | |
| 都留市 | - | |
※このデータは「ニフティ不動産」に掲載されている物件を元に算出したものです。(2026年3月25日現在)
※相場情報はあくまで参考値です。目安として活用ください。
甲府市、1R、一戸建ての家賃相場情報
- 平均値
- 7万円
- 最安値
- 7万円
- 最高値
- 7万円
| 近隣の市区 | 近隣の家賃相場 | |
|---|---|---|
| 南都留郡鳴沢村 | - | |
| 南都留郡富士河口湖町 | - | |
| 甲府市 | 7万円 | |
| 富士吉田市 | - | |
| 都留市 | - | |
※このデータは「ニフティ不動産」に掲載されている物件を元に算出したものです。(2026年3月25日現在)
※相場情報はあくまで参考値です。目安として活用ください。
甲府市、1K、一戸建ての家賃相場情報
- 平均値
- -万円
- 最安値
- -万円
- 最高値
- -万円
| 近隣の市区 | 近隣の家賃相場 | |
|---|---|---|
| 南都留郡鳴沢村 | - | |
| 南都留郡富士河口湖町 | - | |
| 甲府市 | - | |
| 富士吉田市 | - | |
| 都留市 | - | |
※このデータは「ニフティ不動産」に掲載されている物件を元に算出したものです。(2026年3月25日現在)
※相場情報はあくまで参考値です。目安として活用ください。
甲府市、1DK、一戸建ての家賃相場情報
- 平均値
- -万円
- 最安値
- -万円
- 最高値
- -万円
| 近隣の市区 | 近隣の家賃相場 | |
|---|---|---|
| 南都留郡鳴沢村 | - | |
| 南都留郡富士河口湖町 | - | |
| 甲府市 | - | |
| 富士吉田市 | - | |
| 都留市 | - | |
※このデータは「ニフティ不動産」に掲載されている物件を元に算出したものです。(2026年3月25日現在)
※相場情報はあくまで参考値です。目安として活用ください。
甲府市、1LDK、一戸建ての家賃相場情報
- 平均値
- 8.03万円
- 最安値
- 3.1万円
- 最高値
- 12.5万円
| 近隣の市区 | 近隣の家賃相場 | |
|---|---|---|
| 南都留郡鳴沢村 | - | |
| 南都留郡富士河口湖町 | - | |
| 甲府市 | 8.03万円 | |
| 富士吉田市 | - | |
| 都留市 | - | |
※このデータは「ニフティ不動産」に掲載されている物件を元に算出したものです。(2026年3月25日現在)
※相場情報はあくまで参考値です。目安として活用ください。
甲府市、2K、一戸建ての家賃相場情報
- 平均値
- 4.39万円
- 最安値
- 2万円
- 最高値
- 7万円
| 近隣の市区 | 近隣の家賃相場 | |
|---|---|---|
| 南都留郡鳴沢村 | - | |
| 南都留郡富士河口湖町 | - | |
| 甲府市 | 4.39万円 | |
| 富士吉田市 | - | |
| 都留市 | - | |
※このデータは「ニフティ不動産」に掲載されている物件を元に算出したものです。(2026年3月25日現在)
※相場情報はあくまで参考値です。目安として活用ください。
甲府市、2DK、一戸建ての家賃相場情報
甲府市、2LDK、一戸建ての家賃相場情報
甲府市、3K、一戸建ての家賃相場情報
甲府市、3DK、一戸建ての家賃相場情報
- 平均値
- 5.3万円
- 最安値
- 3.5万円
- 最高値
- 7.9万円
| 近隣の市区 | 近隣の家賃相場 | |
|---|---|---|
| 南都留郡鳴沢村 | - | |
| 南都留郡富士河口湖町 | - | |
| 甲府市 | 5.3万円 | |
| 富士吉田市 | - | |
| 都留市 | - | |
※このデータは「ニフティ不動産」に掲載されている物件を元に算出したものです。(2026年3月25日現在)
※相場情報はあくまで参考値です。目安として活用ください。
甲府市、3LDK、一戸建ての家賃相場情報
甲府市、4LDK、一戸建ての家賃相場情報
- 平均値
- 11万円
- 最安値
- 5万円
- 最高値
- 17万円
| 近隣の市区 | 近隣の家賃相場 | |
|---|---|---|
| 南都留郡鳴沢村 | - | |
| 南都留郡富士河口湖町 | - | |
| 甲府市 | 11万円 | |
| 富士吉田市 | - | |
| 都留市 | - | |
※このデータは「ニフティ不動産」に掲載されている物件を元に算出したものです。(2026年3月25日現在)
※相場情報はあくまで参考値です。目安として活用ください。









