NEW一戸建て三番町(東海通駅) 3877万円・3977万円の詳細情報
3877万円・3977万円
月々のローン返済額を試算【おうちむすびキャンペーン実施中】◆災害に強いオール電化◆商業施設が充実
外観・室内・設備(13枚)
その他(8枚)
物件概要
| 物件名 | 三番町(東海通駅) 3877万円・3977万円 | ||||
|---|---|---|---|---|---|
| 所在地 | 愛知県名古屋市熱田区三番町1201番の一部 | ||||
| 交通 |
地下鉄名港線「東海通」歩11分 地下鉄名港線「六番町」歩18分 名鉄常滑線「豊田本町」歩27分 | ||||
| 構造および階数 | 木造3階建て | 建ぺい率・容積率 | 建ペい率:60%、容積率:200% | ||
| 完成予定日 | 2023年4月 | 入居可能予定日 | 即引渡可 | ||
| 土地権利 | 所有権 | ||||
| 駐車場 | - | 国土法届出 | - | ||
| 地目 | 宅地 | 道路付け | 道路幅:9.1m、アスファルト舗装、北側、9.1m東側 | ||
| 機構融資 | フラット35Sベーシック | 取引態様 | 仲介 | ||
| 用途地域 | 準工業 | ||||
| 施工会社 | - | ||||
| 建築確認番号 | - | ||||
| 設備 | フラット35・S適合証明書 / 省エネルギー対策 / フラット35Sに対応 / 太陽光発電システム / 地盤調査済 / 年内引渡可 / 駐車2台可 / 即引渡可 / 2沿線以上利用可 / 年度内引渡可 / 省エネ給湯器 / スーパー 徒歩10分以内 / 市街地が近い / システムキッチン / 浴室乾燥機 / 陽当り良好 / 全居室収納 / 閑静な住宅地 / LDK15畳以上 / 総合病院 徒歩10分以内 / 前道6m以上 / 整形地 / 庭 / シャワー付洗面化粧台 / 対面式キッチン / EV車充電設備 / 3面採光 / トイレ2ヶ所 / 浴室1坪以上 / 2階建 / 南面バルコニー / 複層ガラス / オートバス / 温水洗浄便座 / 南庭 / 浴室に窓 / TVモニタ付インターホン / 節水型トイレ / 緑豊かな住宅地 / 都市近郊 / 通風良好 / 全居室フローリング / ウォークインクローゼット / IHクッキングヒーター / リビング階段 / 全居室複層ガラスか複層サッシ / 小学校 徒歩10分以内 / 平坦地 / 納戸 / 食器洗乾燥機 / 周辺交通量少なめ / 整備された歩道 / オール電化 / 浄水器 / 高機能トイレ / ビルトインガレージ | ||||
| その他制限事項 | 準防火地域、景観法による規制有、宅地造成工事規制区域、高さ最高限度有 | ||||
| 備考 | 準防火地域、景観法による規制有、宅地造成工事規制区域、高さ最高限度有 / 担当者:西本 薫、設備:公営水道、本下水、中部電力(オール電化) | ||||
情報更新日:2025/11/30 次回更新予定日:情報提供より8日以内
販売概要
| 販売価格 | 3877万円・3977万円 お問い合わせはこちら | ||||
|---|---|---|---|---|---|
| 販売スケジュール | ■購入申込は先着順でお受付いたします■最新の販売状況は、おうちむすびへお気軽にお問い合わせください。 | ||||
| 販売戸数/総戸数 | 4戸/5戸 | ||||
| 最多価格帯 | 3900万円台(3戸) | ||||
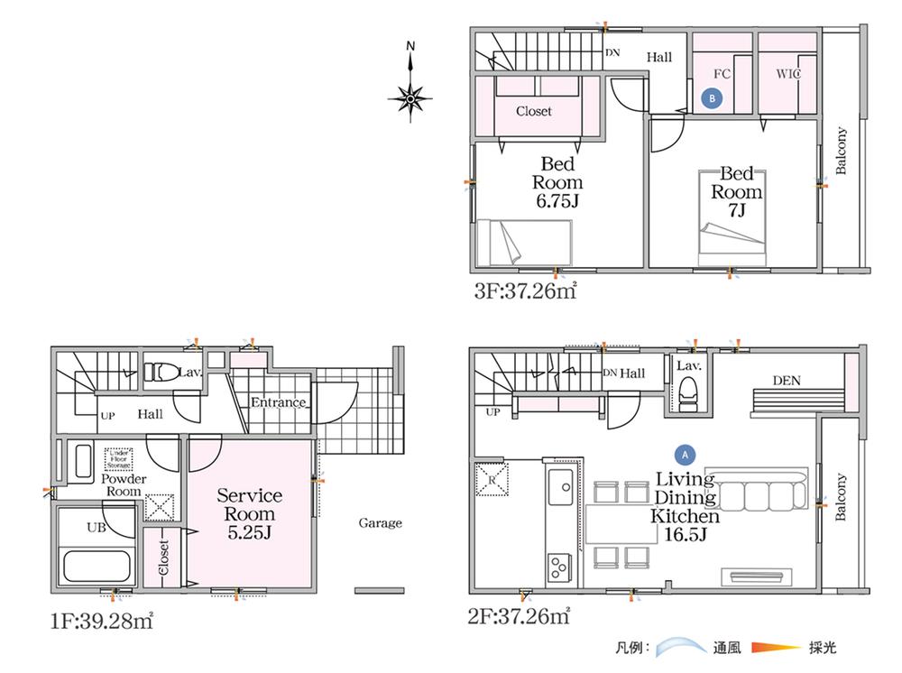
| 間取り | 2LDK+S(納戸) | ||||
| 建物面積 | 106.91㎡・113.8㎡(32.34坪・34.42坪)(登記) | 土地面積 | 72.98㎡・75.83㎡(22.07坪・22.93坪)(登記) | ||
| その他施設費用、償却費 | - | ||||
| その他費用 | - | ||||
| 登録受付 | - | 抽選日 | - | ||
| モデルルーム情報 | 現地見学会(事前に必ずお問い合わせください)日程/公開中■まずはお問い合わせください■掲載中の物件以外にも「未公開(販売前の物件)」や「非掲載(個別の事情でネットに非掲載の物件)」が相当数ございます。上記のうち、掲載前に完売となる物件も多数あります。選択肢を増やすためにも、まずはおうちむすびへお問い合わせくださいね!■こんなお困り事はありませんか?■・不動産会社の担当さんと相性が合わない。・不安が残るまま契約したくない。・購入にあたり、少しでもコストを下げたい。・新築、注文、中古、自分達に合う物件が知りたい。など、ぜひご相談ください!■住宅ローンの個別相談会を実施しています■専属の住宅ローンアドバイザーが、専門的な視野でご質問にお答えいたします。「自己資金はゼロで購入したい」「カードや車のローンがある」「転職したばかり」「以前に審査が通らなかった」「支払いの遅れがある」など。その他、ローンに関わる一般的なご質問も、お気軽に相談くださいね!■おうちむすびでできること■・物件紹介とご案内・住宅ローン審査お手続き・火災保険お手続き・新築住宅のオプション工事・中古住宅のホームインスペクション・中古住宅のリフォーム工事・引越業者やホームセキュリティのご紹介 (提携業者のため安心です)・ご入居後のアフターフォロー・空き地や空き家の有効活用に関するご相談・相続や事業承継、任意売却に関するご相談おうちむすびではライフプランのご相談はもとより、住宅ローンの申請からご契約、火災保険お手続きやオプション工事、お引越しまでワンストップにてサービスをご提供いたしております。また「売ったら終わり」ではなく、ご入居後のアフターフォローにも専心いたします。まずはお気軽にご相談くださいね! | ||||
| 取引条件有効期限 | 2026年5月31日 | ||||
会社情報
| お問い合わせ先 |
おうちむすび サンクリエイト(株) 0120-398335(無料通話) 上記の電話番号にお問合せください。(携帯・PHS 可) 【物件番号】78905154 | ||||
|---|---|---|---|---|---|
| 会社概要 |
おうちむすび サンクリエイト(株)[愛知県知事(1)第024749号] 愛知県名古屋市守山区西川原町137 【所属団体】 愛知県知事(1)第024749号(公社)愛知県宅地建物取引業協会会員 東海不動産公正取引協議会加盟 / 東海不動産公正取引協議会会員 | ||||
この物件の地図・周辺環境
このアイコンは物件のおおよその位置を表しており、実際の場所と異なる場合がございます。詳しくは不動産会社に直接ご確認ください。
※地図上に表示される物件の位置は付近住所に所在することを表すものであり、実際の物件所在地とは異なる場合がございます。
※地図の更新タイミングの関係で、物件情報が実際のものとは異なる場合や最新情報に更新されていない場合がございます。
※以下の南西諸島及び離島においては、表示される物件の位置が実際のものとは数百メートル程度ずれる場合がございます。
東京都:硫黄島・青ヶ島、沖縄県: 北大東島・南大東島・多良間島・水納島・与那国島・宮古諸島・石垣島・竹富島
取り扱い不動産会社
- 電話番号
- 0120-398335
- 受付
- 営業時間:9:30~19:00 / 定休日:年中無休(年末年始を除く)
- 物件番号
- 78905154
東海通駅の口コミ
自然環境
3.0
もともと工業地域なので、運河沿いに工場っぽいものや倉庫が多い。東海通駅前には高速が通っている。ららのキッズパークがあるので最初はいいけど、飽きられたらどうしようと思う。津金公園は大人がのんびりするような公園だった。
お買い物・飲食
4.0
日常の買い物には困らないですが、外食できるお店が少ないです。個人店なら少しありますが、ファミレスなどチェーン飲食店は無いです。
住宅ローンシミュレーション
住宅ローン設定
物件価格
返済期間
頭金
ボーナス払(年1回)
※
※物件価格の80%以下でお借入れの場合
※50歳以下で一般団信をご選択の場合
※住宅ローン金利優遇割適用後の変動金利(全期間引き下げプラン)
※実際のお借入日の金利により変動します。
※審査の結果によっては保証付金利プランとなる場合があり、この場合は上記とは異なる金利となります。
※別途借入金額の2.20%(税込)の事務手数料が発生します。
ボーナス払 | 35年間返済 | 30年間返済 | 25年間返済 | 20年間返済 | 15年間返済 | 10年間返済 |
|---|---|---|---|---|---|---|
0万円 | -円/月 | -円/月 | -円/月 | -円/月 | -円/月 | -円/月 |
5万円 | -円/月 | -円/月 | -円/月 | -円/月 | -円/月 | -円/月 |
10万円 | -円/月 | -円/月 | -円/月 | -円/月 | -円/月 | -円/月 |
15万円 | -円/月 | -円/月 | -円/月 | -円/月 | -円/月 | -円/月 |
20万円 | -円/月 | -円/月 | -円/月 | -円/月 | -円/月 | -円/月 |
25万円 | -円/月 | -円/月 | -円/月 | -円/月 | -円/月 | -円/月 |
30万円 | -円/月 | -円/月 | -円/月 | -円/月 | -円/月 | -円/月 |
ボーナス払 | 35年間返済 | 30年間返済 | 25年間返済 | 20年間返済 | 15年間返済 | 10年間返済 |
|---|---|---|---|---|---|---|
0万円 | -円/月 | -円/月 | -円/月 | -円/月 | -円/月 | -円/月 |
5万円 | -円/月 | -円/月 | -円/月 | -円/月 | -円/月 | -円/月 |
10万円 | -円/月 | -円/月 | -円/月 | -円/月 | -円/月 | -円/月 |
15万円 | -円/月 | -円/月 | -円/月 | -円/月 | -円/月 | -円/月 |
20万円 | -円/月 | -円/月 | -円/月 | -円/月 | -円/月 | -円/月 |
25万円 | -円/月 | -円/月 | -円/月 | -円/月 | -円/月 | -円/月 |
30万円 | -円/月 | -円/月 | -円/月 | -円/月 | -円/月 | -円/月 |
- ・金利は、今後35年間変動しない仮定のもと元利均等返済方式で計算しております。
- ・実際の金利は、各金融機関のホームページをご参照ください。
- ・ローン契約の際には、手数料や印紙税などの諸費用が別途かかります。
- ・ボーナス支払総額が総支払額の50%を超えている場合、上記の表では「ローン不可」となります。
- ・シミュレーションを利用し、それが原因で利用者が受けたいかなる損害についても当社は一切責任を負いません。あらかじめご了承ください。
※価格は物件の代金総額を表示しており、消費税が課税される場合は税込み価格です。 (1000円未満は切り上げ。)
※写真に写っている、またはパース(絵)や間取り図に描かれている家具や車などは、特にコメントがない場合、販売価格に含まれません。
※敷地権利が定期借地権のものは価格に権利金を含みます。
※建築条件付き土地価格には、建物価格は含まれません。
※物件情報は、原則として情報提供日の2日前に最終確認した情報です。
※完成予想図はいずれも外構、植栽、外観等実際のものとは多少異なることがあります。
※モデルルーム・モデルハウス・展示場・ショールームの画像の場合、今回販売の物件と異なる場合があります。
※CG合成の画像の場合、実際とは多少異なる場合があります。
※物件特徴:販売戸数が複数の物件は、全ての住戸に該当しない項目もあります。
※0800で始まる電話番号は通話料無料です。また、サービス検証のため当該番号の利用履歴を個人が特定できない範囲で取得しています。予めご了承ください。
※完成後1年以上を経過した未入居物件が掲載される場合があります。ご了承ください。
※新着:物件情報が「SUUMO」に掲載された日から1週間表示されます。
※価格更新:物件価格が変更された日から1週間表示されます。
※販売予定物件はすべて、販売開始するまで契約または予約の申込みはできません。
※購入の前には物件内容や契約条件についてご自身で十分な確認をしていただくようにお願いいたします。
※建築条件土地の情報内に掲載されている、建物プラン例は、土地購入者の設計プランの参考の一例であって、プランの採用可否は任意です。
※土地(建築条件なし)で「建物プラン例」が表記してある時、そのプラン例は特定の建築請負会社によるもので、当該建築請負会社以外で建てた場合、同様のものが同価格で建てられるとは限りません。また建築請負会社を特定するものではありません。
※建築条件付き土地とは、その土地に建築する建物の建築請負契約が、一定期間内に成立することを条件として売買される土地のことをいいます。建築請負契約成立に向けて設計プランを協議するため、土地購入者が自己の希望する建物の設計協議をするために必要な相当の期間の交渉期間が設定され、その期間内で希望を満たすプランが実現できたかどうかにより結論を出します。なお、この期間は概ね3ヶ月程度とされています。納得のいくプランが出来ず、建築請負契約が成立しない場合、土地売買契約は白紙に戻り、土地契約にかかった代金(土地代金、手付金など)は名目のいかんに関わらず、全て返却されます。





















