一戸建てG-STYLE 志水小東Ⅲ【イワクラゴールデンホーム(株)】の詳細情報
3748万円・3998万円
月々のローン返済額を試算この物件は未完成のため、掲載写真(外観、内観、設備等)には、施工例が含まれている場合があります。物件詳細については、掲載の不動産会社宛にお問合せください。
\志水小学校エリアの全2邸/ 快適×便利なIOT対応住宅!事前説明会開催中
周辺環境・アクセス(10枚)
その他(12枚)

\陽光豊かな全2邸の新街区/ 家電のon・offなどをスマホや音声でコントロールできる、IOT対応住宅が誕生予定!
【間取図/No1】ゆったり過ごせる、和室のある住まいです。2階の洋室3部屋は、いずれも6帖以上の広さを確保!南庭を設けており、ガーデニングやお子様のプール遊び、BBQなどおうち時間の楽しみ方が広がります。

\陽光豊かな全2邸の新街区/ 家電のon・offなどをスマホや音声でコントロールできる、IOT対応住宅が誕生予定!
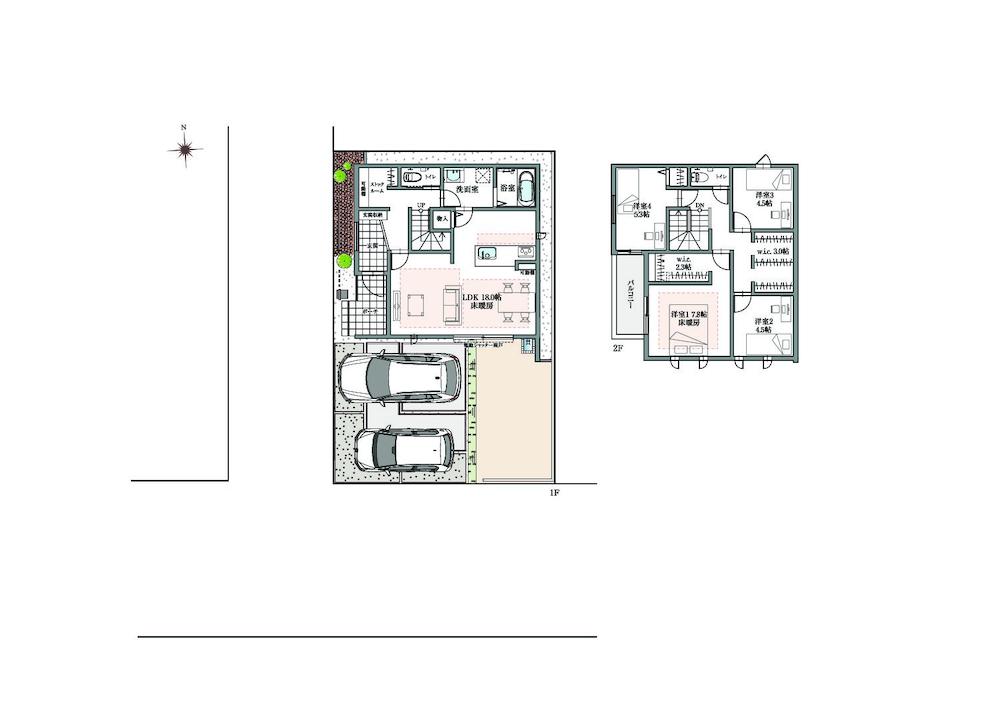
【間取図/No2】南庭付き4LDKプランです。LDKは広々約18.0帖!玄関~洗面室~LDKを回遊でき生活動線がスムーズです。玄関脇に、お出かけグッズや上着などを収納できるストックルームを設けています。

\陽光豊かな全2邸の新街区/ 家電のon・offなどをスマホや音声でコントロールできる、IOT対応住宅が誕生予定!
【現地土地写真】IoT対応住宅が誕生予定!照明やエアコン、鍵、家電などを遠隔操作できる、次世代の住まいです。IoT機器は後から追加することも可能です。

\陽光豊かな全2邸の新街区/ 家電のon・offなどをスマホや音声でコントロールできる、IOT対応住宅が誕生予定!
【現地土地写真】お風呂のお湯はりやエアコン、床暖房などのon/offを外出先からスマホでコントロール!帰宅に合わせて操作でき、日々の暮らしがスムーズに◎防犯やペットの見守りにも役立ちます。

\最寄りバス停へわずか徒歩1分/ スーパーやドラッグストアなど、買い物施設が徒歩圏内の生活利便なエリア。
とよやまタウンバス「青塚古墳前」停まで徒歩1分。通勤や通学などに便利な南ルートと通院や買い物に便利な北ルートの2ルートがあります。日曜・祝日も運行しています。

\子育てしやすいロケーション/ 小・中学校、幼保施設、公園、小児科クリニックが徒歩10分圏内に。
冨士保育園まで徒歩7分。お子様と歩いて通園ができる、徒歩7分の距離。行き帰りの時間も大切な思い出になりそうです。定員180名の保育園です。
物件概要
| 物件名 | G-STYLE 志水小東Ⅲ【イワクラゴールデンホーム(株)】 | ||||
|---|---|---|---|---|---|
| 所在地 | 愛知県西春日井郡豊山町大字豊場字冨士 | ||||
| 交通 |
JR東海交通事業城北線「比良」歩32分 JR東海交通事業城北線「味美」歩32分 豊山タウンバス「青塚古墳前」歩1分 | ||||
| 構造および階数 | - | 建ぺい率・容積率 | 建ぺい率:60%、容積率:200% | ||
| 完成予定日 | 2025年11月下旬予定 | 入居可能予定日 | 相談 | ||
| 土地権利 | 所有権 | ||||
| 駐車場 | - | 国土法届出 | - | ||
| 地目 | 宅地 | 道路付け | 道路幅:4m~6m、アスファルト舗装 | ||
| 機構融資 | - | 取引態様 | 売主 | ||
| 用途地域 | 1種中高 | ||||
| 施工会社 | - | ||||
| 建築確認番号 | 確認サービス第KS125-0420-55155号他 | ||||
| 設備 | 駐車2台可 / LDK18畳以上 / スーパー 徒歩10分以内 / 全居室収納 / 南側道路面す / 閑静な住宅地 / 角地 / 和室 / 整形地 / 対面式キッチン / トイレ2ヶ所 / 2階建 / 南面バルコニー / 南庭 / 全居室フローリング / ウォークインクローゼット / 都市ガス / 小学校 徒歩10分以内 / 床暖房 | ||||
| その他制限事項 | 景観法による規制有、航空法による規制有 | ||||
| 備考 | 景観法による規制有、航空法による規制有 / 担当者:萩尾 哲士、設備:中部電力、公営水道、本下水、都市ガス、建築確認番号:確認サービス第KS125-0420-55155号他 | ||||
情報更新日:2025/11/23 次回更新予定日:情報提供より8日以内
販売概要
| 販売価格 | 3748万円・3998万円 お問い合わせはこちら | ||||
|---|---|---|---|---|---|
| 販売スケジュール | ◆「SUUMOを見て」とお伝えいただきますと、ご案内をスムーズにさせていただけます。 | ||||
| 販売戸数/総戸数 | 2戸/2戸 | ||||
| 最多価格帯 | - | ||||
| 間取り | 4LDK | ||||
| 建物面積 | 104.35㎡・109.73㎡(31.56坪・33.19坪) | 土地面積 | 127.69㎡(38.62坪) | ||
| その他施設費用、償却費 | - | ||||
| その他費用 | - | ||||
| 登録受付 | - | 抽選日 | - | ||
| モデルルーム情報 | モデルハウス(事前に必ずお問い合わせください)日程/毎週土日祝時間/10:00~17:00■5000円分のギフト券プレゼント■・ご予約の上ご来場+事前審査で進呈。・事前審査には「運転免許証/健康保険証/源泉徴収票」が必要です。※初めてのご来場で住宅ローンの事前審査をお受けいただく住宅購入の意思がある方に限ります。※プレゼントのお渡し時期は審査結果の回答時に再度ご来場いただいた際に手渡しとなります。■平日や夜間もご案内いたします■昼の日当たり+夜の雰囲気、どちらもご対応させていただきます!共働きのご夫婦でお休みが合わない方など、別々でのご対応もご相談ください♪■自由設計プランもご紹介■完成前物件は類似物件のご案内が可能です♪着工前、建築途中であれば差額0円~セレクトオーダーが可能!※工事や発注の進捗状況に応じて、お受けできる内容が異なります。■住宅ローンの個別相談会を実施しています■こんな不安やお悩みはありませんか?・頭金(自己資金)0円で購入したい・リボ払いや車のローンがある・転職してまだ1ヶ月・支払が遅れたことがある・そもそも払い続けられるか不安その他にも、最適な購入のタイミングなど、失敗しないお家選びの基礎をお伝えします♪■イワクラゴールデンホームの特徴■・豊富なローン実績で審査をサポート!・現在も将来もお住替え時の売却をお手伝い!・最長60年保証(建物)で末永いお付き合い! | ||||
| 取引条件有効期限 | 2026年3月31日 | ||||
会社情報
| お問い合わせ先 |
イワクラゴールデンホーム(株)第2チーム 012028-1118(無料通話) 上記の電話番号にお問合せください。(携帯・PHS 可) 【物件番号】78309067 | ||||
|---|---|---|---|---|---|
| 会社概要 |
イワクラゴールデンホーム(株)第2チーム[愛知県知事(15)第004164号] 愛知県名古屋市港区南十一番町3-5-1 【所属団体】 愛知県知事(15)第004164号(公社)愛知県宅地建物取引業協会会員 東海不動産公正取引協議会加盟 | ||||
この物件の地図・周辺環境
このアイコンは物件のおおよその位置を表しており、実際の場所と異なる場合がございます。詳しくは不動産会社に直接ご確認ください。
※地図上に表示される物件の位置は付近住所に所在することを表すものであり、実際の物件所在地とは異なる場合がございます。
※地図の更新タイミングの関係で、物件情報が実際のものとは異なる場合や最新情報に更新されていない場合がございます。
※以下の南西諸島及び離島においては、表示される物件の位置が実際のものとは数百メートル程度ずれる場合がございます。
東京都:硫黄島・青ヶ島、沖縄県: 北大東島・南大東島・多良間島・水納島・与那国島・宮古諸島・石垣島・竹富島
取り扱い不動産会社
- 電話番号
- 012028-1118
- 受付
- 営業時間:9:00~18:00 / 定休日:毎週水曜日、木曜日
- 物件番号
- 78309067
比良駅の口コミ
お買い物・飲食
3.0
店はあるが、入りたいと思うような店はあまりない。個店の居酒屋や、チェーン店が多いため入りたいとは思わない。所得の低い地域なので必然的に大した店しかない状況ではある。
自然環境
3.0
近くに公園は沢山あるので子供を遊ばせるには問題ないです。ちょっと足を伸ばせば庄内緑地公園もあります。
住宅ローンシミュレーション
住宅ローン設定
物件価格
返済期間
頭金
ボーナス払(年1回)
※
※物件価格の80%以下でお借入れの場合
※50歳以下で一般団信をご選択の場合
※住宅ローン金利優遇割適用後の変動金利(全期間引き下げプラン)
※実際のお借入日の金利により変動します。
※審査の結果によっては保証付金利プランとなる場合があり、この場合は上記とは異なる金利となります。
※別途借入金額の2.20%(税込)の事務手数料が発生します。
ボーナス払 | 35年間返済 | 30年間返済 | 25年間返済 | 20年間返済 | 15年間返済 | 10年間返済 |
|---|---|---|---|---|---|---|
0万円 | -円/月 | -円/月 | -円/月 | -円/月 | -円/月 | -円/月 |
5万円 | -円/月 | -円/月 | -円/月 | -円/月 | -円/月 | -円/月 |
10万円 | -円/月 | -円/月 | -円/月 | -円/月 | -円/月 | -円/月 |
15万円 | -円/月 | -円/月 | -円/月 | -円/月 | -円/月 | -円/月 |
20万円 | -円/月 | -円/月 | -円/月 | -円/月 | -円/月 | -円/月 |
25万円 | -円/月 | -円/月 | -円/月 | -円/月 | -円/月 | -円/月 |
30万円 | -円/月 | -円/月 | -円/月 | -円/月 | -円/月 | -円/月 |
ボーナス払 | 35年間返済 | 30年間返済 | 25年間返済 | 20年間返済 | 15年間返済 | 10年間返済 |
|---|---|---|---|---|---|---|
0万円 | -円/月 | -円/月 | -円/月 | -円/月 | -円/月 | -円/月 |
5万円 | -円/月 | -円/月 | -円/月 | -円/月 | -円/月 | -円/月 |
10万円 | -円/月 | -円/月 | -円/月 | -円/月 | -円/月 | -円/月 |
15万円 | -円/月 | -円/月 | -円/月 | -円/月 | -円/月 | -円/月 |
20万円 | -円/月 | -円/月 | -円/月 | -円/月 | -円/月 | -円/月 |
25万円 | -円/月 | -円/月 | -円/月 | -円/月 | -円/月 | -円/月 |
30万円 | -円/月 | -円/月 | -円/月 | -円/月 | -円/月 | -円/月 |
- ・金利は、今後35年間変動しない仮定のもと元利均等返済方式で計算しております。
- ・実際の金利は、各金融機関のホームページをご参照ください。
- ・ローン契約の際には、手数料や印紙税などの諸費用が別途かかります。
- ・ボーナス支払総額が総支払額の50%を超えている場合、上記の表では「ローン不可」となります。
- ・シミュレーションを利用し、それが原因で利用者が受けたいかなる損害についても当社は一切責任を負いません。あらかじめご了承ください。
※価格は物件の代金総額を表示しており、消費税が課税される場合は税込み価格です。 (1000円未満は切り上げ。)
※写真に写っている、またはパース(絵)や間取り図に描かれている家具や車などは、特にコメントがない場合、販売価格に含まれません。
※敷地権利が定期借地権のものは価格に権利金を含みます。
※建築条件付き土地価格には、建物価格は含まれません。
※物件情報は、原則として情報提供日の2日前に最終確認した情報です。
※完成予想図はいずれも外構、植栽、外観等実際のものとは多少異なることがあります。
※モデルルーム・モデルハウス・展示場・ショールームの画像の場合、今回販売の物件と異なる場合があります。
※CG合成の画像の場合、実際とは多少異なる場合があります。
※物件特徴:販売戸数が複数の物件は、全ての住戸に該当しない項目もあります。
※0800で始まる電話番号は通話料無料です。また、サービス検証のため当該番号の利用履歴を個人が特定できない範囲で取得しています。予めご了承ください。
※完成後1年以上を経過した未入居物件が掲載される場合があります。ご了承ください。
※新着:物件情報が「SUUMO」に掲載された日から1週間表示されます。
※価格更新:物件価格が変更された日から1週間表示されます。
※販売予定物件はすべて、販売開始するまで契約または予約の申込みはできません。
※購入の前には物件内容や契約条件についてご自身で十分な確認をしていただくようにお願いいたします。
※建築条件土地の情報内に掲載されている、建物プラン例は、土地購入者の設計プランの参考の一例であって、プランの採用可否は任意です。
※土地(建築条件なし)で「建物プラン例」が表記してある時、そのプラン例は特定の建築請負会社によるもので、当該建築請負会社以外で建てた場合、同様のものが同価格で建てられるとは限りません。また建築請負会社を特定するものではありません。
※建築条件付き土地とは、その土地に建築する建物の建築請負契約が、一定期間内に成立することを条件として売買される土地のことをいいます。建築請負契約成立に向けて設計プランを協議するため、土地購入者が自己の希望する建物の設計協議をするために必要な相当の期間の交渉期間が設定され、その期間内で希望を満たすプランが実現できたかどうかにより結論を出します。なお、この期間は概ね3ヶ月程度とされています。納得のいくプランが出来ず、建築請負契約が成立しない場合、土地売買契約は白紙に戻り、土地契約にかかった代金(土地代金、手付金など)は名目のいかんに関わらず、全て返却されます。



















