一戸建て【エサキホーム】E’s garden 西尾市中畑の詳細情報
3650万円~4080万円
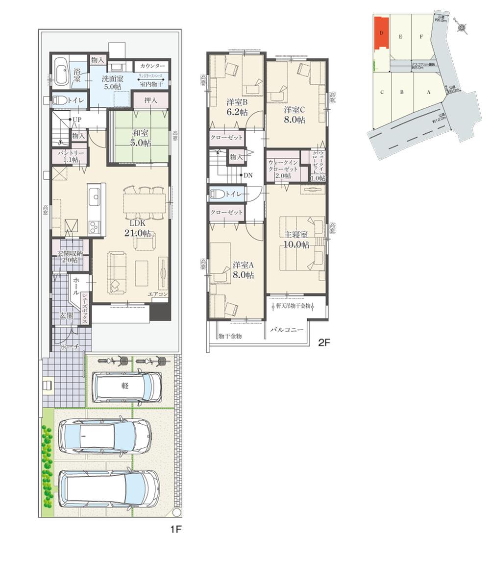
月々のローン返済額を試算ご成約特典対象物件!◆5LDK×LDK20帖以上×ランドリースペース
外観・室内・設備(28枚)

ホスクリーン
ポールがワンタッチで着脱可能なスポット型物干し。 非使用時は壁掛けフックに収納でお部屋スッキリ。雨や台風のシーズンや花粉の季節でも安心して洗濯物を干せる。急な雨の時もパッと室内に取り込むのに便利。*F棟:洗面室設置

住宅性能評価取得
設計・施工段階において住宅性能評価書を取得。住宅性能評価は、「住宅の品質確保の促進等に関する法律(品確法)」に基づき、第三者機関によるチェックを受けて住宅の品質の確かさを裏付けるものです。安心して長く住み続けていただくために自社検査だけでなく第三者による4回の検査体制により、性能と品質を確保しています。

全棟で構造計算を実施
柱と梁で軸組を構成する木造住宅の伝統的な建築工法「木造軸組工法」を採用。柱・梁・筋交いの他、面材耐力壁を使用したオリジナル壁式工法です。集成材や接合部、壁面などに現代のテクノロジーを採用することで優れた強度と耐久性を兼ね備えた家を実現しています。また、1邸1邸一般的に用いられる簡略な構造計算ではなく、鉄骨・RC造住宅で用いられる「許容応力度計算」を行いより高い耐震性を確保しています。
周辺環境・アクセス(11枚)
物件概要
| 物件名 | 【エサキホーム】E’s garden 西尾市中畑 | ||||
|---|---|---|---|---|---|
| 所在地 | 愛知県西尾市中畑1-61-2他 | ||||
| 交通 |
名鉄西尾線「西尾」歩47分 名鉄バス「平坂小南」歩14分 六万石くるりんバス「中畑保育園」歩1分 | ||||
| 構造および階数 | A・B・C・F棟:木造瓦及びガルバリウム鋼板葺2階建、D棟:木造瓦葺2階建 | 建ぺい率・容積率 | 建ぺい率60%、容積率150% | ||
| 完成予定日 | 2025年6月 | 入居可能予定日 | 即引渡可 | ||
| 土地権利 | 所有権 | ||||
| 駐車場 | - | 国土法届出 | - | ||
| 地目 | 宅地 | 道路付け | 道路幅:5m、アスファルト舗装、公道南西側約12.0m、公道南東側約5.9~6.0m、私道負担/A棟1.68㎡、D棟49.73㎡、F棟3.00㎡(各々敷地面積に含む) | ||
| 機構融資 | - | 取引態様 | 売主 | ||
| 用途地域 | 2種中高、1種中高 | ||||
| 施工会社 | 株式会社エサキホーム | ||||
| 建築確認番号 | - | ||||
| 設備 | 長期優良住宅認定通知書 / 設計住宅性能評価書 / フラット35・S適合証明書 / 省エネルギー対策 / フラット35Sに対応 / 高気密高断熱住宅 / 地盤調査済 / 年内引渡可 / 駐車3台以上可 / LDK20畳以上 / 省エネ給湯器 / 南向き / システムキッチン / 浴室乾燥機 / 陽当り良好 / 全居室収納 / 駅まで平坦 / 閑静な住宅地 / 角地 / 和室 / シャワー付洗面化粧台 / 対面式キッチン / バリアフリー / トイレ2ヶ所 / 浴室1坪以上 / 2階建 / 南面バルコニー / 複層ガラス / オートバス / 温水洗浄便座 / 床下収納 / 浴室に窓 / TVモニタ付インターホン / 節水型トイレ / 都市近郊 / 通風良好 / パントリー(食器・食品の収納庫) / ウォークインクローゼット / IHクッキングヒーター / 全居室複層ガラスか複層サッシ / シューズインクローク / 全室2面採光 / 小学校 徒歩10分以内 / 食器洗乾燥機 / オール電化 / 浄水器 / スマートキー | ||||
| その他制限事項 | 宅地造成工事規制区域、高度地区、日影制限有、通行地役権/A棟の敷地面積のうち1.68㎡はB・D・E・F棟の通行地役権、D棟の敷地面積のうち49.73㎡はA・B・E・F棟の通行地役権、E棟の敷地面積のうち50.14㎡はA・B・D・F棟の通行地役権、F棟の敷地面積のうち3.00㎡はA・B・D・E棟の通行地役権が各々設定されます。 | ||||
| 備考 | 宅地造成工事規制区域、高度地区、日影制限有、通行地役権/A棟の敷地面積のうち1.68㎡はB・D・E・F棟の通行地役権、D棟の敷地面積のうち49.73㎡はA・B・E・F棟の通行地役権、E棟の敷地面積のうち50.14㎡はA・B・D・F棟の通行地役権、F棟の敷地面積のうち3.00㎡はA・B・D・E棟の通行地役権が各々設定されます。 / 設備:公営上下水道、中部電力(オール電化) | ||||
情報更新日:2025/12/12 次回更新予定日:情報提供より8日以内
販売概要
| 販売価格 | 3650万円~4080万円 お問い合わせはこちら | ||||
|---|---|---|---|---|---|
| 販売スケジュール | 『先着順申込受付中 お気軽にお問合せください』 | ||||
| 販売戸数/総戸数 | 5戸/6戸 | ||||
| 最多価格帯 | - | ||||
| 間取り | 5LDK | ||||
| 建物面積 | 140.37㎡~143.71㎡(42.46坪~43.47坪) | 土地面積 | 163.02㎡~214.73㎡(49.31坪~64.95坪) | ||
| その他施設費用、償却費 | - | ||||
| その他費用 | 売り主物件の、仲介手数料なしでご購入いただけます。詳細については、係員までお問合せください。 | ||||
| 登録受付 | - | 抽選日 | - | ||
| モデルルーム情報 | 現地見学会(事前に必ずお問い合わせください)日程/毎週土日祝時間/10:00~17:00初めての住宅購入は分からないことがたくさん。「そろそろ家が欲しいけど、何から始めればいいの?」「エサキホームってどんな住宅なの?」「月々の支払いはいくらくらい?」などなど、この機会にぜひエサキホームにご来場いただき、お気軽にご相談ください。◆秋冬の生活応援キャンペーン◆新生活を迎えるお客様に感謝を込めて、エサキホームからのプレゼント期間:2025年10月22日(水)~2025年12月15日(月)対象:生活応援キャンペーン対象物件を2025年10月22日(水)から2025年12月15日(月)までにご契約いただき、2025年12月26日(金)までにお引き渡し可能な方に最大3つのご成約プレゼント※ご成約物件により点数は異なります◇みどころポイント◇(1) 自然と家族が集まる広々リビング(2) 趣味やライフスタイル、季節の移り変わりとともに変わる気分に沿って利用可能な4LDK+1自由空間(3) 生活動線を研究し尽くし、 適材適所に配置した豊富な収納(4) ハイドア、廊下幅、フローリングなど各所の空間の美を演出する工夫【おおよその所要時間】 ■受付後、物件のご案内(約30分) ■住まいへのお悩みや資金計画などに関するご相談(約20分)※地域、エリアの詳しい情報や相場についてもご説明させていただけます!※事前にこんな情報が欲しい!こんなサポートをしてもらえたらうれしい!といったお声などもお気軽にお寄せください! | ||||
| 取引条件有効期限 | 2026年1月25日 | ||||
会社情報
| お問い合わせ先 |
(株)エサキホーム岡崎支店 0120-191183(無料通話) 上記の電話番号にお問合せください。(携帯・PHS 可) 【物件番号】77201179 | ||||
|---|---|---|---|---|---|
| 会社概要 |
(株)エサキホーム岡崎支店[国土交通大臣(4)第007260号] - | ||||
この物件の地図・周辺環境
このアイコンは物件のおおよその位置を表しており、実際の場所と異なる場合がございます。詳しくは不動産会社に直接ご確認ください。
※地図上に表示される物件の位置は付近住所に所在することを表すものであり、実際の物件所在地とは異なる場合がございます。
※地図の更新タイミングの関係で、物件情報が実際のものとは異なる場合や最新情報に更新されていない場合がございます。
※以下の南西諸島及び離島においては、表示される物件の位置が実際のものとは数百メートル程度ずれる場合がございます。
東京都:硫黄島・青ヶ島、沖縄県: 北大東島・南大東島・多良間島・水納島・与那国島・宮古諸島・石垣島・竹富島
取り扱い不動産会社
- 電話番号
- 0120-191183
- 受付
- 営業時間:9:00~18:00
- 物件番号
- 77201179
西尾駅の口コミ
お買い物・飲食
3.0
駅に近く、大型ショッピングモールや商店街もあるため飲食店もたくさんあり買い物するにもとても便利です。
住宅ローンシミュレーション
住宅ローン設定
物件価格
返済期間
頭金
ボーナス払(年1回)
※
※物件価格の80%以下でお借入れの場合
※50歳以下で一般団信をご選択の場合
※住宅ローン金利優遇割適用後の変動金利(全期間引き下げプラン)
※実際のお借入日の金利により変動します。
※審査の結果によっては保証付金利プランとなる場合があり、この場合は上記とは異なる金利となります。
※別途借入金額の2.20%(税込)の事務手数料が発生します。
ボーナス払 | 35年間返済 | 30年間返済 | 25年間返済 | 20年間返済 | 15年間返済 | 10年間返済 |
|---|---|---|---|---|---|---|
0万円 | -円/月 | -円/月 | -円/月 | -円/月 | -円/月 | -円/月 |
5万円 | -円/月 | -円/月 | -円/月 | -円/月 | -円/月 | -円/月 |
10万円 | -円/月 | -円/月 | -円/月 | -円/月 | -円/月 | -円/月 |
15万円 | -円/月 | -円/月 | -円/月 | -円/月 | -円/月 | -円/月 |
20万円 | -円/月 | -円/月 | -円/月 | -円/月 | -円/月 | -円/月 |
25万円 | -円/月 | -円/月 | -円/月 | -円/月 | -円/月 | -円/月 |
30万円 | -円/月 | -円/月 | -円/月 | -円/月 | -円/月 | -円/月 |
ボーナス払 | 35年間返済 | 30年間返済 | 25年間返済 | 20年間返済 | 15年間返済 | 10年間返済 |
|---|---|---|---|---|---|---|
0万円 | -円/月 | -円/月 | -円/月 | -円/月 | -円/月 | -円/月 |
5万円 | -円/月 | -円/月 | -円/月 | -円/月 | -円/月 | -円/月 |
10万円 | -円/月 | -円/月 | -円/月 | -円/月 | -円/月 | -円/月 |
15万円 | -円/月 | -円/月 | -円/月 | -円/月 | -円/月 | -円/月 |
20万円 | -円/月 | -円/月 | -円/月 | -円/月 | -円/月 | -円/月 |
25万円 | -円/月 | -円/月 | -円/月 | -円/月 | -円/月 | -円/月 |
30万円 | -円/月 | -円/月 | -円/月 | -円/月 | -円/月 | -円/月 |
- ・金利は、今後35年間変動しない仮定のもと元利均等返済方式で計算しております。
- ・実際の金利は、各金融機関のホームページをご参照ください。
- ・ローン契約の際には、手数料や印紙税などの諸費用が別途かかります。
- ・ボーナス支払総額が総支払額の50%を超えている場合、上記の表では「ローン不可」となります。
- ・シミュレーションを利用し、それが原因で利用者が受けたいかなる損害についても当社は一切責任を負いません。あらかじめご了承ください。
※価格は物件の代金総額を表示しており、消費税が課税される場合は税込み価格です。 (1000円未満は切り上げ。)
※写真に写っている、またはパース(絵)や間取り図に描かれている家具や車などは、特にコメントがない場合、販売価格に含まれません。
※敷地権利が定期借地権のものは価格に権利金を含みます。
※建築条件付き土地価格には、建物価格は含まれません。
※物件情報は、原則として情報提供日の2日前に最終確認した情報です。
※完成予想図はいずれも外構、植栽、外観等実際のものとは多少異なることがあります。
※モデルルーム・モデルハウス・展示場・ショールームの画像の場合、今回販売の物件と異なる場合があります。
※CG合成の画像の場合、実際とは多少異なる場合があります。
※物件特徴:販売戸数が複数の物件は、全ての住戸に該当しない項目もあります。
※0800で始まる電話番号は通話料無料です。また、サービス検証のため当該番号の利用履歴を個人が特定できない範囲で取得しています。予めご了承ください。
※完成後1年以上を経過した未入居物件が掲載される場合があります。ご了承ください。
※新着:物件情報が「SUUMO」に掲載された日から1週間表示されます。
※価格更新:物件価格が変更された日から1週間表示されます。
※販売予定物件はすべて、販売開始するまで契約または予約の申込みはできません。
※購入の前には物件内容や契約条件についてご自身で十分な確認をしていただくようにお願いいたします。
※建築条件土地の情報内に掲載されている、建物プラン例は、土地購入者の設計プランの参考の一例であって、プランの採用可否は任意です。
※土地(建築条件なし)で「建物プラン例」が表記してある時、そのプラン例は特定の建築請負会社によるもので、当該建築請負会社以外で建てた場合、同様のものが同価格で建てられるとは限りません。また建築請負会社を特定するものではありません。
※建築条件付き土地とは、その土地に建築する建物の建築請負契約が、一定期間内に成立することを条件として売買される土地のことをいいます。建築請負契約成立に向けて設計プランを協議するため、土地購入者が自己の希望する建物の設計協議をするために必要な相当の期間の交渉期間が設定され、その期間内で希望を満たすプランが実現できたかどうかにより結論を出します。なお、この期間は概ね3ヶ月程度とされています。納得のいくプランが出来ず、建築請負契約が成立しない場合、土地売買契約は白紙に戻り、土地契約にかかった代金(土地代金、手付金など)は名目のいかんに関わらず、全て返却されます。














































