NEW一戸建て花園2(東青森駅) 2570万円の詳細情報
2570万円
月々のローン返済額を試算この物件は未完成のため、掲載写真(外観、内観、設備等)には、施工例が含まれている場合があります。物件詳細については、掲載の不動産会社宛にお問合せください。
外観・室内・設備(18枚)
物件概要
| 物件名 | 花園2(東青森駅) 2570万円 | ||||
|---|---|---|---|---|---|
| 所在地 | 青森県青森市花園2 | ||||
| 交通 |
青い森鉄道「東青森」歩29分 | ||||
| 構造および階数 | 木造2階建(2×4工法) | 建ぺい率・容積率 | 60%・200% | ||
| 完成予定日 | 2026年3月 | 入居可能予定日 | 相談 | ||
| 土地権利 | 所有権 | ||||
| 駐車場 | - | 国土法届出 | - | ||
| 地目 | - | 道路付け | 無、南5.1m幅(接道幅8.8m) | ||
| 機構融資 | - | 取引態様 | 仲介 | ||
| 用途地域 | 1種中高 | ||||
| 施工会社 | 株式会社ジェイホーム | ||||
| 建築確認番号 | R07確認建セ青青森第0316号 | ||||
| 設備 | 設計住宅性能評価書 / 建築確認完了検査済証 / フラット35・S適合証明書 / 省エネルギー対策 / フラット35Sに対応 / 地盤調査済 / 駐車2台可 / 省エネ給湯器 / スーパー 徒歩10分以内 / 南向き / システムキッチン / 全居室収納 / 南側道路面す / 閑静な住宅地 / 整形地 / シャワー付洗面化粧台 / EV車充電設備 / 浴室1坪以上 / 2階建 / 複層ガラス / オートバス / 温水洗浄便座 / 吹抜け / TVモニタ付インターホン / 節水型トイレ / 全居室フローリング / ウォークインクローゼット / リビング階段 / 小学校 徒歩10分以内 / 平坦地 / 食器洗乾燥機 / 周辺交通量少なめ | ||||
| その他制限事項 | 景観法による規制有、日影制限有 | ||||
| 備考 | 景観法による規制有、日影制限有 / 設備:公営水道、本下水、個別LPG、建築確認番号:R07確認建セ青青森第0316号、駐車場:カースペース | ||||
情報更新日:2025/10/29 次回更新予定日:情報提供より8日以内
販売概要
| 販売価格 | 2570万円 お問い合わせはこちら | ||||
|---|---|---|---|---|---|
| 販売スケジュール | - | ||||
| 販売戸数/総戸数 | 1戸/- | ||||
| 最多価格帯 | - | ||||
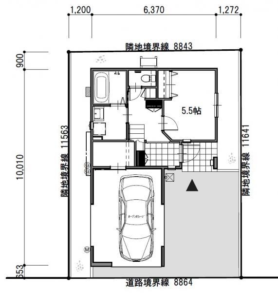
| 間取り | 3LDK | ||||
| 建物面積 | 80.16㎡(実測) | 土地面積 | 102.72㎡(実測) | ||
| その他施設費用、償却費 | - | ||||
| その他費用 | 水道加入金:13万2000円/一括、瑕疵担保責任保険料:5万5000円/一括 | ||||
| 登録受付 | - | 抽選日 | - | ||
| モデルルーム情報 | - | ||||
| 取引条件有効期限 | - | ||||
会社情報
| お問い合わせ先 |
クロタキ不動産(株) 017-723-1996 上記の電話番号にお問合せください。(携帯・PHS 可) 【物件番号】78681450 | ||||
|---|---|---|---|---|---|
| 会社概要 |
クロタキ不動産(株)[青森県知事(6)第002758号] 青森県青森市安方2-9-16 【所属団体】 青森県知事(6)第002758号(公社)全日本不動産協会青森県本部会員 東北地区不動産公正取引協議会加盟 | ||||
取り扱い不動産会社
- 電話番号
- 017-723-1996
- 受付
- 営業時間:9:00~18:00 / 定休日:水曜
- 物件番号
- 78681450
イエステーション 青森中央店 クロタキ不動産株式会社
クロタキ不動産(株)
住宅ローンシミュレーション
住宅ローン設定
物件価格
返済期間
頭金
ボーナス払(年1回)
※
※物件価格の80%以下でお借入れの場合
※50歳以下で一般団信をご選択の場合
※住宅ローン金利優遇割適用後の変動金利(全期間引き下げプラン)
※実際のお借入日の金利により変動します。
※審査の結果によっては保証付金利プランとなる場合があり、この場合は上記とは異なる金利となります。
※別途借入金額の2.20%(税込)の事務手数料が発生します。
ボーナス払 | 35年間返済 | 30年間返済 | 25年間返済 | 20年間返済 | 15年間返済 | 10年間返済 |
|---|---|---|---|---|---|---|
0万円 | -円/月 | -円/月 | -円/月 | -円/月 | -円/月 | -円/月 |
5万円 | -円/月 | -円/月 | -円/月 | -円/月 | -円/月 | -円/月 |
10万円 | -円/月 | -円/月 | -円/月 | -円/月 | -円/月 | -円/月 |
15万円 | -円/月 | -円/月 | -円/月 | -円/月 | -円/月 | -円/月 |
20万円 | -円/月 | -円/月 | -円/月 | -円/月 | -円/月 | -円/月 |
25万円 | -円/月 | -円/月 | -円/月 | -円/月 | -円/月 | -円/月 |
30万円 | -円/月 | -円/月 | -円/月 | -円/月 | -円/月 | -円/月 |
ボーナス払 | 35年間返済 | 30年間返済 | 25年間返済 | 20年間返済 | 15年間返済 | 10年間返済 |
|---|---|---|---|---|---|---|
0万円 | -円/月 | -円/月 | -円/月 | -円/月 | -円/月 | -円/月 |
5万円 | -円/月 | -円/月 | -円/月 | -円/月 | -円/月 | -円/月 |
10万円 | -円/月 | -円/月 | -円/月 | -円/月 | -円/月 | -円/月 |
15万円 | -円/月 | -円/月 | -円/月 | -円/月 | -円/月 | -円/月 |
20万円 | -円/月 | -円/月 | -円/月 | -円/月 | -円/月 | -円/月 |
25万円 | -円/月 | -円/月 | -円/月 | -円/月 | -円/月 | -円/月 |
30万円 | -円/月 | -円/月 | -円/月 | -円/月 | -円/月 | -円/月 |
- ・金利は、今後35年間変動しない仮定のもと元利均等返済方式で計算しております。
- ・実際の金利は、各金融機関のホームページをご参照ください。
- ・ローン契約の際には、手数料や印紙税などの諸費用が別途かかります。
- ・ボーナス支払総額が総支払額の50%を超えている場合、上記の表では「ローン不可」となります。
- ・シミュレーションを利用し、それが原因で利用者が受けたいかなる損害についても当社は一切責任を負いません。あらかじめご了承ください。
※価格は物件の代金総額を表示しており、消費税が課税される場合は税込み価格です。 (1000円未満は切り上げ。)
※写真に写っている、またはパース(絵)や間取り図に描かれている家具や車などは、特にコメントがない場合、販売価格に含まれません。
※敷地権利が定期借地権のものは価格に権利金を含みます。
※建築条件付き土地価格には、建物価格は含まれません。
※物件情報は、原則として情報提供日の2日前に最終確認した情報です。
※完成予想図はいずれも外構、植栽、外観等実際のものとは多少異なることがあります。
※モデルルーム・モデルハウス・展示場・ショールームの画像の場合、今回販売の物件と異なる場合があります。
※CG合成の画像の場合、実際とは多少異なる場合があります。
※物件特徴:販売戸数が複数の物件は、全ての住戸に該当しない項目もあります。
※0800で始まる電話番号は通話料無料です。また、サービス検証のため当該番号の利用履歴を個人が特定できない範囲で取得しています。予めご了承ください。
※完成後1年以上を経過した未入居物件が掲載される場合があります。ご了承ください。
※新着:物件情報が「SUUMO」に掲載された日から1週間表示されます。
※価格更新:物件価格が変更された日から1週間表示されます。
※販売予定物件はすべて、販売開始するまで契約または予約の申込みはできません。
※購入の前には物件内容や契約条件についてご自身で十分な確認をしていただくようにお願いいたします。
※建築条件土地の情報内に掲載されている、建物プラン例は、土地購入者の設計プランの参考の一例であって、プランの採用可否は任意です。
※土地(建築条件なし)で「建物プラン例」が表記してある時、そのプラン例は特定の建築請負会社によるもので、当該建築請負会社以外で建てた場合、同様のものが同価格で建てられるとは限りません。また建築請負会社を特定するものではありません。
※建築条件付き土地とは、その土地に建築する建物の建築請負契約が、一定期間内に成立することを条件として売買される土地のことをいいます。建築請負契約成立に向けて設計プランを協議するため、土地購入者が自己の希望する建物の設計協議をするために必要な相当の期間の交渉期間が設定され、その期間内で希望を満たすプランが実現できたかどうかにより結論を出します。なお、この期間は概ね3ヶ月程度とされています。納得のいくプランが出来ず、建築請負契約が成立しない場合、土地売買契約は白紙に戻り、土地契約にかかった代金(土地代金、手付金など)は名目のいかんに関わらず、全て返却されます。




















