一戸建てポラスの分譲住宅 【予告広告】リーズン天王台プロジェクト(仮称)/予告広告の詳細情報
この広告は予告広告です。販売を開始するまでは、契約または予約(仮予約を含む)のお申込みには一切応じられませんのでご了承ください。
価格または販売方法が未定の場合は、新規分譲広告にて確定情報をお知らせします。
この物件は未完成のため、掲載写真(外観、内観、設備等)には、施工例が含まれている場合があります。物件詳細については、掲載の不動産会社宛にお問合せください。
【ポラスの分譲】■3駅2路線利用可■敷地面積135㎡以上確保×全46邸
外観・室内・設備(17枚)

キッチン
【キッチン/トクラスBb】デザインの美しさと機能性、ふたつの面を追求したトクラスキッチン。開放的でのびのびとした使い心地に、水栓、収納、お手入れのしやすさに至るまできめ細やかな配慮が感じられます。

【ハイブリッド給湯・暖房システム「ECO ONE X5」】
【ハイブリッド給湯・暖房システム「ECO ONE X5」】ガスと電気の特性を併用したハイブリッド給湯・暖房システム。電気で効率良くお湯を沸かし、ガスで使いたい時にいつでも十分な給湯を実現。お湯や床暖房の利用状況に応じて適切に使い分けることで、光熱費を抑え、環境にもやさしいエコで快適な暮らしを実現します。

【全棟に倒壊シミュレーションを実施】
ポラスでは、独自の倒壊シミュレーター「ウッド・イノベーターNEXT」を用いて一邸ごとにオーダーメイドの耐震検証を実施。過去に実際に起きた大地震のデータを元に、揺れ方や負荷を3Dで解析できます。

【全棟に構造計算を実施】
法律では義務付けられていない木造2階建においても全棟で構造計算(許容応力度計算)を実施。耐震強度を確保しながらも、一棟一棟ごとに、優れた居住性・快適性・デザイン性を備えた間取設計を行っています。

【材料から自社にて製造】
ポラスの住宅の品質を支えているのが、最新鋭のプレカット工場です。日本最大級の工場において、正確に加工された構造材が使用され、地震などの外力の影響を受けやすい躯体接合部の強度を大幅に向上させています。

【敷地調査・地盤改良】
ポラスでは、限られた土地資産を最大限に活用するため、一棟一棟で、地耐力、土質、地下水などの地盤状況を綿密に調査。その地盤に合わせた正確で最適な工法で必要に応じて地盤改良を施工しています。
周辺環境・アクセス(9枚)
物件概要
| 物件名 | ポラスの分譲住宅 【予告広告】リーズン天王台プロジェクト(仮称)/予告広告 | ||||
|---|---|---|---|---|---|
| 所在地 | 千葉県我孫子市高野山字小暮548-18(地番)他 | ||||
| 交通 |
JR常磐線「天王台」歩15分 JR成田線「東我孫子」歩19分 JR常磐線「我孫子」バス14分高野山歩5分 | ||||
| 構造および階数 | 木造2階建(在来工法) | 建ぺい率・容積率 | 建ぺい率60% 容積率200% | ||
| 完成予定日 | 2025年12月22日予定 | 入居可能予定日 | 2026年1月30日予定 | ||
| 土地権利 | 所有権 | ||||
| 駐車場 | - | 国土法届出 | - | ||
| 地目 | 宅地 | 道路付け | 道路幅:6m、アスファルト舗装、[私道負担]なし [道路]公道 | ||
| 機構融資 | - | 取引態様 | 売主 | ||
| 用途地域 | 1種住居 | ||||
| 施工会社 | ポラテック(株) | ||||
| 建築確認番号 | 2025年6月19日第SJK-KX255608020号(1号棟)他 | ||||
| 設備 | 省エネルギー対策 / フラット35Sに対応 / 駐車2台可 / 2沿線以上利用可 / 年度内引渡可 / 省エネ給湯器 / システムキッチン / 陽当り良好 / 閑静な住宅地 / LDK15畳以上 / 庭 / シャワー付洗面化粧台 / 対面式キッチン / セキュリティ充実 / トイレ2ヶ所 / 浴室1坪以上 / 2階建 / 温水洗浄便座 / 床下収納 / 浴室に窓 / TVモニタ付インターホン / 節水型トイレ / 緑豊かな住宅地 / 都市近郊 / 通風良好 / パントリー(食器・食品の収納庫) / ウォークインクローゼット / 天井高2.5m以上 / 都市ガス / シューズインクローク / 小学校 徒歩10分以内 / 床暖房 / 食器洗乾燥機 / 浄水器 / スマートキー / 高機能トイレ | ||||
| その他制限事項 | - | ||||
| 備考 | 設備:公営水道、東京電力・他、都市ガス、個別浄化槽、カースペース、外構、植栽その他付帯設備一式、建築確認番号:2025年6月19日第SJK-KX255608020号(1号棟)他、【予告広告】本広告を行い取引を開始するまでは、契約または予約の申込みに一切応じられません。 また申込みの順位の確保に関する措置は講じられません。 販売開始予定:2026年1月上旬。 ■その他の設備 公営水道/東京電力・他/都市ガス/個別浄化槽/カースペース/外構/植栽その他付帯設備一式 | ||||
情報更新日:2025/11/22 次回更新予定日:情報提供より8日以内
販売概要
| 販売価格 | 販売価格未定(予告広告) お問い合わせはこちら | ||||
|---|---|---|---|---|---|
| 販売スケジュール | 1月上旬より販売開始販売予定時期:2026年1月上旬 | ||||
| 販売戸数/総戸数 | 8戸/54戸 | ||||
| 予定最多価格帯 | - | ||||
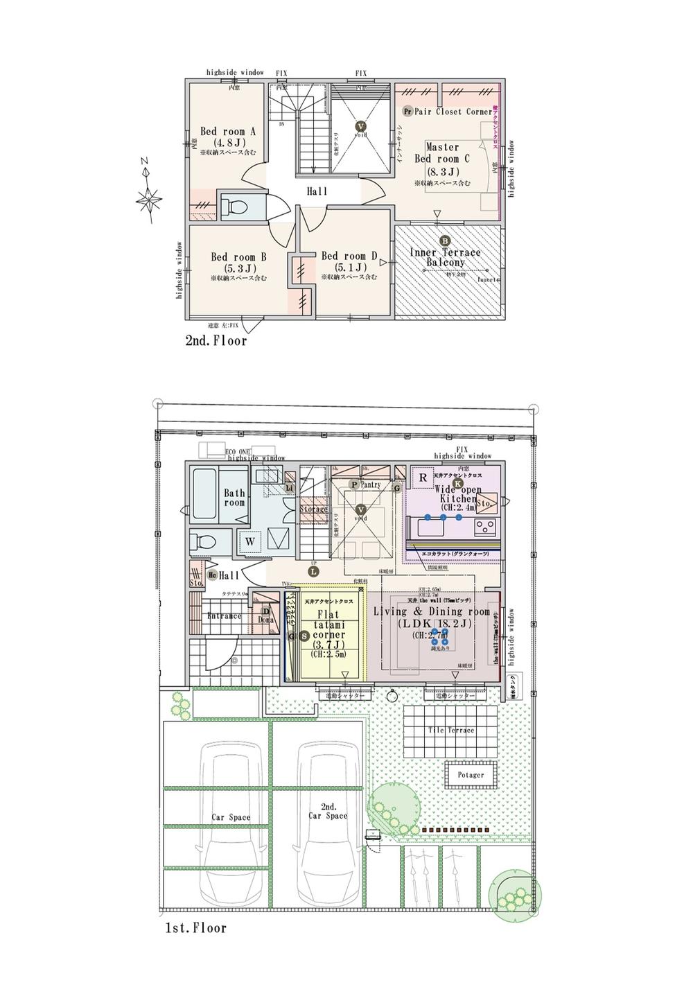
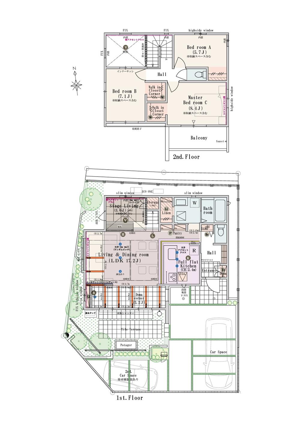
| 間取り | 3LDK~5LDK | ||||
| 建物面積 | 100.52㎡~113.39㎡ | 土地面積 | 157.63㎡~182.98㎡(登記) | ||
| その他施設費用、償却費 | - | ||||
| その他費用 | - | ||||
| 登録受付 | - | 抽選日 | - | ||
| モデルルーム情報 | 現地見学会(事前に必ず予約してください)日程/公開中【現地見学会開催中】開催日時:11月22日(土)23日(日)24日(月・祝)10:00~17:00(要予約)◇お電話でのお問い合わせは0120-88-4950(通話料無料)までお気軽にどうぞ!!◆お気軽にご相談ください◆マイホーム購入は人生の大切なご決断です。気になる点は何でもお気軽にご相談ください。当社スタッフがご納得いただけるまでご相談をお受けいたします。◆お客様のご都合に合わせてご案内できます◆「知りたい情報だけ」という短時間のご案内も可能です。事前に予定をお伝えください!◆詳しい資料やパンフレットもご用意しております◆ご見学した物件以外でもお客様のお探しの条件をお伝えいただければ条件に合った物件をご紹介いたします。◆住宅ローンに関するご相談◆物件購入するのにいくらかかるの?いくらの物件を購入できるの?など、住宅ローンに関するご相談だけでも大歓迎です。 | ||||
| 取引条件有効期限 | 2025年11月24日 | ||||
会社情報
| お問い合わせ先 |
(株)中央住宅戸建分譲千葉事業部 0120-884950(無料通話) 上記の電話番号にお問合せください。(携帯・PHS 可) 【物件番号】78181265 | ||||
|---|---|---|---|---|---|
| 会社概要 |
(株)中央住宅戸建分譲千葉事業部[国土交通大臣(13)第002401号] - | ||||
取り扱い不動産会社
- 電話番号
- 0120-884950
- 受付
- 営業時間:AM9:00~PM7:00 / 定休日:火曜日水曜日
- 物件番号
- 78181265
ポラスグループ 株式会社中央住宅 戸建分譲千葉事業部
天王台駅の口コミ
お買い物・飲食
3.0
スーパーが複数あって選べる。 24h営業のスーパーや業務スーパーもあり 目的によって最安値で買える。 薬局、ドラッグストアも多く便利。 お店によって価格帯も変わるので注意。
お買い物・飲食
5.0
スーパーが駅周辺だけでも何ヶ所もある為かなり便利です。飲食店は駅前、反対口の方に多めですが、比較的便利な程度にはあるので、困りません。
住宅ローンシミュレーション
住宅ローン設定
物件価格
返済期間
頭金
ボーナス払(年1回)
※
※物件価格の80%以下でお借入れの場合
※50歳以下で一般団信をご選択の場合
※住宅ローン金利優遇割適用後の変動金利(全期間引き下げプラン)
※実際のお借入日の金利により変動します。
※審査の結果によっては保証付金利プランとなる場合があり、この場合は上記とは異なる金利となります。
※別途借入金額の2.20%(税込)の事務手数料が発生します。
ボーナス払 | 35年間返済 | 30年間返済 | 25年間返済 | 20年間返済 | 15年間返済 | 10年間返済 |
|---|---|---|---|---|---|---|
0万円 | -円/月 | -円/月 | -円/月 | -円/月 | -円/月 | -円/月 |
5万円 | -円/月 | -円/月 | -円/月 | -円/月 | -円/月 | -円/月 |
10万円 | -円/月 | -円/月 | -円/月 | -円/月 | -円/月 | -円/月 |
15万円 | -円/月 | -円/月 | -円/月 | -円/月 | -円/月 | -円/月 |
20万円 | -円/月 | -円/月 | -円/月 | -円/月 | -円/月 | -円/月 |
25万円 | -円/月 | -円/月 | -円/月 | -円/月 | -円/月 | -円/月 |
30万円 | -円/月 | -円/月 | -円/月 | -円/月 | -円/月 | -円/月 |
ボーナス払 | 35年間返済 | 30年間返済 | 25年間返済 | 20年間返済 | 15年間返済 | 10年間返済 |
|---|---|---|---|---|---|---|
0万円 | -円/月 | -円/月 | -円/月 | -円/月 | -円/月 | -円/月 |
5万円 | -円/月 | -円/月 | -円/月 | -円/月 | -円/月 | -円/月 |
10万円 | -円/月 | -円/月 | -円/月 | -円/月 | -円/月 | -円/月 |
15万円 | -円/月 | -円/月 | -円/月 | -円/月 | -円/月 | -円/月 |
20万円 | -円/月 | -円/月 | -円/月 | -円/月 | -円/月 | -円/月 |
25万円 | -円/月 | -円/月 | -円/月 | -円/月 | -円/月 | -円/月 |
30万円 | -円/月 | -円/月 | -円/月 | -円/月 | -円/月 | -円/月 |
- ・金利は、今後35年間変動しない仮定のもと元利均等返済方式で計算しております。
- ・実際の金利は、各金融機関のホームページをご参照ください。
- ・ローン契約の際には、手数料や印紙税などの諸費用が別途かかります。
- ・ボーナス支払総額が総支払額の50%を超えている場合、上記の表では「ローン不可」となります。
- ・シミュレーションを利用し、それが原因で利用者が受けたいかなる損害についても当社は一切責任を負いません。あらかじめご了承ください。
※価格は物件の代金総額を表示しており、消費税が課税される場合は税込み価格です。 (1000円未満は切り上げ。)
※写真に写っている、またはパース(絵)や間取り図に描かれている家具や車などは、特にコメントがない場合、販売価格に含まれません。
※敷地権利が定期借地権のものは価格に権利金を含みます。
※建築条件付き土地価格には、建物価格は含まれません。
※物件情報は、原則として情報提供日の2日前に最終確認した情報です。
※完成予想図はいずれも外構、植栽、外観等実際のものとは多少異なることがあります。
※モデルルーム・モデルハウス・展示場・ショールームの画像の場合、今回販売の物件と異なる場合があります。
※CG合成の画像の場合、実際とは多少異なる場合があります。
※物件特徴:販売戸数が複数の物件は、全ての住戸に該当しない項目もあります。
※0800で始まる電話番号は通話料無料です。また、サービス検証のため当該番号の利用履歴を個人が特定できない範囲で取得しています。予めご了承ください。
※完成後1年以上を経過した未入居物件が掲載される場合があります。ご了承ください。
※新着:物件情報が「SUUMO」に掲載された日から1週間表示されます。
※価格更新:物件価格が変更された日から1週間表示されます。
※販売予定物件はすべて、販売開始するまで契約または予約の申込みはできません。
※購入の前には物件内容や契約条件についてご自身で十分な確認をしていただくようにお願いいたします。
※建築条件土地の情報内に掲載されている、建物プラン例は、土地購入者の設計プランの参考の一例であって、プランの採用可否は任意です。
※土地(建築条件なし)で「建物プラン例」が表記してある時、そのプラン例は特定の建築請負会社によるもので、当該建築請負会社以外で建てた場合、同様のものが同価格で建てられるとは限りません。また建築請負会社を特定するものではありません。
※建築条件付き土地とは、その土地に建築する建物の建築請負契約が、一定期間内に成立することを条件として売買される土地のことをいいます。建築請負契約成立に向けて設計プランを協議するため、土地購入者が自己の希望する建物の設計協議をするために必要な相当の期間の交渉期間が設定され、その期間内で希望を満たすプランが実現できたかどうかにより結論を出します。なお、この期間は概ね3ヶ月程度とされています。納得のいくプランが出来ず、建築請負契約が成立しない場合、土地売買契約は白紙に戻り、土地契約にかかった代金(土地代金、手付金など)は名目のいかんに関わらず、全て返却されます。

























