NEW新築売戸建住宅千葉県千葉市緑区高田町の新築売戸建住宅の詳細情報
この物件は未完成のため、掲載写真(外観、内観、設備等)には、施工例が含まれている場合があります。物件詳細については、掲載の不動産会社宛にお問合せください。
掲載期限まであと13日
物件概要
| 物件名 | 千葉県千葉市緑区高田町の新築売戸建住宅 | ||||
|---|---|---|---|---|---|
| 所在地 | 千葉県千葉市緑区高田町 | ||||
| 交通 |
JR外房線 「誉田」駅 徒歩15分 JR外房線 「鎌取」駅 徒歩49分 JR外房線 「土気」駅 徒歩83分 | ||||
| 構造および階数 | 木造・2階建 | 建ぺい率・容積率 | 60.00%・200.00% | ||
| 完成予定日 | 2026年02月 | 入居可能予定日 | 2026年02月下旬(21日~末日)(予定) | ||
| 土地権利 | 所有権 | ||||
| 駐車場 | 有 | 国土法届出 | - | ||
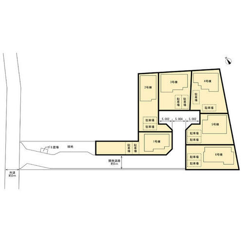
| 私道負担・道路 | - | 道路付け | 西 5.0m 公道 | ||
| 地目 | 宅地 | 都市計画 | 調整区域 | ||
| 取引態様 | 媒介 | 用途地域 | 無指定 | ||
| 施工会社 | - | ||||
| 建築確認番号 | 第25UDI1W建08606号 | ||||
| 設備 | 収納スペース・CATV・BS端子・追焚機能・都市ガス・フローリング・浴室乾燥機・Wクロゼット・シャンプードレッサー・ウォシュレット・システムキッチン・カウンターキッチン・モニタ付インターホン・庭・トイレ2ヶ所・床下収納・CS・浄水器・複層ガラス・上水道・浄化槽 | ||||
| 備考 | 建築許可事由:調整区域により建築許可要(建築主の許可要件有り)千葉市立誉田東小学校(1000m)千葉市立誉田中学校(1300m)その他こだわり:耐震構造・落ち着いた生活を送れる千葉市緑区高田町に新築戸建全6棟が登場します!公園やレジャー施設・主要道路やICへのアクセス良好♪子育て世代に安心できる環境です♪お気軽にお問い合わせください♪ | ||||
情報更新日:2025/11/29 次回更新予定日:情報更新日より14日以内
販売概要
| 販売価格 | 3,590万円 お問い合わせはこちら | ||||
|---|---|---|---|---|---|
| 販売戸数/総戸数 | -/- | ||||
| 最多価格帯 | - | ||||
| 間取り | 4LDK | ||||
| 建物面積 | 111.16㎡ | 土地面積 | 165.05㎡ | ||
| その他施設費用、償却費 | - / - | ||||
| その他費用 | - | ||||
会社情報
| お問い合わせ先 |
(株)TKネクスト 043-310-4065 上記の電話番号にお問合せください。(携帯・PHS 可) 【物件番号】1134088709 | ||||
|---|---|---|---|---|---|
| 会社概要 |
(株)TKネクスト[国土交通大臣免許(1)第10795号] 千葉県千葉市中央区松ケ丘町36-8 【所属団体】 (公社)全日本不動産協会、(公社)首都圏不動産公正取引協議会 | ||||
取り扱い不動産会社
- 電話番号
- 043-310-4065
- 営業時間
- 09:30~18:30
- 定休日
- 水曜日・年末年始、夏季休暇
- 物件番号
- 1134088709
掲載期限まであと13日
誉田駅の口コミ
お買い物・飲食
2.0
店が充実しているとは言い難い。しかしドラッグストア、スーパー、コンビニ、郵便局、銀行等最低限生活に必要な店は駅周辺にある。個人経営の飲食店もちょこちょこと存在している。
自然環境
5.0
場所が緑区なので、自然環境は、良い方だと思います。周りは、緑がたくさん有り、近くには、公園もあったと思います。
住宅ローンシミュレーション
住宅ローン設定
物件価格
返済期間
頭金
ボーナス払(年1回)
※
※物件価格の80%以下でお借入れの場合
※50歳以下で一般団信をご選択の場合
※住宅ローン金利優遇割適用後の変動金利(全期間引き下げプラン)
※実際のお借入日の金利により変動します。
※審査の結果によっては保証付金利プランとなる場合があり、この場合は上記とは異なる金利となります。
※別途借入金額の2.20%(税込)の事務手数料が発生します。
ボーナス払 | 35年間返済 | 30年間返済 | 25年間返済 | 20年間返済 | 15年間返済 | 10年間返済 |
|---|---|---|---|---|---|---|
0万円 | -円/月 | -円/月 | -円/月 | -円/月 | -円/月 | -円/月 |
5万円 | -円/月 | -円/月 | -円/月 | -円/月 | -円/月 | -円/月 |
10万円 | -円/月 | -円/月 | -円/月 | -円/月 | -円/月 | -円/月 |
15万円 | -円/月 | -円/月 | -円/月 | -円/月 | -円/月 | -円/月 |
20万円 | -円/月 | -円/月 | -円/月 | -円/月 | -円/月 | -円/月 |
25万円 | -円/月 | -円/月 | -円/月 | -円/月 | -円/月 | -円/月 |
30万円 | -円/月 | -円/月 | -円/月 | -円/月 | -円/月 | -円/月 |
ボーナス払 | 35年間返済 | 30年間返済 | 25年間返済 | 20年間返済 | 15年間返済 | 10年間返済 |
|---|---|---|---|---|---|---|
0万円 | -円/月 | -円/月 | -円/月 | -円/月 | -円/月 | -円/月 |
5万円 | -円/月 | -円/月 | -円/月 | -円/月 | -円/月 | -円/月 |
10万円 | -円/月 | -円/月 | -円/月 | -円/月 | -円/月 | -円/月 |
15万円 | -円/月 | -円/月 | -円/月 | -円/月 | -円/月 | -円/月 |
20万円 | -円/月 | -円/月 | -円/月 | -円/月 | -円/月 | -円/月 |
25万円 | -円/月 | -円/月 | -円/月 | -円/月 | -円/月 | -円/月 |
30万円 | -円/月 | -円/月 | -円/月 | -円/月 | -円/月 | -円/月 |
- ・金利は、今後35年間変動しない仮定のもと元利均等返済方式で計算しております。
- ・実際の金利は、各金融機関のホームページをご参照ください。
- ・ローン契約の際には、手数料や印紙税などの諸費用が別途かかります。
- ・ボーナス支払総額が総支払額の50%を超えている場合、上記の表では「ローン不可」となります。
- ・シミュレーションを利用し、それが原因で利用者が受けたいかなる損害についても当社は一切責任を負いません。あらかじめご了承ください。











