NEW一戸建てもっとラクに、もっと楽しく、家族の笑顔が増える家事動線【フレスティア市原・五井Ⅰ】 の詳細情報
4480万円
月々のローン返済額を試算この物件は未完成のため、掲載写真(外観、内観、設備等)には、施工例が含まれている場合があります。物件詳細については、掲載の不動産会社宛にお問合せください。
【売主】駅徒歩18分×小学校徒歩8分×アリオ市原徒歩14分×駐車3台!
外観・室内・設備(23枚)

リビング以外の居室
【+1リビング】リビングにつながる4.5帖の和室は、お子さまの遊びやお昼寝も見守りやすく、親子でゆったり過ごせるやさしい空間です。仕切って1つの部屋として使え、ライフステージに合わせて用途は色々ですね

収納
【WIC】の良さは、物を収納できるだけでなく、中で着替えもできることです。ライフスタイルの違う家族でもWICの閉じられた空間内であれば、相手の生活を気にすることなく着替えることができます(2号棟)

キッチン【クリナップ:KT】
キッチンは美しく、そして、使いやすく、デザインや素材、収納力にこだわった。キッチンにいるときも、リビングにいるときも、その存在価値が感じられます。食器洗い乾燥機もついて家事時短◎(施工事例)
周辺環境・アクセス(9枚)
物件概要
| 物件名 | もっとラクに、もっと楽しく、家族の笑顔が増える家事動線【フレスティア市原・五井Ⅰ】 | ||||
|---|---|---|---|---|---|
| 所在地 | 千葉県市原市五井東3-43-2 | ||||
| 交通 |
JR内房線「五井」歩18分 小湊鉄道線「上総村上」歩37分 JR内房線「八幡宿」歩41分 | ||||
| 構造および階数 | 木造2階建(軸組工法) | 建ぺい率・容積率 | 建ペい率:50% 容積率:100% | ||
| 完成予定日 | 2026年3月予定 | 入居可能予定日 | 契約後1ヶ月 | ||
| 土地権利 | 所有権 | ||||
| 駐車場 | - | 国土法届出 | - | ||
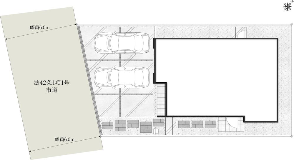
| 地目 | 宅地 | 道路付け | 道路幅:6m | ||
| 機構融資 | - | 取引態様 | 売主 | ||
| 用途地域 | 1種低層 | ||||
| 施工会社 | 株式会社フレスコ | ||||
| 建築確認番号 | 第25UDI1C建05550号 | ||||
| 設備 | 省エネルギー対策 / フラット35Sに対応 / 地盤調査済 / 駐車3台以上可 / 2沿線以上利用可 / 省エネ給湯器 / 市街地が近い / システムキッチン / 浴室乾燥機 / 陽当り良好 / 全居室収納 / 南側道路面す / 閑静な住宅地 / LDK15畳以上 / 前道6m以上 / 和室 / 整形地 / シャワー付洗面化粧台 / 対面式キッチン / バリアフリー / トイレ2ヶ所 / 浴室1坪以上 / 2階建 / 2面以上バルコニー / 南面バルコニー / 複層ガラス / 温水洗浄便座 / 床下収納 / TVモニタ付インターホン / 節水型トイレ / 都市近郊 / 前面棟無 / 通風良好 / 全居室フローリング / 南西向き / パントリー(食器・食品の収納庫) / ウォークインクローゼット / 全居室複層ガラスか複層サッシ / 都市ガス / シューズインクローク / 全室2面採光 / 小学校 徒歩10分以内 / 平坦地 / 食器洗乾燥機 / 整備された歩道 / 浄水器 / スマートキー | ||||
| その他制限事項 | 宅地造成工事規制区域、法22条 | ||||
| 備考 | 宅地造成工事規制区域、法22条 / 担当者:保田、設備:公営水道、本下水、都市ガス、建築確認番号:第25UDI1C建05550号、【住設あんしんサポート対象物件】 ●住設あんしんサポート3つの特徴 特長1 10年間何度でも利用可能! 保証期間中の修理の回数に上限はありません。 いつでも安心して機器をお使いいただけます。 特長2 新品交換含め無料修理!(一部有料あり) 保証対象となる故障や不具合の修理・交換に関わる部品代、作業料、出張料などが無料です。急な出費がなくなり、お客様の家計の不安を解消します。 | ||||
情報更新日:2025/12/12 次回更新予定日:情報提供より8日以内
販売概要
| 販売価格 | 4480万円 お問い合わせはこちら | ||||
|---|---|---|---|---|---|
| 販売スケジュール | モデルハウス見学会等を随時開催中!いつでもご案内可能ですのでお気軽にお問い合わせ下さい♪※事前のご予約をお待ちしております♪(株)フレスコ 市原営業所迄直接お電話 フリーコール: 0800-222-0870 | ||||
| 販売戸数/総戸数 | 1戸/1戸 | ||||
| 最多価格帯 | - | ||||
| 間取り | 4LDK+SIC+パントリー+バルコニー | ||||
| 建物面積 | 107.23㎡ | 土地面積 | 154.26㎡ | ||
| その他施設費用、償却費 | - | ||||
| その他費用 | その他諸費用:【売主に付き仲介手数料不要】 | ||||
| 登録受付 | - | 抽選日 | - | ||
| モデルルーム情報 | 現地見学会(事前に必ずお問い合わせください)日程/毎週土日祝時間/10:00~18:00(1)10:00~(2)13:00~(3)15:00~(4)17:00~上記時間以外にもご案内可能です!お問い合わせください!【クリスマスキャンペーン】2025/11/18~2025/12/25キャンペーン期間中にご成約いただいたご家族を対象に、選べる40ポイント(40万円分)をプレゼント! エアコン・カップボード・人気の幹太くん・話題のRefa商品やミラブルシャワーヘッドも!!【ローン相談会】フレスコ 市原営業所・個人事業主だけど借り入れできるの?・現在借り入れがあるけど家が買えるの?・月々の返済はいくらになるの?・賢い住宅ローンの選び方!・万が一売却する際に損をしない物件選び!?・住宅ローンって払い終えたら実際の総額は??・定年後の返済計画のご提案!!・的確な繰り上げ返済のタイミングと方法とは?・住宅ローン以外のランニングコストを踏まえた上での安心のご予算は?などなど、何でもお気軽にご相談下さい!専門のスタッフがお客様それぞれの状況をカウンセリングしてご提案させていただいております!お気軽にお申し付けくださいませ! 場所:千葉県市原市五井西2-2-10 お問合せ先:0800-222-0870(フリーコール)【キッズスペースがありお子様連れでも安心】・商談時にご安心いただけますようキッズスぺ―スを設けております。【駐車スペースあります】※「家が近くなので現地集合が良い」「家まで迎えに来てほしい」⇒対応可能です!!※「取り急ぎ資料だけ欲しい」のような資料請求だけでも大歓迎です!!※感染症対策のため内覧希望される方は事前に必ずお問合せ、ご予約くださいませ。本日のご案内も可能です!ご連絡お待ちしております♪ | ||||
| 取引条件有効期限 | 2026年12月31日 | ||||
会社情報
| お問い合わせ先 |
(株)フレスコ市原支店 0800-222-0870(無料通話) 上記の電話番号にお問合せください。(携帯・PHS 可) 【物件番号】78911506 | ||||
|---|---|---|---|---|---|
| 会社概要 |
(株)フレスコ市原支店[千葉県知事(7)第012427号] 千葉県市原市五井西2-2-10 【所属団体】 千葉県知事(7)第012427号(一社)千葉県宅地建物取引業協会会員 (公社)首都圏不動産公正取引協議会加盟 | ||||
取り扱い不動産会社
- 電話番号
- 0800-222-0870
- 受付
- 営業時間:午前9時~午後6時 / 定休日:火曜日、水曜日
- 物件番号
- 78911506
五井駅の口コミ
治安・安全
1.0
通り道にガールズバーやスナックがあり、キャッチの人が多く立っているため通りにくいです。駅前も同じような感じです。
お買い物・飲食
4.0
車がないととにかく移動がつらい。買い物もごはん屋さんも移動が大変になる。家族であれば車は必須になる。
住宅ローンシミュレーション
住宅ローン設定
物件価格
返済期間
頭金
ボーナス払(年1回)
※
※物件価格の80%以下でお借入れの場合
※50歳以下で一般団信をご選択の場合
※住宅ローン金利優遇割適用後の変動金利(全期間引き下げプラン)
※実際のお借入日の金利により変動します。
※審査の結果によっては保証付金利プランとなる場合があり、この場合は上記とは異なる金利となります。
※別途借入金額の2.20%(税込)の事務手数料が発生します。
ボーナス払 | 35年間返済 | 30年間返済 | 25年間返済 | 20年間返済 | 15年間返済 | 10年間返済 |
|---|---|---|---|---|---|---|
0万円 | -円/月 | -円/月 | -円/月 | -円/月 | -円/月 | -円/月 |
5万円 | -円/月 | -円/月 | -円/月 | -円/月 | -円/月 | -円/月 |
10万円 | -円/月 | -円/月 | -円/月 | -円/月 | -円/月 | -円/月 |
15万円 | -円/月 | -円/月 | -円/月 | -円/月 | -円/月 | -円/月 |
20万円 | -円/月 | -円/月 | -円/月 | -円/月 | -円/月 | -円/月 |
25万円 | -円/月 | -円/月 | -円/月 | -円/月 | -円/月 | -円/月 |
30万円 | -円/月 | -円/月 | -円/月 | -円/月 | -円/月 | -円/月 |
ボーナス払 | 35年間返済 | 30年間返済 | 25年間返済 | 20年間返済 | 15年間返済 | 10年間返済 |
|---|---|---|---|---|---|---|
0万円 | -円/月 | -円/月 | -円/月 | -円/月 | -円/月 | -円/月 |
5万円 | -円/月 | -円/月 | -円/月 | -円/月 | -円/月 | -円/月 |
10万円 | -円/月 | -円/月 | -円/月 | -円/月 | -円/月 | -円/月 |
15万円 | -円/月 | -円/月 | -円/月 | -円/月 | -円/月 | -円/月 |
20万円 | -円/月 | -円/月 | -円/月 | -円/月 | -円/月 | -円/月 |
25万円 | -円/月 | -円/月 | -円/月 | -円/月 | -円/月 | -円/月 |
30万円 | -円/月 | -円/月 | -円/月 | -円/月 | -円/月 | -円/月 |
- ・金利は、今後35年間変動しない仮定のもと元利均等返済方式で計算しております。
- ・実際の金利は、各金融機関のホームページをご参照ください。
- ・ローン契約の際には、手数料や印紙税などの諸費用が別途かかります。
- ・ボーナス支払総額が総支払額の50%を超えている場合、上記の表では「ローン不可」となります。
- ・シミュレーションを利用し、それが原因で利用者が受けたいかなる損害についても当社は一切責任を負いません。あらかじめご了承ください。
※価格は物件の代金総額を表示しており、消費税が課税される場合は税込み価格です。 (1000円未満は切り上げ。)
※写真に写っている、またはパース(絵)や間取り図に描かれている家具や車などは、特にコメントがない場合、販売価格に含まれません。
※敷地権利が定期借地権のものは価格に権利金を含みます。
※建築条件付き土地価格には、建物価格は含まれません。
※物件情報は、原則として情報提供日の2日前に最終確認した情報です。
※完成予想図はいずれも外構、植栽、外観等実際のものとは多少異なることがあります。
※モデルルーム・モデルハウス・展示場・ショールームの画像の場合、今回販売の物件と異なる場合があります。
※CG合成の画像の場合、実際とは多少異なる場合があります。
※物件特徴:販売戸数が複数の物件は、全ての住戸に該当しない項目もあります。
※0800で始まる電話番号は通話料無料です。また、サービス検証のため当該番号の利用履歴を個人が特定できない範囲で取得しています。予めご了承ください。
※完成後1年以上を経過した未入居物件が掲載される場合があります。ご了承ください。
※新着:物件情報が「SUUMO」に掲載された日から1週間表示されます。
※価格更新:物件価格が変更された日から1週間表示されます。
※販売予定物件はすべて、販売開始するまで契約または予約の申込みはできません。
※購入の前には物件内容や契約条件についてご自身で十分な確認をしていただくようにお願いいたします。
※建築条件土地の情報内に掲載されている、建物プラン例は、土地購入者の設計プランの参考の一例であって、プランの採用可否は任意です。
※土地(建築条件なし)で「建物プラン例」が表記してある時、そのプラン例は特定の建築請負会社によるもので、当該建築請負会社以外で建てた場合、同様のものが同価格で建てられるとは限りません。また建築請負会社を特定するものではありません。
※建築条件付き土地とは、その土地に建築する建物の建築請負契約が、一定期間内に成立することを条件として売買される土地のことをいいます。建築請負契約成立に向けて設計プランを協議するため、土地購入者が自己の希望する建物の設計協議をするために必要な相当の期間の交渉期間が設定され、その期間内で希望を満たすプランが実現できたかどうかにより結論を出します。なお、この期間は概ね3ヶ月程度とされています。納得のいくプランが出来ず、建築請負契約が成立しない場合、土地売買契約は白紙に戻り、土地契約にかかった代金(土地代金、手付金など)は名目のいかんに関わらず、全て返却されます。




































