一戸建て【ウィザースガーデン姉崎今津朝山】敷地面積最大300㎡超!平屋モデルハウスもご見学可能です!の詳細情報
【大幅価格改定3490万円より販売中】第3期 平屋2棟完成しました!
外観・室内・設備(29枚)

【陶器瓦の屋根材】
【陶器瓦の屋根材】汚れが付きにくいので塗り替えや葺き替えといった維持管理の手間や費用もほとんどかかりません。四季の様々な気象条件で厳しい環境下でも、高い耐久性・耐候性を併せ持つのが陶器瓦です。

【アルミ樹脂複合サッシ】
【アルミ樹脂複合サッシ】窓の室内側に、断熱性・防露性に優れた『樹脂』のメリットをプラスしたことにより、高い断熱性能を実現。窓周辺を外気温の影響から守り、健やかな室内環境を保ちます。

【遮熱Low-E複層ガラス】
【遮熱Low-E複層ガラス】複層ガラスの内側に熱の伝わりを抑えるLow-E膜をコーティングして性能を向上。高い断熱性能と日射遮蔽性能を両立し、夏は涼しく、冬は暖房熱を外へ逃がしません。

【食器洗浄乾燥機】
【食器洗浄乾燥機】食事の後片付けをサポートしてくれるビルトインタイプの食器洗浄乾燥機が標準装備♪家事の時間短縮になるだけでなく、手洗いに比べて大幅に節水できる省エネタイプを採用しています。

【ポケットキー(電気錠)】
【ポケットキー(電気錠)】タグキーをハンドルに近づけるだけでサッと施解錠できるスマートキー。 面倒な鍵の操作を省いてスマートに出入りができ、 非接触型なのでハンドルに当てなくても近づけるだけで操作が可能です。

【優れた耐震性】
【優れた耐震性】地震や台風などによる外力が一点集中し変形しがちな軸組工法と比べ、どの方向から外力が加わってもその力のバランス良く分散することで、建物の変形や倒壊を防ぎ、優れた耐震性を実現します。

【暑さ・寒さも、隙間風もシャットアウト】
【暑さ・寒さも、隙間風もシャットアウト】ツーバイフォー工法は床・壁・天井が隙間なく接合された構造と、コンクリートの数倍という断熱性を発揮する木材を用いることで、一年を通じて快適な室内環境を保ちます。
周辺環境・アクセス(11枚)
その他(4枚)
物件概要
| 物件名 | 【ウィザースガーデン姉崎今津朝山】敷地面積最大300㎡超!平屋モデルハウスもご見学可能です! | ||||
|---|---|---|---|---|---|
| 所在地 | 千葉県市原市今津朝山133 | ||||
| 交通 | JR内房線「姉ケ崎」歩24分~25分 JR内房線「五井」車5.1km~5.2km JR内房線「長浦」車7.2km~7.3km | ||||
| 構造および階数 | - | 建ぺい率・容積率 | 建ぺい率:30%、容積率:50% | ||
| 完成予定日 | 2025年7月 | 入居可能予定日 | 即引渡可 | ||
| 土地権利 | 所有権 | ||||
| 駐車場 | - | 国土法届出 | - | ||
| 地目 | - | 道路付け | 道路幅:6m、アスファルト舗装 | ||
| 機構融資 | - | 取引態様 | 売主 | ||
| 用途地域 | 1種低層 | ||||
| 施工会社 | - | ||||
| 建築確認番号 | 千建住第230005号他 | ||||
| 設備 | 太陽光発電システム / 駐車3台以上可 / 土地50坪以上 / LDK18畳以上 / 省エネ給湯器 / 南向き / システムキッチン / 浴室乾燥機 / 全居室収納 / 角地 / 整形地 / 庭10坪以上 / 浴室1坪以上 / 2階建 / 南面バルコニー / 複層ガラス / 南庭 / 床下収納 / TVモニタ付インターホン / ウッドデッキ / パントリー(食器・食品の収納庫) / ウォークインクローゼット / IHクッキングヒーター / シューズインクローク / 床暖房 / テラス / 納戸 / 食器洗乾燥機 / オール電化 | ||||
| その他制限事項 | - | ||||
| 備考 | 設備:東京電力、公営水道、本下水、建築確認番号:千建住第230005号他 | ||||
情報更新日:2025/10/31 次回更新予定日:情報提供より8日以内
販売概要
| 販売価格 | 3790万円~4490万円 お問い合わせはこちら | ||||
|---|---|---|---|---|---|
| 販売スケジュール | \ご見学予約は、WEB予約がオススメです!/●ご希望の日時と時間を選ぶだけ!見学予約受付中!●土日はもちろん、平日、夕方からのご見学も大歓迎です。●貴重なお時間の中で、ご希望の情報をご案内します。●お客様のご都合に合わせて、「知りたい情報だけ」という短時間のご案内も可能です。事前にお申し付けくださいませ。※現地は担当者不在のため、事前にTELまたはWeb来場予約の上、ご来場ください。おおよその所要時間や内容は、下記をご参考ください。組み合わせもOK!◆現地モデルハウス案内会(事前に必ずお問い合わせください)日程/毎週平日・土日祝時間/9:00~18:00現地案内会(事前に必ずお問い合わせください)■現地/物件見学(30分~)■ご希望条件のご相談(30分~)■資金計画のご相談(30分~)■会社の強みのご紹介(30分~) | ||||
| 販売戸数/総戸数 | 7戸/23戸 | ||||
| 最多価格帯 | - | ||||
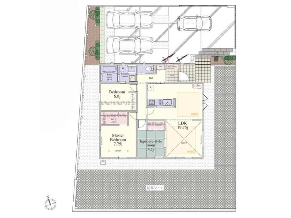
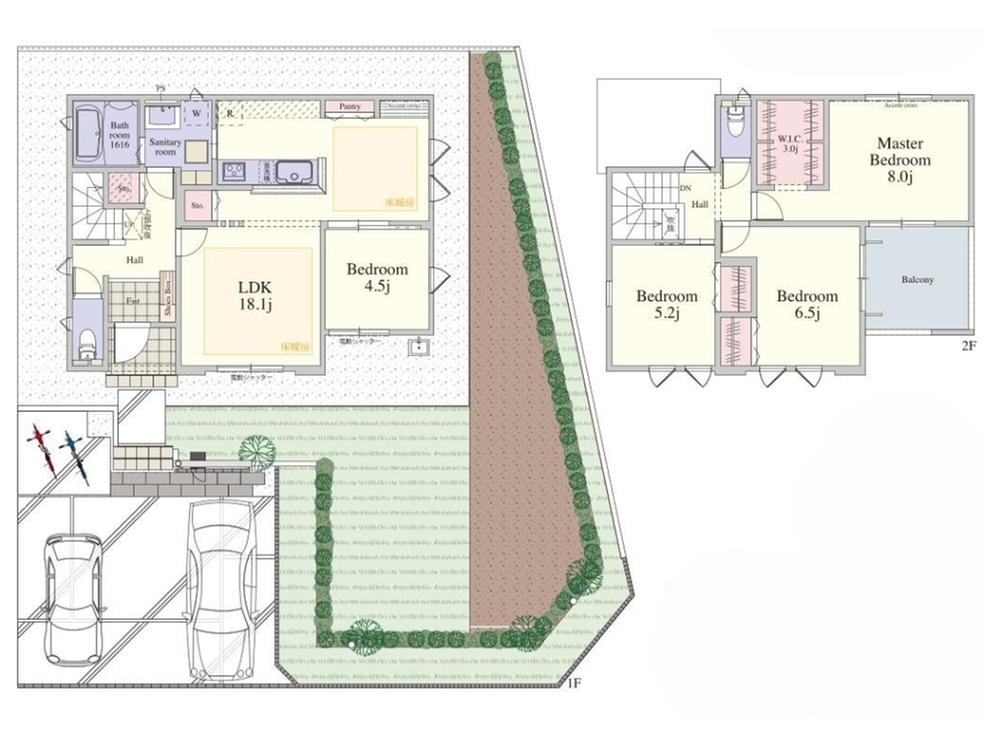
| 間取り | 2LDK+S(納戸)~4LDK+S(納戸) | ||||
| 建物面積 | 86.95㎡~105.74㎡(実測) | 土地面積 | 230.01㎡~303.17㎡(登記) | ||
| その他施設費用、償却費 | - | ||||
| その他費用 | - | ||||
| 登録受付 | - | 抽選日 | - | ||
| モデルルーム情報 | 現地案内会(事前に必ず予約してください)日程/毎週土日祝時間/9:00~18:00【お電話が苦手な方でも安心なネット予約可能】「見学予約する」または「下部カレンダー」より、簡単にネット予約が可能!※火曜・水曜日もご案内可能な場合がございますので、お気軽にお電話ください■ご希望の日時と時間を選ぶだけ!見学予約受付中!■土日はもちろん、平日、夕方からのご見学も大歓迎です。■現地は担当者不在のため、事前にTELまたはWeb来場予約の上、ご来場ください。■おおよその所要時間や内容は、下記をご参考ください。組み合わせもOK!◆現地モデルハウス案内会(事前に必ずお問い合わせください)・日程/毎週平日・土日祝・時間/9:00~18:00・場所/現地■現地/物件見学(30分~)■ご希望条件のご相談(30分~)■資金計画のご相談(30分~)■会社の強みのご紹介(30分~) | ||||
| 取引条件有効期限 | 2026年3月31日 | ||||
会社情報
| お問い合わせ先 | (株)新昭和イクス南総支社南総営業課 0120-477-100(無料通話) 上記の電話番号にお問合せください。(携帯・PHS 可) 【物件番号】73057104 | ||||
|---|---|---|---|---|---|
| 会社概要 | (株)新昭和イクス南総支社南総営業課[千葉県知事(14)第003559号] - | ||||
この物件の地図・周辺環境
このアイコンは物件のおおよその位置を表しており、実際の場所と異なる場合がございます。詳しくは不動産会社に直接ご確認ください。
※地図上に表示される物件の位置は付近住所に所在することを表すものであり、実際の物件所在地とは異なる場合がございます。
※地図の更新タイミングの関係で、物件情報が実際のものとは異なる場合や最新情報に更新されていない場合がございます。
※以下の南西諸島及び離島においては、表示される物件の位置が実際のものとは数百メートル程度ずれる場合がございます。
東京都:硫黄島・青ヶ島、沖縄県: 北大東島・南大東島・多良間島・水納島・与那国島・宮古諸島・石垣島・竹富島
取り扱い不動産会社
- 電話番号
- 0120-477-100
- 受付
- 定休日:火曜日・水曜日
- 物件番号
- 73057104
姉ケ崎駅の口コミ
お買い物・飲食
2.0

イトーヨーカ堂が潰れてしまったため、大きなスーパーがあまりなくなってしまいました。 マルエイなどはありますが、品自体は少し少ないような気がします。
住宅ローンシミュレーション
住宅ローン設定
物件価格
返済期間
頭金
ボーナス払(年1回)
          ※
          ※物件価格の80%以下でお借入れの場合
          ※50歳以下で一般団信をご選択の場合
          ※住宅ローン金利優遇割適用後の変動金利(全期間引き下げプラン)
          ※実際のお借入日の金利により変動します。
          ※審査の結果によっては保証付金利プランとなる場合があり、この場合は上記とは異なる金利となります。
          ※別途借入金額の2.20%(税込)の事務手数料が発生します。
        
| ボーナス払 | 35年間返済 | 30年間返済 | 25年間返済 | 20年間返済 | 15年間返済 | 10年間返済 | 
|---|---|---|---|---|---|---|
| 0万円 | -円/月 | -円/月 | -円/月 | -円/月 | -円/月 | -円/月 | 
| 5万円 | -円/月 | -円/月 | -円/月 | -円/月 | -円/月 | -円/月 | 
| 10万円 | -円/月 | -円/月 | -円/月 | -円/月 | -円/月 | -円/月 | 
| 15万円 | -円/月 | -円/月 | -円/月 | -円/月 | -円/月 | -円/月 | 
| 20万円 | -円/月 | -円/月 | -円/月 | -円/月 | -円/月 | -円/月 | 
| 25万円 | -円/月 | -円/月 | -円/月 | -円/月 | -円/月 | -円/月 | 
| 30万円 | -円/月 | -円/月 | -円/月 | -円/月 | -円/月 | -円/月 | 
| ボーナス払 | 35年間返済 | 30年間返済 | 25年間返済 | 20年間返済 | 15年間返済 | 10年間返済 | 
|---|---|---|---|---|---|---|
| 0万円 | -円/月 | -円/月 | -円/月 | -円/月 | -円/月 | -円/月 | 
| 5万円 | -円/月 | -円/月 | -円/月 | -円/月 | -円/月 | -円/月 | 
| 10万円 | -円/月 | -円/月 | -円/月 | -円/月 | -円/月 | -円/月 | 
| 15万円 | -円/月 | -円/月 | -円/月 | -円/月 | -円/月 | -円/月 | 
| 20万円 | -円/月 | -円/月 | -円/月 | -円/月 | -円/月 | -円/月 | 
| 25万円 | -円/月 | -円/月 | -円/月 | -円/月 | -円/月 | -円/月 | 
| 30万円 | -円/月 | -円/月 | -円/月 | -円/月 | -円/月 | -円/月 | 
- ・金利は、今後35年間変動しない仮定のもと元利均等返済方式で計算しております。
- ・実際の金利は、各金融機関のホームページをご参照ください。
- ・ローン契約の際には、手数料や印紙税などの諸費用が別途かかります。
- ・ボーナス支払総額が総支払額の50%を超えている場合、上記の表では「ローン不可」となります。
- ・シミュレーションを利用し、それが原因で利用者が受けたいかなる損害についても当社は一切責任を負いません。あらかじめご了承ください。
※価格は物件の代金総額を表示しており、消費税が課税される場合は税込み価格です。 (1000円未満は切り上げ。)
※写真に写っている、またはパース(絵)や間取り図に描かれている家具や車などは、特にコメントがない場合、販売価格に含まれません。
※敷地権利が定期借地権のものは価格に権利金を含みます。
※建築条件付き土地価格には、建物価格は含まれません。
※物件情報は、原則として情報提供日の2日前に最終確認した情報です。
※完成予想図はいずれも外構、植栽、外観等実際のものとは多少異なることがあります。
※モデルルーム・モデルハウス・展示場・ショールームの画像の場合、今回販売の物件と異なる場合があります。
※CG合成の画像の場合、実際とは多少異なる場合があります。
※物件特徴:販売戸数が複数の物件は、全ての住戸に該当しない項目もあります。
※0800で始まる電話番号は通話料無料です。また、サービス検証のため当該番号の利用履歴を個人が特定できない範囲で取得しています。予めご了承ください。
※完成後1年以上を経過した未入居物件が掲載される場合があります。ご了承ください。
※新着:物件情報が「SUUMO」に掲載された日から1週間表示されます。
※価格更新:物件価格が変更された日から1週間表示されます。
※販売予定物件はすべて、販売開始するまで契約または予約の申込みはできません。
※購入の前には物件内容や契約条件についてご自身で十分な確認をしていただくようにお願いいたします。
※建築条件土地の情報内に掲載されている、建物プラン例は、土地購入者の設計プランの参考の一例であって、プランの採用可否は任意です。
※土地(建築条件なし)で「建物プラン例」が表記してある時、そのプラン例は特定の建築請負会社によるもので、当該建築請負会社以外で建てた場合、同様のものが同価格で建てられるとは限りません。また建築請負会社を特定するものではありません。
※建築条件付き土地とは、その土地に建築する建物の建築請負契約が、一定期間内に成立することを条件として売買される土地のことをいいます。建築請負契約成立に向けて設計プランを協議するため、土地購入者が自己の希望する建物の設計協議をするために必要な相当の期間の交渉期間が設定され、その期間内で希望を満たすプランが実現できたかどうかにより結論を出します。なお、この期間は概ね3ヶ月程度とされています。納得のいくプランが出来ず、建築請負契約が成立しない場合、土地売買契約は白紙に戻り、土地契約にかかった代金(土地代金、手付金など)は名目のいかんに関わらず、全て返却されます。











































