一戸建てHeartful Town 宮久保5期の詳細情報
4190万円~4890万円
月々のローン返済額を試算【本日ご見学できます♪】14区画の大型分譲!2路線利用可能のお住まいです♪
外観・室内・設備(29枚)

リビング以外の居室
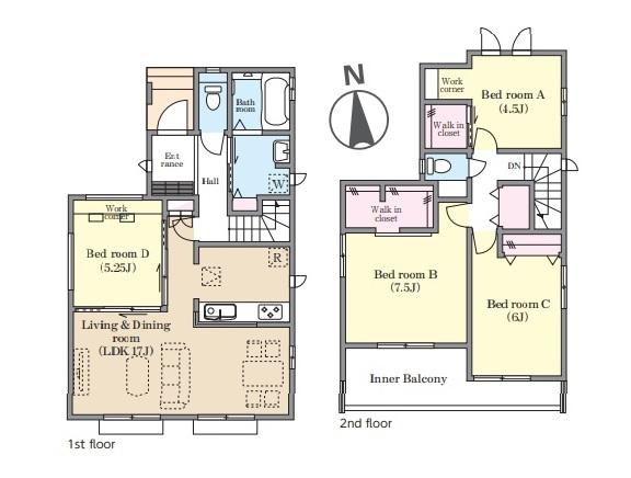
バルコニーからの優しい日差しがくつろぎの時間を充実させる南東側のお部屋。全居室に収納をご用意しておりますので居室の全空間を有効活用出来ます。自分好みのお部屋で、ゆったりお寛ぎ頂けます。

収納
≪Walk in closet≫洋服はもちろん、お子様との思い出もたっぷりしまえるウォークインクローゼット。掛ける収納スペースがたっぷりあると、お洗濯物をたたむ時間の削減にもなり家事の効率化にも!

【省エネ性能ラベル】
こちらの物件はZEH水準を満たした、省エネ性能に優れた物件です。 光熱費を抑えて暮らすことができるだけでなく、「熱の入りにくさ・逃げにくさ」という観点でも影響を受けにくい建物のため、長く快適にお過ごしいただけます♪ ※本ラベルは特定の住戸の性能を示すものであり、全ての住戸の性能を示すものではありません。

ベタ基礎は「鉄筋コンクリート造」
耐震性を発揮する鉄筋入りスラブー体基礎を採用。地面から基礎上端までの高さを400mm以上確保。地面からの湿気を防ぎ、不等沈下や地震時のねじれを防ぐ効果があり、白蟻に対する予防策としても有効です。
物件概要
| 物件名 | Heartful Town 宮久保5期 | ||||
|---|---|---|---|---|---|
| 所在地 | 千葉県市川市宮久保4 | ||||
| 交通 |
京成本線「京成八幡」歩31分 JR武蔵野線「市川大野」バス12分「JA市川市本店」歩11分 京成本線「鬼越」車2.8km | ||||
| 構造および階数 | 木造2階建 | 建ぺい率・容積率 | 建ぺい率50% 容積率100% | ||
| 完成予定日 | 2025年9月下旬 | 入居可能予定日 | 2025年9月下旬 | ||
| 土地権利 | 所有権 | ||||
| 駐車場 | - | 国土法届出 | - | ||
| 地目 | 宅地 | 道路付け | 道路幅:5m、アスファルト舗装、南側5m公道(B~E号棟)、東側5m公道(A・F号棟)、北側5m(G~K号棟) | ||
| 機構融資 | フラット35Sベーシック | 取引態様 | 仲介 | ||
| 用途地域 | 1種低層 | ||||
| 施工会社 | - | ||||
| 建築確認番号 | 第HPA-25-06339-1号他 | ||||
| 設備 | 設計住宅性能評価書 / フラット35・S適合証明書 / 省エネルギー対策 / フラット35Sに対応 / 地盤調査済 / 年内引渡可 / 駐車2台可 / 2沿線以上利用可 / LDK18畳以上 / 省エネ給湯器 / スーパー 徒歩10分以内 / 市街地が近い / システムキッチン / 陽当り良好 / 全居室収納 / 駅まで平坦 / 南側道路面す / 閑静な住宅地 / 角地 / 整形地 / シャワー付洗面化粧台 / 対面式キッチン / ワイドバルコニー / 3面採光 / バリアフリー / トイレ2ヶ所 / 浴室1坪以上 / 2階建 / 南面バルコニー / 複層ガラス / 全室南向き / オートバス / 温水洗浄便座 / 南庭 / 床下収納 / 浴室に窓 / 吹抜け / TVモニタ付インターホン / 節水型トイレ / 緑豊かな住宅地 / 都市近郊 / 通風良好 / 全居室フローリング / 南西向き / パントリー(食器・食品の収納庫) / ウォークインクローゼット / 全居室6畳以上 / 都市ガス / シューズインクローク / 全室2面採光 / 小学校 徒歩10分以内 / ルーフバルコニー / 可動間仕切り / 周辺交通量少なめ / 浄水器 | ||||
| その他制限事項 | 高さ最高限度有、22条区域、絶対高さ制限10m | ||||
| 備考 | 高さ最高限度有、22条区域、絶対高さ制限10m / 担当者:村上 蓮、設備:東京電力、公営水道、都市ガス、公共下水、建築確認番号:第HPA-25-06339-1号他 | ||||
情報更新日:2025/11/01 次回更新予定日:情報提供より8日以内
販売概要
| 販売価格 | 4190万円~4890万円 お問い合わせはこちら | ||||
|---|---|---|---|---|---|
| 販売スケジュール | ◆◇◆◇◆◇◆◇◆◇◆◇◆◇◆◇◆◇◆◇◆◇◆好評分譲中につき、先着順受付中!!スムーズなご案内のため、ご見学の際は、必ず事前にホームトレードセンター(株)松戸営業所のスタッフまでお問い合わせください。フリーダイヤル:0120-888-365◆◇◆◇◆◇◆◇◆◇◆◇◆◇◆◇◆◇◆◇◆◇◆飯田グループホールディングス唯一の販売専門会社の社員が当物件をご案内させて頂きます。◆◇◆◇◆◇◆◇◆◇◆◇◆◇◆◇◆◇◆◇◆◇◆住宅ローンでお悩みの方有資格者が最善のサポートをさせて頂きますので、お気軽にご相談くださいませ。お客様のお悩み等を解決致します!◆◇◆◇◆◇◆◇◆◇◆◇◆◇◆◇◆◇◆◇◆◇◆ | ||||
| 販売戸数/総戸数 | 8戸/14戸 | ||||
| 最多価格帯 | 4400万円台(3戸) | ||||
| 間取り | 3LDK~4LDK | ||||
| 建物面積 | 97.91㎡~103.92㎡ | 土地面積 | 110.03㎡~114.23㎡ | ||
| その他施設費用、償却費 | - | ||||
| その他費用 | - | ||||
| 登録受付 | - | 抽選日 | - | ||
| モデルルーム情報 | (事前に必ずお問い合わせください)■ご案内方法ご自宅へお迎えor最寄り駅等でお待ち合わせ、弊社へのご来社など、ご相談くださいませ。物件の間取り、設備に加え、周辺環境、お客様の希望に合わせた物件もご案内いたします。小学校、スーパー、公園などご家族でご利用されることが予想される施設や、「こんな施設があったら見学したい!」というようなご希望があればぜひご連絡ください。■ご予約方法鍵の手配が必要な場合がありますので、お早目にご連絡をいただけるとご案内がスムーズです。◆□【住宅ローンの事ならお任せください】□◆弊社提携の金融機関が多数ございます!代行窓口としてお客様の負担を最小限に抑える事が可能です。「住宅ローンが通るか心配だ・・・」「頭金0円だと購入が難しいの?」「転職して間もないから・・・」など、不安やお悩みはまず弊社にご相談ください!フリーダイヤル:0120-888-365までお気軽にお問い合わせください。 | ||||
| 取引条件有効期限 | 2025年12月31日 | ||||
会社情報
| お問い合わせ先 |
飯田グループホールディングス ホームトレードセンター(株)松戸営業所 0120-888365(無料通話) 上記の電話番号にお問合せください。(携帯・PHS 可) 【物件番号】77879055 | ||||
|---|---|---|---|---|---|
| 会社概要 |
飯田グループホールディングス ホームトレードセンター(株)松戸営業所[国土交通大臣(3)第008044号] 千葉県松戸市本町25-4 第2石井ビル1階 【所属団体】 国土交通大臣(3)第008044号(一社)千葉県宅地建物取引業協会会員 (公社)首都圏不動産公正取引協議会加盟 / (公社)全日本不動産協会千葉県本部会員 (公社)首都圏不動産公正取引協議会加盟 | ||||
取り扱い不動産会社
飯田グループホールディングス ホームトレードセンター(株)松戸営業所
- 電話番号
- 0120-888365
- 受付
- 営業時間:10:00~19:00 / 定休日:水曜日
- 物件番号
- 77879055
本八幡駅の口コミ
お買い物・飲食
3.0
不便というほどでもないですが、一番頼りにしていた駅前のスーパー西友が閉店してから以前に比べて買物の選択肢が減ってしまいました。
〓〓〓 追記 〓〓〓
駅の回りには小さい飲み屋や水商売関連のお店も集まっています。客引きの人なども見かけますし、酔っぱらった人たちも週末夜遅くには結構います。でも近寄らなければいいだけで、危険なことはありません。
子育て・病院
3.0
大きな病院はなく、小さめのクリニックが多数という感じです。ただ、そこに集中するためとある歯医者は1か月おきぐらい先の予約となかなか取りづらいところです。
住宅ローンシミュレーション
住宅ローン設定
物件価格
返済期間
頭金
ボーナス払(年1回)
※
※物件価格の80%以下でお借入れの場合
※50歳以下で一般団信をご選択の場合
※住宅ローン金利優遇割適用後の変動金利(全期間引き下げプラン)
※実際のお借入日の金利により変動します。
※審査の結果によっては保証付金利プランとなる場合があり、この場合は上記とは異なる金利となります。
※別途借入金額の2.20%(税込)の事務手数料が発生します。
ボーナス払 | 35年間返済 | 30年間返済 | 25年間返済 | 20年間返済 | 15年間返済 | 10年間返済 |
|---|---|---|---|---|---|---|
0万円 | -円/月 | -円/月 | -円/月 | -円/月 | -円/月 | -円/月 |
5万円 | -円/月 | -円/月 | -円/月 | -円/月 | -円/月 | -円/月 |
10万円 | -円/月 | -円/月 | -円/月 | -円/月 | -円/月 | -円/月 |
15万円 | -円/月 | -円/月 | -円/月 | -円/月 | -円/月 | -円/月 |
20万円 | -円/月 | -円/月 | -円/月 | -円/月 | -円/月 | -円/月 |
25万円 | -円/月 | -円/月 | -円/月 | -円/月 | -円/月 | -円/月 |
30万円 | -円/月 | -円/月 | -円/月 | -円/月 | -円/月 | -円/月 |
ボーナス払 | 35年間返済 | 30年間返済 | 25年間返済 | 20年間返済 | 15年間返済 | 10年間返済 |
|---|---|---|---|---|---|---|
0万円 | -円/月 | -円/月 | -円/月 | -円/月 | -円/月 | -円/月 |
5万円 | -円/月 | -円/月 | -円/月 | -円/月 | -円/月 | -円/月 |
10万円 | -円/月 | -円/月 | -円/月 | -円/月 | -円/月 | -円/月 |
15万円 | -円/月 | -円/月 | -円/月 | -円/月 | -円/月 | -円/月 |
20万円 | -円/月 | -円/月 | -円/月 | -円/月 | -円/月 | -円/月 |
25万円 | -円/月 | -円/月 | -円/月 | -円/月 | -円/月 | -円/月 |
30万円 | -円/月 | -円/月 | -円/月 | -円/月 | -円/月 | -円/月 |
- ・金利は、今後35年間変動しない仮定のもと元利均等返済方式で計算しております。
- ・実際の金利は、各金融機関のホームページをご参照ください。
- ・ローン契約の際には、手数料や印紙税などの諸費用が別途かかります。
- ・ボーナス支払総額が総支払額の50%を超えている場合、上記の表では「ローン不可」となります。
- ・シミュレーションを利用し、それが原因で利用者が受けたいかなる損害についても当社は一切責任を負いません。あらかじめご了承ください。
※価格は物件の代金総額を表示しており、消費税が課税される場合は税込み価格です。 (1000円未満は切り上げ。)
※写真に写っている、またはパース(絵)や間取り図に描かれている家具や車などは、特にコメントがない場合、販売価格に含まれません。
※敷地権利が定期借地権のものは価格に権利金を含みます。
※建築条件付き土地価格には、建物価格は含まれません。
※物件情報は、原則として情報提供日の2日前に最終確認した情報です。
※完成予想図はいずれも外構、植栽、外観等実際のものとは多少異なることがあります。
※モデルルーム・モデルハウス・展示場・ショールームの画像の場合、今回販売の物件と異なる場合があります。
※CG合成の画像の場合、実際とは多少異なる場合があります。
※物件特徴:販売戸数が複数の物件は、全ての住戸に該当しない項目もあります。
※0800で始まる電話番号は通話料無料です。また、サービス検証のため当該番号の利用履歴を個人が特定できない範囲で取得しています。予めご了承ください。
※完成後1年以上を経過した未入居物件が掲載される場合があります。ご了承ください。
※新着:物件情報が「SUUMO」に掲載された日から1週間表示されます。
※価格更新:物件価格が変更された日から1週間表示されます。
※販売予定物件はすべて、販売開始するまで契約または予約の申込みはできません。
※購入の前には物件内容や契約条件についてご自身で十分な確認をしていただくようにお願いいたします。
※建築条件土地の情報内に掲載されている、建物プラン例は、土地購入者の設計プランの参考の一例であって、プランの採用可否は任意です。
※土地(建築条件なし)で「建物プラン例」が表記してある時、そのプラン例は特定の建築請負会社によるもので、当該建築請負会社以外で建てた場合、同様のものが同価格で建てられるとは限りません。また建築請負会社を特定するものではありません。
※建築条件付き土地とは、その土地に建築する建物の建築請負契約が、一定期間内に成立することを条件として売買される土地のことをいいます。建築請負契約成立に向けて設計プランを協議するため、土地購入者が自己の希望する建物の設計協議をするために必要な相当の期間の交渉期間が設定され、その期間内で希望を満たすプランが実現できたかどうかにより結論を出します。なお、この期間は概ね3ヶ月程度とされています。納得のいくプランが出来ず、建築請負契約が成立しない場合、土地売買契約は白紙に戻り、土地契約にかかった代金(土地代金、手付金など)は名目のいかんに関わらず、全て返却されます。







































