一戸建て勝田台駅徒歩10分!利便性の良い地に誕生【エキシービレッジ勝田台19-Ⅱ期】大東建設2期の詳細情報
5550万円~5670万円
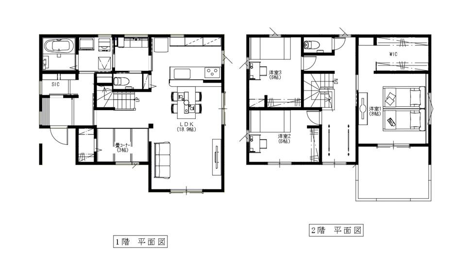
月々のローン返済額を試算始発駅徒歩10分!利便性の高い立地に5区画が誕生!敷地面積50坪のゆとり設計
外観・室内・設備(31枚)

ガス温水式床暖房システム
床暖房をリビング・ダイニング・キッチンの3か所標準採用!風を起こさないので空気の乾燥が少なく、埃、チリが舞うこともない。柔らかな暖かさが足の裏から伝わる健康暖房器具を奥様が1番長く使用するキッチンにも標準採用しました。

全熱交換型第一種換気システム採用
全熱交換型第1種換気システム。機械で強制的に新鮮な空気を屋内に取り込み、屋内の汚れた空気を屋外へ排出してくれます。その際、屋外の外気温度を屋内に近い温度にして部屋におくります。お家中常に新鮮な空気が循環します。

樹脂サッシYKKAPapw330採用
カビの発生源はお風呂だけではなく、『窓』に発生する結露からカビの発生が考えられます。フレームを樹脂製とし結露の発生を極力抑る計画をしております。樹脂製フレームですので万が一結露が発生してもカビが発生しない工夫をしております。

玄関スマートキー
鍵をださずにボタンを押すだけで、開錠施錠ができるポケットキーを搭載。リモコンでの開け閉めもでます。その他タグキーや専用アプリでスマホでの操作も可能に。用途に合わせて使い分けることができとても便利です。内側からは上下二箇所のサムターンを着脱できるので、長期不在の際などには外しておくことで防犯対策になります。

土台・柱・梁は4寸の木造軸組工法
土台・柱・梁を通常は3.5寸(105mm)のところを4寸(120mm)にし、梁成(はりせい)も大きく、井桁状に細かく組むことによって、一般的な木造住宅に使われる木材の約1.3倍以上の使用量となっており、長期的な耐震、耐久性の向上となっております。最新CADシステムによる計算で必要な耐震金物を適切に施工し耐震等級3を実現しています。

日本三大瓦「三州瓦」採用・防災瓦
雨、風、陽ざしと1番過酷な環境におかれる屋根。1400年の歴史がある陶器瓦は今、防災陶器瓦として進化をしております。この防災陶器洋瓦は「三州瓦」を採用!なんと最低50年間メンテナンスフリ-という優れものです。

断熱等性能等級5「アクアフォームライト」
接着剤なしでくっつく自己接着性があり、剥がれ落ちたりずれ落ちたりしにくい。 また、カビやダニなどの原因となる結露が発生しにくく、植物性由来の原料で健康にも優しいですし、フロンガスを使わず水を使って現場で発泡させるため地球にも優しい断熱材で快適に過ごせます。
物件概要
| 物件名 | 勝田台駅徒歩10分!利便性の良い地に誕生【エキシービレッジ勝田台19-Ⅱ期】大東建設2期 | ||||
|---|---|---|---|---|---|
| 所在地 | 千葉県八千代市上高野1166-32 | ||||
| 交通 | 京成本線「勝田台」歩10分 東葉高速鉄道「東葉勝田台」歩10分 東洋バス「井野上高野堺」歩1分 | ||||
| 構造および階数 | 木造軸組み工法 | 建ぺい率・容積率 | 建蔽率60% 容積率150% | ||
| 完成予定日 | 2025年8月 | 入居可能予定日 | 相談 | ||
| 土地権利 | 所有権 | ||||
| 駐車場 | - | 国土法届出 | - | ||
| 地目 | 宅地 | 道路付け | 道路幅:5m・7.2m、アスファルト舗装 | ||
| 機構融資 | - | 取引態様 | 売主 | ||
| 用途地域 | 1種低層 | ||||
| 施工会社 | 大東建設株式会社 | ||||
| 建築確認番号 | 第24UDI1C建08021号他 | ||||
| 設備 | 設計住宅性能評価書 / 建設住宅性能評価書(新築時) / フラット35Sに対応 / 高気密高断熱住宅 / 地盤調査済 / 駐車2台可 / 2沿線以上利用可 / 土地50坪以上 / LDK18畳以上 / 省エネ給湯器 / スーパー 徒歩10分以内 / 市街地が近い / 南向き / システムキッチン / 浴室乾燥機 / 陽当り良好 / 全居室収納 / 駅まで平坦 / 南側道路面す / 閑静な住宅地 / 前道6m以上 / 角地 / 始発駅 / 整形地 / シャワー付洗面化粧台 / 対面式キッチン / EV車充電設備 / バリアフリー / トイレ2ヶ所 / 浴室1坪以上 / 2階建 / 南面バルコニー / 複層ガラス / オートバス / 温水洗浄便座 / 南庭 / 床下収納 / TVモニタ付インターホン / 節水型トイレ / 通風良好 / 全居室フローリング / パントリー(食器・食品の収納庫) / ウォークインクローゼット / リビング階段 / 全居室複層ガラスか複層サッシ / 都市ガス / シューズインクローク / 全室2面採光 / 平坦地 / 床暖房 / テラス / 区画整理地内 / 食器洗乾燥機 / バルコニー・屋上に水栓あり / スマートキー / 高機能トイレ | ||||
| その他制限事項 | 航空法による規制有、高さ最高限度有、日影制限有、隅切り有 | ||||
| 備考 | 航空法による規制有、高さ最高限度有、日影制限有、隅切り有 / 設備:東京電力、公営水道、本下水、都市ガス、建築確認番号:第24UDI1C建08021号他 | ||||
情報更新日:2025/10/30 次回更新予定日:情報提供より8日以内
販売概要
| 販売価格 | 5550万円~5670万円 お問い合わせはこちら | ||||
|---|---|---|---|---|---|
| 販売スケジュール | - | ||||
| 販売戸数/総戸数 | 2戸/5戸 | ||||
| 最多価格帯 | - | ||||
| 間取り | 3LDK | ||||
| 建物面積 | 114.27㎡ | 土地面積 | 175.21㎡ | ||
| その他施設費用、償却費 | - | ||||
| その他費用 | - | ||||
| 登録受付 | - | 抽選日 | - | ||
| モデルルーム情報 | 現地見学会(事前に必ずお問い合わせください)日程/毎週土日祝時間/10:00~17:00おかげさまで50周年!大東建設株式会社※事前にご予約いただければ平日もご見学可能です(火水定休日除く)当日も空きがあればご案内できますので、まずはお問い合わせください! | ||||
| 取引条件有効期限 | 2026年12月31日 | ||||
会社情報
| お問い合わせ先 | 大東建設(株) 0120-670235(無料通話) 上記の電話番号にお問合せください。(携帯・PHS 可) 【物件番号】76039779 | ||||
|---|---|---|---|---|---|
| 会社概要 | 大東建設(株)[千葉県知事(11)第007844号] - | ||||
取り扱い不動産会社
- 電話番号
- 0120-670235
- 物件番号
- 76039779
勝田台駅の口コミ
お買い物・飲食
4.0

最寄の東葉勝田台駅は始発駅なので、待てば座って通勤できる。東西線に乗り入れがあり、日本橋、大手町へ通うにも便利。隣接する勝田台駅からは上野駅や成田空港へダイレクトアクセスできることもあり、総じて移動の多い都心勤務者にメリットが大きい。
子育て・病院
5.0

病院も駅周辺に充実していたので、問題なく生活できました。勝田台駅周辺は医療施設が多いので、選択肢もあり、問題はないと思います。
〓〓〓 追記 〓〓〓
教育機関も充実しているので、選択肢も多く、問題ないと思います。
子連れで遊びに行ける場所も多いと思います。
住宅ローンシミュレーション
住宅ローン設定
物件価格
返済期間
頭金
ボーナス払(年1回)
          ※
          ※物件価格の80%以下でお借入れの場合
          ※50歳以下で一般団信をご選択の場合
          ※住宅ローン金利優遇割適用後の変動金利(全期間引き下げプラン)
          ※実際のお借入日の金利により変動します。
          ※審査の結果によっては保証付金利プランとなる場合があり、この場合は上記とは異なる金利となります。
          ※別途借入金額の2.20%(税込)の事務手数料が発生します。
        
| ボーナス払 | 35年間返済 | 30年間返済 | 25年間返済 | 20年間返済 | 15年間返済 | 10年間返済 | 
|---|---|---|---|---|---|---|
| 0万円 | -円/月 | -円/月 | -円/月 | -円/月 | -円/月 | -円/月 | 
| 5万円 | -円/月 | -円/月 | -円/月 | -円/月 | -円/月 | -円/月 | 
| 10万円 | -円/月 | -円/月 | -円/月 | -円/月 | -円/月 | -円/月 | 
| 15万円 | -円/月 | -円/月 | -円/月 | -円/月 | -円/月 | -円/月 | 
| 20万円 | -円/月 | -円/月 | -円/月 | -円/月 | -円/月 | -円/月 | 
| 25万円 | -円/月 | -円/月 | -円/月 | -円/月 | -円/月 | -円/月 | 
| 30万円 | -円/月 | -円/月 | -円/月 | -円/月 | -円/月 | -円/月 | 
| ボーナス払 | 35年間返済 | 30年間返済 | 25年間返済 | 20年間返済 | 15年間返済 | 10年間返済 | 
|---|---|---|---|---|---|---|
| 0万円 | -円/月 | -円/月 | -円/月 | -円/月 | -円/月 | -円/月 | 
| 5万円 | -円/月 | -円/月 | -円/月 | -円/月 | -円/月 | -円/月 | 
| 10万円 | -円/月 | -円/月 | -円/月 | -円/月 | -円/月 | -円/月 | 
| 15万円 | -円/月 | -円/月 | -円/月 | -円/月 | -円/月 | -円/月 | 
| 20万円 | -円/月 | -円/月 | -円/月 | -円/月 | -円/月 | -円/月 | 
| 25万円 | -円/月 | -円/月 | -円/月 | -円/月 | -円/月 | -円/月 | 
| 30万円 | -円/月 | -円/月 | -円/月 | -円/月 | -円/月 | -円/月 | 
- ・金利は、今後35年間変動しない仮定のもと元利均等返済方式で計算しております。
- ・実際の金利は、各金融機関のホームページをご参照ください。
- ・ローン契約の際には、手数料や印紙税などの諸費用が別途かかります。
- ・ボーナス支払総額が総支払額の50%を超えている場合、上記の表では「ローン不可」となります。
- ・シミュレーションを利用し、それが原因で利用者が受けたいかなる損害についても当社は一切責任を負いません。あらかじめご了承ください。
※価格は物件の代金総額を表示しており、消費税が課税される場合は税込み価格です。 (1000円未満は切り上げ。)
※写真に写っている、またはパース(絵)や間取り図に描かれている家具や車などは、特にコメントがない場合、販売価格に含まれません。
※敷地権利が定期借地権のものは価格に権利金を含みます。
※建築条件付き土地価格には、建物価格は含まれません。
※物件情報は、原則として情報提供日の2日前に最終確認した情報です。
※完成予想図はいずれも外構、植栽、外観等実際のものとは多少異なることがあります。
※モデルルーム・モデルハウス・展示場・ショールームの画像の場合、今回販売の物件と異なる場合があります。
※CG合成の画像の場合、実際とは多少異なる場合があります。
※物件特徴:販売戸数が複数の物件は、全ての住戸に該当しない項目もあります。
※0800で始まる電話番号は通話料無料です。また、サービス検証のため当該番号の利用履歴を個人が特定できない範囲で取得しています。予めご了承ください。
※完成後1年以上を経過した未入居物件が掲載される場合があります。ご了承ください。
※新着:物件情報が「SUUMO」に掲載された日から1週間表示されます。
※価格更新:物件価格が変更された日から1週間表示されます。
※販売予定物件はすべて、販売開始するまで契約または予約の申込みはできません。
※購入の前には物件内容や契約条件についてご自身で十分な確認をしていただくようにお願いいたします。
※建築条件土地の情報内に掲載されている、建物プラン例は、土地購入者の設計プランの参考の一例であって、プランの採用可否は任意です。
※土地(建築条件なし)で「建物プラン例」が表記してある時、そのプラン例は特定の建築請負会社によるもので、当該建築請負会社以外で建てた場合、同様のものが同価格で建てられるとは限りません。また建築請負会社を特定するものではありません。
※建築条件付き土地とは、その土地に建築する建物の建築請負契約が、一定期間内に成立することを条件として売買される土地のことをいいます。建築請負契約成立に向けて設計プランを協議するため、土地購入者が自己の希望する建物の設計協議をするために必要な相当の期間の交渉期間が設定され、その期間内で希望を満たすプランが実現できたかどうかにより結論を出します。なお、この期間は概ね3ヶ月程度とされています。納得のいくプランが出来ず、建築請負契約が成立しない場合、土地売買契約は白紙に戻り、土地契約にかかった代金(土地代金、手付金など)は名目のいかんに関わらず、全て返却されます。





































