一戸建て【福井市大宮5丁目C棟】ZEH仕様の高断熱+太陽光パネル4.92kw搭載の新築一戸建ての詳細情報
2790万円
月々のローン返済額を試算この物件は未完成のため、掲載写真(外観、内観、設備等)には、施工例が含まれている場合があります。物件詳細については、掲載の不動産会社宛にお問合せください。
月々62297円~日新小・藤島中まで徒歩約5分!お子様の通学も安心◎
外観・室内・設備(23枚)

同形状・同仕様写真(キッチン)
【施工例】対面式キッチンは、家事をしながら家族とコミュニケーションが取れる人気のスタイルです。引き出しはソフトクローズ機能付き!小さなお子様がいるご家庭でも指を挟むなどの事故を防げます。

同形状・同仕様写真(その他内観)
【施工例】広々とした洗面台には豊富な収納スペースがあります。三面鏡で引き出しもついて収納力満載。アラウンドステップ搭載で使い勝手抜群!スタイリッシュな形状で使いやすさ満載♪

同形状・同仕様写真(浴室)
【施工例】1日の疲れをほぐし、とっておきのリラクゼーションタイムを楽しめるバスルーム。美しく機能的なデザインで、心地よい空間が広がります。高断熱浴槽のため、保温性能も抜群です!

キッチン
キッチンパネルは熱や汚れ、傷に強いホーロー素材!耐久性が強いだけでなく、サッと一拭きで掃除がしやすいことが特徴です。さらに食洗器付きで洗い物の時間を削減し、家事の負担を軽減できます。※画像はイメージです。

システムバスルーム
熱を逃がさない断熱材で浴槽を囲み、浴槽全体をあたたか保温してくれるため、追い炊き回数を減らし光熱費が削減できます。また浴槽は汚れがこびりつきにくいフェイスクリン材質でキレイが長持ちします。さらに、ヘアキャッチャーは排水の力で流れた髪の毛がまとまるので、簡単につまんでそのままごみ箱へポイ!※画像はイメージです。

洗面化粧台
三面鏡には収納する物に合わせて高さを調整することができるスライドトレー付き♪洗面台の引き出し部分・扉部分も収納スペースのため、かしこく・たっぷり収納できます。洗面ボウルは広く平らで容量もたっぷり。バケツを置いても安定し、つけ置き洗いなどにも便利です。※画像はイメージです。

ベタ基礎
ベタ基礎は、底面一面が鉄筋コンクリートになっており、湿気が建物に伝わりにくく、住宅の木材腐食を抑えることができます。さらに地面をコンクリートで覆うので白蟻に対する予防策にも有効です。また、家の荷重を底面全体で受け止め、面で支えてくれるので、地震による揺れを分散し、建物の被害を軽減することができます。

基礎パッキン・ヒノキ土台
基礎と土台の間に基礎パッキンを挟むことで、常に通気が行なわれ、土台の木部を常にドライな状態に保つことができ、住宅の耐久性を上げることができます。土台には湿気に強く耐久性の高いヒノキを採用しています。

壁・天井断熱材
天井厚み155mm・壁厚み105mmと一般的な建売は、天井75mm・壁55mmなため約2倍も厚みがあります。 高性能グラスウールは通常グラスウールよりも繊維が細かく、より空気をため込むことができます。 通常グラスウールよりも熱伝導率が低く断熱性能が高く、北陸の寒さにも耐えられる暖かく快適な家に住むことができます。

床断熱材
一般的な建売は、ミラフォーム25mmを使用していますが私たちは、 その2倍であるポリスチレンフォーム40mmを使用しております。 プラスティック素材のため、外気や湿気の影響を受けないので、 断熱性能が劣化しにくい特徴があります。さらにボード状であることから形が崩れにくく、 隙間が出来にくいので外気や湿気の侵入による経年劣化を防ぎます。 また、繊維系断熱材に比べると吸水率・透湿性が小さく、耐水性に優れています。
周辺環境・アクセス(9枚)
物件概要
| 物件名 | 【福井市大宮5丁目C棟】ZEH仕様の高断熱+太陽光パネル4.92kw搭載の新築一戸建て | ||||
|---|---|---|---|---|---|
| 所在地 | 福井県福井市大宮5-1210番2 | ||||
| 交通 |
えちぜん鉄道三国線「日華化学前」歩8分 えちぜん鉄道三国線「八ツ島」歩12分 京福バス「堀ノ宮」歩7分 | ||||
| 構造および階数 | 木造2階建(軸組工法) | 建ぺい率・容積率 | 60%・200% | ||
| 完成予定日 | 2026年3月 | 入居可能予定日 | 相談 | ||
| 土地権利 | 所有権 | ||||
| 駐車場 | - | 国土法届出 | - | ||
| 地目 | - | 道路付け | 無、西10m幅(接道幅9m) | ||
| 機構融資 | - | 取引態様 | 売主 | ||
| 用途地域 | 1種住居 | ||||
| 施工会社 | ハイエスト事業グループ(株) | ||||
| 建築確認番号 | 第R7確建0077号 | ||||
| 設備 | BELS/省エネ基準適合認定書あり / 省エネルギー対策 / 太陽光発電システム / 地盤調査済 / 駐車3台以上可 / 省エネ給湯器 / スーパー 徒歩10分以内 / 市街地が近い / システムキッチン / 浴室乾燥機 / 全居室収納 / LDK15畳以上 / 前道6m以上 / 整形地 / シャワー付洗面化粧台 / 対面式キッチン / トイレ2ヶ所 / 浴室1坪以上 / 2階建 / オートバス / 温水洗浄便座 / 床下収納 / 浴室に窓 / TVモニタ付インターホン / 節水型トイレ / 通風良好 / 全居室フローリング / ウォークインクローゼット / IHクッキングヒーター / 全居室複層ガラスか複層サッシ / 全室2面採光 / 小学校 徒歩10分以内 / 食器洗乾燥機 / オール電化 | ||||
| その他制限事項 | 景観法による規制有 | ||||
| 備考 | 景観法による規制有 / 担当者:社御比元治、設備:公営水道、本下水、オール電化、建築確認番号:第R7確建0077号、駐車場:カースペース | ||||
情報更新日:2025/10/21 次回更新予定日:情報提供より8日以内
販売概要
| 販売価格 | 2790万円 お問い合わせはこちら | ||||
|---|---|---|---|---|---|
| 販売スケジュール | - | ||||
| 販売戸数/総戸数 | 1戸/1戸 | ||||
| 最多価格帯 | - | ||||
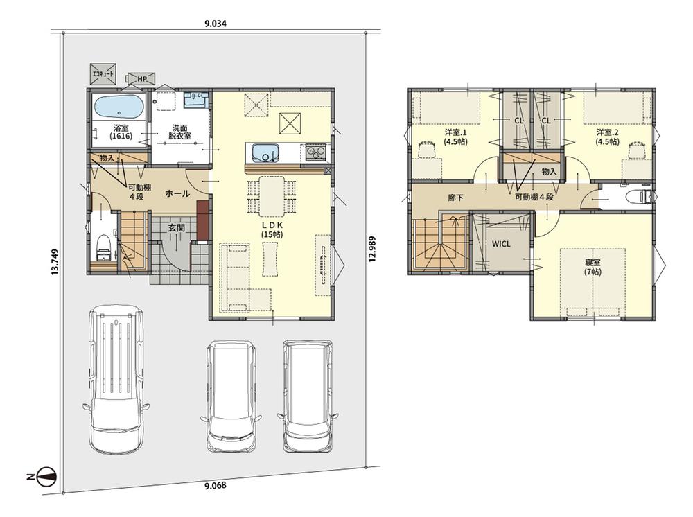
| 間取り | 3LDK | ||||
| 建物面積 | 87.77㎡(26.55坪)(登記) | 土地面積 | 120.78㎡(36.53坪)(登記) | ||
| その他施設費用、償却費 | - | ||||
| その他費用 | - | ||||
| 登録受付 | - | 抽選日 | - | ||
| モデルルーム情報 | - | ||||
| 取引条件有効期限 | - | ||||
会社情報
| お問い合わせ先 |
リーズナブルホーム ハイエスト事業グループ(株)福井 0120-198516(無料通話) 上記の電話番号にお問合せください。(携帯・PHS 可) 【物件番号】78481372 | ||||
|---|---|---|---|---|---|
| 会社概要 |
リーズナブルホーム ハイエスト事業グループ(株)福井[国土交通大臣(2)第009164号] 福井県福井市高柳1-916 【所属団体】 国土交通大臣(2)第009164号(公社)福井県宅地建物取引業協会会員 北陸不動産公正取引協議会加盟 | ||||
この物件の地図・周辺環境
このアイコンは物件のおおよその位置を表しており、実際の場所と異なる場合がございます。詳しくは不動産会社に直接ご確認ください。
※地図上に表示される物件の位置は付近住所に所在することを表すものであり、実際の物件所在地とは異なる場合がございます。
※地図の更新タイミングの関係で、物件情報が実際のものとは異なる場合や最新情報に更新されていない場合がございます。
※以下の南西諸島及び離島においては、表示される物件の位置が実際のものとは数百メートル程度ずれる場合がございます。
東京都:硫黄島・青ヶ島、沖縄県: 北大東島・南大東島・多良間島・水納島・与那国島・宮古諸島・石垣島・竹富島
取り扱い不動産会社
- 電話番号
- 0120-198516
- 受付
- 営業時間:10:00~18:00 / 定休日:水曜日
- 物件番号
- 78481372
日華化学前駅の口コミ
お買い物・飲食
3.0
近くに飲食店やドラッグストア、スーパー、コンビニがあり欲しいものがあればすぐに買いに行けて便利だった。
住宅ローンシミュレーション
住宅ローン設定
物件価格
返済期間
頭金
ボーナス払(年1回)
※
※物件価格の80%以下でお借入れの場合
※50歳以下で一般団信をご選択の場合
※住宅ローン金利優遇割適用後の変動金利(全期間引き下げプラン)
※実際のお借入日の金利により変動します。
※審査の結果によっては保証付金利プランとなる場合があり、この場合は上記とは異なる金利となります。
※別途借入金額の2.20%(税込)の事務手数料が発生します。
ボーナス払 | 35年間返済 | 30年間返済 | 25年間返済 | 20年間返済 | 15年間返済 | 10年間返済 |
|---|---|---|---|---|---|---|
0万円 | -円/月 | -円/月 | -円/月 | -円/月 | -円/月 | -円/月 |
5万円 | -円/月 | -円/月 | -円/月 | -円/月 | -円/月 | -円/月 |
10万円 | -円/月 | -円/月 | -円/月 | -円/月 | -円/月 | -円/月 |
15万円 | -円/月 | -円/月 | -円/月 | -円/月 | -円/月 | -円/月 |
20万円 | -円/月 | -円/月 | -円/月 | -円/月 | -円/月 | -円/月 |
25万円 | -円/月 | -円/月 | -円/月 | -円/月 | -円/月 | -円/月 |
30万円 | -円/月 | -円/月 | -円/月 | -円/月 | -円/月 | -円/月 |
ボーナス払 | 35年間返済 | 30年間返済 | 25年間返済 | 20年間返済 | 15年間返済 | 10年間返済 |
|---|---|---|---|---|---|---|
0万円 | -円/月 | -円/月 | -円/月 | -円/月 | -円/月 | -円/月 |
5万円 | -円/月 | -円/月 | -円/月 | -円/月 | -円/月 | -円/月 |
10万円 | -円/月 | -円/月 | -円/月 | -円/月 | -円/月 | -円/月 |
15万円 | -円/月 | -円/月 | -円/月 | -円/月 | -円/月 | -円/月 |
20万円 | -円/月 | -円/月 | -円/月 | -円/月 | -円/月 | -円/月 |
25万円 | -円/月 | -円/月 | -円/月 | -円/月 | -円/月 | -円/月 |
30万円 | -円/月 | -円/月 | -円/月 | -円/月 | -円/月 | -円/月 |
- ・金利は、今後35年間変動しない仮定のもと元利均等返済方式で計算しております。
- ・実際の金利は、各金融機関のホームページをご参照ください。
- ・ローン契約の際には、手数料や印紙税などの諸費用が別途かかります。
- ・ボーナス支払総額が総支払額の50%を超えている場合、上記の表では「ローン不可」となります。
- ・シミュレーションを利用し、それが原因で利用者が受けたいかなる損害についても当社は一切責任を負いません。あらかじめご了承ください。
※価格は物件の代金総額を表示しており、消費税が課税される場合は税込み価格です。 (1000円未満は切り上げ。)
※写真に写っている、またはパース(絵)や間取り図に描かれている家具や車などは、特にコメントがない場合、販売価格に含まれません。
※敷地権利が定期借地権のものは価格に権利金を含みます。
※建築条件付き土地価格には、建物価格は含まれません。
※物件情報は、原則として情報提供日の2日前に最終確認した情報です。
※完成予想図はいずれも外構、植栽、外観等実際のものとは多少異なることがあります。
※モデルルーム・モデルハウス・展示場・ショールームの画像の場合、今回販売の物件と異なる場合があります。
※CG合成の画像の場合、実際とは多少異なる場合があります。
※物件特徴:販売戸数が複数の物件は、全ての住戸に該当しない項目もあります。
※0800で始まる電話番号は通話料無料です。また、サービス検証のため当該番号の利用履歴を個人が特定できない範囲で取得しています。予めご了承ください。
※完成後1年以上を経過した未入居物件が掲載される場合があります。ご了承ください。
※新着:物件情報が「SUUMO」に掲載された日から1週間表示されます。
※価格更新:物件価格が変更された日から1週間表示されます。
※販売予定物件はすべて、販売開始するまで契約または予約の申込みはできません。
※購入の前には物件内容や契約条件についてご自身で十分な確認をしていただくようにお願いいたします。
※建築条件土地の情報内に掲載されている、建物プラン例は、土地購入者の設計プランの参考の一例であって、プランの採用可否は任意です。
※土地(建築条件なし)で「建物プラン例」が表記してある時、そのプラン例は特定の建築請負会社によるもので、当該建築請負会社以外で建てた場合、同様のものが同価格で建てられるとは限りません。また建築請負会社を特定するものではありません。
※建築条件付き土地とは、その土地に建築する建物の建築請負契約が、一定期間内に成立することを条件として売買される土地のことをいいます。建築請負契約成立に向けて設計プランを協議するため、土地購入者が自己の希望する建物の設計協議をするために必要な相当の期間の交渉期間が設定され、その期間内で希望を満たすプランが実現できたかどうかにより結論を出します。なお、この期間は概ね3ヶ月程度とされています。納得のいくプランが出来ず、建築請負契約が成立しない場合、土地売買契約は白紙に戻り、土地契約にかかった代金(土地代金、手付金など)は名目のいかんに関わらず、全て返却されます。

























